Ländliche Freiheit genießen – Hofstelle mit Nebengebäuden und Entwicklungspotenzial!
159.000 €
Kaufpreis
199 m²
Wohnfläche
9
Zimmer
immobilien.de Nr.: 9534449
Objektnummer: 4748
Kaufpreis
| Kaufpreis | 159.000 € |
| Maklerprovision | 3,57 % inkl. gesetzl. MwSt. |
| Stellplatz Garage Kaufpreis | 0 € |
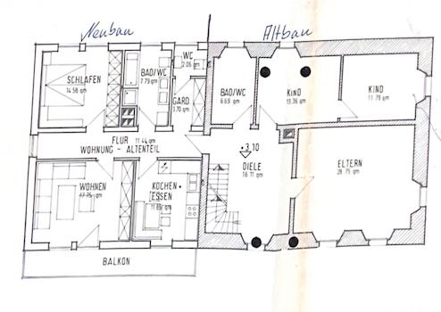
Wohnfläche, Grundstück & Bausubstanz
| Wohnfläche | 199 m² |
| Grundstücksfläche | 1.963 m² |
| Zimmer | 9 |
| Baujahr | 1896 |
| Verfügbar ab | sofort |
| Zustand | Sanierungsbeduerftig |
Energie
| Energieausweistyp | Bedarfsausweis |
| Gültig bis | 2036-02-14 |
| Baujahr (laut Energieausweis) | 1896 |
| Energieeffizienzklasse | H |
| Endenergiebedarf | 460.00 |
| Heizungsart | Zentralheizung |
| Wesentlicher Energieträger | Oel |
| Energieträger/Befeuerung | Öl, Holz |
Beschreibung der Immobilie
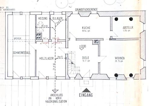
Die ehemalige Hofstelle wurde ursprünglich vor 1900 erbaut. Im Jahr 1980 wurde durch einen Anbau eine zweite Wohneinheit geschaffen. Dadurch eignet sich die Immobilie hervorragend als Zweifamilienhaus – beispielsweise für das Zusammenleben mehrerer Generationen unter einem Dach oder zur Kombination aus Eigennutzung und Vermietung. Diverse Nutzungsmöglichkeiten bieten die umfangreichen Nebengebäude. Vier Garagen runden den Gebäudekomplex ab.
Das Anwesen befindet sich in einem modernisierungsbedürftigen Zustand und bietet damit die ideale Grundlage für Käufer, die ihre eigenen Vorstellungen und Gestaltungsideen verwirklichen möchten. Je nach Anspruch sind Modernisierungs- und Renovierungsmaßnahmen erforderlich, um das Gebäude technisch und energetisch auf einen zeitgemäßen Stand zu bringen. Die vorhandene Substanz eröffnet dabei vielfältige Möglichkeiten zur individuellen Neugestaltung und Aufwertung.
Das Anwesen befindet sich in einem modernisierungsbedürftigen Zustand und bietet damit die ideale Grundlage für Käufer, die ihre eigenen Vorstellungen und Gestaltungsideen verwirklichen möchten. Je nach Anspruch sind Modernisierungs- und Renovierungsmaßnahmen erforderlich, um das Gebäude technisch und energetisch auf einen zeitgemäßen Stand zu bringen. Die vorhandene Substanz eröffnet dabei vielfältige Möglichkeiten zur individuellen Neugestaltung und Aufwertung.
Ausstattungsmerkmale
| Balkone | 1 |
| Garage/Stellplätze | 4 |
- Baujahr vor 1896, Anbau 1980
- Objektart: ehemalige Hofstelle mit diversen Nebengebäuden
- vier Garagen
- Wohnfläche ca. 199 m²
- Grundstück ca. 1963 m²
- 2 Wohneinheiten
- Balkon vorhanden
- Objektart: ehemalige Hofstelle mit diversen Nebengebäuden
- vier Garagen
- Wohnfläche ca. 199 m²
- Grundstück ca. 1963 m²
- 2 Wohneinheiten
- Balkon vorhanden
Karte wird geladen...
Objektstandort
92665 Kirchendemenreuth / Püllersreuth
Lage & Infrastruktur
Objektstandort
92665 Kirchendemenreuth / Püllersreuth
Die Immobilie liegt in Püllersreuth, einem ruhigen Ortsteil der Gemeinde Kirchendemenreuth in der nördlichen Oberpfalz. Das Umfeld ist ländlich geprägt, mit viel Weite und gewachsenen Nachbarschaften.
Für den täglichen Bedarf ist das Wichtigste in der näheren Umgebung gut erreichbar. Kurze Wege mit dem Auto führen zu Einkaufsmöglichkeiten, Dienstleistungen und ärztlicher Versorgung in der 3 km entfernten Stadt Windischeschenbach oder in der 10 km entfernten Kreisstadt Neustadt a. d. Waldnaab . Eine Bushaltestelle im Ortsbereich ermöglicht auch die Nutzung öffentlicher Verkehrsmittel.
Die Lage verbindet Rückzug und Bewegungsfreiheit. In der Umgebung öffnen sich abwechslungsreiche Landschaften, ideal für Spaziergänge, Laufrunden oder Radtouren nach Feierabend. Wer Natur als Ausgleich sucht, findet hier ein Umfeld, das nicht laut sein muss, um viel zu bieten.
In Summe ist dies eine Adresse für alle, die ländliche Ruhe bevorzugen, dabei aber Wert auf verlässliche Erreichbarkeit, alltagstaugliche Infrastruktur im Umkreis und naturnahe Freizeitmöglichkeiten legen.
Für den täglichen Bedarf ist das Wichtigste in der näheren Umgebung gut erreichbar. Kurze Wege mit dem Auto führen zu Einkaufsmöglichkeiten, Dienstleistungen und ärztlicher Versorgung in der 3 km entfernten Stadt Windischeschenbach oder in der 10 km entfernten Kreisstadt Neustadt a. d. Waldnaab . Eine Bushaltestelle im Ortsbereich ermöglicht auch die Nutzung öffentlicher Verkehrsmittel.
Die Lage verbindet Rückzug und Bewegungsfreiheit. In der Umgebung öffnen sich abwechslungsreiche Landschaften, ideal für Spaziergänge, Laufrunden oder Radtouren nach Feierabend. Wer Natur als Ausgleich sucht, findet hier ein Umfeld, das nicht laut sein muss, um viel zu bieten.
In Summe ist dies eine Adresse für alle, die ländliche Ruhe bevorzugen, dabei aber Wert auf verlässliche Erreichbarkeit, alltagstaugliche Infrastruktur im Umkreis und naturnahe Freizeitmöglichkeiten legen.
Kontaktanfrage senden
Über den Anbieter
City Immobilien GmbH
Wörthstr. 9
92637 Weiden
Kontakt
| Telefon | 004996184148 |
| Fax | 004996184219 |
| Website | www.city-immobilien.de |
Ansprechpartner/in
Frau Gabriele Grünwald
Weitere Angebote des Anbieters
6
Moderne 2 Zimmer Wohnung zu vermieten
Wohnung
92637 Weiden
Diese 2 Zimmer Etagenwohnung mit ca. 57 m² Wohnfläche bietet einen unkomplizierten Grundriss, der sich gut an einen flexiblen Alltag anpasst. Die Räume wirken durch große Fensterflächen angenehm hell, dazu kommt ein ...
480 €
Kaltmiete
57 m²
Wohnfläche
2
Zimmer
12
Mansardenwohnung am Ufer der Pfreimd – Natur, Ruhe und ...
Wohnung
92555 Trausnitz
Diese gemütliche Dachgeschosswohnung überzeugt durch ihre einzigartige Lage an der Seestraße - direkt am idyllischen Stausee, der unter Anglern und Naturliebhabern als wahres Paradies gilt. Eingebettet in eine ...
55.000 €
Kaufpreis
61,27 m²
Wohnfläche
3
Zimmer
13
Ländliche Freiheit genießen – Hofstelle mit ...
Haus
92665 Kirchendemenreuth / Püllersreuth
Die ehemalige Hofstelle wurde ursprünglich vor 1900 erbaut. Im Jahr 1980 wurde durch einen Anbau eine zweite Wohneinheit geschaffen. Dadurch eignet sich die Immobilie hervorragend als Zweifamilienhaus – beispielsweise ...
159.000 €
Kaufpreis
199 m²
Wohnfläche
9
Zimmer
11
Großzügiges Einfamilienhaus mit traumhaftem Garten und ...
Haus
95652 Waldsassen
Dieses Einfamilienhaus aus dem Baujahr 1972 bietet mit rund 201 m² Wohnfläche und insgesamt 8 Zimmern viel Raum für den Familienalltag, Rückzug und gemeinsames Leben. Das Grundstück umfasst ca. 777 m² und eröffnet ...
295.000 €
Kaufpreis
201 m²
Wohnfläche
8
Zimmer
1
Schnuckelige 2-Zimmer-Wohnung mit Stellplatz direkt im ...
Wohnung
92637 Weiden
Gemütliche, schnuckelige 2-Zimmer-Wohnung im 1. Obergeschoss eines Altbau-Mehrfamilienhauses. Die Wohnung befindet sich direkt im Zentrum von Weiden. Ein Stellplatz vor dem Haus gehört zur Wohnung dazu. Ebenfalls steht ...
420 €
Kaltmiete
38 m²
Wohnfläche
2
Zimmer