Käufer Provisionsfrei! Modernes Wohngefühl auf höchstem Niveau – Ihr Traum-Bungalow in Lathen
549.000 €
Kaufpreis
191 m²
Wohnfläche
5
Zimmer
immobilien.de Nr.: 9534247
Objektnummer: 8510
Kaufpreis
| Kaufpreis | 549.000 € |
Wohnfläche, Grundstück & Bausubstanz
| Wohnfläche | 191 m² |
| Grundstücksfläche | 625 m² |
| Zimmer | 5 |
| Baujahr | 2022 |
| Verfügbar ab | nach Vereinbarung |
Energie
| Energieausweistyp | Bedarfsausweis |
| Ausstellungsdatum | 15. 01. 2025 |
| Gültig bis | 14.01.2035 |
| Energieeffizienzklasse | A_PLUS |
| Endenergiebedarf | 49.1 |
| Wesentlicher Energieträger | Luftwärmepumpe |
| Energieträger/Befeuerung | Luft-Wärme-Pumpe |
Beschreibung der Immobilie
Exklusiver Bungalow in Lathen – Baujahr 2022
In bevorzugter Wohnlage von Lathen präsentiert sich dieser im Jahr 2022 errichtete Bungalow als architektonisch durchdachtes Zuhause mit rund 190 m² Wohnfläche auf einem ca. 625 m² großen Grundstück. Das Objekt überzeugt durch einen nahezu neuwertigen Gesamtzustand, hochwertige Materialien sowie eine konsequent moderne Ausstattungsphilosophie.
Bereits beim Betreten des Hauses wird der Anspruch an Qualität und Design deutlich. Großflächige Bodenfliesen in eleganter Marmoroptik prägen die Wohnbereiche sowie die Badezimmer und verleihen den Räumen eine stilvolle, zeitlose Ausstrahlung. In den Schlafzimmern wurde hochwertiges Laminat verlegt, das eine warme, wohnliche Atmosphäre schafft. Stilvolle weiße Innentüren unterstreichen das klare, moderne Gestaltungskonzept.
Dieser traumhafte Bungalow vereint moderne Architektur, hochwertige Ausstattung, energetische Effizienz und eine begehrte Lage zu einem Gesamtpaket, das höchsten Wohnansprüchen gerecht wird. Ein Zuhause, das Stil, Komfort und Nachhaltigkeit auf eindrucksvolle Weise miteinander verbindet.
In bevorzugter Wohnlage von Lathen präsentiert sich dieser im Jahr 2022 errichtete Bungalow als architektonisch durchdachtes Zuhause mit rund 190 m² Wohnfläche auf einem ca. 625 m² großen Grundstück. Das Objekt überzeugt durch einen nahezu neuwertigen Gesamtzustand, hochwertige Materialien sowie eine konsequent moderne Ausstattungsphilosophie.
Bereits beim Betreten des Hauses wird der Anspruch an Qualität und Design deutlich. Großflächige Bodenfliesen in eleganter Marmoroptik prägen die Wohnbereiche sowie die Badezimmer und verleihen den Räumen eine stilvolle, zeitlose Ausstrahlung. In den Schlafzimmern wurde hochwertiges Laminat verlegt, das eine warme, wohnliche Atmosphäre schafft. Stilvolle weiße Innentüren unterstreichen das klare, moderne Gestaltungskonzept.
Dieser traumhafte Bungalow vereint moderne Architektur, hochwertige Ausstattung, energetische Effizienz und eine begehrte Lage zu einem Gesamtpaket, das höchsten Wohnansprüchen gerecht wird. Ein Zuhause, das Stil, Komfort und Nachhaltigkeit auf eindrucksvolle Weise miteinander verbindet.
Ausstattungsmerkmale
| Küche | Einbauküche |
| Bad | 2 |
| Bad | Dusche, Wanne, Fenster |
| Boden | Fliesen |
| Garage/Stellplätze | 2 |
Der großzügige Wohn- und Essbereich bildet das Herzstück des Hauses. Hier sorgt ein formschöner Kaminofen für behagliche Wärme und eine besondere Wohnatmosphäre. Die offene Raumgestaltung wird durch eine elegante Schiebetür zwischen Wohnzimmer und Küche ergänzt – ideal, um Offenheit und Rückzug flexibel zu kombinieren.
Die moderne Einbauküche ist bereits im Kaufpreis enthalten und überzeugt mit einer hochwertigen Granitarbeitsplatte sowie erstklassigen Elektrogeräten. Funktionalität und Design gehen hier eine perfekte Symbiose ein. Praktische Einbauschränke unter der Treppe schaffen zusätzlichen Stauraum und zeigen die durchdachte Planung des gesamten Hauses.
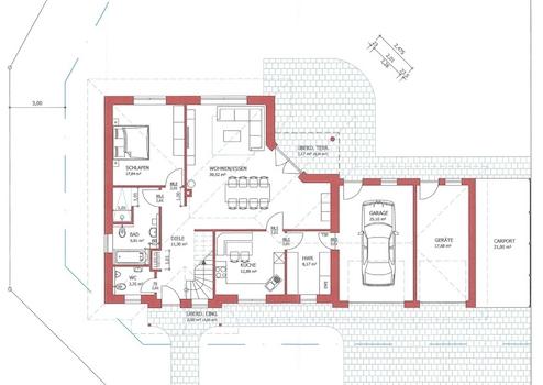
Im Erdgeschoss befindet sich neben einem großzügigen Schlafzimmer ein exklusiv ausgestattetes Badezimmer. Dieses bietet eine ebenerdige Dusche, eine Badewanne, Doppelwaschtisch mit beleuchtetem Spiegel sowie ein wandhängendes WC – eine elegante Wellnessoase im eigenen Zuhause.
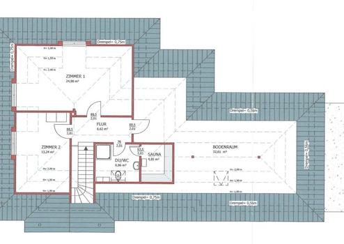
Das Dachgeschoss erweitert das Raumangebot um zwei weitere Schlafzimmer, von denen eines mit maßgefertigten Einbauschränken ausgestattet ist. Zusätzlich steht ein vorbereitetes Studiozimmer zur Verfügung – die Fußbodenheizung ist hier bereits installiert. Ob Homeoffice, Hobbyraum oder weiteres Schlafzimmer – dieser Bereich bietet maximale Flexibilität. Ein weiteres Highlight ist das Duschbadezimmer im Dachgeschoss mit integrierter Sauna, das privaten Wellnesskomfort auf höchstem Niveau bietet.
Die moderne Betontreppe mit Fliesenbelag und Edelstahlgeländer verbindet die Etagen auf stilvolle Weise und fügt sich harmonisch in das Gesamtkonzept ein.
Technisch befindet sich das Haus auf dem neuesten Stand: Eine digital steuerbare Fußbodenheizung in Kombination mit einer effizienten Luftwärmepumpe sorgt für nachhaltige und wirtschaftliche Wärmeversorgung. Kunststofffenster mit 3-fach-Verglasung, elektrische Rollläden sowie integrierte Fliegengitter bieten hohen Komfort und Energieeffizienz. Ein Glasfaseranschluss garantiert zudem eine zukunftssichere digitale Infrastruktur.
Die geflieste Doppelgarage ist harmonisch unter das Walmdach integriert und bietet direkten Schutz für Ihre Fahrzeuge. Neben der Garage besteht die Möglichkeit für einen Wohnmobilstellplatz oder die Errichtung eines bereits genehmigten Carports – ideal für zusätzliche Mobilität.
Der Außenbereich ist ebenso hochwertig gestaltet wie das Innere des Hauses. Die teilüberdachte Terrasse lädt zu entspannten Stunden im Freien ein und öffnet sich zu einem liebevoll angelegten Garten. Das Grundstück ist vollständig eingefriedet, teilweise mit modernen Steingabionen – ein Höchstmaß an Privatsphäre und Sicherheit inklusive.
Die moderne Einbauküche ist bereits im Kaufpreis enthalten und überzeugt mit einer hochwertigen Granitarbeitsplatte sowie erstklassigen Elektrogeräten. Funktionalität und Design gehen hier eine perfekte Symbiose ein. Praktische Einbauschränke unter der Treppe schaffen zusätzlichen Stauraum und zeigen die durchdachte Planung des gesamten Hauses.
Im Erdgeschoss befindet sich neben einem großzügigen Schlafzimmer ein exklusiv ausgestattetes Badezimmer. Dieses bietet eine ebenerdige Dusche, eine Badewanne, Doppelwaschtisch mit beleuchtetem Spiegel sowie ein wandhängendes WC – eine elegante Wellnessoase im eigenen Zuhause.
Das Dachgeschoss erweitert das Raumangebot um zwei weitere Schlafzimmer, von denen eines mit maßgefertigten Einbauschränken ausgestattet ist. Zusätzlich steht ein vorbereitetes Studiozimmer zur Verfügung – die Fußbodenheizung ist hier bereits installiert. Ob Homeoffice, Hobbyraum oder weiteres Schlafzimmer – dieser Bereich bietet maximale Flexibilität. Ein weiteres Highlight ist das Duschbadezimmer im Dachgeschoss mit integrierter Sauna, das privaten Wellnesskomfort auf höchstem Niveau bietet.
Die moderne Betontreppe mit Fliesenbelag und Edelstahlgeländer verbindet die Etagen auf stilvolle Weise und fügt sich harmonisch in das Gesamtkonzept ein.
Technisch befindet sich das Haus auf dem neuesten Stand: Eine digital steuerbare Fußbodenheizung in Kombination mit einer effizienten Luftwärmepumpe sorgt für nachhaltige und wirtschaftliche Wärmeversorgung. Kunststofffenster mit 3-fach-Verglasung, elektrische Rollläden sowie integrierte Fliegengitter bieten hohen Komfort und Energieeffizienz. Ein Glasfaseranschluss garantiert zudem eine zukunftssichere digitale Infrastruktur.
Die geflieste Doppelgarage ist harmonisch unter das Walmdach integriert und bietet direkten Schutz für Ihre Fahrzeuge. Neben der Garage besteht die Möglichkeit für einen Wohnmobilstellplatz oder die Errichtung eines bereits genehmigten Carports – ideal für zusätzliche Mobilität.
Der Außenbereich ist ebenso hochwertig gestaltet wie das Innere des Hauses. Die teilüberdachte Terrasse lädt zu entspannten Stunden im Freien ein und öffnet sich zu einem liebevoll angelegten Garten. Das Grundstück ist vollständig eingefriedet, teilweise mit modernen Steingabionen – ein Höchstmaß an Privatsphäre und Sicherheit inklusive.
Sonstige Informationen
Wohnflächenaufteilung:
Erdgeschoss:
Diele ca. 11,30 m²
Wohnzimmer ca. 39,52 m²
Küche ca. 12,88 m²
Schlafzimmer ca. 17,04 m²
Badezimmer ca. 9,81 m²
Gäste-WC ca. 3,35 m²
Hauswirtschaftsraum ca. 8,17 m²
Dachgeschoss:
Flur ca. 6,62 m²
Schlafzimmer ca. 24,98 m²
Schlafzimmer ca. 13,24 m²
Badezimmer ca. 6,86 m²
Sauna ca. 3,50 m²
Studiozimmer ca. 32,61 m² (Ausbaureserve)
Nutzflächen:
Garage ca. 25,10 m²
Geräteraum ca. 17,68 m²
Erdgeschoss:
Diele ca. 11,30 m²
Wohnzimmer ca. 39,52 m²
Küche ca. 12,88 m²
Schlafzimmer ca. 17,04 m²
Badezimmer ca. 9,81 m²
Gäste-WC ca. 3,35 m²
Hauswirtschaftsraum ca. 8,17 m²
Dachgeschoss:
Flur ca. 6,62 m²
Schlafzimmer ca. 24,98 m²
Schlafzimmer ca. 13,24 m²
Badezimmer ca. 6,86 m²
Sauna ca. 3,50 m²
Studiozimmer ca. 32,61 m² (Ausbaureserve)
Nutzflächen:
Garage ca. 25,10 m²
Geräteraum ca. 17,68 m²
Karte wird geladen...
Objektstandort
49762 Lathen
Lage & Infrastruktur
Objektstandort
49762 Lathen
Leben in Lathen – Wohnqualität im nördlichen Emsland
Lathen zählt zu den gefragten Wohnorten im nördlichen Emsland und überzeugt durch eine ausgewogene Kombination aus naturnahem Umfeld, gewachsener Infrastruktur und hoher Lebensqualität. Die Gemeinde bietet ein angenehmes, familienfreundliches Umfeld mit kurzen Wegen und einer starken lokalen Gemeinschaft.
Im Ortskern finden sich zahlreiche Einkaufsmöglichkeiten für den täglichen Bedarf, Fachgeschäfte, Banken, Apotheken sowie gastronomische Angebote. Ärzte, Kindergärten sowie eine Grundschule und weiterführende Schulen in der näheren Umgebung gewährleisten eine sehr gute Versorgung und Bildungsstruktur. Sportvereine, Fitnessangebote und kulturelle Veranstaltungen sorgen zusätzlich für ein lebendiges Gemeindeleben.
Besonders hervorzuheben ist die naturnahe Lage: Die Nähe zur Ems sowie zu weitläufigen Rad- und Wanderwegen macht Lathen attraktiv für Naturliebhaber und aktive Menschen. Ob Spaziergänge entlang des Wassers, Fahrradtouren durch das Emsland oder entspannte Stunden im Grünen – hier lässt sich Freizeitqualität unmittelbar vor der Haustür genießen.
Auch infrastrukturell ist Lathen hervorragend aufgestellt. Der Bahnhof bietet eine gute Anbindung an das regionale und überregionale Bahnnetz, sodass auch Pendler flexibel bleiben. Über die Bundesstraßen sind Städte wie Papenburg, Meppen oder Haren schnell erreichbar. Gleichzeitig bewahrt sich Lathen seinen ruhigen, überschaubaren Charakter – ein entscheidender Vorteil gegenüber größeren urbanen Zentren.
Die Kombination aus moderner Infrastruktur, naturnahem Wohnen und einer stabilen wirtschaftlichen Struktur macht Lathen zu einem nachhaltig attraktiven Wohnstandort – ideal für Familien, Berufstätige und alle, die Wert auf Lebensqualität in einem gewachsenen Umfeld legen.
Lathen zählt zu den gefragten Wohnorten im nördlichen Emsland und überzeugt durch eine ausgewogene Kombination aus naturnahem Umfeld, gewachsener Infrastruktur und hoher Lebensqualität. Die Gemeinde bietet ein angenehmes, familienfreundliches Umfeld mit kurzen Wegen und einer starken lokalen Gemeinschaft.
Im Ortskern finden sich zahlreiche Einkaufsmöglichkeiten für den täglichen Bedarf, Fachgeschäfte, Banken, Apotheken sowie gastronomische Angebote. Ärzte, Kindergärten sowie eine Grundschule und weiterführende Schulen in der näheren Umgebung gewährleisten eine sehr gute Versorgung und Bildungsstruktur. Sportvereine, Fitnessangebote und kulturelle Veranstaltungen sorgen zusätzlich für ein lebendiges Gemeindeleben.
Besonders hervorzuheben ist die naturnahe Lage: Die Nähe zur Ems sowie zu weitläufigen Rad- und Wanderwegen macht Lathen attraktiv für Naturliebhaber und aktive Menschen. Ob Spaziergänge entlang des Wassers, Fahrradtouren durch das Emsland oder entspannte Stunden im Grünen – hier lässt sich Freizeitqualität unmittelbar vor der Haustür genießen.
Auch infrastrukturell ist Lathen hervorragend aufgestellt. Der Bahnhof bietet eine gute Anbindung an das regionale und überregionale Bahnnetz, sodass auch Pendler flexibel bleiben. Über die Bundesstraßen sind Städte wie Papenburg, Meppen oder Haren schnell erreichbar. Gleichzeitig bewahrt sich Lathen seinen ruhigen, überschaubaren Charakter – ein entscheidender Vorteil gegenüber größeren urbanen Zentren.
Die Kombination aus moderner Infrastruktur, naturnahem Wohnen und einer stabilen wirtschaftlichen Struktur macht Lathen zu einem nachhaltig attraktiven Wohnstandort – ideal für Familien, Berufstätige und alle, die Wert auf Lebensqualität in einem gewachsenen Umfeld legen.
Kontaktanfrage senden
Über den Anbieter
Gründer Immobilien
Hauptstrasse 97
26892 Dörpen
Kontakt
| Telefon | +49 4963 914923 |
| Website | gruender-immobilien.de |
Ansprechpartner/in
Herr Ralf Gründer
Weitere Angebote des Anbieters
41
Zukunftssicher wohnen – klimafreundlicher moderner ...
Haus
49744 Geeste
Exklusiver, klimafreundlicher Walmdachbungalow – moderner Neubau mit hochwertiger Ausstattung Dieser exklusive und klimafreundliche Walmdachbungalow vereint moderne Architektur, energieeffiziente Technik und höchsten ...
455.000 €
Kaufpreis
148 m²
Wohnfläche
3
Zimmer
25
Exklusiver Winkelwalmdach-Bungalow in schöner ...
Haus
26907 Walchum
Willkommen in Ihrem zukünftigen Zuhause! Dieser exklusive Winkelwalmdach-Bungalow, erbaut im Jahr 1996, bietet nicht nur eine einzigartige Architektur, sondern auch eine Fülle von modernen Annehmlichkeiten. Die ...
318.000 €
Kaufpreis
140 m²
Wohnfläche
5
Zimmer
21
Ein Ensemble – zwei Wohneinheiten mit Charme und ...
Haus
26907 Walchum
Zuhause mit Herz – zwei gepflegte Bungalows in ruhiger Lage von Walchum – provisionsfrei für Käufer! In einer ruhigen und gepflegten Wohnsiedlung von Walchum, am Ende einer verkehrsarmen Sackgasse, präsentieren sich ...
444.000 €
Kaufpreis
140 m²
Wohnfläche
6
Zimmer
27
Provisionsfrei für Käufer: Wohnanlage mit 9 WE in ...
Haus
40764 Langenfeld (Rheinland)
Langenfeld: Voll vermietetes 9-Familienhaus in Top-Zustand – starke Rendite, starke Lage Dieses äußerst gepflegte Mehrfamilienhaus aus dem Jahr 1971 präsentiert sich als attraktive und nachhaltig ertragreiche ...
1.550.000 €
Kaufpreis
610,48 m²
Wohnfläche
24
Zimmer
35
Provisionsfrei für Käufer: Wohnen, wie es im Alter ...
Haus
26907 Walchum
Stilvoller Walmdachbungalow in ruhiger Wohnlage von Walchum – Wohnen auf einer Ebene in naturnaher Umgebung In einer angenehm ruhigen Wohnsiedlung von Walchum, umgeben von Wald- und Seenlandschaft, präsentiert sich ...
328.000 €
Kaufpreis
140 m²
Wohnfläche
4
Zimmer