STREIF baut Euer perfektes Zuhause
666.976 €
Kaufpreis
140 m²
Wohnfläche
6
Zimmer
immobilien.de Nr.: 9533712
Objektnummer: AM76684103
Kaufpreis
| Kaufpreis | 666.976 € |
Wohnfläche, Grundstück & Bausubstanz
| Wohnfläche | 140 m² |
| Grundstücksfläche | 630 m² |
| Zimmer | 6 |
| Verfügbar ab | keine Angabe |
| Zustand | Erstbezug |
Energie
| Energietyp | KfW-40 |
| Heizungsart | Zentralheizung |
| Energieträger/Befeuerung | Luft-Wärme-Pumpe |
Beschreibung der Immobilie
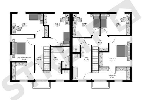
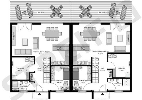
STREIF-Doppelhausentwurf 1 - im Stadtvillenstil
Die Architektur dieses Doppelhauses mit einem eleganten Walmdach strahlt zeitlose Modernität aus. Die Grundrisse sind so konzipiert, dass großzügige und komfortable Räume entstehen. Der offene Wohn-/Ess-/Kochbereich bietet mit seinen 39 m² viel Platz und Helligkeit, dank einer Panorama-Hebeschiebetür und einer doppelflügeligen Terrassentür. Im Erdgeschoss befindet sich ein zusätzliches Zimmer, das flexibel als Homeoffice, Gästezimmer oder Schlafzimmer genutzt werden kann. Das Badezimmer im Erdgeschoss kann optional mit einer Dusche ausgestattet werden, was in Kombination mit dem Zusatzzimmer ein ebenerdiges Wohnen ermöglicht. Im Obergeschoss finden Sie einen Elternbereich mit Ankleidezimmer, zwei Kinderzimmern und ein geräumiges Bad. Aufgrund der Bauweise dieses Doppelhausentwurfs mit Walmdach ist es erforderlich, beide Haushälften gleichzeitig zu errichten.
Preisangaben beziehen sich auf eine Doppelhaushälfte.
Die Architektur dieses Doppelhauses mit einem eleganten Walmdach strahlt zeitlose Modernität aus. Die Grundrisse sind so konzipiert, dass großzügige und komfortable Räume entstehen. Der offene Wohn-/Ess-/Kochbereich bietet mit seinen 39 m² viel Platz und Helligkeit, dank einer Panorama-Hebeschiebetür und einer doppelflügeligen Terrassentür. Im Erdgeschoss befindet sich ein zusätzliches Zimmer, das flexibel als Homeoffice, Gästezimmer oder Schlafzimmer genutzt werden kann. Das Badezimmer im Erdgeschoss kann optional mit einer Dusche ausgestattet werden, was in Kombination mit dem Zusatzzimmer ein ebenerdiges Wohnen ermöglicht. Im Obergeschoss finden Sie einen Elternbereich mit Ankleidezimmer, zwei Kinderzimmern und ein geräumiges Bad. Aufgrund der Bauweise dieses Doppelhausentwurfs mit Walmdach ist es erforderlich, beide Haushälften gleichzeitig zu errichten.
Preisangaben beziehen sich auf eine Doppelhaushälfte.
Ausstattungsmerkmale
| Anzahl der Etagen im Haus | 2 |
| Bad | 1 |
| Terrassen | 1 |
| Barrierefrei |
STREIF-Energiespar-Häuser sind für die Effizienzhaus-Klasse 40* vorbereitet. (*In Abhängigkeit von Gebäudestandort, Gebäudeausrichtung, Fensterflächenanteile, Haustechnik usw. können zusätzliche oder abweichende Leistungen erforderlich werden, die im Zuge der Bauantragsbewertung/-erstellung bewertet werden.)
Gegen Aufpreis erstellen wir eine Ökobilanzierung für Ihr Haus nach QNG durch. Für das Erreichen der Vorgaben des Qualitätssiegels Nachhaltiges Gebäude (QNG) für eine Ökobilanzierung wird zusätzlich eine Photovoltaik-Anlage mit Batteriespeicher benötigt. Mit dem Erfüllen dieser und weiterer Anforderungen wird Ihr Haus nach den neuen KfW-Förderrichtlinien für den Klimafreundlichen Neubau (KFN) förderfähig.
Die Außenwände im Passiv-Haus-Standard und eine sparsame Heiztechnik mit integrierter Wohnraumlüftung und Wärmerückgewinnung, garantieren einen geringen Energieverbrauch und ein fantastisches Raumklima, das insbesondere Allergiker aufatmen lässt.
STREIF Leistungen sind MEHR WERT - schon im Grundpreis enthalten!
- 16-monatige Festpreisgarantie
- Inkl. individuelle Grundrissgestaltung und Raumaufteilung
- Inkl. gedämmte Fundamentplatte
- Inkl. STREIF-Luft-Luft-Wärmepumpen-Technologie mit integrierter Lüftungsanlage mit Wärmerückgewinnung
- Inkl. Haustür von KERA und Fenster von Porta/Kömmerling
- Inkl. Sanitärobjekte von Markenherstellern
- Inkl. Massivholz-Geschosstreppe aus eigener Produktion (entfällt bei Bungalow)
- Inkl. Elektroinstallation u. v. m.
- Inkl. Photovoltaikanlage 7,12 KWP
- Inkl. Batteriespeicher mit 7,70 KWH
Die hohe Wertigkeit und Langlebigkeit eines STREIF-Energiespar-Hauses wird durch zahlreiche Auszeichnungen, Qualitäts- und Gütesiegel unabhängiger Institute und Verbände dokumentiert.
Der Angebotspreis ist inklusive Grundstück und bezieht sich auf die Standard-Ausbaustufe Fast-Fertig-Plus. Ihre Eigenleistungen: Spachtel-,Tapezier- und Malerarbeiten, Bodenbeläge, Innentüren.
Baunebenkosten fallen zuzüglich an.
Der Verkauf des Grundstücks erfolgt über einen unserer Netzwerkpartner.
Bilder können evtl. Anbauteile, Carports, Balkone, Gauben usw. zeigen, die nicht im Angebotspreis enthalten sind. Änderungen und Irrtümer vorbehalten.
Gegen Aufpreis erstellen wir eine Ökobilanzierung für Ihr Haus nach QNG durch. Für das Erreichen der Vorgaben des Qualitätssiegels Nachhaltiges Gebäude (QNG) für eine Ökobilanzierung wird zusätzlich eine Photovoltaik-Anlage mit Batteriespeicher benötigt. Mit dem Erfüllen dieser und weiterer Anforderungen wird Ihr Haus nach den neuen KfW-Förderrichtlinien für den Klimafreundlichen Neubau (KFN) förderfähig.
Die Außenwände im Passiv-Haus-Standard und eine sparsame Heiztechnik mit integrierter Wohnraumlüftung und Wärmerückgewinnung, garantieren einen geringen Energieverbrauch und ein fantastisches Raumklima, das insbesondere Allergiker aufatmen lässt.
STREIF Leistungen sind MEHR WERT - schon im Grundpreis enthalten!
- 16-monatige Festpreisgarantie
- Inkl. individuelle Grundrissgestaltung und Raumaufteilung
- Inkl. gedämmte Fundamentplatte
- Inkl. STREIF-Luft-Luft-Wärmepumpen-Technologie mit integrierter Lüftungsanlage mit Wärmerückgewinnung
- Inkl. Haustür von KERA und Fenster von Porta/Kömmerling
- Inkl. Sanitärobjekte von Markenherstellern
- Inkl. Massivholz-Geschosstreppe aus eigener Produktion (entfällt bei Bungalow)
- Inkl. Elektroinstallation u. v. m.
- Inkl. Photovoltaikanlage 7,12 KWP
- Inkl. Batteriespeicher mit 7,70 KWH
Die hohe Wertigkeit und Langlebigkeit eines STREIF-Energiespar-Hauses wird durch zahlreiche Auszeichnungen, Qualitäts- und Gütesiegel unabhängiger Institute und Verbände dokumentiert.
Der Angebotspreis ist inklusive Grundstück und bezieht sich auf die Standard-Ausbaustufe Fast-Fertig-Plus. Ihre Eigenleistungen: Spachtel-,Tapezier- und Malerarbeiten, Bodenbeläge, Innentüren.
Baunebenkosten fallen zuzüglich an.
Der Verkauf des Grundstücks erfolgt über einen unserer Netzwerkpartner.
Bilder können evtl. Anbauteile, Carports, Balkone, Gauben usw. zeigen, die nicht im Angebotspreis enthalten sind. Änderungen und Irrtümer vorbehalten.
Sonstige Informationen
Zur Realisierung des Bauvorhabens und zur Bezugsfertigkeit des Gebäudes kommen zzgl. noch Baunebenkosten und Fertigstellungskosten.
Karte wird geladen...
Objektstandort
76684 Östringen-Odenheim
Lage & Infrastruktur
Objektstandort
76684 Östringen-Odenheim
Östringen ist eine Stadt im Nordosten des Landkreises Karlsruhe in Baden-Württemberg. Sie liegt idyllisch in der hügeligen Landschaft des Kraichgaus, bekannt als die "Toskana Badens". Die Stadt besteht aus den Stadtteilen Östringen, Tiefenbach, Eichelberg und Odenheim.
Die Stadt ist über die Landesstraße L552 und die Bundesstraße B292 erreichbar, was eine schnelle Verbindung zu den Autobahnen A5 und A6 ermöglicht. Der Stadtteil Odenheim verfügt über einen Stadtbahnanschluss (Linie S31/S32 der AVG), der die Verbindung in die Oberzentren Karlsruhe und Bruchsal sicherstellt.
Kindergärten und Kindertagesstätten gewährleisten die Betreuung der jüngsten Bürgerinnen und Bürger. Weiterhin verfügt Östringen über Grundschulen in den Ortsteilen und weiterführende Schulen in der Kernstadt, darunter eine Realschule und ein Gymnasium.
Die hügelige Landschaft bietet ideale Bedingungen für Wandern und Radfahren. Östringen ist für seine schönen Ausblicke bekannt. Ein sehr aktives Vereinsleben in allen vier Stadtteilen ist die Basis für das soziale Miteinander und organisiert traditionelle Feste, darunter die örtliche Kerwe.
Eine hohe Lebensqualität in einer ruhigen, naturnahen Umgebung, ein umfassendes Bildungsangebot und die Verkehrsanbindung machen Östringen zu einem attraktiven Wohnort.
Die Stadt ist über die Landesstraße L552 und die Bundesstraße B292 erreichbar, was eine schnelle Verbindung zu den Autobahnen A5 und A6 ermöglicht. Der Stadtteil Odenheim verfügt über einen Stadtbahnanschluss (Linie S31/S32 der AVG), der die Verbindung in die Oberzentren Karlsruhe und Bruchsal sicherstellt.
Kindergärten und Kindertagesstätten gewährleisten die Betreuung der jüngsten Bürgerinnen und Bürger. Weiterhin verfügt Östringen über Grundschulen in den Ortsteilen und weiterführende Schulen in der Kernstadt, darunter eine Realschule und ein Gymnasium.
Die hügelige Landschaft bietet ideale Bedingungen für Wandern und Radfahren. Östringen ist für seine schönen Ausblicke bekannt. Ein sehr aktives Vereinsleben in allen vier Stadtteilen ist die Basis für das soziale Miteinander und organisiert traditionelle Feste, darunter die örtliche Kerwe.
Eine hohe Lebensqualität in einer ruhigen, naturnahen Umgebung, ein umfassendes Bildungsangebot und die Verkehrsanbindung machen Östringen zu einem attraktiven Wohnort.
Kontaktanfrage senden
Über den Anbieter
STREIF Haus GmbH
Josef-Streif-Straße 1
54595 Weinsheim
Kontakt
| Telefon | +49 176 43417486 |
| Website | www.streif.de |
Ansprechpartner/in
Achim Machmeier
Weitere Angebote des Anbieters
20
Sehr schöne Stadtvilla in erstklassiger Lage von St. ...
Haus
66386 St. Ingbert
Viel Platz und von Licht erfüllte Räume bietet diese traumhafte Stadtvilla. Im Erdgeschoss bildet der offen gestaltete Wohn-, Ess- und Kochbereich mit 49 m² das Herzstück des Hauses. Der gesamte Wohnbereich wird von ...
608.000 €
Kaufpreis
186 m²
Wohnfläche
5
Zimmer
30
STREIF baut Euer perfektes Zuhause
Haus
76707 Hambrücken
Das zweieinhalbgeschossige Mehrfamilienhaus mit zwei Wohnungen überzeugt mit einer klassisch eleganten Architektur mit Satteldach und zwei behaglichen Terrassen. Der Hausentwurf kann mit Stahlbalkonen an der ...
1.293.936 €
Kaufpreis
358 m²
Wohnfläche
18
Zimmer
30
STREIF baut Euer perfektes Zuhause
Haus
76707 Hambrücken
Das zweigeschossige Mehrfamilienhaus mit zwei Wohnungen überzeugt mit einer klassisch eleganten Architektur mit Walmdach und zwei behaglichen Terrassen. Der Hausentwurf kann mit Stahlbalkonen an der Gartenseite ...
1.139.664 €
Kaufpreis
301 m²
Wohnfläche
18
Zimmer
30
STREIF baut Euer perfektes Zuhause
Haus
76707 Hambrücken
Das zweigeschossige Mehrfamilienhaus mit zwei Wohnungen überzeugt mit einer klassisch eleganten Architektur mit Walmdach und einer behaglichen Terrasse. Der Hausentwurf kann mit einem Carport und einer darüberliegenden ...
828.414 €
Kaufpreis
186 m²
Wohnfläche
10
Zimmer
17
STREIF baut Euer perfektes Zuhause
Haus
76707 Hambrücken
STREIF-Villa 4: Exklusives Wohnen mit Flachdach, zwei Erkern, Galerie und Dachterrasse Der Entwurf der exklusiven STREIF-Villa 4 bietet seinen Bewohnern zahlreiche luxuriöse Merkmale, darunter eine zweigeschossige ...
950.650 €
Kaufpreis
210 m²
Wohnfläche
8
Zimmer