STREIF baut Euer perfektes Zuhause
1.402.976 €
Kaufpreis
140 m²
Wohnfläche
6
Zimmer
immobilien.de Nr.: 9533547
Objektnummer: AM69181103
Kaufpreis
| Kaufpreis | 1.402.976 € |
Wohnfläche, Grundstück & Bausubstanz
| Wohnfläche | 140 m² |
| Grundstücksfläche | 1.355 m² |
| Zimmer | 6 |
| Verfügbar ab | keine Angabe |
| Zustand | Erstbezug |
Energie
| Energietyp | KfW-40 |
| Heizungsart | Zentralheizung |
| Energieträger/Befeuerung | Luft-Wärme-Pumpe |
Beschreibung der Immobilie
STREIF-Doppelhausentwurf 1 - im Stadtvillenstil
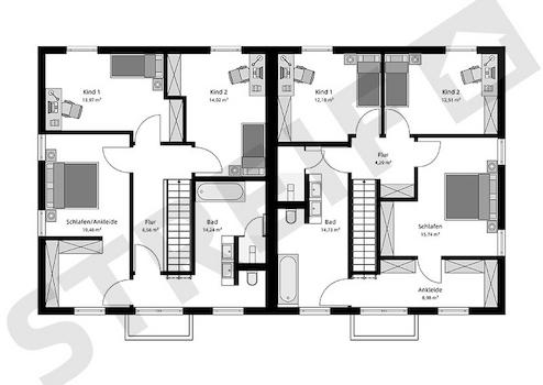
Die Architektur dieses Doppelhauses mit einem eleganten Walmdach strahlt zeitlose Modernität aus. Die Grundrisse sind so konzipiert, dass großzügige und komfortable Räume entstehen. Der offene Wohn-/Ess-/Kochbereich bietet mit seinen 39 m² viel Platz und Helligkeit, dank einer Panorama-Hebeschiebetür und einer doppelflügeligen Terrassentür. Im Erdgeschoss befindet sich ein zusätzliches Zimmer, das flexibel als Homeoffice, Gästezimmer oder Schlafzimmer genutzt werden kann. Das Badezimmer im Erdgeschoss kann optional mit einer Dusche ausgestattet werden, was in Kombination mit dem Zusatzzimmer ein ebenerdiges Wohnen ermöglicht. Im Obergeschoss finden Sie einen Elternbereich mit Ankleidezimmer, zwei Kinderzimmern und ein geräumiges Bad. Aufgrund der Bauweise dieses Doppelhausentwurfs mit Walmdach ist es erforderlich, beide Haushälften gleichzeitig zu errichten.
Preisangaben beziehen sich auf eine Doppelhaushälfte.
Die Architektur dieses Doppelhauses mit einem eleganten Walmdach strahlt zeitlose Modernität aus. Die Grundrisse sind so konzipiert, dass großzügige und komfortable Räume entstehen. Der offene Wohn-/Ess-/Kochbereich bietet mit seinen 39 m² viel Platz und Helligkeit, dank einer Panorama-Hebeschiebetür und einer doppelflügeligen Terrassentür. Im Erdgeschoss befindet sich ein zusätzliches Zimmer, das flexibel als Homeoffice, Gästezimmer oder Schlafzimmer genutzt werden kann. Das Badezimmer im Erdgeschoss kann optional mit einer Dusche ausgestattet werden, was in Kombination mit dem Zusatzzimmer ein ebenerdiges Wohnen ermöglicht. Im Obergeschoss finden Sie einen Elternbereich mit Ankleidezimmer, zwei Kinderzimmern und ein geräumiges Bad. Aufgrund der Bauweise dieses Doppelhausentwurfs mit Walmdach ist es erforderlich, beide Haushälften gleichzeitig zu errichten.
Preisangaben beziehen sich auf eine Doppelhaushälfte.
Ausstattungsmerkmale
| Anzahl der Etagen im Haus | 2 |
| Bad | 1 |
| Terrassen | 1 |
| Barrierefrei |
STREIF-Energiespar-Häuser sind für die Effizienzhaus-Klasse 40* vorbereitet. (*In Abhängigkeit von Gebäudestandort, Gebäudeausrichtung, Fensterflächenanteile, Haustechnik usw. können zusätzliche oder abweichende Leistungen erforderlich werden, die im Zuge der Bauantragsbewertung/-erstellung bewertet werden.)
Gegen Aufpreis erstellen wir eine Ökobilanzierung für Ihr Haus nach QNG durch. Für das Erreichen der Vorgaben des Qualitätssiegels Nachhaltiges Gebäude (QNG) für eine Ökobilanzierung wird zusätzlich eine Photovoltaik-Anlage mit Batteriespeicher benötigt. Mit dem Erfüllen dieser und weiterer Anforderungen wird Ihr Haus nach den neuen KfW-Förderrichtlinien für den Klimafreundlichen Neubau (KFN) förderfähig.
Die Außenwände im Passiv-Haus-Standard und eine sparsame Heiztechnik mit integrierter Wohnraumlüftung und Wärmerückgewinnung, garantieren einen geringen Energieverbrauch und ein fantastisches Raumklima, das insbesondere Allergiker aufatmen lässt.
STREIF Leistungen sind MEHR WERT - schon im Grundpreis enthalten!
- 16-monatige Festpreisgarantie
- Inkl. individuelle Grundrissgestaltung und Raumaufteilung
- Inkl. gedämmte Fundamentplatte
- Inkl. STREIF-Luft-Luft-Wärmepumpen-Technologie mit integrierter Lüftungsanlage mit Wärmerückgewinnung
- Inkl. Haustür von KERA und Fenster von Porta/Kömmerling
- Inkl. Sanitärobjekte von Markenherstellern
- Inkl. Massivholz-Geschosstreppe aus eigener Produktion (entfällt bei Bungalow)
- Inkl. Elektroinstallation u. v. m.
- Inkl. Photovoltaikanlage 7,12 KWP
- Inkl. Batteriespeicher mit 7,70 KWH
Die hohe Wertigkeit und Langlebigkeit eines STREIF-Energiespar-Hauses wird durch zahlreiche Auszeichnungen, Qualitäts- und Gütesiegel unabhängiger Institute und Verbände dokumentiert.
Der Angebotspreis ist inklusive Grundstück und bezieht sich auf die Standard-Ausbaustufe Fast-Fertig-Plus. Ihre Eigenleistungen: Spachtel-,Tapezier- und Malerarbeiten, Bodenbeläge, Innentüren.
Baunebenkosten fallen zuzüglich an.
Der Verkauf des Grundstücks erfolgt über einen unserer Netzwerkpartner.
Bilder können evtl. Anbauteile, Carports, Balkone, Gauben usw. zeigen, die nicht im Angebotspreis enthalten sind. Änderungen und Irrtümer vorbehalten.
Gegen Aufpreis erstellen wir eine Ökobilanzierung für Ihr Haus nach QNG durch. Für das Erreichen der Vorgaben des Qualitätssiegels Nachhaltiges Gebäude (QNG) für eine Ökobilanzierung wird zusätzlich eine Photovoltaik-Anlage mit Batteriespeicher benötigt. Mit dem Erfüllen dieser und weiterer Anforderungen wird Ihr Haus nach den neuen KfW-Förderrichtlinien für den Klimafreundlichen Neubau (KFN) förderfähig.
Die Außenwände im Passiv-Haus-Standard und eine sparsame Heiztechnik mit integrierter Wohnraumlüftung und Wärmerückgewinnung, garantieren einen geringen Energieverbrauch und ein fantastisches Raumklima, das insbesondere Allergiker aufatmen lässt.
STREIF Leistungen sind MEHR WERT - schon im Grundpreis enthalten!
- 16-monatige Festpreisgarantie
- Inkl. individuelle Grundrissgestaltung und Raumaufteilung
- Inkl. gedämmte Fundamentplatte
- Inkl. STREIF-Luft-Luft-Wärmepumpen-Technologie mit integrierter Lüftungsanlage mit Wärmerückgewinnung
- Inkl. Haustür von KERA und Fenster von Porta/Kömmerling
- Inkl. Sanitärobjekte von Markenherstellern
- Inkl. Massivholz-Geschosstreppe aus eigener Produktion (entfällt bei Bungalow)
- Inkl. Elektroinstallation u. v. m.
- Inkl. Photovoltaikanlage 7,12 KWP
- Inkl. Batteriespeicher mit 7,70 KWH
Die hohe Wertigkeit und Langlebigkeit eines STREIF-Energiespar-Hauses wird durch zahlreiche Auszeichnungen, Qualitäts- und Gütesiegel unabhängiger Institute und Verbände dokumentiert.
Der Angebotspreis ist inklusive Grundstück und bezieht sich auf die Standard-Ausbaustufe Fast-Fertig-Plus. Ihre Eigenleistungen: Spachtel-,Tapezier- und Malerarbeiten, Bodenbeläge, Innentüren.
Baunebenkosten fallen zuzüglich an.
Der Verkauf des Grundstücks erfolgt über einen unserer Netzwerkpartner.
Bilder können evtl. Anbauteile, Carports, Balkone, Gauben usw. zeigen, die nicht im Angebotspreis enthalten sind. Änderungen und Irrtümer vorbehalten.
Sonstige Informationen
Zur Realisierung des Bauvorhabens und zur Bezugsfertigkeit des Gebäudes kommen zzgl. noch Baunebenkosten und Fertigstellungskosten.
Karte wird geladen...
Objektstandort
69181 Leimen
Lage & Infrastruktur
Objektstandort
69181 Leimen
Leimen ist eine historisch bedeutsame und moderne Wohngemeinde in der Metropolregion Rhein-Neckar. Die Gemeinde besteht aus den Ortsteilen Leimen, St. Ilgen, Gauangelloch, Ochsenbach und Lingental.
Die Bundesstraße B3 durchquert Leimen und die Nachbarschaft zu Heidelberg sorgt für kurze Wege. Die Straßenbahnlinie 24 stellt eine direkte und bequeme Anbindung an Heidelberg und das dortige S-Bahn-Netz sicher.
Leimen ist ein traditionsreicher Weinbauort, der auf eine lange Geschichte zurückblickt. Die Weinberge prägen das Landschaftsbild und tragen zum besonderen Flair der Bergstraßen-Gemeinde bei. Die historische Altstadt und das Rathaus in einem Palais im klassizistischen Stil zeugen von der langen Stadtgeschichte. Das Stadtmuseum Leimen in St. Ilgen dokumentiert die Ortsgeschichte. 1998 wurde Leimen zur Europastadt ernannt. International bekannt wurde Leimen durch den Tennis-Olympiasieger und Wimbledon-Gewinner Boris Becker, der Ehrenbürger seiner Heimatstadt ist.
Die umliegende Landschaft, insbesondere die Hänge der Bergstraße und die Kraichgauer Hügel, bieten ausgedehnte Wander- und Radwege mit schönen Ausblicken auf die Rheinebene. Die Alla Hopp! Bewegungs- und Begegnungsanlage in St. Ilgen ist ein beliebter Treffpunkt für alle Generationen. Mit Sportvereinen, der Musikschule Leimen und vielen weiteren ehrenamtlichen Vereinigungen, die zur Gemeinschaft beitragen, ist das Vereinsleben Leimens sehr aktiv.
Kindertagesstätten und Kindergärten sorgen für die Betreuung der jüngsten Bürgerinnen und Bürger. Grundschulen sowie weiterführende Schulen sind ebenfalls vorhanden. Verschiedene Pflege- und Betreuungseinrichtungen stellen die Versorgung aller Generationen sicher.
Leimen gilt aufgrund der unmittelbaren Nachbarschaft zu Heidelberg und der guten Verkehrsanbindung als begehrter Wohnort.
Die Bundesstraße B3 durchquert Leimen und die Nachbarschaft zu Heidelberg sorgt für kurze Wege. Die Straßenbahnlinie 24 stellt eine direkte und bequeme Anbindung an Heidelberg und das dortige S-Bahn-Netz sicher.
Leimen ist ein traditionsreicher Weinbauort, der auf eine lange Geschichte zurückblickt. Die Weinberge prägen das Landschaftsbild und tragen zum besonderen Flair der Bergstraßen-Gemeinde bei. Die historische Altstadt und das Rathaus in einem Palais im klassizistischen Stil zeugen von der langen Stadtgeschichte. Das Stadtmuseum Leimen in St. Ilgen dokumentiert die Ortsgeschichte. 1998 wurde Leimen zur Europastadt ernannt. International bekannt wurde Leimen durch den Tennis-Olympiasieger und Wimbledon-Gewinner Boris Becker, der Ehrenbürger seiner Heimatstadt ist.
Die umliegende Landschaft, insbesondere die Hänge der Bergstraße und die Kraichgauer Hügel, bieten ausgedehnte Wander- und Radwege mit schönen Ausblicken auf die Rheinebene. Die Alla Hopp! Bewegungs- und Begegnungsanlage in St. Ilgen ist ein beliebter Treffpunkt für alle Generationen. Mit Sportvereinen, der Musikschule Leimen und vielen weiteren ehrenamtlichen Vereinigungen, die zur Gemeinschaft beitragen, ist das Vereinsleben Leimens sehr aktiv.
Kindertagesstätten und Kindergärten sorgen für die Betreuung der jüngsten Bürgerinnen und Bürger. Grundschulen sowie weiterführende Schulen sind ebenfalls vorhanden. Verschiedene Pflege- und Betreuungseinrichtungen stellen die Versorgung aller Generationen sicher.
Leimen gilt aufgrund der unmittelbaren Nachbarschaft zu Heidelberg und der guten Verkehrsanbindung als begehrter Wohnort.
Kontaktanfrage senden
Über den Anbieter
STREIF Haus GmbH
Josef-Streif-Straße 1
54595 Weinsheim
Kontakt
| Telefon | +49 176 43417486 |
| Website | www.streif.de |
Ansprechpartner/in
Achim Machmeier
Weitere Angebote des Anbieters
20
Sehr schöne Stadtvilla in erstklassiger Lage von St. ...
Haus
66386 St. Ingbert
Viel Platz und von Licht erfüllte Räume bietet diese traumhafte Stadtvilla. Im Erdgeschoss bildet der offen gestaltete Wohn-, Ess- und Kochbereich mit 49 m² das Herzstück des Hauses. Der gesamte Wohnbereich wird von ...
608.000 €
Kaufpreis
186 m²
Wohnfläche
5
Zimmer
30
STREIF baut Euer perfektes Zuhause
Haus
76707 Hambrücken
Das zweieinhalbgeschossige Mehrfamilienhaus mit zwei Wohnungen überzeugt mit einer klassisch eleganten Architektur mit Satteldach und zwei behaglichen Terrassen. Der Hausentwurf kann mit Stahlbalkonen an der ...
1.293.936 €
Kaufpreis
358 m²
Wohnfläche
18
Zimmer
30
STREIF baut Euer perfektes Zuhause
Haus
76707 Hambrücken
Das zweigeschossige Mehrfamilienhaus mit zwei Wohnungen überzeugt mit einer klassisch eleganten Architektur mit Walmdach und zwei behaglichen Terrassen. Der Hausentwurf kann mit Stahlbalkonen an der Gartenseite ...
1.139.664 €
Kaufpreis
301 m²
Wohnfläche
18
Zimmer
30
STREIF baut Euer perfektes Zuhause
Haus
76707 Hambrücken
Das zweigeschossige Mehrfamilienhaus mit zwei Wohnungen überzeugt mit einer klassisch eleganten Architektur mit Walmdach und einer behaglichen Terrasse. Der Hausentwurf kann mit einem Carport und einer darüberliegenden ...
828.414 €
Kaufpreis
186 m²
Wohnfläche
10
Zimmer
17
STREIF baut Euer perfektes Zuhause
Haus
76707 Hambrücken
STREIF-Villa 4: Exklusives Wohnen mit Flachdach, zwei Erkern, Galerie und Dachterrasse Der Entwurf der exklusiven STREIF-Villa 4 bietet seinen Bewohnern zahlreiche luxuriöse Merkmale, darunter eine zweigeschossige ...
950.650 €
Kaufpreis
210 m²
Wohnfläche
8
Zimmer