Spannendes Projekt: Umbaufähige Scheune mit großem Grundstück!
270.000 €
Kaufpreis
167,91 m²
Wohnfläche
53 m²
Nutzfläche
5
Zimmer
immobilien.de Nr.: 9533270
Objektnummer: 3883
Kaufpreis
| Kaufpreis | 270.000 € |
| Maklerprovision | 2,975% |
| Stellplatz Garage Kaufpreis | 0 € |
Wohnfläche, Grundstück & Bausubstanz
| Wohnfläche | 167,91 m² |
| Nutzfläche | 53 m² |
| Grundstücksfläche | 1.129 m² |
| Zimmer | 5 |
| Baujahr | 1905 |
| Verfügbar ab | nach Absprache |
Beschreibung der Immobilie
Zum Verkauf steht eine Scheune in Emsdetten-Hembergen auf einem über 1.100m² großem Grundstück. Die Scheune kann zu einem modernen Einfamilienhaus umgebaut werden. Eine positive Bauvoranfrage der Stadt liegt bereits vor, sodass die grundsätzliche Umsetzbarkeit bereits bestätigt ist.
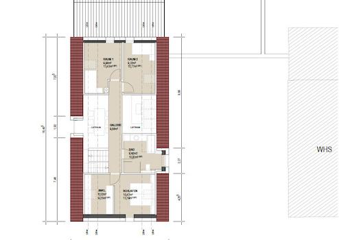
Insgesamt sind ca. 170 m² Wohnfläche realisierbar und bieten damit ideale Voraussetzungen für ein großzügiges Wohnen in einem Haus mit historischem Charakter. Ein Grundrisskonzept wurde mit der Bauvoranfrage bereits eingereicht. Im Erdgeschoss befindet sich hierbei ein komfortabler Wohnbereich mit Zugang zur Terrasse und einer angeschlossenen Küche inklusive Esszimmer. Zudem findet man hier ein separates Gäste-WC, sowie einen geräumigen Hauswirtschaftsraum.
Im Obergeschoss lassen sich mindestens drei Schlafzimmer und ein geräumiges Badezimmer erstellen. Somit bietet die Immobilie auch für die Familie mit mindestens einem Kind ausreichend Fläche. Die genaue Umsetzung muss im Rahmen des Baugenehmigungsverfahrens nach dem Kauf mit der Stadt Emsdetten besprochen werden.
Zum Angebot gehört ebenfalls eine eigene Garage und weitere Abstellmöglichkeiten in einem ca. 35 m² großen Anbau. Dieses Objekt richtet sich an Käufer, die etwas "Besonderes" suchen und sich mit Kreativität ein Unikat erschaffen möchten. Die Scheune bietet eine seltene Möglichkeit modernen Wohnraum mit besonderem Charme zu entwickeln. Zusätzlich bietet das sehr großzügige Grundstück einen passenden Rahmen für dieses ehemalige landwirtschaftliche Gebäude.
Insgesamt sind ca. 170 m² Wohnfläche realisierbar und bieten damit ideale Voraussetzungen für ein großzügiges Wohnen in einem Haus mit historischem Charakter. Ein Grundrisskonzept wurde mit der Bauvoranfrage bereits eingereicht. Im Erdgeschoss befindet sich hierbei ein komfortabler Wohnbereich mit Zugang zur Terrasse und einer angeschlossenen Küche inklusive Esszimmer. Zudem findet man hier ein separates Gäste-WC, sowie einen geräumigen Hauswirtschaftsraum.
Im Obergeschoss lassen sich mindestens drei Schlafzimmer und ein geräumiges Badezimmer erstellen. Somit bietet die Immobilie auch für die Familie mit mindestens einem Kind ausreichend Fläche. Die genaue Umsetzung muss im Rahmen des Baugenehmigungsverfahrens nach dem Kauf mit der Stadt Emsdetten besprochen werden.
Zum Angebot gehört ebenfalls eine eigene Garage und weitere Abstellmöglichkeiten in einem ca. 35 m² großen Anbau. Dieses Objekt richtet sich an Käufer, die etwas "Besonderes" suchen und sich mit Kreativität ein Unikat erschaffen möchten. Die Scheune bietet eine seltene Möglichkeit modernen Wohnraum mit besonderem Charme zu entwickeln. Zusätzlich bietet das sehr großzügige Grundstück einen passenden Rahmen für dieses ehemalige landwirtschaftliche Gebäude.
Ausstattungsmerkmale
| Bad | 1 |
| Garage/Stellplätze | 1 |
Landwirtschaftliche Scheune aus dem Baujahr 1905:
+ Witterungsbeständige Klinkerfassade
+ Positive Bauvoranfrage zur Umnutzung in Wohnraum
+ ca. 170 m² Wohnfläche möglich
+ Zusätzlich eine Garage und 35 m² Anbau für Fahrräder und Gartengeräte
+ Über 1.100 m² Grundstück
+ Terrasse mit Westausrichtung möglich
+ Badezimmer & separates Gäste-WC möglich
+ Großzügiger HWR
+ 3 separate Schlafräume möglich
+ Witterungsbeständige Klinkerfassade
+ Positive Bauvoranfrage zur Umnutzung in Wohnraum
+ ca. 170 m² Wohnfläche möglich
+ Zusätzlich eine Garage und 35 m² Anbau für Fahrräder und Gartengeräte
+ Über 1.100 m² Grundstück
+ Terrasse mit Westausrichtung möglich
+ Badezimmer & separates Gäste-WC möglich
+ Großzügiger HWR
+ 3 separate Schlafräume möglich
Sonstige Informationen
Ein spannendes Projekt, um sich den Traum von den eigenen vier Wänden zu erfüllen. Die Bauvoranfrage liefet die Rahmenbedingungen, die detaillierte Umsetzung ist im Zuge einer Baugenehmigung mit der Stadt Emsdetten abzustimmen.
Der Verkäufer wünscht, dass der Käufer die Hälfte der vereinbarten Provision übernimmt. Somit ist für den Käufer bei Vertragsabschluss eine Maklerprovision von 2,975% (inkl. UST) des beurkundeten Kaufpreises fällig. Diese Vereinbarung wird auch in den notariellen Kaufvertrag übernommen. Auf Wunsch der Eigentümer bitten wir von der direkten Kontaktaufnahme abzusehen und Unterlagen zum Haus sowie Besichtigungstermine nur über uns, Matzker Immobilien, anzufordern.
Bitte haben Sie Verständnis, dass wir aufgrund der Nachweispflicht gegenüber dem Eigentümer und gesetzlicher Bestimmungen (Geldwäschegesetz) nur Anfragen mit vollständiger Nennung Ihres Namens, Ihrer Anschrift und einer Rückrufmöglichkeit bearbeiten können. Nachdem Sie uns Ihre Daten bekannt gegeben haben, übersenden wir Ihnen gerne ein Exposé oder vereinbaren mit Ihnen einen Besichtigungstermin.
Der Verkäufer wünscht, dass der Käufer die Hälfte der vereinbarten Provision übernimmt. Somit ist für den Käufer bei Vertragsabschluss eine Maklerprovision von 2,975% (inkl. UST) des beurkundeten Kaufpreises fällig. Diese Vereinbarung wird auch in den notariellen Kaufvertrag übernommen. Auf Wunsch der Eigentümer bitten wir von der direkten Kontaktaufnahme abzusehen und Unterlagen zum Haus sowie Besichtigungstermine nur über uns, Matzker Immobilien, anzufordern.
Bitte haben Sie Verständnis, dass wir aufgrund der Nachweispflicht gegenüber dem Eigentümer und gesetzlicher Bestimmungen (Geldwäschegesetz) nur Anfragen mit vollständiger Nennung Ihres Namens, Ihrer Anschrift und einer Rückrufmöglichkeit bearbeiten können. Nachdem Sie uns Ihre Daten bekannt gegeben haben, übersenden wir Ihnen gerne ein Exposé oder vereinbaren mit Ihnen einen Besichtigungstermin.
Karte wird geladen...
Objektstandort
48282 Emsdetten / Hembergen
Lage & Infrastruktur
Objektstandort
48282 Emsdetten / Hembergen
Das Haus befindet sich im Stadtteil Hembergen in ruhiger Lage. Emsdetten-Hembergen verbindet ländliche Ruhe mit einer angenehmen Nähe zur Innenstadt von Emsdetten. Der charmante Ortsteil überzeugt durch seine naturnahe Umgebung, gewachsene Nachbarschaften und eine hohe Wohnqualität. Wer ein ruhiges und familienfreundliches Wohnumfeld mit guter Anbindung schätzt, findet in Hembergen einen besonders attraktiven Lebensmittelpunkt.
Emsdetten mit ca. 36.000 Einwohnern, im Herzen des Kreises Steinfurt gelegen, erfreut sich immer größerer Beliebtheit. Der Stadtkern bietet mit seinen attraktiven Einkaufsmöglichkeiten und den zwei Markttagen ein reizvolles Flair. Neben einem Kino verfügt die Stadt auch über eine belebte Gastronomie. Die EMS-HALLE, eine der größten Veranstaltungshallen der Region ist regelmäßig Bühne für Top-Veranstaltungen aus Musik, Theater, Sport und Comedy. Genießen Sie per Rad, Pferd, oder zu Fuß die unberührte Natur im Emsdettener Venn. Die Ems mit den Emsauen ist eine gute Basis für eine Kanutour. Außerdem zeichnet sich Emsdetten durch eine hervorragende Verkehrsanbindung aus. Die Universitätsstadt Münster und die Stadt Rheine liegen in unmittelbarer Nähe, mit der Deutschen Bahn sind Sie schnell am Ziel. Auch die Städte Osnabrück und Enschede sind durch die verkehrsgünstige Lage schnell erreicht. Zum internationalen Flughafen Münster/Osnabrück brauchen Sie nur ca. 15 Autominuten.
Emsdetten mit ca. 36.000 Einwohnern, im Herzen des Kreises Steinfurt gelegen, erfreut sich immer größerer Beliebtheit. Der Stadtkern bietet mit seinen attraktiven Einkaufsmöglichkeiten und den zwei Markttagen ein reizvolles Flair. Neben einem Kino verfügt die Stadt auch über eine belebte Gastronomie. Die EMS-HALLE, eine der größten Veranstaltungshallen der Region ist regelmäßig Bühne für Top-Veranstaltungen aus Musik, Theater, Sport und Comedy. Genießen Sie per Rad, Pferd, oder zu Fuß die unberührte Natur im Emsdettener Venn. Die Ems mit den Emsauen ist eine gute Basis für eine Kanutour. Außerdem zeichnet sich Emsdetten durch eine hervorragende Verkehrsanbindung aus. Die Universitätsstadt Münster und die Stadt Rheine liegen in unmittelbarer Nähe, mit der Deutschen Bahn sind Sie schnell am Ziel. Auch die Städte Osnabrück und Enschede sind durch die verkehrsgünstige Lage schnell erreicht. Zum internationalen Flughafen Münster/Osnabrück brauchen Sie nur ca. 15 Autominuten.
Kontaktanfrage senden
Über den Anbieter
Matzker Immobilien
Bahnhofstr. 1
48282 Emsdetten
Kontakt
| Telefon | 004917685966868 |
| Mobil | 004917685966868 |
| Website | www.matzker-immobilien.de |
Ansprechpartner/in
Herr Leon Gleim
Weitere Angebote des Anbieters
10
Spannendes Projekt: Umbaufähige Scheune mit großem ...
Haus
48282 Emsdetten / Hembergen
Zum Verkauf steht eine Scheune in Emsdetten-Hembergen auf einem über 1.100m² großem Grundstück. Die Scheune kann zu einem modernen Einfamilienhaus umgebaut werden. Eine positive Bauvoranfrage der Stadt liegt bereits ...
270.000 €
Kaufpreis
167,91 m²
Wohnfläche
5
Zimmer
9
Schöne 3-Zimmerwohnung in ruhiger Lage!
Wohnung
48282 Emsdetten
Sehr gut aufgeteilte 3-Zimmerwohnung mit eigenem kleinen Balkon in einem ruhigem Mehrfamilienhaus. Aufgeteilt mit Wohn-Esszimmer, Balkon, Küche, Diele mit Einbauschrank, Schlafzimmer, Arbeitszimmer, Duschbad mit WC. ...
645 €
Kaltmiete
67 m²
Wohnfläche
3
Zimmer
25
Zweifamilienhaus mit viel Platz und traumhaftem Garten! ...
Haus
48282 Emsdetten / Hembergen
Dieses großzügige Zweifamilienhaus in Emsdetten-Hembergen bietet mit ca. 311 m² Wohnfläche auf insgesamt drei Etagen ein vielseitiges Raumangebot. Es eignet sich für großzügiges Wohnen, Mehrgenerationen, reine ...
428.000 €
Kaufpreis
311,35 m²
Wohnfläche
10
Zimmer
3
Grundstück für großzügiges Wohnen in bevorzugter Lage
Grundstück
48282 Emsdetten
Dieses Grundstück liegt in einer Baulücke, umgeben von gepflegten und hochwertigen Ein-/Zweifamilienhäusern. Es eignet sich ideal für eine Familie oder zwei Generationen, die sich den Traum vom Eigenheim erfüllen ...
465.000 €
Kaufpreis
1.305 m²
Grundstücksfläche
4
Baugrundstück in begehrter Lage!
Grundstück
48282 Emsdetten
Dieses Grundstück liegt in einer Baulücke, umgeben von gepflegten und hochwertigen Ein-/Zweifamilienhäusern. Es eignet sich ideal für eine Familie oder zwei Generationen, die sich den Traum vom Eigenheim erfüllen ...
225.000 €
Kaufpreis
626 m²
Grundstücksfläche