Mehrfamilienhaus in zentraler Lage mit 500.000 € KfW Darlehen zu 0,76%
1.925.000 €
Kaufpreis
302,79 m²
Wohnfläche
15
Zimmer
immobilien.de Nr.: 9529418
Objektnummer: 440099
Kaufpreis
| Kaufpreis | 1.925.000 € |
| Maklerprovision | keine Provision, courtagefrei |
Wohnfläche, Grundstück & Bausubstanz
| Wohnfläche | 302,79 m² |
| Grundstücksfläche | 510 m² |
| Zimmer | 15 |
| Baujahr | 2026 |
| Verfügbar ab | 01.07.2027 |
| Zustand | Erstbezug |
Energie
| Heizungsart | Fußbodenheizung |
| Energieträger/Befeuerung | Elektro |
Beschreibung der Immobilie
Dieses attraktive Neubauprojekt in der Lohstraße 12 in Deggendorf bietet eine hervorragende Gelegenheit für Kapitalanleger, in ein nachhaltiges und zukunftssicheres Wohninvestment zu investieren.
Errichtet wird ein modernes Mehrfamilienhaus im energieeffizienten KfW-55-Standard mit insgesamt fünf Wohneinheiten und einer Gesamtwohnfläche von ca. 300 m². Die durchdachte Aufteilung in zwei Erdgeschosswohnungen sowie drei großzügige Maisonettewohnungen spricht eine breite Mieterzielgruppe an und sorgt für eine nachhaltige Vermietbarkeit.
Die Einheiten überzeugen durch helle Wohnbereiche, funktionale Grundrisse sowie attraktive Außenflächen wie Terrassen und Balkone. Die hochwertige Bauweise in Kombination mit moderner Haustechnik gewährleistet nicht nur niedrige Betriebskosten, sondern auch eine langfristige Wertstabilität der Immobilie.
Für Kapitalanleger besonders interessant:
* Attraktive und marktgerechte Mietansätze mit solidem Renditepotenzial
* Energieeffiziente Bauweise für langfristig geringe Nebenkosten
* KfW-Förderdarlehen (übertragbar auf den Käufer)
* Geplante Fertigstellung bis 2027
* Inklusive Erstvermietung
Abgerundet wird das Angebot durch Carport- und Außenstellplätze sowie eine ruhige, dennoch zentral gelegene Wohnlage mit guter Anbindung an das Stadtzentrum und die Infrastruktur von Deggendorf.
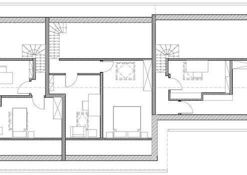
Die Wohnungen sind wie folgt aufgeteilt:
Wohnung Nr. 1 - 2-Zimmer Wohnung - EG - 51,53 m²
Wohnung Nr. 2 - 2-Zimmer Wohnung - EG - 34,46 m²
Wohnung Nr. 3 - 4-Zimmer Wohnung - 1. + 2. OG - 73,79 m²
Wohnung Nr. 4 - 3-Zimmer Wohnung - 1. + 2. OG - 63,03 m²
Wohnung Nr. 5 - 4-Zimmer Wohnung - 1. + 2. OG - 79,88 m²
Die Wohneinheiten lassen sich aktuell zu marktgerechten Kaltmieten von ca. 14,00 € bis 16,00 € pro m² vermieten. Ergänzt wird das attraktive Mietpotenzial durch zwei Carportstellplätze mit jeweils 70 € monatlich sowie fünf Außenstellplätze zu je 50 € monatlich.
Insgesamt ergibt sich daraus eine monatliche Mieteinnahme von rund 4.781,03 €, was einer Bruttomietrendite von ca. 3 % entspricht.
Für alle 5 Wohnungen wurden bereits KfW Darlehen aus dem Programm 296, mit einer Laufzeit von 11-25 Jahren, einer tilgungsfreien Anlaufzeit von 1-3 Jahren und einem effektiven Zinssatz in Höhe von 0,76% beantragt. Diese werden nach Abschluss des Bauvorhabens auf den Käufer übertragen.
Errichtet wird ein modernes Mehrfamilienhaus im energieeffizienten KfW-55-Standard mit insgesamt fünf Wohneinheiten und einer Gesamtwohnfläche von ca. 300 m². Die durchdachte Aufteilung in zwei Erdgeschosswohnungen sowie drei großzügige Maisonettewohnungen spricht eine breite Mieterzielgruppe an und sorgt für eine nachhaltige Vermietbarkeit.
Die Einheiten überzeugen durch helle Wohnbereiche, funktionale Grundrisse sowie attraktive Außenflächen wie Terrassen und Balkone. Die hochwertige Bauweise in Kombination mit moderner Haustechnik gewährleistet nicht nur niedrige Betriebskosten, sondern auch eine langfristige Wertstabilität der Immobilie.
Für Kapitalanleger besonders interessant:
* Attraktive und marktgerechte Mietansätze mit solidem Renditepotenzial
* Energieeffiziente Bauweise für langfristig geringe Nebenkosten
* KfW-Förderdarlehen (übertragbar auf den Käufer)
* Geplante Fertigstellung bis 2027
* Inklusive Erstvermietung
Abgerundet wird das Angebot durch Carport- und Außenstellplätze sowie eine ruhige, dennoch zentral gelegene Wohnlage mit guter Anbindung an das Stadtzentrum und die Infrastruktur von Deggendorf.
Die Wohnungen sind wie folgt aufgeteilt:
Wohnung Nr. 1 - 2-Zimmer Wohnung - EG - 51,53 m²
Wohnung Nr. 2 - 2-Zimmer Wohnung - EG - 34,46 m²
Wohnung Nr. 3 - 4-Zimmer Wohnung - 1. + 2. OG - 73,79 m²
Wohnung Nr. 4 - 3-Zimmer Wohnung - 1. + 2. OG - 63,03 m²
Wohnung Nr. 5 - 4-Zimmer Wohnung - 1. + 2. OG - 79,88 m²
Die Wohneinheiten lassen sich aktuell zu marktgerechten Kaltmieten von ca. 14,00 € bis 16,00 € pro m² vermieten. Ergänzt wird das attraktive Mietpotenzial durch zwei Carportstellplätze mit jeweils 70 € monatlich sowie fünf Außenstellplätze zu je 50 € monatlich.
Insgesamt ergibt sich daraus eine monatliche Mieteinnahme von rund 4.781,03 €, was einer Bruttomietrendite von ca. 3 % entspricht.
Für alle 5 Wohnungen wurden bereits KfW Darlehen aus dem Programm 296, mit einer Laufzeit von 11-25 Jahren, einer tilgungsfreien Anlaufzeit von 1-3 Jahren und einem effektiven Zinssatz in Höhe von 0,76% beantragt. Diese werden nach Abschluss des Bauvorhabens auf den Käufer übertragen.
Ausstattungsmerkmale
| Anzahl der Etagen im Haus | 3 |
| Küche | Einbauküche |
| Bad | Dusche |
| Boden | Fliesen, Kunststoff |
| Balkone | 1 |
| Terrassen | 1 |
| Carport | 2 |
Balkon, Terrasse, Duschbad, Einbauküche, Fliesen
Bemerkungen:
Die Wohnungen werden mit hochwertigen Fliesen sowie einem modernen Vinylboden ausgestattet und überzeugen durch eine zeitlose, ansprechende Innenausstattung.
Jede Einheit verfügt zudem über eine stilvolle Einbauküche inklusive Elektrogeräten, die den Wohnkomfort zusätzlich unterstreicht.
Da sich das Mehrfamilienhaus derzeit noch in der Bauphase befindet, besteht für Käufer die attraktive Möglichkeit, individuelle Ausstattungswünsche einzubringen und die Innenausstattung nach eigenen Vorstellungen mitzugestalten.
Bemerkungen:
Die Wohnungen werden mit hochwertigen Fliesen sowie einem modernen Vinylboden ausgestattet und überzeugen durch eine zeitlose, ansprechende Innenausstattung.
Jede Einheit verfügt zudem über eine stilvolle Einbauküche inklusive Elektrogeräten, die den Wohnkomfort zusätzlich unterstreicht.
Da sich das Mehrfamilienhaus derzeit noch in der Bauphase befindet, besteht für Käufer die attraktive Möglichkeit, individuelle Ausstattungswünsche einzubringen und die Innenausstattung nach eigenen Vorstellungen mitzugestalten.
Sonstige Informationen
Heizungsart: Fußbodenheizung
Energieträger: Strom
Energieausweis nicht vorhanden
Der Kaufpreis ist erst nach vollständiger Fertigstellung des Objektes fällig.
ohne-makler (OM) ist weder Anbieter noch Vermittler der Immobilie. OM betreibt eine Plattform für Immobilieneigentümer, die unter anderem die gleichzeitige Veröffentlichung einzelner Inserate auf mehreren Immobilienportalen ermöglicht. Die Inhalte dieser Inserate werden ausschließlich von Dritten verantwortet. Für die Richtigkeit, Vollständigkeit oder Rechtmäßigkeit der Angaben übernimmt OM keine Haftung. Hinweise auf mögliche Rechtsverstöße können jederzeit gemeldet werden und werden nach Prüfung umgehend bearbeitet.
Energieträger: Strom
Energieausweis nicht vorhanden
Der Kaufpreis ist erst nach vollständiger Fertigstellung des Objektes fällig.
ohne-makler (OM) ist weder Anbieter noch Vermittler der Immobilie. OM betreibt eine Plattform für Immobilieneigentümer, die unter anderem die gleichzeitige Veröffentlichung einzelner Inserate auf mehreren Immobilienportalen ermöglicht. Die Inhalte dieser Inserate werden ausschließlich von Dritten verantwortet. Für die Richtigkeit, Vollständigkeit oder Rechtmäßigkeit der Angaben übernimmt OM keine Haftung. Hinweise auf mögliche Rechtsverstöße können jederzeit gemeldet werden und werden nach Prüfung umgehend bearbeitet.
Karte wird geladen...
Objektstandort
Lohstraße 12
94469 Deggendorf
- Bayern
Lage & Infrastruktur
Objektstandort
Lohstraße 12
94469 Deggendorf
- Bayern
Die Immobilie befindet sich in Deggendorf, einem wirtschaftlich starken und nachhaltig wachsenden Standort in Niederbayern mit kontinuierlich hoher Nachfrage nach Wohnraum.
Als etablierter Hochschul- und Wirtschaftsstandort bietet Deggendorf eine stabile Mieterstruktur sowie hervorragende Voraussetzungen für eine langfristig sichere Vermietung.
Das nahegelegene Autobahnkreuz der A3 und A92 ermöglicht eine schnelle Erreichbarkeit sowohl regionaler als auch überregionaler Ziele und macht den Standort besonders interessant für Berufspendler.
Die Mikrolage in der Lohstraße überzeugt durch eine ruhige, gewachsene Wohnumgebung mit überwiegend moderner Bebauung.
Gleichzeitig profitieren Bewohner von der Nähe zum Stadtzentrum, welches in wenigen Minuten erreichbar ist und eine umfassende Infrastruktur mit Einkaufsmöglichkeiten, Gastronomie, medizinischer Versorgung sowie Anbindungen an den öffentlichen Nahverkehr bietet.
Infrastruktur (im Umkreis von 5 km):
Apotheke, Lebensmittel-Discount, Allgemeinmediziner, Kindergarten, Grundschule, Hauptschule, Realschule, Gymnasium, Gesamtschule, Öffentliche Verkehrsmittel
Als etablierter Hochschul- und Wirtschaftsstandort bietet Deggendorf eine stabile Mieterstruktur sowie hervorragende Voraussetzungen für eine langfristig sichere Vermietung.
Das nahegelegene Autobahnkreuz der A3 und A92 ermöglicht eine schnelle Erreichbarkeit sowohl regionaler als auch überregionaler Ziele und macht den Standort besonders interessant für Berufspendler.
Die Mikrolage in der Lohstraße überzeugt durch eine ruhige, gewachsene Wohnumgebung mit überwiegend moderner Bebauung.
Gleichzeitig profitieren Bewohner von der Nähe zum Stadtzentrum, welches in wenigen Minuten erreichbar ist und eine umfassende Infrastruktur mit Einkaufsmöglichkeiten, Gastronomie, medizinischer Versorgung sowie Anbindungen an den öffentlichen Nahverkehr bietet.
Infrastruktur (im Umkreis von 5 km):
Apotheke, Lebensmittel-Discount, Allgemeinmediziner, Kindergarten, Grundschule, Hauptschule, Realschule, Gymnasium, Gesamtschule, Öffentliche Verkehrsmittel
Kontaktanfrage senden
Über den Anbieter
OM PropTech GmbH
Humboldtstraße 25a
21509 Glinde
Kontakt
| Telefon | - |
| Fax | - |
| Website | www.ohne-makler.net |
Ansprechpartner/in
Privat von Maximilian Motz
Weitere Angebote des Anbieters
5
Möblierte 1 Zimmer Wohnung mit Einbauküche und ...
Wohnung
96052 Bamberg
WILLKOMMEN IN DEN SUN SHINE LOFTS! Stellen Sie sich vor, Sie werden Teil eines der innovativsten Stadtentwicklungsprojekte Europas! Auf dem Gelände der ehemaligen Lagarde-Kaserne in Bamberg, die über 69 Jahre lang Teil ...
559 €
Kaltmiete (netto)
32,55 m²
Wohnfläche
1
Zimmer
16
Erstbezug: 2 bis 4 Zimmer Wohnungen ab 750,- Kaltmiete ...
Wohnung
56269 Dierdorf
Tolle 2 bis 4-Zimmer Wohnungen in Energieeffizientem KFW55 Haus, Fußbodenheizung, zentrale Luft-Wärmepumpe, kontrollierte Wohnraumlüftung durch dezentrale in den Wohnungen installierte, moderne Einbauküchen in ...
750 €
Kaltmiete (netto)
55 m²
Wohnfläche
2
Zimmer
50
Außergewöhnlich gepflegter Resthof mit zwei ...
Haus
24816 Luhnstedt
Dieser außergewöhnlich gepflegte Resthof richtet sich an Käufer mit Anspruch, die Wert auf Substanz, Großzügigkeit und flexible Nutzungsmöglichkeiten legen. In ruhiger, ländlicher Lage in Luhnstedt bietet dieses ...
429.000 €
Kaufpreis
268,4 m²
Wohnfläche
6
Zimmer
22
Moderne Büroflächen ab 32–90 m² | barrierefrei | 9 ...
Büro / Praxen
44149 Dortmund
Moderne Büroflächen in einem vollständig modernisierten Gebäude (ehemalige Sparkasse) in Dortmund-Oespel. Das Objekt wurde im Jahr 2026 umfassend erneuert und bietet eine moderne und funktionale Arbeitsumgebung für ...
663 €
Kaltmiete (netto)
460 m²
Gesamtfläche
15
Große, helle 1 Zimmer Wohnung in Souterrain
Wohnung
70619 Stuttgart
Das 1983 gebaute Haus wurde 2026 mit einem Vollwärmeschutz versehen, die Fassade neu gestrichen und die Fenster mit einer 3-fach Verglasung erneuert . Der Energieausweis wird gerade neu erstellt. Die großzügig ...
610 €
Kaltmiete (netto)
48 m²
Wohnfläche
1
Zimmer