Freistehendes Familienhaus langfristig zu vermieten in Frankfurt-Riedberg
4.450 €
Kaltmiete (netto)
226 m²
Wohnfläche
11
Zimmer
immobilien.de Nr.: 9528719
Objektnummer: 439989
Mietpreis & Nebenkosten
| Kaltmiete (netto) | 4.450 € |
| Nebenkosten | Keine Angabe |
| Kaution | 13.500 € |
Wohnfläche, Grundstück & Bausubstanz
| Wohnfläche | 226 m² |
| Grundstücksfläche | 450 m² |
| Zimmer | 11 |
| Baujahr | 2011 |
| Verfügbar ab | 01.08.2026 |
| Zustand | Neuwertig |
Energie
| Energieausweistyp | Bedarfsausweis |
| Energieeffizienzklasse | A |
| Endenergiebedarf | 40 |
| Heizungsart | Fußbodenheizung |
Beschreibung der Immobilie
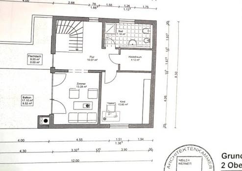
Sie suchen ein großzügiges Zuhause für Ihre Familie in bester Lage? Dann ist dieses freistehende Familienhaus genau das Richtige für Sie! Das 2011 erbaute Haus erstreckt sich über drei Etagen und bietet Ihnen sowie Ihrer Familie auf einer Wohnfläche von 226 m² und einer Nutzfläche von 51 m² ausreichend Platz zum Wohnen und Wohlfühlen.
Ausstattung:
- Wohnfläche: 226 m²
- Nutzfläche: 51 m²
- Grundstück: 450 m²
- Heizung: Fußbodenheizung für ein angenehmes Raumklima
- Schlafräume: Zwei große Schlafzimmer mit Ankleideräumen
- Büros: Zwei Bürozimmer für Home-Office oder kreative Projekte
- Kinderzimmer: Drei helle Kinderzimmer für Spiel und Spaß
- Badezimmer: Drei moderne Badezimmer plus Gäste-WC
- Keller: Drei große Kellerräume, darunter ein spezieller Raum für Home Video, sowie ein Hauswirtschaftsraum (HWR) und ein Haustechnikraum (HAR) für optimale Nutzungsmöglichkeiten
- Wohnküche: Große Wohnküche mit eingebauter Küche und ausreichend Platz für gemeinsame Familientreffen
- Garage: Mit dazugehörigem Stellplatz für Ihr Auto
Möblierung:
Das Haus wird teil-möbliert vermietet, was bedeutet, dass die eingebaute Küche, die Schränke in den Ankleideräumen sowie die Möbel im Eingangsbereich im Mietpreis enthalten sind. Sie brauchen sich also um essentielle Einrichtungen keine Sorgen machen.
Ausstattung:
- Wohnfläche: 226 m²
- Nutzfläche: 51 m²
- Grundstück: 450 m²
- Heizung: Fußbodenheizung für ein angenehmes Raumklima
- Schlafräume: Zwei große Schlafzimmer mit Ankleideräumen
- Büros: Zwei Bürozimmer für Home-Office oder kreative Projekte
- Kinderzimmer: Drei helle Kinderzimmer für Spiel und Spaß
- Badezimmer: Drei moderne Badezimmer plus Gäste-WC
- Keller: Drei große Kellerräume, darunter ein spezieller Raum für Home Video, sowie ein Hauswirtschaftsraum (HWR) und ein Haustechnikraum (HAR) für optimale Nutzungsmöglichkeiten
- Wohnküche: Große Wohnküche mit eingebauter Küche und ausreichend Platz für gemeinsame Familientreffen
- Garage: Mit dazugehörigem Stellplatz für Ihr Auto
Möblierung:
Das Haus wird teil-möbliert vermietet, was bedeutet, dass die eingebaute Küche, die Schränke in den Ankleideräumen sowie die Möbel im Eingangsbereich im Mietpreis enthalten sind. Sie brauchen sich also um essentielle Einrichtungen keine Sorgen machen.
Ausstattungsmerkmale
| Anzahl der Etagen im Haus | 3 |
| Küche | Einbauküche |
| Bad | 3 |
| Bad | Dusche, Wanne |
| Boden | Fliesen, Parkett |
| Balkone | 1 |
| Garten | |
| Terrassen | 1 |
| Garage/Stellplätze | 1 |
| Keller |
Balkon, Terrasse, Wintergarten, Garten, Keller, Vollbad, Duschbad, Einbauküche, Gäste-WC, Parkett, Fliesen
Sonstige Informationen
Heizungsart: Fußbodenheizung
Makleranfragen nicht erwünscht. Nach § 7 UWG sind unaufgeforderte Kontaktaufnahmen durch Makler ohne ausdrückliche Einwilligung des Empfängers verboten!
ohne-makler (OM) ist weder Anbieter noch Vermittler der Immobilie. OM betreibt eine Plattform für Immobilieneigentümer, die unter anderem die gleichzeitige Veröffentlichung einzelner Inserate auf mehreren Immobilienportalen ermöglicht. Die Inhalte dieser Inserate werden ausschließlich von Dritten verantwortet. Für die Richtigkeit, Vollständigkeit oder Rechtmäßigkeit der Angaben übernimmt OM keine Haftung. Hinweise auf mögliche Rechtsverstöße können jederzeit gemeldet werden und werden nach Prüfung umgehend bearbeitet.
Makleranfragen nicht erwünscht. Nach § 7 UWG sind unaufgeforderte Kontaktaufnahmen durch Makler ohne ausdrückliche Einwilligung des Empfängers verboten!
ohne-makler (OM) ist weder Anbieter noch Vermittler der Immobilie. OM betreibt eine Plattform für Immobilieneigentümer, die unter anderem die gleichzeitige Veröffentlichung einzelner Inserate auf mehreren Immobilienportalen ermöglicht. Die Inhalte dieser Inserate werden ausschließlich von Dritten verantwortet. Für die Richtigkeit, Vollständigkeit oder Rechtmäßigkeit der Angaben übernimmt OM keine Haftung. Hinweise auf mögliche Rechtsverstöße können jederzeit gemeldet werden und werden nach Prüfung umgehend bearbeitet.
Karte wird geladen...
Objektstandort
Ottilie Widermuth Weg 2
60438 Frankfurt am Main
- Hessen
Lage & Infrastruktur
Objektstandort
Ottilie Widermuth Weg 2
60438 Frankfurt am Main
- Hessen
Das Familienhaus befindet sich in einer ruhigen und freundlichen Nachbarschaft im Herzen von Frankfurt Rietberg Zentrum. Die strategische Lage ermöglicht Ihnen schnellen Zugang zu den Autobahnanschlüssen, wodurch Sie mühelos in die umliegenden Städte und Regionen gelangen. Der Frankfurter Flughafen ist in kürzester Zeit erreichbar, sodass Sie internationale Reisen bequem und zeitsparend planen können. Trotz der Nähe zum Flughafen sind Sie von Flugverkehr keinesfalls beeinträchtigt – hier genießen Sie eine ruhige Wohnatmosphäre.
Genießen Sie die Vorteile einer ausgezeichneten Infrastruktur, denn die U-Bahn-Station ist nur 150 Meter entfernt und somit bequem zu Fuß erreichbar. Für Ihre alltäglichen Bedürfnisse finden Sie in der näheren Umgebung zahlreiche Schulen, Kindergärten, Einkaufsmöglichkeiten, Arztpraxen und Banken. Die lebendige Umgebung bietet alles, was Sie für ein entspanntes Familienleben benötigen.
Ob Sie die ruhigen Straßen mit Ihren Kindern erkunden oder die nahegelegenen Grünflächen für Outdoor-Aktivitäten nutzen möchten, hier fühlen Sie sich schnell zu Hause.
Fazit:
Dieses großzügige Familienhaus bietet nicht nur ein komfortables Zuhause, sondern auch eine ideale Lage mit allem, was das Herz begehrt. Lassen Sie sich diese Gelegenheit nicht entgehen und vereinbaren Sie noch heute einen Besichtigungstermin!
Infrastruktur (im Umkreis von 5 km):
Apotheke, Allgemeinmediziner, Kindergarten, Grundschule, Hauptschule, Realschule, Gymnasium, Gesamtschule, Öffentliche Verkehrsmittel
Genießen Sie die Vorteile einer ausgezeichneten Infrastruktur, denn die U-Bahn-Station ist nur 150 Meter entfernt und somit bequem zu Fuß erreichbar. Für Ihre alltäglichen Bedürfnisse finden Sie in der näheren Umgebung zahlreiche Schulen, Kindergärten, Einkaufsmöglichkeiten, Arztpraxen und Banken. Die lebendige Umgebung bietet alles, was Sie für ein entspanntes Familienleben benötigen.
Ob Sie die ruhigen Straßen mit Ihren Kindern erkunden oder die nahegelegenen Grünflächen für Outdoor-Aktivitäten nutzen möchten, hier fühlen Sie sich schnell zu Hause.
Fazit:
Dieses großzügige Familienhaus bietet nicht nur ein komfortables Zuhause, sondern auch eine ideale Lage mit allem, was das Herz begehrt. Lassen Sie sich diese Gelegenheit nicht entgehen und vereinbaren Sie noch heute einen Besichtigungstermin!
Infrastruktur (im Umkreis von 5 km):
Apotheke, Allgemeinmediziner, Kindergarten, Grundschule, Hauptschule, Realschule, Gymnasium, Gesamtschule, Öffentliche Verkehrsmittel
Kontaktanfrage senden
Über den Anbieter
OM PropTech GmbH
Humboldtstraße 25a
21509 Glinde
Kontakt
| Telefon | - |
| Fax | - |
| Website | www.ohne-makler.net |
Ansprechpartner/in
Privat von Marina Ludwig
Weitere Angebote des Anbieters
5
Möblierte 1 Zimmer Wohnung mit Einbauküche und ...
Wohnung
96052 Bamberg
WILLKOMMEN IN DEN SUN SHINE LOFTS! Stellen Sie sich vor, Sie werden Teil eines der innovativsten Stadtentwicklungsprojekte Europas! Auf dem Gelände der ehemaligen Lagarde-Kaserne in Bamberg, die über 69 Jahre lang Teil ...
559 €
Kaltmiete (netto)
32,55 m²
Wohnfläche
1
Zimmer
16
Erstbezug: 2 bis 4 Zimmer Wohnungen ab 750,- Kaltmiete ...
Wohnung
56269 Dierdorf
Tolle 2 bis 4-Zimmer Wohnungen in Energieeffizientem KFW55 Haus, Fußbodenheizung, zentrale Luft-Wärmepumpe, kontrollierte Wohnraumlüftung durch dezentrale in den Wohnungen installierte, moderne Einbauküchen in ...
750 €
Kaltmiete (netto)
55 m²
Wohnfläche
2
Zimmer
50
Außergewöhnlich gepflegter Resthof mit zwei ...
Haus
24816 Luhnstedt
Dieser außergewöhnlich gepflegte Resthof richtet sich an Käufer mit Anspruch, die Wert auf Substanz, Großzügigkeit und flexible Nutzungsmöglichkeiten legen. In ruhiger, ländlicher Lage in Luhnstedt bietet dieses ...
429.000 €
Kaufpreis
268,4 m²
Wohnfläche
6
Zimmer
22
Moderne Büroflächen ab 32–90 m² | barrierefrei | 9 ...
Büro / Praxen
44149 Dortmund
Moderne Büroflächen in einem vollständig modernisierten Gebäude (ehemalige Sparkasse) in Dortmund-Oespel. Das Objekt wurde im Jahr 2026 umfassend erneuert und bietet eine moderne und funktionale Arbeitsumgebung für ...
663 €
Kaltmiete (netto)
460 m²
Gesamtfläche
15
Große, helle 1 Zimmer Wohnung in Souterrain
Wohnung
70619 Stuttgart
Das 1983 gebaute Haus wurde 2026 mit einem Vollwärmeschutz versehen, die Fassade neu gestrichen und die Fenster mit einer 3-fach Verglasung erneuert . Der Energieausweis wird gerade neu erstellt. Die großzügig ...
610 €
Kaltmiete (netto)
48 m²
Wohnfläche
1
Zimmer