AIGNER - Charmantes Reiheneckhaus mit traumhaftem Blick über die Felder und die Berge
995.000 €
Kaufpreis
148,7 m²
Wohnfläche
4
Zimmer
immobilien.de Nr.: 9522134
Objektnummer: 43535
Kaufpreis
| Kaufpreis | 995.000 € |
| Maklerprovision | 3,57% |
Wohnfläche, Grundstück & Bausubstanz
| Wohnfläche | 148,7 m² |
| Grundstücksfläche | 247 m² |
| Zimmer | 4 |
| Baujahr | 1995 |
| Verfügbar ab | Nach Vereinbarung |
Energie
| Heizungsart | Zentralheizung |
| Energieträger/Befeuerung | Gas |
Beschreibung der Immobilie
Das charmante Reiheneckhaus aus dem Jahr 1995 überzeugt mit einer durchdachten Raumaufteilung, einem idyllischen Garten und einem unverbaubaren Blick auf die Felder bis hin zu den Alpen.
Der Eingangsbereich führt in die einladende Wohnküche, die Platz für gemeinsame Mahlzeiten bietet. Daneben befindet sich das gemütliche Wohnzimmer mit Kamin, das zur Terrasse hin geöffnet wird – ideal für entspannte Stunden im Freien.
Auf der ersten Etage liegen zwei Zimmer, die als Schlafzimmer, Büro oder Gästezimmer genutzt werden können, sowie ein Duschbad und ein weiteres Badezimmer mit Badewanne – perfekt für Familien.
Im Dachgeschoss erwartet Sie ein lichtdurchflutetes Studio, welches aktuell als Schlafbereich mit Büro genutzt wird. Alternativ können hier, durch den Einzug einer Wand, zwei separate Räume geschaffen werden.
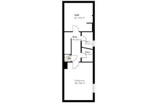
Der Kellerbereich ist ein weiteres Highlight: Der großzügige Hobbykeller mit Fußbodenheizung und Fenster bietet zahlreiche Nutzungsmöglichkeiten. So kann dieser als Fitnessraum, Kinoraum, Gästezimmer, Büro, als Stauraum oder für verschiedene andere Aktivitäten genutzt werden. Der Waschkeller ist hochwertig ausgestattet und bietet alles, was man für eine komfortable Nutzung benötigt, einschließlich einer Dusche. Zusätzlich gibt es zwei praktische Abstellräume.
Die Immobilie verfügt zudem über eine separate Garage, einen Außenstellplatz direkt vor dem Haus und einen praktischen Geräteschuppen für zusätzlichen Stauraum im Garten.
Zwei Balkone bieten einen atemberaubenden Weitblick und laden zum Entspannen in der Natur ein.
Dieses Reiheneckhaus ist mehr als nur ein Haus – es ist ein Ort der Ruhe und Geborgenheit, ideal für Familien, die ein großzügiges, modernes und naturnahes Zuhause suchen.
Der Eingangsbereich führt in die einladende Wohnküche, die Platz für gemeinsame Mahlzeiten bietet. Daneben befindet sich das gemütliche Wohnzimmer mit Kamin, das zur Terrasse hin geöffnet wird – ideal für entspannte Stunden im Freien.
Auf der ersten Etage liegen zwei Zimmer, die als Schlafzimmer, Büro oder Gästezimmer genutzt werden können, sowie ein Duschbad und ein weiteres Badezimmer mit Badewanne – perfekt für Familien.
Im Dachgeschoss erwartet Sie ein lichtdurchflutetes Studio, welches aktuell als Schlafbereich mit Büro genutzt wird. Alternativ können hier, durch den Einzug einer Wand, zwei separate Räume geschaffen werden.
Der Kellerbereich ist ein weiteres Highlight: Der großzügige Hobbykeller mit Fußbodenheizung und Fenster bietet zahlreiche Nutzungsmöglichkeiten. So kann dieser als Fitnessraum, Kinoraum, Gästezimmer, Büro, als Stauraum oder für verschiedene andere Aktivitäten genutzt werden. Der Waschkeller ist hochwertig ausgestattet und bietet alles, was man für eine komfortable Nutzung benötigt, einschließlich einer Dusche. Zusätzlich gibt es zwei praktische Abstellräume.
Die Immobilie verfügt zudem über eine separate Garage, einen Außenstellplatz direkt vor dem Haus und einen praktischen Geräteschuppen für zusätzlichen Stauraum im Garten.
Zwei Balkone bieten einen atemberaubenden Weitblick und laden zum Entspannen in der Natur ein.
Dieses Reiheneckhaus ist mehr als nur ein Haus – es ist ein Ort der Ruhe und Geborgenheit, ideal für Familien, die ein großzügiges, modernes und naturnahes Zuhause suchen.
Ausstattungsmerkmale
| Bad | 2 |
| Garage/Stellplätze | 1 |
| Keller |
* Schönes Grundstück mit wunderschönen Blickachsen über die Felder bis in die Berge
* Großzügige Raumaufteilung mit idealem Grundriss für die ganze Familie
* Doppelverglaste Holzfenster
* Wohnzimmer mit Kamin
* Dachstudio mit Weitblick
* Duschbad
* Badzimmer mit Badewanne
* zwei Balkone mit wunderschönem Weitblick
* Terrasse
* außergewöhnlicher, hochwertig ausgestatteter Waschkeller
* Dusche im Waschkeller
* Praktischer Geräteschuppen für zusätzlichen Stauraum
* Garage plus zusätzlicher Außenstellplatz vor dem Haus
* neue Gasheizung 2018
* Schmutzwasserpumpentausch 2021
* Maler- und Parkettarbeiten im 2. Obergeschoss 2023
* Fassadenarbeiten (Schleifen und Neuanstrich) , Neuanstrich Fenster und Türen Herbst 2024
* Großzügige Raumaufteilung mit idealem Grundriss für die ganze Familie
* Doppelverglaste Holzfenster
* Wohnzimmer mit Kamin
* Dachstudio mit Weitblick
* Duschbad
* Badzimmer mit Badewanne
* zwei Balkone mit wunderschönem Weitblick
* Terrasse
* außergewöhnlicher, hochwertig ausgestatteter Waschkeller
* Dusche im Waschkeller
* Praktischer Geräteschuppen für zusätzlichen Stauraum
* Garage plus zusätzlicher Außenstellplatz vor dem Haus
* neue Gasheizung 2018
* Schmutzwasserpumpentausch 2021
* Maler- und Parkettarbeiten im 2. Obergeschoss 2023
* Fassadenarbeiten (Schleifen und Neuanstrich) , Neuanstrich Fenster und Türen Herbst 2024
Sonstige Informationen
Befeuerung/Energieträger: Gas
Heizungsart: Zentralheizung
Energiekennwert: 168 kWh/(m²*a)
Energieeffizienzklasse: F
Energieausweistyp: Verbrauchsausweis
Baujahr: 1995
Heizungsart: Zentralheizung
Energiekennwert: 168 kWh/(m²*a)
Energieeffizienzklasse: F
Energieausweistyp: Verbrauchsausweis
Baujahr: 1995
Karte wird geladen...
Objektstandort
82067 Schäftlarn
Lage & Infrastruktur
Objektstandort
82067 Schäftlarn
Die Immobilie befindet sich im Isartal in einer einzigartigen, idyllischen Ortsrandlage in Ebenhausen, einem Ortsteil der oberbayerischen Gemeinde Schäftlarn im Landkreis München.
Schäftlarn ist vor allem für sein gleichnamiges Kloster berühmt, das bis heute zu einem der schönsten und bedeutendsten in Bayern zählt. Das Kloster ist nicht nur ein beliebtes Ausflugsziel und beherbergt einen beliebten Biergarten, sondern bietet ebenfalls ein renommiertes Gymnasium.
Ebenfalls sind neben der Privatschule St. Anna Colleg (Grundschule und Gymnasium) auch eine staatliche Grundschule in Schäftlarn und das staatliche Rainer-Maria-Rilke-Gymnasium in Icking zu finden.
Geschäfte des täglichen Bedarfs, wie Apotheke, Rossmann, Edeka, Brownie & Kleid, Post, Reinigungswäscherei, Buchhandlung etc. sind im Ort zu finden.
Die fußläufig, in wenigen Minuten erreichbare S-Bahn-Haltestelle in Ebenhausen ermöglicht den Zustieg in die Züge der Linie S7 Richtung Wolfratshausen und München. In 34 Minuten gelangt man mit der S-Bahn in die Münchner Innenstadt.
Mit dem Auto ist man wahlweise über die Bundesstraße 11 oder die A95 München-Garmisch ebenfalls in kürzester Zeit in München und auch überregional optimal angebunden.
Das Isartal und der nahe gelegene Starnberger See bieten eine Vielzahl an Freizeitmöglichkeiten. Direkt bei Ihrem neuen Zuhause oder in der nahen Umgebung finden Sie Möglichkeiten zum Fahrradfahren, Reiten, Golfen, Wandern oder Segeln.
Das Grundstück grenzt im Osten direkt an die Felder und Wiesen an. Somit gelangt man direkt in die Natur: Sei es für einen ausgiebigen Spaziergang oder eine entspannte Runde zum beliebten nahegelegenen "Tempelchen", welches einen traumhaften Blick ins Isartal und bis in die Berge bietet.
Genießen Sie die Kombination von Stadtnähe, Natur vor der Haustür und einem ganz besonderen Freizeitwert im schönen Isartal!
Schäftlarn ist vor allem für sein gleichnamiges Kloster berühmt, das bis heute zu einem der schönsten und bedeutendsten in Bayern zählt. Das Kloster ist nicht nur ein beliebtes Ausflugsziel und beherbergt einen beliebten Biergarten, sondern bietet ebenfalls ein renommiertes Gymnasium.
Ebenfalls sind neben der Privatschule St. Anna Colleg (Grundschule und Gymnasium) auch eine staatliche Grundschule in Schäftlarn und das staatliche Rainer-Maria-Rilke-Gymnasium in Icking zu finden.
Geschäfte des täglichen Bedarfs, wie Apotheke, Rossmann, Edeka, Brownie & Kleid, Post, Reinigungswäscherei, Buchhandlung etc. sind im Ort zu finden.
Die fußläufig, in wenigen Minuten erreichbare S-Bahn-Haltestelle in Ebenhausen ermöglicht den Zustieg in die Züge der Linie S7 Richtung Wolfratshausen und München. In 34 Minuten gelangt man mit der S-Bahn in die Münchner Innenstadt.
Mit dem Auto ist man wahlweise über die Bundesstraße 11 oder die A95 München-Garmisch ebenfalls in kürzester Zeit in München und auch überregional optimal angebunden.
Das Isartal und der nahe gelegene Starnberger See bieten eine Vielzahl an Freizeitmöglichkeiten. Direkt bei Ihrem neuen Zuhause oder in der nahen Umgebung finden Sie Möglichkeiten zum Fahrradfahren, Reiten, Golfen, Wandern oder Segeln.
Das Grundstück grenzt im Osten direkt an die Felder und Wiesen an. Somit gelangt man direkt in die Natur: Sei es für einen ausgiebigen Spaziergang oder eine entspannte Runde zum beliebten nahegelegenen "Tempelchen", welches einen traumhaften Blick ins Isartal und bis in die Berge bietet.
Genießen Sie die Kombination von Stadtnähe, Natur vor der Haustür und einem ganz besonderen Freizeitwert im schönen Isartal!
Kontaktanfrage senden
Über den Anbieter
Aigner Immobilien GmbH
Ruffinistr. 26
80637 München
Kontakt
| Telefon | +498151 650640 |
| Fax | (089) 17 87 87 88 |
| Website | www.aigner-immobilien.de |
Ansprechpartner/in
Frau Lisa Hartauer
Weitere Angebote des Anbieters
11
AIGNER - Garten-Oase in Starnberg: Exklusives ...
Wohnung
82319 Starnberg
In sehr ruhiger Lage von Starnberg erwartet Sie diese barrierefreie Gartenwohnung, die modernes Design mit gemütlichem Flair vereint. Diese Wohnung ist komplett von der Straße abgewandt. Herzstück ist der offen ...
1.090.000 €
Kaufpreis
138,7 m²
Wohnfläche
4
Zimmer
9
AIGNER - Platz für Familie und Geschäft: Haus mit ...
Haus
80995 München
Dieses charmante Einfamilienhaus aus dem Jahr 1940 liegt auf einem ca. 536 m² großen Grundstück und bietet mit einer Wohnfläche von ca. 85 m² viel Potenzial für individuelle Gestaltung und Nutzung. Es vereint den ...
650.000 €
Kaufpreis
85,03 m²
Wohnfläche
4
Zimmer
1
AIGNER - Großes Grundstück mit Altbestand in ...
Haus
81827 München
Das angebotene Grundstück mit ca. 632 m² ist derzeit mit einem Einfamilienhaus aus den 1960er Jahren bebaut (K+E+1). Die Bebaubarkeit richtet sich nach § 30 Abs. 3 BauGB in Form einer straßenbegleitenden Baulinie mit 5 ...
0 €
Kaufpreis
112 m²
Wohnfläche
4,5
Zimmer
11
AIGNER - Ihr neues Zuhause: Lichtdurchflutete ...
Wohnung
81827 München
Die hier angebotene, großzügige 3,5-Zimmer-Galeriewohnung mit einer Wohn-/ Nutzfläche von ca. 111 m² befindet sich im Dachgeschoss eines 2018 erbauten, gepflegten Mehrparteienhauses. Schon beim Betreten spürt man das ...
977.000 €
Kaufpreis
111,35 m²
Wohnfläche
3,5
Zimmer
11
AIGNER - Stilvolle Großzügigkeit in Bestlage – ...
Haus
81247 München
In einer der gefragtesten Wohnlagen Münchens befindet sich dieses gepflegte Einfamilienhaus aus dem Baujahr 2003. Die Immobilie verfügt über ca. 187 m² Wohnfläche und steht auf einem rund 545 m² großen Grundstück mit ...
1.950.000 €
Kaufpreis
187 m²
Wohnfläche
6,5
Zimmer