***Bungalow mit Potenzial-Gestalten Sie Ihr Traumhaus- Jetzt mit Klinkeraktion!***
545.870,2 €
Kaufpreis
107,43 m²
Wohnfläche
25 m²
Nutzfläche
3
Zimmer
immobilien.de Nr.: 9521328
Objektnummer: KR260319_238WB
Kaufpreis
| Kaufpreis | 545.870,2 € |
| Stellplatz Garage Kaufpreis | 150.000 € |
Wohnfläche, Grundstück & Bausubstanz
| Wohnfläche | 107,43 m² |
| Nutzfläche | 25 m² |
| Grundstücksfläche | 684 m² |
| Zimmer | 3 |
| Baujahr | 2026 |
| Verfügbar ab | 2026 |
| Zustand | Projektiert |
Energie
| Energietyp | KfW-40 |
| Heizungsart | Zentralheizung |
| Energieträger/Befeuerung | Luft-Wärme-Pumpe |
Beschreibung der Immobilie
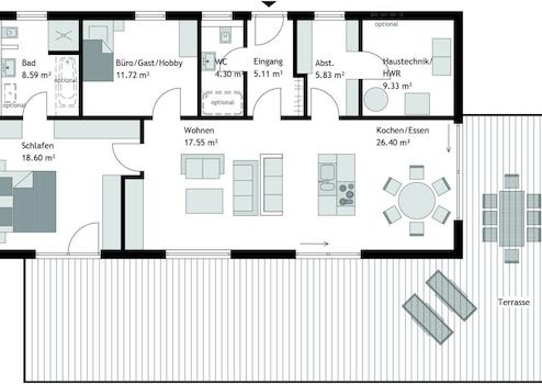
Willkommen zu Ihrem neuen Zuhause in Wendenburg / Neubrück - ein exklusiver Bungalow, der nach Ihren individuellen Wünschen projektiert wird. Mit einer großzügigen Wohnfläche von 107,43 m² und einem weitläufigen Grundstück von 688 m² bietet dieser Bungalow den idealen Raum für Ihre Träume. Der durchdachte Grundriss umfasst 3,0 Zimmer, darunter zwei komfortable Schlafzimmer und zwei luxuriöse Badezimmer, die mit Dusche, Wanne und Fenster ausgestattet sind. Ein zusätzliches Gäste-WC sorgt für noch mehr Komfort. Mit nur einer Etage ist dieser Bungalow perfekt für Menschen jeden Alters geeignet und ermöglicht barrierefreies Wohnen in einem modernen und stilvollen Umfeld.
Ausstattungsmerkmale
| Anzahl der Etagen im Haus | 1 |
| Küche | Offene Küche |
| Bad | 2 |
| Bad | Dusche, Wanne, Fenster |
| Boden | Fliesen, Laminat |
| Terrassen | 1 |
| Barrierefrei | |
| Garage/Stellplätze | 1 |
Die Ausstattung dieses Bungalows ist gehoben und besticht durch hochwertige Bodenbeläge aus Fliesen und Laminat - auf Wunsch können auch individuelle Bodenwünsche berücksichtigt werden. Diese Materialien sind nicht nur pflegeleicht und langlebig, sondern verleihen Ihrem Zuhause auch eine zeitlose Eleganz. Die Wärmepumpe als Befeuerungsart sorgt für eine umweltfreundliche und effiziente Energieversorgung, die den KFW40 Standard erfüllt. Das bedeutet für Sie niedrige Energiekosten bei gleichzeitig hohem Wohnkomfort.
Sonstige Informationen
Achtung: Klinkeraktion ist verlängert!
STREIF Haus - der Pionier der deutschen Fertighausbranche
Die langjährige Firmentradition des Unternehmens reicht bis in das Jahr 1929 zurück. In den 50er und 60er Jahren wurde in Deutschland schnell und viel Wohnraum für Familien benötigt, seitdem konzentrierte sich das Unternehmen auf die Entwicklung und Produktion von Fertighaustypen, die im Werk in großen Stückzahlen hergestellt werden konnten. So kann das Unternehmen auf 90.000 gebaute Hausobjekte zurückblicken und sich zu Recht als Pionier der deutschen Fertighausbranche bezeichnen.
Die neuen Energiesparhäuser - So baut man heute.
Unser Anspruch ist es, in enger Partnerschaft mit unseren Kunden langlebige Häuser zu bauen, mit einer hohen architektonischen Qualität, individuell geplant und dabei energieeffizient und ressourcenschonend. Jedes STREIF-Haus ist einzigartig und wird speziell für jeden Kunden "maßgeschneidert" und gebaut. Passend zu den persönlichen Wünschen, dem vorgegebenen Budget und dem vorhandenen Grundstück planen und bauen wir jedes Haus mit viel Liebe zum Detail.
STREIF Haus - der Pionier der deutschen Fertighausbranche
Die langjährige Firmentradition des Unternehmens reicht bis in das Jahr 1929 zurück. In den 50er und 60er Jahren wurde in Deutschland schnell und viel Wohnraum für Familien benötigt, seitdem konzentrierte sich das Unternehmen auf die Entwicklung und Produktion von Fertighaustypen, die im Werk in großen Stückzahlen hergestellt werden konnten. So kann das Unternehmen auf 90.000 gebaute Hausobjekte zurückblicken und sich zu Recht als Pionier der deutschen Fertighausbranche bezeichnen.
Die neuen Energiesparhäuser - So baut man heute.
Unser Anspruch ist es, in enger Partnerschaft mit unseren Kunden langlebige Häuser zu bauen, mit einer hohen architektonischen Qualität, individuell geplant und dabei energieeffizient und ressourcenschonend. Jedes STREIF-Haus ist einzigartig und wird speziell für jeden Kunden "maßgeschneidert" und gebaut. Passend zu den persönlichen Wünschen, dem vorgegebenen Budget und dem vorhandenen Grundstück planen und bauen wir jedes Haus mit viel Liebe zum Detail.
Karte wird geladen...
Objektstandort
38176 Wendenburg
Lage & Infrastruktur
Objektstandort
38176 Wendenburg
Dieser traumhafte Bungalow befindet sich in einem ruhigen Wohngebiet von Wendenburg / Neubrück. Die Umgebung bietet alles, was das Herz begehrt: Einkaufsmöglichkeiten, einen Kindergarten sowie einen Spielplatz für die Kleinen. Hier können Sie die Ruhe genießen und sind dennoch bestens an die Infrastruktur angebunden.
Kontaktanfrage senden
Über den Anbieter
STREIF Haus GmbH
Josef-Streif-Straße 1
54595 Weinsheim
Kontakt
| Telefon | 06551 12 00 |
| Mobil | +49 174 6403310 |
| Website | www.streif.de |
Ansprechpartner/in
Herr Andreas Maurer
Weitere Angebote des Anbieters
33
***Zeitlos schön - Zweifamilienhaus als Investition ...
Haus
30659 Hannover
Das hier angebotene Haus hat eine Netto-Raumfläche von insgesamt ca. 220 m², Effizienzhaus-Klasse 40 plus, inkl. Photovoltaikanlage und Batteriespeicher. Der Haustyp GENERATION als Individuelle Planung bietet Ihnen ein ...
973.680 €
Kaufpreis
220 m²
Wohnfläche
8
Zimmer
38
***Zeitlos schön - Zweifamilienhaus als DHH_Zusammen ...
Haus
30659 Hannover
Das hier angebotene Haus hat eine Netto-Raumfläche von insgesamt ca. 155 m², Effizienzhaus-Klasse 40 plus, inkl. Photovoltaikanlage und Batteriespeicher. Es handelt sich um den Anteil rechts. Sie haben dann einen ...
597.380 €
Kaufpreis
160 m²
Wohnfläche
5
Zimmer
38
***Zeitlos schön - Zweifamilienhaus als DHH_Zusammen ...
Haus
30659 Hannover
Das hier angebotene Haus hat eine Netto-Raumfläche von insgesamt ca. 155 m², Effizienzhaus-Klasse 40 plus, inkl. Photovoltaikanlage und Batteriespeicher. Es handelt sich um den Anteil links. Der Haustyp DOPPELHAUS - so ...
597.380 €
Kaufpreis
160 m²
Wohnfläche
5
Zimmer
13
Stadtnah & grün wohnen
Haus
90480 Nürnberg
Auf 143 m² präsentiert sich das behagliche und moderne Familien-Zuhause. Im Obergeschoss punktet die Grundrissplanung mit zwei großen Kindernzimmern, einem Schlafzimmer mit Ankleide und einem Familienbad. Auf 40 m² ...
1.034.795 €
Kaufpreis
143 m²
Wohnfläche
5
Zimmer
7
Familienfreundlich & naturnah wohnen - Heroldsberg
Haus
90562 Heroldsberg
Erfüllen Sie sich Ihren Traum vom Wohnen! Der Wohn-/Ess- und Kochbereich bietet auf 34 m² viel Platz zum Wohnen und Leben. Ein Zusatzraum, der als Büro, Gäste- oder Hobbyraum genutzt werden kann, ermöglicht Ihnen eine ...
854.512 €
Kaufpreis
143 m²
Wohnfläche
5
Zimmer