Helle 2 Zi. Wohnung mit Balkon + Fahrstuhl + Einbauküche im Seebadcenter Wendorf.
390 €
Kaltmiete
640 €
Warmmiete
47,07 m²
Wohnfläche
2
Zimmer
immobilien.de Nr.: 9521124
Objektnummer: WHG 04
Mietpreis & Nebenkosten
| Kaltmiete | 390 € |
| Warmmiete | 640 € |
| Nebenkosten | 100 € |
| Heizkosten enthalten | Ja |
| Heizkosten | 150 € |
| Kaution | 1.170 € |
Wohnfläche, Grundstück & Bausubstanz
| Wohnfläche | 47,07 m² |
| Gesamtfläche | 47,07 m² |
| Zimmer | 2 |
| Baujahr | 2006 |
| Verfügbar ab | keine Angabe |
| Zustand | Gepflegt |
Energie
| Energieausweistyp | Verbrauch |
| Gültig bis | 2027-09-21 |
| Baujahr (laut Energieausweis) | 2006 |
| Energieeffizienzklasse | C |
| Energieverbrauchkennwert | 98.00 kWh/(m²*a) |
| Heizungsart | Zentralheizung |
| Wesentlicher Energieträger | Gas |
| Energieträger/Befeuerung | Gas |
Beschreibung der Immobilie
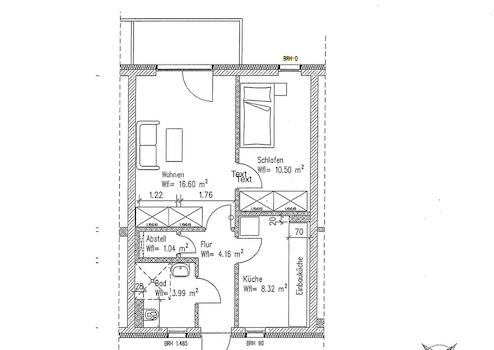
Im Jahr 2006 wurde der gepflegte Wohn- und Geschäftskomplex "Seebadzentrum Wendorf" in solider Bauweise errichtet. Das Objekt wird laufend instandgehalten und präsentiert sich in einem ansprechenden Zustand. Im Gebäudekomplex finden sich u.a. Mietwohnungen, ein Lebensmittelmarkt, ein Fitnessstudio sowie ein Seniorenpflegeheim.Im zweiten Obergeschoss des Hauses bieten wir Ihnen diese attraktive Wohnung zur Miete an. Auf das Wohnzimmer, Schlafzimmer, Küche, Duschbad, Diele und einen schönen Balkon verteilt sich die Gesamtwohnfläche von ca. 47,07 qm.
Die Wohnung ist gut belichtet und vermittelt ein angenehmes und freundliches Wohngefühl. In der Küche finden Sie eine Einbauküche, ein PKW Stellplatz kann zusätzlich angemietet werden. Die Wohnung erreichen Sie ganz bequem mit dem Fahrstuhl. Willkommen Zuhause.
Die Bilder wurden vor der letzten Vermietung gefertigt.
Die Wohnung ist gut belichtet und vermittelt ein angenehmes und freundliches Wohngefühl. In der Küche finden Sie eine Einbauküche, ein PKW Stellplatz kann zusätzlich angemietet werden. Die Wohnung erreichen Sie ganz bequem mit dem Fahrstuhl. Willkommen Zuhause.
Die Bilder wurden vor der letzten Vermietung gefertigt.
Ausstattungsmerkmale
| Anzahl der Etagen im Haus | 3 |
| Inserat befindet sich im Stockwerk | 1 |
| Küche | Einbauküche |
| Bad | 1 |
| Fahrstuhl |
+ 2 Zimmer
+ Fahrstuhl
+ isolierverglaste Fenster
+ Zentralheizung
+ Einbauküche
+ Balkon
+ PKW Stellplatz kann angemietet werden
Pflichtangaben gem. EnEV 2014
Energieausweistyp : Verbrauchsausweis
Hauptenergieträger : Erdgas
Baujahr gem. Energieausweis : 2006
Energieverbrauchskennwert : 98 kWh/(m2*a)
Warmwasser enthalten : ja
Energieeffizienzklasse : C
Energieausweis gültig bis : 21.09.2027
+ Fahrstuhl
+ isolierverglaste Fenster
+ Zentralheizung
+ Einbauküche
+ Balkon
+ PKW Stellplatz kann angemietet werden
Pflichtangaben gem. EnEV 2014
Energieausweistyp : Verbrauchsausweis
Hauptenergieträger : Erdgas
Baujahr gem. Energieausweis : 2006
Energieverbrauchskennwert : 98 kWh/(m2*a)
Warmwasser enthalten : ja
Energieeffizienzklasse : C
Energieausweis gültig bis : 21.09.2027
Karte wird geladen...
Objektstandort
23968 Wismar
- Mecklenburg-Vorpommern
Lage & Infrastruktur
Objektstandort
23968 Wismar
- Mecklenburg-Vorpommern
Wismar ist eine Hansestadt an der Ostsee zwischen den Hansestädten Lübeck und Rostock gelegen. Wismar hat ca. 46.000 Einwohner und eine Stadtgebietsfläche von ca. 41,6 km². Die zur Vermietung stehende Wohnung liegt im beliebten Wohnstadtteil Wendorf. Die Lage zeichnet sich durch eine sehr gute Infrastruktur aus. Einkaufsmöglichkeiten, Schulen, Restaurants und Ärzte finden sich im fußläufigen Bereich.
Auch das Seebad Wendorf mit der schönen Seebrücke, dem Yachthafen und dem beliebten Hotel Seeblick sind fußläufig oder ganz bequem mit dem Bus erreichbar. Die nächste Bushaltestelle findet sich in der unmittelbaren Nachbarschaft, mit dem Bus erreichen Sie die historische Altstadt oder den charmanten Wismarer Hafen. Rundum eine Lage die kaum Wünsche offen lässt.
Auch das Seebad Wendorf mit der schönen Seebrücke, dem Yachthafen und dem beliebten Hotel Seeblick sind fußläufig oder ganz bequem mit dem Bus erreichbar. Die nächste Bushaltestelle findet sich in der unmittelbaren Nachbarschaft, mit dem Bus erreichen Sie die historische Altstadt oder den charmanten Wismarer Hafen. Rundum eine Lage die kaum Wünsche offen lässt.
Kontaktanfrage senden
Weitere Angebote des Anbieters
8
Helle 2 Zi. Wohnung mit Balkon + Fahrstuhl + ...
Wohnung
23968 Wismar
Im Jahr 2006 wurde der gepflegte Wohn- und Geschäftskomplex "Seebadzentrum Wendorf" in solider Bauweise errichtet. Das Objekt wird laufend instandgehalten und präsentiert sich in einem ansprechenden Zustand. Im ...
390 €
Kaltmiete
47,07 m²
Wohnfläche
2
Zimmer
3
Toll geschnittene 2 Zi. Wohnung in der Altstadt.
Wohnung
23966 Wismar
Im ersten Obergeschoss des gepflegten Stadthauses bieten wir Ihnen diese gut geschnittene und gepflegte Wohnung zur Miete an. Die Wohnfläche von ca. 45 m² verteilt sich auf 2 Zimmer, Küche, Bad und den Wohnungsflur. Im ...
421 €
Kaltmiete
45 m²
Wohnfläche
2
Zimmer
5
Renditestarkes Wohn- und Geschäftshaus in Wismar – ...
Haus
23966 Wismar
Zum Verkauf steht ein liebevoll renoviertes und gepflegtes Wohn- und Geschäftshaus in attraktiver Lage von Wismar. Das Gebäude wurde in den 1930er Jahren auf einem ca. 344 m² großen Eigenlandgrundstück in solider, ...
750.000 €
Kaufpreis
511 m²
Wohnfläche
keine Angabe
Zimmer
8
Tolle Dachgeschosswohnung in Citylage sucht ...
Wohnung
39326 Wolmirstedt
Die angebotene 2-Zimmer Wohnung befindet sich in direkter Innenstadtlage von Wolmirstedt, im 3. Obergeschoss eines gepflegten Mehrfamilienhauses. Die Lage zeichnet sich durch eine ausgezeichnete Infrastruktur aus, alle ...
530 €
Kaltmiete (netto)
65,6 m²
Wohnfläche
2
Zimmer
9
Wohnen auf Zeit - Niedliche 3 Zi. Maisonette in der ...
Wohnung
23966 Wismar
Wir bieten Ihnen hier eine gut geschnittene Maisonette Wohnung in der Wismarer Altstadt zur Miete an. Das ursprüngliche Baujahr datiert nach vorliegenden Unterlagen auf das Jahr 1870. In den Jahren 2000/ 2001 erfolgte ...
1.300 €
Kaltmiete
59 m²
Wohnfläche
3
Zimmer