Vermietete Eigentumswohnung in Leipzig mit grünem Ausblick !!
115.000 €
Kaufpreis
57 m²
Wohnfläche
3
Zimmer
immobilien.de Nr.: 9508783
Objektnummer: 01KKEJJQEF48QT646KF7J227QX
Kaufpreis
| Kaufpreis | 115.000 € |
| Maklerprovision | 3.57% inkl. 19.00% MwSt. |
Wohnfläche, Grundstück & Bausubstanz
| Wohnfläche | 57 m² |
| Grundstücksfläche | 0 m² |
| Zimmer | 3 |
| Baujahr | 1925 |
| Verfügbar ab | keine Angabe |
Beschreibung der Immobilie
Zum Verkauf steht eine gepflegte und vermietete Eigentumswohnung in einer ruhigen und zentralen Wohnlage von Leipzig.
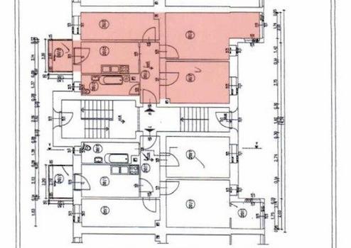
Ein guter Grundriss zeichnet die kleine 3 Zimmerwohnung aus und ist folgendermaßen aufgeteilt: Flur, Schlafzimmer, Bad mit Wanne und Fenster, Wohnzimmer, Kinder - oder Arbeitszimmer, Küche mit Einbauküche - Waschmaschine und Zugang zum Balkon.
Parkettboden und in der Küche / Bad gefliest.
Alle Zimmer sind vom Flur aus begehbar.
Zur Wohnung gehört noch ein Kellerabteil.
Die Kaltmiete beträgt : - 410 € -
Ein guter Grundriss zeichnet die kleine 3 Zimmerwohnung aus und ist folgendermaßen aufgeteilt: Flur, Schlafzimmer, Bad mit Wanne und Fenster, Wohnzimmer, Kinder - oder Arbeitszimmer, Küche mit Einbauküche - Waschmaschine und Zugang zum Balkon.
Parkettboden und in der Küche / Bad gefliest.
Alle Zimmer sind vom Flur aus begehbar.
Zur Wohnung gehört noch ein Kellerabteil.
Die Kaltmiete beträgt : - 410 € -
Ausstattungsmerkmale
Karte wird geladen...
Objektstandort
04347 Leipzig
Lage & Infrastruktur
Objektstandort
04347 Leipzig
Lage der Wohnung ist Nordost von Leipzig in Richtung Schönefeld.
Kontaktanfrage senden
Über den Anbieter
Golden Home Ltd & Co KG
Unter den Linden 10
10117 Berlin
Kontakt
| Telefon | 00491607411246 |
| Mobil | 00491607411246 |
Ansprechpartner/in
Lutz Bolduan
Weitere Angebote des Anbieters
15
Prachtvolle Villa mit Seeblick vereint Tradition und ...
Haus
86911 Dießen am Ammersee
Wo der See funkelt und das Herz ankommt – Ihr neues Zuhause. Hier verschmelzen Geschichte und Moderne. Das traumhaft schöne Einfamilienhaus ist wie folgt aufgebaut: ERDGESCHOSS: -Großer, heller Flur mit ausreichend ...
860.000 €
Kaufpreis
221,89 m²
Wohnfläche
4,5
Zimmer
9
Renditestarkes Investment im Zentrum von Wolfratshausen ...
Haus
82515 Wolfratshausen
Zum Verkauf steht ein gepflegtes Wohn- und Geschäftshaus in zentraler Lage von Wolfratshausen – ohne Sanierungsstau und mit attraktiver Rendite. Jährliche Gesamteinnahmen netto: 33.520 € Erdgeschoss: Vermietete ...
769.000 €
Kaufpreis
95 m²
Wohnfläche
4
Zimmer
20
Zauberhafte Perle in attraktiver Lage
Haus
85462 Eitting
In attraktiver Lage der Gemeinde Eitting entsteht derzeit ein hochwertiges Wohnobjekt, das modernes Design mit höchstem Wohnkomfort verbindet. Nur einen Katzensprung von der Herzogstadt Erding und dem Münchener ...
899.000 €
Kaufpreis
166 m²
Wohnfläche
6
Zimmer
4
Altbaujuwel für Liebhaber mit Balkon in Berlin-Charlott ...
Wohnung
10627 Berlin
Die renovierungsbedürftige Eigentumswohnung mit ca. 168,45 m² Wohnfläche befindet sich in der 2. Etage eines Mehrfamilienhauses. Das großzügige Wohnzimmer mit Ostbalkon verfügt über eine Flügeltür zu einem weiteren ...
763.000 €
Kaufpreis
168,45 m²
Wohnfläche
5,5
Zimmer
4
Klassische Altbau-Eigentumswohnung mit Balkon in ...
Wohnung
10627 Berlin
Diese zentrale 3-Zimmer-Eigentumswohnung mit ca. 107,79 m² wartet darauf, in neuem Glanz zu erstrahlen. Liebhaber klassischer Stilelemente werden begeistert sein: Hohe Decken mit elegantem Stuck, originale ...
673.000 €
Kaufpreis
107,79 m²
Wohnfläche
3
Zimmer