Wohnen am nördlichen Rand der Dübener Heide

130.000 €
Kaufpreis
200 m²
Wohnfläche
8
Zimmer
immobilien.de Nr.: 9507562 Objektnummer: 451214
01 Straßenfront
02 Hofansicht
03 Hofeingang
04 Westgiebel
05 EG-Wohnzimmer
06 EG-Küche groß
07 Personaltoilette mit Dusche
08 Saal
09 Nebengrundstück
10 LW-Fläche
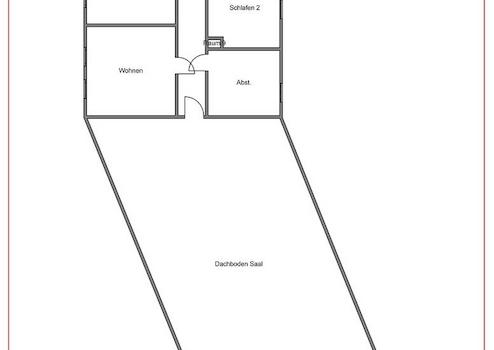
GARANT-GR-EG
GARANT-GR-OG
GARANT-GR-DG

Kaufpreis

Kaufpreis 130.000 €
Maklerprovision 3,57 % (inkl. MwSt.)

Wohnfläche, Grundstück & Bausubstanz

Wohnfläche 200 m²
Grundstücksfläche 4.199 m²
Zimmer 8
Baujahr 1905
Verfügbar ab sofort
Zustand Teil Vollrenovierungsbed

Energie

Energieausweistyp Bedarfsausweis
Ausstellungsdatum 20. 07. 2025
Baujahr (laut Energieausweis) 1905
Energieeffizienzklasse H
Endenergiebedarf 255.9
Heizungsart Ofen
Wesentlicher Energieträger Kohlekoks
Energieträger/Befeuerung Kohle

Beschreibung der Immobilie

Im Ortsteil Reuden der Gemeinde Kemberg wird ein renovierungsbedürftiges Einfamilienhaus mit Saal, Nebengrundstück und Landwirtschaftsfläche zum Verkauf angeboten. Beide Wohnbauflächen umfassen insgesamt ca. 4.199 qm, die Landwirtschaftsfläche ca. 5.922 qm.



Weitere Angebote unter www.GARANT-IMMO.de

Ausstattungsmerkmale

Anzahl der Etagen im Haus 2
 
Bad 1
Boden Fliesen, Dielen, Estrich
Das Wohnhaus mit Saal und Anbau (ca. 144 qm) diente früher als Veranstaltungsort für diverse Feiern. Entsprechend sind im Erdgeschoss eine große Küche, Abstellraum, Personal- sowie getrennte Damen- und Herrentoiletten vorhanden. Im Obergeschoss befinden sich weitere fünf Wohn- und Schlafzimmer sowie zwei Abstellkammern. Das Nebengrundstück ist nur mit einer alten Stallung bebaut.



Sonstige Informationen

Das Dach und die Fenster wurden 1995 modernisiert. In einigen Wohnräumen sind Öfen vorhanden. Die Abwasserentsorgung erfolgt über die zentrale Kanalisation. Beide Wohngrundstücke und die Landwirtschaftsfläche werden nur im Paket verkauft.
Karte wird geladen...
Objektstandort
06901 Kemberg

Lage & Infrastruktur

Reuden ist ein Ortsteil der Gemeinde Kemberg im Landkreis Wittenberg in Sachsen-Anhalt. Bis nach Kemberg mit Einkaufsmöglichkeiten des täglichen Bedarfs und Tankstelle sind es gut 2 km. Von dort aus gelangt man über die Bundesstraße B 2 in nördlicher Richtung in ca. 20 Minuten zur Lutherstadt Wittenberg. Fährt man die B 2 in südlicher Richtung, so erreicht man nach ca. 22 km Bad Düben an der Mulde mit Therme und Krankenhaus und nach ca. 50 km den nördlichen Ortseingang von Leipzig (Neue Messe/BAB A 14). In westlicher Richtung ist Dessau/Roßlau mit der AAS der A 9 nach ca. 30 km zu erreichen. Das staatlich anerkannte Moor-, Mineral- und Kneippheilbad Bad Schmiedeberg liegt ca. 18 km entfernt. Ein sehr beliebtes Erholungs- und Ausflugsziel ist der Bergwitzsee, welcher in nördlicher Richtung zu Fuß in ca. 1,7 km erreicht werden kann.

Kontaktanfrage senden

Über den Anbieter

Garant Immobilien AG
Wilhelmstr.5
70182 Stuttgart
Kontakt
Telefon 0341 583119-00
Fax 0341 583119-20
Website www.garant-immo.de
Ansprechpartner/in
Büro Leipzig
Weitere Anbieterdaten

Weitere Angebote des Anbieters

Charmantes Reihenmittelhaus mit Garten, Balkon & ...

Haus
Balkon Einbauküche
75180 Pforzheim
Willkommen in Ihrem neuen Zuhause! Dieses gepflegte Reihenmittelhaus aus dem Jahr 1983 überzeugt mit durchdachter Raumaufteilung, zwei Balkonen, einem kleinen Garten und vielen liebevoll durchgeführten Modernisierungen ...
320.000 €
Kaufpreis
102 m²
Wohnfläche
5
Zimmer

Wohnen am nördlichen Rand der Dübener Heide

Haus
06901 Kemberg
Im Ortsteil Reuden der Gemeinde Kemberg wird ein renovierungsbedürftiges Einfamilienhaus mit Saal, Nebengrundstück und Landwirtschaftsfläche zum Verkauf angeboten. Beide Wohnbauflächen umfassen insgesamt ca. 4.199 qm, ...
130.000 €
Kaufpreis
200 m²
Wohnfläche
8
Zimmer

Zuhause ankommen - Ihr neues Familienhaus in ...

Haus
86450 Altenmünster
Stellen Sie sich vor, wie Ihre Kinder im Garten spielen, während Sie auf der Terrasse sitzen und den Alltag hinter sich lassen. Ein Ort, an dem man ankommt, loslässt und wirklich lebt. Genau das bietet Ihnen diese ...
518.000 €
Kaufpreis
150 m²
Wohnfläche
5
Zimmer

Grundstück mit Bestandshaus, Ruhe, Natur und ...

Grundstück
85716 Unterschleißheim
Dieses großzügige Freizeitgrundstück in ruhiger Lage von Unterschleißheim bietet eine seltene Gelegenheit für Käufer, die eine naturnahe Rückzugsfläche im Münchner Umland suchen. Mit einer Fläche von ca. 1.334 m² ...
359.000 €
Kaufpreis
1.334 m²
Grundstücksfläche

Seltene Gelegenheit: Denkmalgeschütztes Haus mit ...

Haus
Einbauküche
89407 Dillingen an der Donau
Dieses besondere denkmalgeschützte Stadthaus vereint historischen Charme mit vielseitigen Nutzungsmöglichkeiten. In zentraler Lage von Dillingen an der Donau gelegen, bietet die Immobilie auf ca. 165 m² Wohnfläche viel ...
450.000 €
Kaufpreis
165 m²
Wohnfläche
6
Zimmer