Zuhause ankommen - Ihr neues Familienhaus in Altenmünster/Zusamzell
518.000 €
Kaufpreis
150 m²
Wohnfläche
5
Zimmer
immobilien.de Nr.: 9507561
Objektnummer: 316004
Kaufpreis
| Kaufpreis | 518.000 € |
| Maklerprovision | 3.094,00 EUR (inkl. MwSt.) |
Wohnfläche, Grundstück & Bausubstanz
| Wohnfläche | 150 m² |
| Grundstücksfläche | 271 m² |
| Zimmer | 5 |
| Baujahr | 2026 |
| Verfügbar ab | nach Fertigstellung |
| Zustand | Erstbezug |
Beschreibung der Immobilie
Stellen Sie sich vor, wie Ihre Kinder im Garten spielen, während Sie auf der Terrasse sitzen und den Alltag hinter sich lassen. Ein Ort, an dem man ankommt, loslässt und wirklich lebt. Genau das bietet Ihnen diese moderne Doppelhaushälfte in Altenmünster/Zusamzell.
Dieses Haus ist kein klassisches Reihenhaus, sondern ein echtes Zuhause für Familien, die Wert auf Ruhe, Platz und Lebensqualität legen, ohne die Nähe zur Stadt zu verlieren.
- Wohnfläche ca. 150 qm
- vier bis fünf Zimmer - ideal für Familien
- drei Etagen: Erdgeschoss, Obergeschoss und Dachgeschoss
- Erweiterungspotenzial: Laut vorliegenden Genehmigungen kann die Wohnfläche auf bis
zu ca. 170 qm erweitert werden
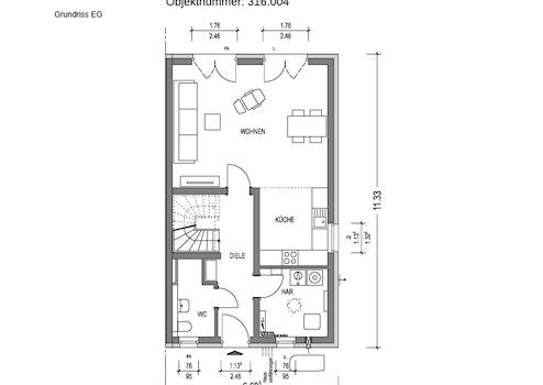
Im Erdgeschoss erwartet Sie ein offener Wohn und Essbereich mit viel Tageslicht. Hier spielt sich das Familienleben ab. Gemeinsames Kochen, Lachen, Hausaufgaben am Esstisch, gemütliche Abende auf dem Sofa.
Im Obergeschoss befinden sich mehrere Schlafzimmer, ideal als Elternschlafzimmer und Kinderzimmer. Jedes Zimmer bietet Rückzugsmöglichkeiten und Privatsphäre.
Das Dachstudio ist ein echtes Highlight:
Perfekt als Spielzimmer, Homeoffice, Jugendzimmer oder Hobbyraum.
Weitere Angebote unter www.GARANT-IMMO.de
Dieses Haus ist kein klassisches Reihenhaus, sondern ein echtes Zuhause für Familien, die Wert auf Ruhe, Platz und Lebensqualität legen, ohne die Nähe zur Stadt zu verlieren.
- Wohnfläche ca. 150 qm
- vier bis fünf Zimmer - ideal für Familien
- drei Etagen: Erdgeschoss, Obergeschoss und Dachgeschoss
- Erweiterungspotenzial: Laut vorliegenden Genehmigungen kann die Wohnfläche auf bis
zu ca. 170 qm erweitert werden
Im Erdgeschoss erwartet Sie ein offener Wohn und Essbereich mit viel Tageslicht. Hier spielt sich das Familienleben ab. Gemeinsames Kochen, Lachen, Hausaufgaben am Esstisch, gemütliche Abende auf dem Sofa.
Im Obergeschoss befinden sich mehrere Schlafzimmer, ideal als Elternschlafzimmer und Kinderzimmer. Jedes Zimmer bietet Rückzugsmöglichkeiten und Privatsphäre.
Das Dachstudio ist ein echtes Highlight:
Perfekt als Spielzimmer, Homeoffice, Jugendzimmer oder Hobbyraum.
Weitere Angebote unter www.GARANT-IMMO.de
Sonstige Informationen
Bebaubarkeit:
- geeignet für eine Doppelhaushälfte oder
ein modernes Wohnkonzept
- individuelle Architektenplanung möglich
- ideale Voraussetzungen für ein familienorientiertes Wohnen
Der anteilige Grundstückspreis für eine Doppelhaushälfte beträgt EUR 130.000,- zzgl. einer Maklerprovision in Höhe von EUR 3.094,- inkl. MwSt. Alternativ besteht die Möglichkeit, das gesamte ca. 541 m² große Grundstück zu einem Kaufpreis von EUR 260.000,- zzgl. einer Maklerprovision von EUR 6.188,- inkl. MwSt. zu erwerben.
Nutzen Sie diese seltene Gelegenheit und verwirklichen Sie Ihr Traumhaus in einer der begehrtesten Lagen von Altenmünster.
- geeignet für eine Doppelhaushälfte oder
ein modernes Wohnkonzept
- individuelle Architektenplanung möglich
- ideale Voraussetzungen für ein familienorientiertes Wohnen
Der anteilige Grundstückspreis für eine Doppelhaushälfte beträgt EUR 130.000,- zzgl. einer Maklerprovision in Höhe von EUR 3.094,- inkl. MwSt. Alternativ besteht die Möglichkeit, das gesamte ca. 541 m² große Grundstück zu einem Kaufpreis von EUR 260.000,- zzgl. einer Maklerprovision von EUR 6.188,- inkl. MwSt. zu erwerben.
Nutzen Sie diese seltene Gelegenheit und verwirklichen Sie Ihr Traumhaus in einer der begehrtesten Lagen von Altenmünster.
Karte wird geladen...
Objektstandort
86450 Altenmünster
Lage & Infrastruktur
Objektstandort
86450 Altenmünster
Die idyllische Lage verbindet Erholung und Alltag auf harmonische Weise: Während Kinder sicher aufwachsen und die Natur entdecken können, profitieren Berufspendler von der ausgezeichneten Anbindung. Augsburg erreichen Sie in nur ca. 25 Minuten, Ulm in etwa 35 Minuten und selbst München ist in rund 50 Minuten bequem erreichbar.
- ruhige Wohnstraße ohne Durchgangsverkehr
- viele Familien in der Umgebung
- Kindergarten und Schule schnell erreichbar
- Spielplätze, Natur und Felder direkt in der Nähe
- sicheres, gewachsenes Wohnumfeld
- ruhige Wohnstraße ohne Durchgangsverkehr
- viele Familien in der Umgebung
- Kindergarten und Schule schnell erreichbar
- Spielplätze, Natur und Felder direkt in der Nähe
- sicheres, gewachsenes Wohnumfeld
Kontaktanfrage senden
Über den Anbieter
Garant Immobilien AG
Wilhelmstr.5
70182 Stuttgart
Kontakt
| Telefon | 0821/43 98 70-0 |
| Fax | 0821/43 98 70-20 |
| Website | www.garant-immo.de |
Ansprechpartner/in
Büro Augsburg
Weitere Angebote des Anbieters
24
Charmantes Reihenmittelhaus mit Garten, Balkon & ...
Haus
75180 Pforzheim
Willkommen in Ihrem neuen Zuhause! Dieses gepflegte Reihenmittelhaus aus dem Jahr 1983 überzeugt mit durchdachter Raumaufteilung, zwei Balkonen, einem kleinen Garten und vielen liebevoll durchgeführten Modernisierungen ...
320.000 €
Kaufpreis
102 m²
Wohnfläche
5
Zimmer
13
Wohnen am nördlichen Rand der Dübener Heide
Haus
06901 Kemberg
Im Ortsteil Reuden der Gemeinde Kemberg wird ein renovierungsbedürftiges Einfamilienhaus mit Saal, Nebengrundstück und Landwirtschaftsfläche zum Verkauf angeboten. Beide Wohnbauflächen umfassen insgesamt ca. 4.199 qm, ...
130.000 €
Kaufpreis
200 m²
Wohnfläche
8
Zimmer
5
Zuhause ankommen - Ihr neues Familienhaus in ...
Haus
86450 Altenmünster
Stellen Sie sich vor, wie Ihre Kinder im Garten spielen, während Sie auf der Terrasse sitzen und den Alltag hinter sich lassen. Ein Ort, an dem man ankommt, loslässt und wirklich lebt. Genau das bietet Ihnen diese ...
518.000 €
Kaufpreis
150 m²
Wohnfläche
5
Zimmer
1
Grundstück mit Bestandshaus, Ruhe, Natur und ...
Grundstück
85716 Unterschleißheim
Dieses großzügige Freizeitgrundstück in ruhiger Lage von Unterschleißheim bietet eine seltene Gelegenheit für Käufer, die eine naturnahe Rückzugsfläche im Münchner Umland suchen. Mit einer Fläche von ca. 1.334 m² ...
359.000 €
Kaufpreis
1.334 m²
Grundstücksfläche
8
Seltene Gelegenheit: Denkmalgeschütztes Haus mit ...
Haus
89407 Dillingen an der Donau
Dieses besondere denkmalgeschützte Stadthaus vereint historischen Charme mit vielseitigen Nutzungsmöglichkeiten. In zentraler Lage von Dillingen an der Donau gelegen, bietet die Immobilie auf ca. 165 m² Wohnfläche viel ...
450.000 €
Kaufpreis
165 m²
Wohnfläche
6
Zimmer