127 m² hochwertige Wohn-/Nutzfläche - Erstbezug im energieeffizienten Reihenendhaus (A+)

799.000 €
Kaufpreis
84 m²
Wohnfläche
43 m²
Nutzfläche
4,5
Zimmer
immobilien.de Nr.: 9506627 Objektnummer: 5966
Haustür
Wohn-/Esszimmer
Wohn-/Esszimmer
Schlafzimmer
Raum
Küche
Badezimmer
Smart-Home-System
Britzer Garten
Gropius Passagen
U-Bhf Johannisthaler Chaussee
Gropius Passagen
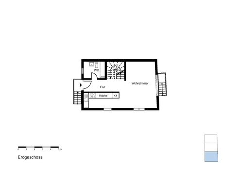
Grundriss EG
Grundriss DG
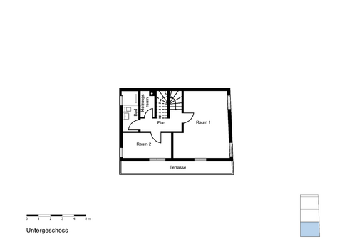
Grundriss UG

Kaufpreis

Kaufpreis 799.000 €
Maklerprovision 3,57 % inkl. MwSt.

Wohnfläche, Grundstück & Bausubstanz

Wohnfläche 84 m²
Nutzfläche 43 m²
Gesamtfläche 127 m²
Grundstücksfläche 185 m²
Zimmer 4,5
Baujahr 2021
Verfügbar ab ab sofort
Zustand Erstbezug

Energie

Energieausweistyp Bedarfsausweis
Ausstellungsdatum 08. 08. 2023
Gültig bis 08.08.2033
Energieeffizienzklasse A_PLUS
Endenergiebedarf 21
Wesentlicher Energieträger Strom
Energieträger/Befeuerung Elektro

Beschreibung der Immobilie

In gut angebundener Lage von Berlin-Buckow präsentiert sich dieses moderne Reiheneckhaus im Erstbezug. Das stilvolle Zuhause überzeugt durch hohen Wohnkomfort, eine energieeffiziente Bauweise und ein durchdachtes Raumkonzept. Das rund 185 m² große Grundstück bietet den idealen Rahmen für zeitgemäßes Wohnen in urbanem Umfeld. Die Wohnnutzfläche von circa 127 m² verteilt sich auf drei Ebenen. Der lichtdurchflutete Wohn- und Essbereich mit großen Fensterfronten, Panoramaschiebetür und direktem Zugang zum Garten bildet das Herzstück des Hauses. Die angrenzende, modern gestaltete Einbauküche mit hochwertiger Ausstattung und durchdachtem Design fügt sich harmonisch in das Raumgefüge ein. Hohe Decken von bis zu ca. 3,20 m verleihen den Räumen ein besonders großzügiges, offenes Wohngefühl. Rund 43 m² bilden den hochwertig ausgebauten, tagesbelichteten Souterrainbereich, der vielseitig nutzbar ist. Insgesamt stehen 4,5 Zimmer zur Verfügung, die flexibel als Schlaf , Arbeits , Gästezimmer oder Hobbyraum genutzt werden können. Drei elegant gestaltete Bäder mit Sanitärelementen von Villeroy & Boch und Großformatfliesen sorgen für angenehmen Komfort. Edle Parkettböden mit Fußbodenheizung, Massivholztüren, eine ansprechende Stahl Holz Treppe sowie ein Smart Home System unterstreichen den modernen Charakter des Hauses. Eine energieeffiziente Wärmepumpe gewährleistet nachhaltiges Wohnen auf dem aktuellen Stand der Technik. Dieses Haus vereint ein ruhiges Wohnambiente mit der urbanen Lebensqualität Berlins – eine seltene Gelegenheit für anspruchsvolles, modernes Wohnen in begehrter Einfamilienhauslage von Buckow.

Ausstattungsmerkmale

Anzahl der Etagen im Haus 3
 
Küche Einbauküche
Bad 3
Balkone 1
Garten
Keller
Karte wird geladen...
Objektstandort
12351 Berlin - Berlin

Lage & Infrastruktur

Die Immobilie befindet sich im Berliner Bezirk Neukölln, im beliebten Ortsteil Buckow – einer ruhigen und grünen Wohnlage, nur wenige Autominuten vom Teltowkanal entfernt. Trotz der guten Anbindung an die Innenstadt überzeugt die Umgebung durch ihren kleinstädtischen Charakter. Das Reihenhaus liegt in einer gepflegten Einfamilienhaussiedlung, umgeben von Gartenanlagen und Naherholungsgebieten wie dem bekannten Britzer Garten. Die familienfreundliche Nachbarschaft bietet zahlreiche Spielplätze, Kindergärten und Schulen. Einkaufsmöglichkeiten für den täglichen Bedarf sowie die Gropiuspassagen und das Vivantes Klinikum Neukölln sind bequem fußläufig erreichbar. Die verkehrsgünstige Lage ermöglicht eine schnelle Anbindung an die Stadtautobahn A113 sowie an den öffentlichen Nahverkehr. Die U-Bahn-Station Johannisthaler Chaussee und die Bushaltestelle Buchfinkweg sorgen für gute Verbindungen in alle Teile Berlins. Den Flughafen BER erreicht man in etwa 15 Autominuten. Trotz der Nähe dorthin ist die Wohngegend nicht vom Fluglärm betroffen.

Kontaktanfrage senden

Über den Anbieter

David Borck Immobiliengesellschaft mbH
Schlüterstr. 45
10707 Berlin
Kontakt
Ansprechpartner/in
Linda Horvath

Weitere Angebote des Anbieters

127 m² hochwertige Wohn-/Nutzfläche - Erstbezug im ...

Haus
Balkon Einbauküche Garten
12351 Berlin
In gut angebundener Lage von Berlin-Buckow präsentiert sich dieses moderne Reiheneckhaus im Erstbezug. Das stilvolle Zuhause überzeugt durch hohen Wohnkomfort, eine energieeffiziente Bauweise und ein durchdachtes ...
799.000 €
Kaufpreis
84 m²
Wohnfläche
4,5
Zimmer

Kapitalanlage in grüner Lage von Tempelhof – im ...

Wohnung
Balkon
12103 Berlin
In diesem liebevoll erhaltenen Altbau aus dem Jahr 1910 verbinden sich zeitloser Charme und vielseitige Nutzungsmöglichkeiten zu einem einzigartigen Wohn- und Investmentangebot. Insgesamt umfasst das Gebäude 25 ...
425.000 €
Kaufpreis
855,42 €
Kaltmiete
3896 €
Kaufpreis pro m²
109,09 m²
Wohnfläche
3
Zimmer

Altbau-Charme im beliebten Kiez: Ruhige Eigentumswohnun ...

Wohnung
Balkon
10829 Berlin
Auf der charmanten Schöneberger Insel, in der Gustav-Müller-Straße 41 und der Naumannstraße 30/32, befindet sich ein Immobilienprojekt bestehend aus drei Mehrfamilienhäusern aus dem Jahre 1890 mit insgesamt 47 ...
169.000 €
Kaufpreis
406 €
Kaltmiete
6184 €
Kaufpreis pro m²
27,33 m²
Wohnfläche
1
Zimmer

Exklusive 2-Zimmer-Wohnung mit Concierge, ...

Wohnung
Balkon Einbauküche
10719 Berlin
In einem repräsentativen Wohnensemble aus dem Jahr 1930, das 2011 umfassend kernsaniert wurde, befindet sich im Hochparterre diese großzügige, bezugsfreie 2-Zimmer-Wohnung mit ca. 108 m² Wohnfläche. Hier trifft ...
769.990 €
Kaufpreis
6410,16 €
Kaufpreis pro m²
107,64 m²
Wohnfläche
2
Zimmer

Reihenhaus mit großzügigem Raumangebot in Falkensee

Haus
Balkon Einbauküche Garten
14612 Falkensee
Dieses charmante Reihenhaus aus dem Jahr 1996 liegt eingebettet in einer gepflegten Wohnanlage in ruhiger, familienfreundlicher Lage von Falkensee. Auf rund 154 m² Wohnfläche, verteilt über drei großzügige Etagen, ...
499.500 €
Kaufpreis
154 m²
Wohnfläche
5
Zimmer