Für eine flexible Nutzung geeignet.
175.000 €
Kaufpreis
165 m²
Wohnfläche
7
Zimmer
immobilien.de Nr.: 9500916
Objektnummer: 391411
Kaufpreis
| Kaufpreis | 175.000 € |
| Maklerprovision | keine Provision, courtagefrei |
Wohnfläche, Grundstück & Bausubstanz
| Wohnfläche | 165 m² |
| Grundstücksfläche | 785 m² |
| Zimmer | 7 |
| Baujahr | 1906 |
| Verfügbar ab | nach Absprache |
| Zustand | Gepflegt |
Energie
| Energieausweistyp | Bedarfsausweis |
| Energieeffizienzklasse | H |
| Endenergiebedarf | 359 |
| Heizungsart | Zentralheizung |
| Energieträger/Befeuerung | Gas |
Beschreibung der Immobilie
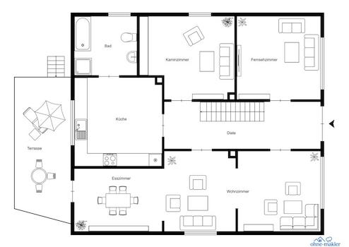
Das 1906 erbaute Wohnhaus wurde über viele Jahre im derzeitigen Zustand genutzt und kann somit als gut bewohnbar bezeichnet werden. Wer möchte, kann selbstverständlich mit einzelnen Renovierungen den Nutzwert erhöhen. Insgesamt stehen neben der 155 m² großen Wohnfläche auch noch eine teils überdachte und aufgeständerte Terrasse von rund 20 m² mit einer Treppe zum Garten zur Verfügung. Diese Terrasse bietet zusätzlich für den darunter befindlichen Kellerausgang einen guten Wetterschutz.
Im Erdgeschoss befinden sich derzeit eine Küche mit Terrasse, daneben ein Badezimmer, ein Flur sowie zwei größere Wohnräume. Diese beiden Wohnräume sind mit einfachen Mitteln wieder in vier Räume aufteilbar, so dass Sie das Haus sehr flexibel mit insgesamt sieben Räumen nutzen können. Auch für Familienangehörige mit Bewegungseinschränkungen ist diese Etage sehr gut nutzbar.
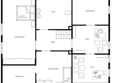
Zum Dachgeschoss gehören neben einem Badezimmer noch drei Schlafräume sowie drei jeweils angrenzende Abstellräume.
Im Erdgeschoss befinden sich derzeit eine Küche mit Terrasse, daneben ein Badezimmer, ein Flur sowie zwei größere Wohnräume. Diese beiden Wohnräume sind mit einfachen Mitteln wieder in vier Räume aufteilbar, so dass Sie das Haus sehr flexibel mit insgesamt sieben Räumen nutzen können. Auch für Familienangehörige mit Bewegungseinschränkungen ist diese Etage sehr gut nutzbar.
Zum Dachgeschoss gehören neben einem Badezimmer noch drei Schlafräume sowie drei jeweils angrenzende Abstellräume.
Ausstattungsmerkmale
| Bad | 2 |
| Boden | Laminat |
| Balkone | 0 |
| Terrassen | 1 |
| Garage/Stellplätze | 1 |
| Keller |
Terrasse, Keller, Laminat
Bemerkungen:
Vollkeller, Gaszentralheizung aus 1984, isolierverglaste Holzfenster, Garage, Kaminofen aus 2025 sowie rund 15 m³ (srm) Brennholz, die nach dem Verkauf auf dem Grundstück verbleiben.
Bemerkungen:
Vollkeller, Gaszentralheizung aus 1984, isolierverglaste Holzfenster, Garage, Kaminofen aus 2025 sowie rund 15 m³ (srm) Brennholz, die nach dem Verkauf auf dem Grundstück verbleiben.
Sonstige Informationen
Heizungsart: Zentralheizung
Energieträger: Gas
Makleranfragen nicht erwünscht. Nach § 7 UWG sind unaufgeforderte Kontaktaufnahmen durch Makler ohne ausdrückliche Einwilligung des Empfängers verboten!
ohne-makler (OM) ist weder Anbieter noch Vermittler der Immobilie. OM betreibt eine Plattform für Immobilieneigentümer, die unter anderem die gleichzeitige Veröffentlichung einzelner Inserate auf mehreren Immobilienportalen ermöglicht. Die Inhalte dieser Inserate werden ausschließlich von Dritten verantwortet. Für die Richtigkeit, Vollständigkeit oder Rechtmäßigkeit der Angaben übernimmt OM keine Haftung. Hinweise auf mögliche Rechtsverstöße können jederzeit gemeldet werden und werden nach Prüfung umgehend bearbeitet.
Energieträger: Gas
Makleranfragen nicht erwünscht. Nach § 7 UWG sind unaufgeforderte Kontaktaufnahmen durch Makler ohne ausdrückliche Einwilligung des Empfängers verboten!
ohne-makler (OM) ist weder Anbieter noch Vermittler der Immobilie. OM betreibt eine Plattform für Immobilieneigentümer, die unter anderem die gleichzeitige Veröffentlichung einzelner Inserate auf mehreren Immobilienportalen ermöglicht. Die Inhalte dieser Inserate werden ausschließlich von Dritten verantwortet. Für die Richtigkeit, Vollständigkeit oder Rechtmäßigkeit der Angaben übernimmt OM keine Haftung. Hinweise auf mögliche Rechtsverstöße können jederzeit gemeldet werden und werden nach Prüfung umgehend bearbeitet.
Karte wird geladen...
Objektstandort
32602 Vlotho
- Nordrhein-Westfalen
Lage & Infrastruktur
Objektstandort
32602 Vlotho
- Nordrhein-Westfalen
Hier wohnen Sie nah zur Innenstadt von Vlotho und ebenso auch in fußläufiger Entfernung (500 m) zum Minske-Markt.
Vlotho hat eine bekannt gute Infrastruktur (Schulen, Einkaufsmöglichkeiten, Ärzte, Kultur, Freizeit), die von hier aus ebenfalls gut erreichbar ist.
Vlotho hat eine bekannt gute Infrastruktur (Schulen, Einkaufsmöglichkeiten, Ärzte, Kultur, Freizeit), die von hier aus ebenfalls gut erreichbar ist.
Kontaktanfrage senden
Über den Anbieter
OM PropTech GmbH
Humboldtstraße 25a
21509 Glinde
Kontakt
| Telefon | - |
| Fax | - |
| Website | www.ohne-makler.net |
Ansprechpartner/in
Privat von FW
Weitere Angebote des Anbieters
7
Wohnen und Arbeiten im Herzen der Bonner City. Beste ...
Wohnung
53111 Bonn
Das angebotene Wohnbüro befindet sich in der Maximilianstraße 40 und liegt damit in absoluter Bestlage mitten in der Bonner Innenstadt. Die Einheit befindet sich im zweiten Obergeschoss eines gepflegten Gebäudes und ...
1.350 €
Kaltmiete (netto)
80 m²
Wohnfläche
3
Zimmer
12
2Raumwohnung mit Wohnküche
Wohnung
58452 Witten
Diese Wohnung wird nur an maximal zwei Personen über 25 Jahren, die arbeiten, vermietet. Voraussetzung für einen Mietvertrag ist Berufstätig und Deutschsprachigkeit. Besichtigungen können nur Vormittags angeboten ...
500 €
Kaltmiete (netto)
65 m²
Wohnfläche
2
Zimmer
45
Witten-Bommern: grosses Haus mit großem Grundstück zu ...
Haus
58452 Witten
Individuell ausgestattetes freistehendes Haus mit Fernblick, einem uneinsehbaren Innenhof und einem uneinsehbaren Grundstück mit einem großen Garten! Das Mietobjekt ist nur etwas für Gartenfreunde! Details werden nach ...
2.000 €
Kaltmiete (netto)
250 m²
Wohnfläche
8
Zimmer
39
Renditestarkes Ferienhaus auf Usedom mit ...
Haus
17459 Zempin
Ferienhaus „Das Möwenhaus“ – Usedom Zum Verkauf steht das liebevoll geführte Ferienhaus „Das Möwenhaus“ im Ostseebad Zempin auf der Insel Usedom. Das großzügige und lichtdurchflutete Haus mit separater Einliegerwohnung ...
617.000 €
Kaufpreis
147 m²
Wohnfläche
6
Zimmer
26
Moderne Wohnung mit einmaliger Ausstattung von privat: ...
Wohnung
65195 Wiesbaden
Die Wohnung befindet sich in einem sehr gepflegten Neubau mit guter Nachbarschaft, der 2021 fertiggestellt wurde. Zum Gebäude gehört eine Grünanlage mit kleinem Spielplatz, die von allen genutzt werden kann. Die ...
1.100 €
Kaltmiete (netto)
59 m²
Wohnfläche
2
Zimmer