OPEN HOUSE - Samstag, den 14.03.2026 ab 10:00 Uhr
300.000 €
Kaufpreis
99 m²
Wohnfläche
4
Zimmer
immobilien.de Nr.: 9500282
Objektnummer: 421222
Dateien
Kaufpreis
| Kaufpreis | 300.000 € |
| Maklerprovision | keine Provision, courtagefrei |
Wohnfläche, Grundstück & Bausubstanz
| Wohnfläche | 99 m² |
| Grundstücksfläche | 306 m² |
| Zimmer | 4 |
| Baujahr | 1969 |
| Verfügbar ab | sofort |
| Zustand | Teil Vollsaniert |
Energie
| Energieausweistyp | Verbrauch |
| Energieeffizienzklasse | B |
| Energieverbrauchkennwert | 70 kWh/(m²*a) |
| Heizungsart | Zentralheizung |
| Energieträger/Befeuerung | Gas |
Beschreibung der Immobilie
OPEN-HOUSE
am Samstag, den 14. März 2026 | ab 10:00 Uhr
in 66879 Steinwenden, Eisenbahnstraße 4a
----
Bei diesem Angebot handelt es sich um ein kleines, sehr gemütliches Einfamilienhaus in Steinwenden. Das Anwesen eignet sich für einen Single-Haushalt oder maximal zwei Personen.
In den vergangenen Jahren wurde das Objekt stetig saniert und befindet sich heute in einem sehr guten und gepflegten Zustand. Die an dem Objekt durchgeführten Arbeiten finden Sie in der separaten Sanierungsübersicht.
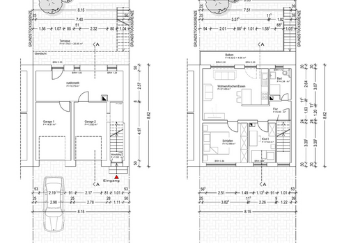
Die Aufteilung des Anwesens ist wie folgt:
Erdgeschoss - 70qm:
- Garage 1
- Garage 2
- Abstellraum
- Hauswirtschaftsraum
- Terrasse mit Treppe zum Balkon (1.OG)
Obergeschoss - 58qm:
- Wohnen/Essen/Kochen
- Balkon
- Schlafzimmer
- Büro
- Bad/Duschbad
- Flur
- Windfang
Dachgeschoss:
- Speicher mit Bodentreppe (nicht ausgebaut)
am Samstag, den 14. März 2026 | ab 10:00 Uhr
in 66879 Steinwenden, Eisenbahnstraße 4a
----
Bei diesem Angebot handelt es sich um ein kleines, sehr gemütliches Einfamilienhaus in Steinwenden. Das Anwesen eignet sich für einen Single-Haushalt oder maximal zwei Personen.
In den vergangenen Jahren wurde das Objekt stetig saniert und befindet sich heute in einem sehr guten und gepflegten Zustand. Die an dem Objekt durchgeführten Arbeiten finden Sie in der separaten Sanierungsübersicht.
Die Aufteilung des Anwesens ist wie folgt:
Erdgeschoss - 70qm:
- Garage 1
- Garage 2
- Abstellraum
- Hauswirtschaftsraum
- Terrasse mit Treppe zum Balkon (1.OG)
Obergeschoss - 58qm:
- Wohnen/Essen/Kochen
- Balkon
- Schlafzimmer
- Büro
- Bad/Duschbad
- Flur
- Windfang
Dachgeschoss:
- Speicher mit Bodentreppe (nicht ausgebaut)
Ausstattungsmerkmale
| Anzahl der Etagen im Haus | 2 |
| Küche | Einbauküche |
| Bad | 1 |
| Bad | Dusche |
| Boden | Fliesen, Kunststoff |
| Balkone | 1 |
| Garten | |
| Terrassen | 1 |
| Garage/Stellplätze | 2 |
| Keller |
Balkon, Terrasse, Garten, Keller, Duschbad, Einbauküche, Fliesen
Bemerkungen:
Für das Objekt liegt ein Mietangebot über 1.500,00 EUR/kalt vor.
Aufgrund der sehr guten Makro- und Microlage eignet sich die Immobilie auch hervorragend als ein Kapitalanlageobjekt.
Bemerkungen:
Für das Objekt liegt ein Mietangebot über 1.500,00 EUR/kalt vor.
Aufgrund der sehr guten Makro- und Microlage eignet sich die Immobilie auch hervorragend als ein Kapitalanlageobjekt.
Sonstige Informationen
Heizungsart: Zentralheizung
Energieträger: Gas
Ein unverbindliches Finanzierungsangebot kann über unser Partnerbüro gerne angeboten werden:
Finanzierungsbeispiel:
300.000 EUR - Kaufpreis
19.500 EUR - Erwerbsnebenkosten
319.500 EUR - Kaufpreis inkl. Erwerbsnebenkosten
49.500 EUR - Eigenkapital
270.000 EUR - Darlehenssumme
3,85 % - Sollzinssatz
2,00 % - Tilgung
5,85 % - Annuität
1.316,25 EUR - Rückzahlungsrate/Darlehensrate
Laufzeit der Finanzierung: 10 Jahre
Restschuld nach Sollzinsbindung: 204.259,01 EUR
Zinsen und Gebühren insgesamt: 92.209,01 EUR
Gesamtaufwand: 362.209,01 EUR
Effektiver Jahreszinssatz: 3,919%
ohne-makler (OM) ist weder Anbieter noch Vermittler der Immobilie. OM betreibt eine Plattform für Immobilieneigentümer, die unter anderem die gleichzeitige Veröffentlichung einzelner Inserate auf mehreren Immobilienportalen ermöglicht. Die Inhalte dieser Inserate werden ausschließlich von Dritten verantwortet. Für die Richtigkeit, Vollständigkeit oder Rechtmäßigkeit der Angaben übernimmt OM keine Haftung. Hinweise auf mögliche Rechtsverstöße können jederzeit gemeldet werden und werden nach Prüfung umgehend bearbeitet.
Energieträger: Gas
Ein unverbindliches Finanzierungsangebot kann über unser Partnerbüro gerne angeboten werden:
Finanzierungsbeispiel:
300.000 EUR - Kaufpreis
19.500 EUR - Erwerbsnebenkosten
319.500 EUR - Kaufpreis inkl. Erwerbsnebenkosten
49.500 EUR - Eigenkapital
270.000 EUR - Darlehenssumme
3,85 % - Sollzinssatz
2,00 % - Tilgung
5,85 % - Annuität
1.316,25 EUR - Rückzahlungsrate/Darlehensrate
Laufzeit der Finanzierung: 10 Jahre
Restschuld nach Sollzinsbindung: 204.259,01 EUR
Zinsen und Gebühren insgesamt: 92.209,01 EUR
Gesamtaufwand: 362.209,01 EUR
Effektiver Jahreszinssatz: 3,919%
ohne-makler (OM) ist weder Anbieter noch Vermittler der Immobilie. OM betreibt eine Plattform für Immobilieneigentümer, die unter anderem die gleichzeitige Veröffentlichung einzelner Inserate auf mehreren Immobilienportalen ermöglicht. Die Inhalte dieser Inserate werden ausschließlich von Dritten verantwortet. Für die Richtigkeit, Vollständigkeit oder Rechtmäßigkeit der Angaben übernimmt OM keine Haftung. Hinweise auf mögliche Rechtsverstöße können jederzeit gemeldet werden und werden nach Prüfung umgehend bearbeitet.
Karte wird geladen...
Objektstandort
Eisenbahnstraße 4a
66879 Steinwenden
- Rheinland-Pfalz
Lage & Infrastruktur
Objektstandort
Eisenbahnstraße 4a
66879 Steinwenden
- Rheinland-Pfalz
Das Objekt liegt in der Ortsgemeinde Steinwenden. Steinwenden gehört zur
Verbandsgemeinde Ramstein-Miesenbach und zählt ca. 2.500 Einwohner.
Im Ort gibt es einen Kindergarten und eine Grundschule. Weiterführende Schulen sind im benachbarten Ramstein-Miesenbach sehr gut erreichbar.
Eine Sparkassenfiliale, eine Filiale der Volksbank Glan-Münchweiler, zwei
Bäckereien, sowie ein kleiner Gastronomiebetrieb sind in unmittelbarer Nähe vorhanden.
Der Anschluss an den öffentlichen Personen-und Nahverkehr ist durch den eigenen Zugbahnhof sehr gut.
Die Objektadresse des Objekts lautet: Eisenbahnstr. 4a, 66879 Steinwenden.
Infrastruktur (im Umkreis von 5 km):
Apotheke, Lebensmittel-Discount, Allgemeinmediziner, Kindergarten, Grundschule, Hauptschule, Realschule, Gymnasium, Gesamtschule, Öffentliche Verkehrsmittel
Verbandsgemeinde Ramstein-Miesenbach und zählt ca. 2.500 Einwohner.
Im Ort gibt es einen Kindergarten und eine Grundschule. Weiterführende Schulen sind im benachbarten Ramstein-Miesenbach sehr gut erreichbar.
Eine Sparkassenfiliale, eine Filiale der Volksbank Glan-Münchweiler, zwei
Bäckereien, sowie ein kleiner Gastronomiebetrieb sind in unmittelbarer Nähe vorhanden.
Der Anschluss an den öffentlichen Personen-und Nahverkehr ist durch den eigenen Zugbahnhof sehr gut.
Die Objektadresse des Objekts lautet: Eisenbahnstr. 4a, 66879 Steinwenden.
Infrastruktur (im Umkreis von 5 km):
Apotheke, Lebensmittel-Discount, Allgemeinmediziner, Kindergarten, Grundschule, Hauptschule, Realschule, Gymnasium, Gesamtschule, Öffentliche Verkehrsmittel
Kontaktanfrage senden
Über den Anbieter
OM PropTech GmbH
Humboldtstraße 25a
21509 Glinde
Kontakt
| Telefon | - |
| Fax | - |
| Website | www.ohne-makler.net |
Ansprechpartner/in
Privat von Reinhold Firus
Weitere Angebote des Anbieters
1
City-Lage: Kapitalanlage. 6,6 % Brutto-Rendite neue ...
Wohnung
44809 Bochum
Kapitalanlage in Top-Lage: 2,5-Zimmer-Wohnung in Bochum City – Massivbauweise, gute Vermietbarkeit & gute Finanzierungbarkeit durch Top Brutto-Rendite 6,6% Objektbeschreibung: Zum Verkauf steht eine attraktive 2 ...
90.808 €
Kaufpreis
50 m²
Wohnfläche
1
Zimmer
6
Wunderschöne Wohnung im Grindel
Wohnung
20146 Hamburg
Die liebevoll gestaltete und sanierte Wohnung überzeugt nicht nur von der hervorragenden Lage, sondern wurde durch eine umfangreiche und grundlegende Sanierung auf einen hochwertigen und exklusiven Standard gebracht. ...
420.000 €
Kaufpreis
38 m²
Wohnfläche
1,5
Zimmer
27
„Stilvoll wohnen in bester Stadtlage von Plochingen – ...
Haus
73207 Plochingen
Charmantes Einfamilienhaus mit Einliegerwohnung in ruhiger, zentrumsnaher Lage von Plochingen Dieses gepflegte Einfamilienhaus aus dem Jahr 1985 überzeugt durch seine attraktive Kombination aus ruhiger Wohnlage und ...
579.000 €
Kaufpreis
142 m²
Wohnfläche
6,5
Zimmer
10
Lichtdurchflutete 4Zi. Altbauwohnung mit 2 Balkonen im ...
Wohnung
63069 Offenbach am Main
Diese aufwendig renovierte 4-Zimmer-Altbauwohnung besticht durch einen durchdachten Grundriss und bietet auf 123-m² ausreichend Platz für die ganze Familie oder das anspruchsvolle Paar. Der wunderschöne Echtholz-Dielenb ...
1.975 €
Kaltmiete (netto)
123 m²
Wohnfläche
4
Zimmer
25
Lichtdurchflutete Wohnung mit großer Dachterrasse in ...
Wohnung
53604 Bad Honnef
Diese attraktive Wohnung befindet sich im 3. Obergeschoss (Dachgeschoss) einer sehr gepflegten Wohnanlage in zentrumsnaher Wohnlage. Dank großer Fensterflächen und südlicher Ausrichtung überzeugen alle Räume durch ein ...
397.500 €
Kaufpreis
104 m²
Wohnfläche
3
Zimmer