LAGE - LAGE - LAGE
463.000 €
Kaufpreis
152 m²
Wohnfläche
7
Zimmer
immobilien.de Nr.: 9500236
Objektnummer: 625142
Kaufpreis
| Kaufpreis | 463.000 € |
| Maklerprovision | 3,57 % (inkl. MwSt.) |
Wohnfläche, Grundstück & Bausubstanz
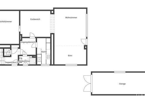
| Wohnfläche | 152 m² |
| Grundstücksfläche | 447 m² |
| Zimmer | 7 |
| Baujahr | 1955 |
| Verfügbar ab | vermietet |
| Zustand | Gepflegt |
Energie
| Energieausweistyp | Bedarfsausweis |
| Ausstellungsdatum | 06. 12. 2019 |
| Baujahr (laut Energieausweis) | 1955 |
| Energieeffizienzklasse | E |
| Endenergiebedarf | 181.4 |
| Heizungsart | Zentralheizung |
| Wesentlicher Energieträger | Gas |
| Energieträger/Befeuerung | Gas |
Beschreibung der Immobilie
Wir verkaufen in Düsseldorf-Eller ein älteres Siedlungshaus in einer wirklich sehr guten Wohnlage. Das Haus oder besser gesagt die Haushälfte, wurde 1955 baugenehmigt und in den beiden Folgejahren gebaut. Schon im Ursprung wurde sie als Zweifamilienhaus konzipiert. Das Grundstück zum Haus ist 447 qm groß und südwestlich ausgerichtet. Am Haus befindet sich eine übergroße Einzelgarage. In den 1970er Jahren fand ein Umbau statt. Die Wohnung im Dachgeschoss wurde durch zusätzlichen Wohnraum und einen Balkon erweitert. Seit der Umbaufertigstellung sind beide Wohnungen ständig vermietet. Die jetzigen Mieter im Erdgeschoss sind seit 2020 im Haus, die Mieter im Dachgeschoss bewohnen die Wohnung seit 1998.
Allgemein ist das Wohnhaus in einem ordentlichen Zustand. Beheizt wird das Haus mit Erdgas. Die Brennwerttherme ist aus dem Jahr 2011. Die Fenster sind zu großen Teilen in den 2000er Jahren gewechselt worden. Wir gehen davon aus, dass in naher Zukunft Investitionen in die Grundgewerke erfolgen sollten.
Bitte haben Sie Verständnis dafür, dass wir im Interesse beider Mietparteien keine Innenaufnahmen veröffentlichen. Für weitere Erläuterungen und zu Terminvereinbarungen stehen wir Ihnen gern zur Verfügung.
Weitere Angebote unter www.GARANT-IMMO.de
Allgemein ist das Wohnhaus in einem ordentlichen Zustand. Beheizt wird das Haus mit Erdgas. Die Brennwerttherme ist aus dem Jahr 2011. Die Fenster sind zu großen Teilen in den 2000er Jahren gewechselt worden. Wir gehen davon aus, dass in naher Zukunft Investitionen in die Grundgewerke erfolgen sollten.
Bitte haben Sie Verständnis dafür, dass wir im Interesse beider Mietparteien keine Innenaufnahmen veröffentlichen. Für weitere Erläuterungen und zu Terminvereinbarungen stehen wir Ihnen gern zur Verfügung.
Weitere Angebote unter www.GARANT-IMMO.de
Ausstattungsmerkmale
| Bad | 2 |
| Boden | Fliesen, Teppich, Parkett |
| Balkone | 1 |
Sonstige Informationen
Energiebedarfsausweis
Energiekennwert: 181,40 kWh/(qm*a)
Energieeffizienz: Klasse E (<160)
Heizung: Zentralheizung mit Gas
Baujahr laut Energieausweis: 1955
Energiekennwert: 181,40 kWh/(qm*a)
Energieeffizienz: Klasse E (<160)
Heizung: Zentralheizung mit Gas
Baujahr laut Energieausweis: 1955
Karte wird geladen...
Objektstandort
40229 Düsseldorf
Lage & Infrastruktur
Objektstandort
40229 Düsseldorf
Das Anwesen befindet sich in Düsseldorf-Eller.
Kontaktanfrage senden
Über den Anbieter
Garant Immobilien AG
Wilhelmstr.5
70182 Stuttgart
Kontakt
| Telefon | 0931/32 93 76-0 |
| Fax | 0931/32 93 76-20 |
| Website | www.garant-immo.de |
Ansprechpartner/in
Büro Würzburg
Weitere Angebote des Anbieters
5
Stilvolle 2 Zimmer-Wohnung mit Balkon, TG-Stellplatz ...
Wohnung
81737 München/Perlach
In attraktiver und ruhiger Wohnlage von München im beliebten Stadtteil Perlach steht diese stilvolle und großzügig geschnittene 2 Zimmer-Wohnung zum Verkauf. Bereits beim Betreten der Wohnung empfängt Sie ein ...
470.000 €
Kaufpreis
72 m²
Wohnfläche
2
Zimmer
9
Betreutes Wohnen im Herzen der Stadt Waldshut!
Wohnung
79761 Waldshut-Tiengen
Die zum Verkauf stehende Wohnung befindet sich in bester innerstädtischen Wohnlage, im beliebten Senioren-Zentrum Bilgergarten. Das Gebäude wurde im Jahr 1999 in solider Massivbauweise errichtet und beherbergt nicht ...
180.000 €
Kaufpreis
55 m²
Wohnfläche
2,5
Zimmer
11
Flexibles Wohnen für jedes Alter!
Wohnung
82205 Gilching
Willkommen in Ihrem neuen Zuhause mit besonderem Charme! Diese exklusive Zweizimmerwohnung besticht durch ihr hochwertiges Ambiente und ihre einzigartige Wohlfühlatmosphäre. Der große Wohnbereich mit Kaminofen ...
455.000 €
Kaufpreis
76 m²
Wohnfläche
2
Zimmer
3
Unverbaubarer Blick ins Grüne - Der Platz für Ihre ...
Grundstück
95445 Bayreuth
Entdecken Sie Ihr persönliches Bauprojekt in einer attraktiven Wohnlage in Bayreuth-Colmdorf. Für das äußerst interessante, voll erschlossene Grundstück liegt bereits ein genehmigter Bauantrag für ein Einfamiienhaus ...
169.000 €
Kaufpreis
704 m²
Grundstücksfläche
3
2 1/2 Zimmer + 1 Zimmer = Wohnen auf zwei Etagen
Wohnung
72141 Walddorfhäslach
Im 1. Obergeschoss in einer kleinen Wohneinheit gelegen, präsentiert sich die Wohnung gepflegt und in einem großzügigen Schnitt: neben einer geschlossenen, großen Wohn-/Essküche bietet sie neben einem Wohn- und ...
245.000 €
Kaufpreis
82 m²
Wohnfläche
3,5
Zimmer