Abriss, Teilabriss oder Sanierung - hier ist alles möglich! ZFH in Ötigheim in ruhiger Lage!
220.000 €
Kaufpreis
147,86 m²
Wohnfläche
5
Zimmer
immobilien.de Nr.: 9497559
Objektnummer: 1077
Kaufpreis
| Kaufpreis | 220.000 € |
| Maklerprovision | 3,57 % inkl. MwSt. |
Wohnfläche, Grundstück & Bausubstanz
| Wohnfläche | 147,86 m² |
| Grundstücksfläche | 574 m² |
| Zimmer | 5 |
| Baujahr | 1900 |
| Verfügbar ab | keine Angabe |
| Zustand | Teil Vollrenovierungsbed |
Energie
| Energieausweistyp | Bedarfsausweis |
| Gültig bis | 2035-08-20 |
| Baujahr (laut Energieausweis) | 1997 |
| Energieeffizienzklasse | H |
| Endenergiebedarf | 435.60 |
| Heizungsart | Zentralheizung |
| Wesentlicher Energieträger | Oel |
| Energieträger/Befeuerung | Öl |
Beschreibung der Immobilie
Das ursprünglich um Jahr 1900 erbaute Haus, wurde 1964 und 1970 mit einem Anbau/Umbau des Ökonomiegebäudes zu einem Zweifamilienhaus ergänzt. Das Haus erstreckt sich über zwei Etagen und bietet eine großzügige Wohnfläche von ca. 148 m² auf einem Grundstück von etwa 574 m².
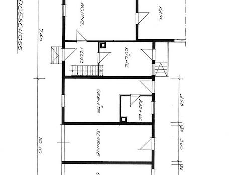
Die Erdgeschosswohnung besteht aus einer sehr geräumigen Wohnküche mit Zugang in den Garten und zum später angebauten Bad (mit Wanne, Waschbecken, WC und Wasserboiler mit zentraler Ölversorgung) sowie einem Wohnzimmer und einem Schlafzimmer.
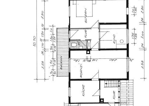
Die Obergeschosswohnung erreichen Sie über die Holztreppe, diese teilt sich wie folgt auf, großer Küchenbereich mit Durchgang zum weitläufigen Wohnzimmer. Hier führt ein Flur zum Kinder-, Schlafzimmer und zum Bad (mit Wanne, Waschbecken, WC und elektrischem Handtuchhalter). Über eine Raumspartreppe gelangen Sie ins Dachgeschoss hier wurden nachträglich zwei Räume ausgebaut. Der überdachte Balkon ist über das Wohnzimmer oder den Flur erreichbar.
Das Haus ist teilweise unterkellert. Es gibt einen Raum unter dem Wohnzimmer und zusätzlichen Stauraum unter dem Schlafzimmer. Weitere Lager- und Abstellfläche befindet sich im Erdgeschossbereichs des Anbaus. Hier sind auch die Heizung und die Öltank untergebracht sowie eine Garage mit Durchfahrt auf das großflächige Gartengrundstück.
Der Garten bietet Ihnen viele Möglichkeiten, ob sie Ihr eigenes Gemüse anbauen oder einfach Raum zum Entspannen oder einen Spielplatz für Ihre Kinder schaffen möchten.
Die Immobilie ist stark renovierungsbedürftig, bietet jedoch hervorragende Möglichkeiten zur individuellen Neustrukturierung, Modernisierung oder Teilabriss-/Neubauplanungen.
Die idyllische Lage in Ötigheim verbindet ländlichen Charme mit der Nähe zu städtischen Annehmlichkeiten, wodurch Sie das Beste aus beiden Welten genießen können. Nutzen Sie die Chance, dieses besondere Haus zu erwerben und es in ein Zuhause voller Charme und moderner Bequemlichkeiten zu verwandeln.
Die Erdgeschosswohnung besteht aus einer sehr geräumigen Wohnküche mit Zugang in den Garten und zum später angebauten Bad (mit Wanne, Waschbecken, WC und Wasserboiler mit zentraler Ölversorgung) sowie einem Wohnzimmer und einem Schlafzimmer.
Die Obergeschosswohnung erreichen Sie über die Holztreppe, diese teilt sich wie folgt auf, großer Küchenbereich mit Durchgang zum weitläufigen Wohnzimmer. Hier führt ein Flur zum Kinder-, Schlafzimmer und zum Bad (mit Wanne, Waschbecken, WC und elektrischem Handtuchhalter). Über eine Raumspartreppe gelangen Sie ins Dachgeschoss hier wurden nachträglich zwei Räume ausgebaut. Der überdachte Balkon ist über das Wohnzimmer oder den Flur erreichbar.
Das Haus ist teilweise unterkellert. Es gibt einen Raum unter dem Wohnzimmer und zusätzlichen Stauraum unter dem Schlafzimmer. Weitere Lager- und Abstellfläche befindet sich im Erdgeschossbereichs des Anbaus. Hier sind auch die Heizung und die Öltank untergebracht sowie eine Garage mit Durchfahrt auf das großflächige Gartengrundstück.
Der Garten bietet Ihnen viele Möglichkeiten, ob sie Ihr eigenes Gemüse anbauen oder einfach Raum zum Entspannen oder einen Spielplatz für Ihre Kinder schaffen möchten.
Die Immobilie ist stark renovierungsbedürftig, bietet jedoch hervorragende Möglichkeiten zur individuellen Neustrukturierung, Modernisierung oder Teilabriss-/Neubauplanungen.
Die idyllische Lage in Ötigheim verbindet ländlichen Charme mit der Nähe zu städtischen Annehmlichkeiten, wodurch Sie das Beste aus beiden Welten genießen können. Nutzen Sie die Chance, dieses besondere Haus zu erwerben und es in ein Zuhause voller Charme und moderner Bequemlichkeiten zu verwandeln.
Ausstattungsmerkmale
| Anzahl der Etagen im Haus | 2 |
| Bad | 2 |
| Balkone | 1 |
| Keller |
- Garage im Haus
- Holzdielenböden
- Parkett-, Teppich- und PVC-Böden
- Holzdielenböden
- Parkett-, Teppich- und PVC-Böden
Karte wird geladen...
Objektstandort
76470 Ötigheim
Lage & Infrastruktur
Objektstandort
76470 Ötigheim
Dieses gepflegte Anwesen liegt in einer ruhigen Wohngegend, die vor allem für ihre familienfreundliche Atmosphäre geschätzt wird. In der näheren Umgebung finden Sie zahlreiche Grünflächen, die zu erholsamen Spaziergängen oder sportlichen Aktivitäten einladen. Die ausgezeichnete Infrastruktur der Gemeinde garantiert eine bequeme Erreichbarkeit von Schulen, Kindergärten und vielfältigen Einkaufsmöglichkeiten.
Ötigheim ist verkehrstechnisch gut angebunden, mit schnellen Verbindungen zu den umliegenden Städten und der Metropolregion Karlsruhe. Dadurch genießen Sie sowohl eine hervorragende Lebensqualität als auch die Möglichkeit, die vielfältigen kulturellen und beruflichen Angebote der Region zu nutzen. Entdecken Sie die perfekte Kombination aus naturnahem Wohnen und einer exzellenten Anbindung in diesem einzigartigen Zweifamilienhaus.
Ötigheim ist verkehrstechnisch gut angebunden, mit schnellen Verbindungen zu den umliegenden Städten und der Metropolregion Karlsruhe. Dadurch genießen Sie sowohl eine hervorragende Lebensqualität als auch die Möglichkeit, die vielfältigen kulturellen und beruflichen Angebote der Region zu nutzen. Entdecken Sie die perfekte Kombination aus naturnahem Wohnen und einer exzellenten Anbindung in diesem einzigartigen Zweifamilienhaus.
Kontaktanfrage senden
Über den Anbieter
VR-Bank in Mittelbaden eG
Hügelsheimer Str. 6
76473 Iffezheim
Kontakt
| Telefon | 004972296022425 |
| Mobil | 00491727206844 |
| Website | www.vr-miba.de |
Ansprechpartner/in
Frau Annette Rast
Weitere Angebote des Anbieters
36
Abriss, Teilabriss oder Sanierung - hier ist alles ...
Haus
76470 Ötigheim
Das ursprünglich um Jahr 1900 erbaute Haus, wurde 1964 und 1970 mit einem Anbau/Umbau des Ökonomiegebäudes zu einem Zweifamilienhaus ergänzt. Das Haus erstreckt sich über zwei Etagen und bietet eine großzügige ...
220.000 €
Kaufpreis
147,86 m²
Wohnfläche
5
Zimmer
17
Großzügige Maisonettewohnung mit ca. 165 m² ...
Wohnung
76437 Rastatt
Entdecken Sie Ihr zukünftiges Zuhause in Rastatt – eine charmante Maisonette-Wohnung mit großem Potenzial! Mit einer Wohnfläche von ca. 165 m² bietet sie genügend Platz für Familien oder Paare mit Anspruch. Die ...
369.000 €
Kaufpreis
164,85 m²
Wohnfläche
5
Zimmer
22
Ideal für die junge Familie! Attraktive 4 Zi.-Wohnung ...
Wohnung
76437 Rastatt
Willkommen in Ihrem neuen Zuhause in Rastatt! Diese großzügige und gepflegte Etagenwohnung bietet auf ca. 112 m² Wohnfläche den perfekten Rückzugsort für Ihre Familie. Erbaut im Jahr 1976, befindet sich die Wohnung in ...
320.000 €
Kaufpreis
112 m²
Wohnfläche
4
Zimmer
19
Wohnen mit Aussicht! 1,5 Zi.-DG Wohnung mit Garage am ...
Wohnung
76532 Baden-Baden / Oos
Diese charmante Dachgeschosswohnung in der begehrten Lage von Baden-Baden / Oos besticht durch ihren gepflegten Zustand und ihre attraktive Lage. Auf einer Wohnfläche von ca. 60 m² erleben Sie den einzigartigen ...
168.000 €
Kaufpreis
60 m²
Wohnfläche
1,5
Zimmer
14
- Achtung Kapitalanleger - Charmante 2 Zimmer ...
Wohnung
76593 Gernsbach
Zum Verkauf steht eine charmante Etagenwohnung in einem historischen Mehrfamilienhaus aus dem Jahr 1910 im malerischen Gernsbach. Diese gut erhaltene Immobilie bietet auf ca. 58 m² Wohnfläche ausreichend Platz zum ...
125.000 €
Kaufpreis
57,9 m²
Wohnfläche
2
Zimmer