Geräumige 3-Zimmer-Wohnung mit Balkon in Schkeuditz, 2. OG
880 €
Kaltmiete (netto)
84 m²
Wohnfläche
3
Zimmer
immobilien.de Nr.: 9496998
Objektnummer: 434283
Mietpreis & Nebenkosten
| Kaltmiete (netto) | 880 € |
| Nebenkosten | 120 € |
| Heizkosten enthalten | Ja |
| Kaution | 2.200 € |
Wohnfläche, Grundstück & Bausubstanz
| Wohnfläche | 84 m² |
| Zimmer | 3 |
| Baujahr | 1990 |
| Verfügbar ab | sofort |
| Zustand | Teil Vollsaniert |
Energie
| Heizungsart | Etagenheizung |
| Energieträger/Befeuerung | Elektro |
Beschreibung der Immobilie
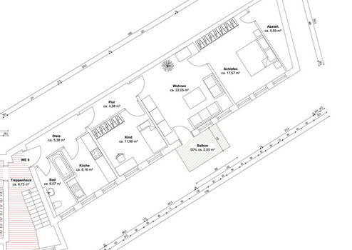
Willkommen in der Leipziger Straße 19: Diese gut geschnittene 3-Zimmer-Wohnung (WE09) im 2. Obergeschoss rechts bietet auf ca. 84 m² ein angenehmes Zuhause mit Balkon – ideal für Paare, kleine Familien, WGs oder alle, die Wohnen und Arbeiten flexibel kombinieren möchten. Der Grundriss überzeugt mit klarer Aufteilung: Ein zentraler Flur verbindet die Räume und sorgt für kurze Wege. Das großzügige Wohnzimmer bildet den Mittelpunkt der Wohnung und öffnet sich zum Balkon – ein schöner Platz für den Feierabend oder den ersten Kaffee am Morgen. Zwei weitere Zimmer lassen sich je nach Bedarf als Schlaf-, Kinder-, Gäste- oder Arbeitszimmer nutzen. Küche und Bad sind funktional angeordnet und runden das stimmige Gesamtbild ab. Die Wohnanlage stammt aus dem Baujahr 1990 und befindet sich in Schkeuditz – einer Lage, die Alltagstauglichkeit und gute Anbindung miteinander verbindet.
Objektzustand: Erstbezug nach Sanierung
Objektzustand: Erstbezug nach Sanierung
Ausstattungsmerkmale
| Anzahl der Etagen im Haus | 3 |
| Inserat befindet sich im Stockwerk | 3 |
| Balkone | 1 |
| Terrassen | 0 |
| Keller |
Balkon, Keller
Bemerkungen:
- Einheit: WE09
- Lage im Gebäude: 2. Obergeschoss rechts
- Wohnfläche: ca. 84 m²
- Zimmer: 3
- Balkon: vorhanden
- Objekt: Leipziger Straße 19, 04435 Schkeuditz
- Baujahr: 1990
- Heizung: Etagenheizung (Nachtspeicheröfen über Strom)
- Energieeffizienzklasse: D
- Denkmalgeschützt: nein
- Parkmöglichkeiten: kann angemeitet werden
- Haustiere: nach Vereinbarung
- Verfügbarkeit: ab sofort
Bemerkungen:
- Einheit: WE09
- Lage im Gebäude: 2. Obergeschoss rechts
- Wohnfläche: ca. 84 m²
- Zimmer: 3
- Balkon: vorhanden
- Objekt: Leipziger Straße 19, 04435 Schkeuditz
- Baujahr: 1990
- Heizung: Etagenheizung (Nachtspeicheröfen über Strom)
- Energieeffizienzklasse: D
- Denkmalgeschützt: nein
- Parkmöglichkeiten: kann angemeitet werden
- Haustiere: nach Vereinbarung
- Verfügbarkeit: ab sofort
Sonstige Informationen
Heizungsart: Etagenheizung
Energieträger: Strom
Energieausweis nicht vorhanden
Makleranfragen nicht erwünscht. Nach § 7 UWG sind unaufgeforderte Kontaktaufnahmen durch Makler ohne ausdrückliche Einwilligung des Empfängers verboten!
ohne-makler (OM) ist weder Anbieter noch Vermittler der Immobilie. OM betreibt eine Plattform für Immobilieneigentümer, die unter anderem die gleichzeitige Veröffentlichung einzelner Inserate auf mehreren Immobilienportalen ermöglicht. Die Inhalte dieser Inserate werden ausschließlich von Dritten verantwortet. Für die Richtigkeit, Vollständigkeit oder Rechtmäßigkeit der Angaben übernimmt OM keine Haftung. Hinweise auf mögliche Rechtsverstöße können jederzeit gemeldet werden und werden nach Prüfung umgehend bearbeitet.
Energieträger: Strom
Energieausweis nicht vorhanden
Makleranfragen nicht erwünscht. Nach § 7 UWG sind unaufgeforderte Kontaktaufnahmen durch Makler ohne ausdrückliche Einwilligung des Empfängers verboten!
ohne-makler (OM) ist weder Anbieter noch Vermittler der Immobilie. OM betreibt eine Plattform für Immobilieneigentümer, die unter anderem die gleichzeitige Veröffentlichung einzelner Inserate auf mehreren Immobilienportalen ermöglicht. Die Inhalte dieser Inserate werden ausschließlich von Dritten verantwortet. Für die Richtigkeit, Vollständigkeit oder Rechtmäßigkeit der Angaben übernimmt OM keine Haftung. Hinweise auf mögliche Rechtsverstöße können jederzeit gemeldet werden und werden nach Prüfung umgehend bearbeitet.
Karte wird geladen...
Objektstandort
Leipziger Straße 19
04435 Schkeuditz
- Sachsen
Lage & Infrastruktur
Objektstandort
Leipziger Straße 19
04435 Schkeuditz
- Sachsen
Die Leipziger Straße liegt in Schkeuditz (04435) mit guter Erreichbarkeit von Einkaufsmöglichkeiten, Dienstleistern und Einrichtungen des täglichen Bedarfs. Schulen, Kitas und Freizeitangebote sind in der Umgebung vorhanden und machen den Standort auch für Familien attraktiv. Durch die verkehrsgünstige Lage profitieren Sie von einer soliden Anbindung an den Nahverkehr sowie an die regionalen Verkehrsachsen. Damit sind sowohl das Leipziger Stadtgebiet als auch umliegende Arbeits- und Freizeitziele bequem erreichbar – ein Plus für Pendler und alle, die flexibel bleiben möchten.
Ein Stellplatz direkt vor dem Haus kann für 30€ monatlich dazugemietet werden.
Infrastruktur (im Umkreis von 5 km):
Apotheke, Lebensmittel-Discount, Allgemeinmediziner, Kindergarten, Hauptschule, Gymnasium, Öffentliche Verkehrsmittel
Ein Stellplatz direkt vor dem Haus kann für 30€ monatlich dazugemietet werden.
Infrastruktur (im Umkreis von 5 km):
Apotheke, Lebensmittel-Discount, Allgemeinmediziner, Kindergarten, Hauptschule, Gymnasium, Öffentliche Verkehrsmittel
Kontaktanfrage senden
Über den Anbieter
OM PropTech GmbH
Humboldtstraße 25a
21509 Glinde
Kontakt
| Telefon | 0341 98994588 |
| Fax | - |
| Website | www.ohne-makler.net |
Ansprechpartner/in
Angebot von raumFrei GmbH
Weitere Angebote des Anbieters
13
*** schöne 2 Zi-Whg mit Balkon in Ergoldsbach TOP LAGE ...
Wohnung
84061 Ergoldsbach
Die Wohnung zeichnet sich durch eine gehobene Innenausstattung aus und kann ab sofort bezogen werden. Die Wohnung verfügt über ein Bad mit grosser begehbarer Dusche, und Waschmaschinenanschluss, der Wohn- Ess- und ...
720 €
Kaltmiete (netto)
58 m²
Wohnfläche
2
Zimmer
37
Traum Anwesen mit Haus, Stall und Wiesen in Waging am ...
Haus
83329 Waging am See
Der Waldhof, ein Anwesen für Liebhaber, die Alleinlage mit Blick und Wald im Hintergrund suchen. Großes Haus auf 4 Ebenen, mit 7 Zimmern, 1 Bädern, 3 WC's, Einlieger-Wohnung separat (mit 2 Zimmern, Küche und Bad), ...
2.950.000 €
Kaufpreis
200 m²
Wohnfläche
9
Zimmer
10
Schönes Grundstück, großes Baufenster für 1 bis 3 ...
Grundstück
68789 St.Leon-Rot
Gestalt und Form: -693 m2 großes Grundstück, das Flurstück Nr. 5156 ist annährend rechteckig geschnitten und relativ eben. Es hat zur Straße und zu den Nachbargrundstücken normale Höhenlagen. Die straßenanliegende ...
499.999 €
Kaufpreis
693 m²
Grundstücksfläche
24
Ein-/Zweifamilienhaus mit schönem Grundstück
Haus
26127 Oldenburg
Dieses liebevoll gepflegte Siedlungshaus aus den 1950er Jahren bietet eine gemütliche und solide Basis für Familien, Paare oder Investoren. Das Haus besticht durch seinen klassischen Baustil, eine funktionale ...
337.000 €
Kaufpreis
154 m²
Wohnfläche
5
Zimmer
15
großzügige Wohnung mit großem Balkon- frisch renoviert
Wohnung
61184 Karben
Willkommen in Ihrem neuen Zuhause! Diese lichtdurchflutete ruhige Wohnung bietet viel Raum für Komfort und Gemütlichkeit. Wohnfläche: ca. 119,5 m² plus ca .15 m² Balkon über die gesamte Fensterfront - Zimmer: 3 - ...
1.300 €
Kaltmiete (netto)
119,5 m²
Wohnfläche
3
Zimmer