Sonnige 2-Zimmer-Dachgeschosswohnung - 93059 Regensburg – Innstraße
750 €
Kaltmiete (netto)
50 m²
Wohnfläche
2
Zimmer
immobilien.de Nr.: 9496971
Objektnummer: 433400
Mietpreis & Nebenkosten
| Kaltmiete (netto) | 750 € |
| Nebenkosten | 180 € |
| Heizkosten enthalten | Ja |
| Stellplatz Freiplatz Miete} | 50 € |
Wohnfläche, Grundstück & Bausubstanz
| Wohnfläche | 50 m² |
| Zimmer | 2 |
| Baujahr | 1976 |
| Verfügbar ab | sofort |
| Zustand | Teil Vollsaniert |
Energie
| Energieausweistyp | Bedarfsausweis |
| Energieeffizienzklasse | D |
| Endenergiebedarf | 128 |
| Heizungsart | Zentralheizung |
| Energieträger/Befeuerung | Öl |
Beschreibung der Immobilie
Zur Vermietung steht eine hochwertig modernisierte 2-Zimmer-Wohnung im Dachgeschoss mit ca. 50 m² Wohnfläche. Die Immobilie überzeugt durch einen klar strukturierten Grundriss, helle Räume sowie eine angenehme Süd-Westausrichtung.
Die Wohnung wurde 2026 umfassend saniert und befindet sich in einem technisch wie optisch zeitgemäßen Zustand. Sie eignet sich ideal für 1–2 Personen.
•Nettokaltmiete: 690 € / Monat
•Küchenmiete 60 € / Monat
•Nebenkosten (Heizung/Wasser/Abwasser, Vorauszahlung): 180 € / Monat
•Stellplatz: 50 € / Monat
•Kaution: 3 Nettokaltmieten
•Strom: direkt durch den Mieter anzumelden
•Mindestmietdauer: 24 Monate
•Mietvertrag mit Wertsicherungsklausel (Indexmiete)
•Bezug: ab sofort möglich
Die Nebenkosten werden im Rahmen der gesetzlichen Vorgaben jährlich abgerechnet.
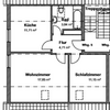
Raumaufteilung:
•Großzügiges Wohnzimmer
•Ruhig gelegenes Schlafzimmer
•Separate Küche mit neuer Einbauküche inkl. Elektrogeräten
•Waschmaschinenanschluss im Bad
•Modernes Tageslichtbad mit Dusche und Spiegelschrank
•Kellerabteil im Untergeschoss
•1 Stellplatz vorm Haus
• Gemeinschaftsgarten
• Überdachter Fahrradstellplatz
Objektzustand: Erstbezug nach Sanierung
Die Wohnung wurde 2026 umfassend saniert und befindet sich in einem technisch wie optisch zeitgemäßen Zustand. Sie eignet sich ideal für 1–2 Personen.
•Nettokaltmiete: 690 € / Monat
•Küchenmiete 60 € / Monat
•Nebenkosten (Heizung/Wasser/Abwasser, Vorauszahlung): 180 € / Monat
•Stellplatz: 50 € / Monat
•Kaution: 3 Nettokaltmieten
•Strom: direkt durch den Mieter anzumelden
•Mindestmietdauer: 24 Monate
•Mietvertrag mit Wertsicherungsklausel (Indexmiete)
•Bezug: ab sofort möglich
Die Nebenkosten werden im Rahmen der gesetzlichen Vorgaben jährlich abgerechnet.
Raumaufteilung:
•Großzügiges Wohnzimmer
•Ruhig gelegenes Schlafzimmer
•Separate Küche mit neuer Einbauküche inkl. Elektrogeräten
•Waschmaschinenanschluss im Bad
•Modernes Tageslichtbad mit Dusche und Spiegelschrank
•Kellerabteil im Untergeschoss
•1 Stellplatz vorm Haus
• Gemeinschaftsgarten
• Überdachter Fahrradstellplatz
Objektzustand: Erstbezug nach Sanierung
Ausstattungsmerkmale
| Anzahl der Etagen im Haus | 3 |
| Inserat befindet sich im Stockwerk | 2 |
| Küche | Einbauküche |
| Bad | 1 |
| Bad | Dusche |
| Boden | Fliesen, Kunststoff |
| Garten | |
| Keller |
Garten, Keller, Duschbad, Einbauküche, Fliesen
Bemerkungen:
Im Zuge der Sanierung wurden folgende Maßnahmen umgesetzt:
•Dreifach verglaste Isolierfenster
•Außenrollläden
•elektrische Dachfensterrollläden SZ + WZ
•Neue Heizkörper
•Moderne, energiesparende Heizungsanlage
•Lüftungsgerät WZ mit Wärmerückgewinnung
•Neue Innentüren
•Neuer hochwertiger Vinylbodenbelag
•Wände und Decken neu gestrichen
•Neue Einbauküche mit Elektrogeräten
•Modernisiertes Tageslichtbad
•Glasdusche
•Kabelanschluss im Haus vorhanden
Die Wohnung wird als Nichtraucherwohnung angeboten.
Die Gartennutzung erfolgt als Gemeinschaftsgarten.
Bemerkungen:
Im Zuge der Sanierung wurden folgende Maßnahmen umgesetzt:
•Dreifach verglaste Isolierfenster
•Außenrollläden
•elektrische Dachfensterrollläden SZ + WZ
•Neue Heizkörper
•Moderne, energiesparende Heizungsanlage
•Lüftungsgerät WZ mit Wärmerückgewinnung
•Neue Innentüren
•Neuer hochwertiger Vinylbodenbelag
•Wände und Decken neu gestrichen
•Neue Einbauküche mit Elektrogeräten
•Modernisiertes Tageslichtbad
•Glasdusche
•Kabelanschluss im Haus vorhanden
Die Wohnung wird als Nichtraucherwohnung angeboten.
Die Gartennutzung erfolgt als Gemeinschaftsgarten.
Sonstige Informationen
Heizungsart: Zentralheizung
Energieträger: Öl
Bitte richten Sie Ihre Anfrage vollständig mit Namen, E-Mail-Adresse und Telefonnummer an uns und teilen Sie uns Ihren bevorzugten Besichtigungstermin mit.
Für den Abschluss eines Mietvertrages werden nach der Besichtigung üblicherweise folgende Unterlagen benötigt:
•Mieter-Selbstauskunft
•Bonitätsnachweis (z. B. SCHUFA-Auskunft)
•Einkommensnachweise
•Identitätsnachweis
•Vorvermieterbestätigung (sofern vorhanden)
Die Haltung von Hunden und Katzen ist nicht vorgesehen
Anfragen von Immobilienmaklern sind nicht erwünscht
B+S Vermietung
Makleranfragen nicht erwünscht. Nach § 7 UWG sind unaufgeforderte Kontaktaufnahmen durch Makler ohne ausdrückliche Einwilligung des Empfängers verboten!
ohne-makler (OM) ist weder Anbieter noch Vermittler der Immobilie. OM betreibt eine Plattform für Immobilieneigentümer, die unter anderem die gleichzeitige Veröffentlichung einzelner Inserate auf mehreren Immobilienportalen ermöglicht. Die Inhalte dieser Inserate werden ausschließlich von Dritten verantwortet. Für die Richtigkeit, Vollständigkeit oder Rechtmäßigkeit der Angaben übernimmt OM keine Haftung. Hinweise auf mögliche Rechtsverstöße können jederzeit gemeldet werden und werden nach Prüfung umgehend bearbeitet.
Energieträger: Öl
Bitte richten Sie Ihre Anfrage vollständig mit Namen, E-Mail-Adresse und Telefonnummer an uns und teilen Sie uns Ihren bevorzugten Besichtigungstermin mit.
Für den Abschluss eines Mietvertrages werden nach der Besichtigung üblicherweise folgende Unterlagen benötigt:
•Mieter-Selbstauskunft
•Bonitätsnachweis (z. B. SCHUFA-Auskunft)
•Einkommensnachweise
•Identitätsnachweis
•Vorvermieterbestätigung (sofern vorhanden)
Die Haltung von Hunden und Katzen ist nicht vorgesehen
Anfragen von Immobilienmaklern sind nicht erwünscht
B+S Vermietung
Makleranfragen nicht erwünscht. Nach § 7 UWG sind unaufgeforderte Kontaktaufnahmen durch Makler ohne ausdrückliche Einwilligung des Empfängers verboten!
ohne-makler (OM) ist weder Anbieter noch Vermittler der Immobilie. OM betreibt eine Plattform für Immobilieneigentümer, die unter anderem die gleichzeitige Veröffentlichung einzelner Inserate auf mehreren Immobilienportalen ermöglicht. Die Inhalte dieser Inserate werden ausschließlich von Dritten verantwortet. Für die Richtigkeit, Vollständigkeit oder Rechtmäßigkeit der Angaben übernimmt OM keine Haftung. Hinweise auf mögliche Rechtsverstöße können jederzeit gemeldet werden und werden nach Prüfung umgehend bearbeitet.
Karte wird geladen...
Objektstandort
93093 Donaustauf
- Bayern
Lage & Infrastruktur
Objektstandort
93093 Donaustauf
- Bayern
Die Wohnung befindet sich in der Innstraße in 93059 Regensburg. Die Lage verbindet eine sehr gute Infrastruktur mit angenehmer Wohnruhe.
Das Donaueinkaufszentrum ist nur ca. 100 m entfernt und fußläufig erreichbar. Einkaufsmöglichkeiten, Dienstleistungen sowie öffentliche Verkehrsanbindungen befinden sich in unmittelbarer Umgebung.
Trotz der zentralen Lage ist die Wohnung ruhig ausgerichtet und profitiert von ihrer sonnigen Süd- Westlage.
Infrastruktur (im Umkreis von 5 km):
Apotheke, Lebensmittel-Discount, Allgemeinmediziner, Kindergarten, Grundschule, Hauptschule, Realschule, Gymnasium, Gesamtschule, Öffentliche Verkehrsmittel
Das Donaueinkaufszentrum ist nur ca. 100 m entfernt und fußläufig erreichbar. Einkaufsmöglichkeiten, Dienstleistungen sowie öffentliche Verkehrsanbindungen befinden sich in unmittelbarer Umgebung.
Trotz der zentralen Lage ist die Wohnung ruhig ausgerichtet und profitiert von ihrer sonnigen Süd- Westlage.
Infrastruktur (im Umkreis von 5 km):
Apotheke, Lebensmittel-Discount, Allgemeinmediziner, Kindergarten, Grundschule, Hauptschule, Realschule, Gymnasium, Gesamtschule, Öffentliche Verkehrsmittel
Kontaktanfrage senden
Über den Anbieter
OM PropTech GmbH
Humboldtstraße 25a
21509 Glinde
Kontakt
| Telefon | - |
| Fax | - |
| Website | www.ohne-makler.net |
Ansprechpartner/in
Privat vom Eigentümer
Weitere Angebote des Anbieters
8
LAGERRÄUME 24/7 begehbar videoüberwacht
Hallen / Lager / Produktion
55271 Stadecken-Elsheim
Lagerlabyrinth Auf 3000 m² finden Sie bei uns verschiedene Grössen an Lagerflächen 1m² bis 50 m² Über drei Etagen verteilt finden Sie verschiedene Lagerräume für Kleingewerbe, Handel, Firmengründungen oder Startups ...
keine Angabe
Preis
17 m²
Gesamtfläche
7
Erstbezug! Stilvolle 2-Zi KfW Neubauwohnung in Toplage ...
Wohnung
65385 Rüdesheim am Rhein
Diese moderne Neubauwohnung in Rüdesheim am Rhein verbindet zeitgemäßen Wohnkomfort mit energieeffizienter Bauweise. Die Wohnung wurde in 2025 gebaut und ist ab sofort einzugsbereit. Ein besonderes Highlight dieser ...
880 €
Kaltmiete (netto)
51,5 m²
Wohnfläche
2
Zimmer
8
Geräumige 3-Zimmer-Wohnung mit Balkon in Schkeuditz, 2 ...
Wohnung
04435 Schkeuditz
Willkommen in der Leipziger Straße 19: Diese gut geschnittene 3-Zimmer-Wohnung (WE09) im 2. Obergeschoss rechts bietet auf ca. 84 m² ein angenehmes Zuhause mit Balkon – ideal für Paare, kleine Familien, WGs oder alle, ...
880 €
Kaltmiete (netto)
84 m²
Wohnfläche
3
Zimmer
10
Dreifamilienhaus Bj 2020, Angebot EG Wohnung mit ...
Haus
97980 Bad Mergentheim
In diesem Dreifamilienhaus werden die Wohnungen einzeln verkauft. Der angegebene Kaufpreis gilt für den Kauf der Erdgeschoßwohnung. Diese wird sofort zum Kauf angeboten, die beiden Dachgeschoßwohnungen können ab ...
829.000 €
Kaufpreis
177 m²
Wohnfläche
5
Zimmer
16
1-Zimmerwohnung mit Balkon und Tiefgaragenstellplatz-Pr ...
Wohnung
10587 Berlin
Unvermietete Einzimmerwohnung in zentraler Lage. Die Wohnung verfügt über einen schönen Balkon mit seitlichem Blick auf die Spree. Der Flur bietet Platz für eine Waschmaschine und Abstellfläche. Vom Wohnzimmer geht ...
189.500 €
Kaufpreis
30,72 m²
Wohnfläche
1
Zimmer