Neubau mit Fußbodenheizung im Erstbezug / Das Neue Gartenfeld
1.321,69 €
Kaltmiete (netto)
1.637,97 €
Warmmiete
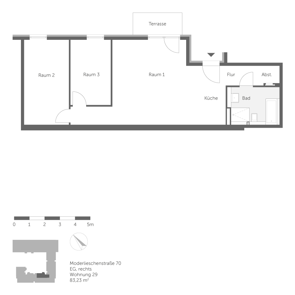
83,23 m²
Wohnfläche
3
Zimmer
immobilien.de Nr.: 9495246
Objektnummer: 6011/31046/0105/0029
Dateien
Mietpreis & Nebenkosten
| Kaltmiete (netto) | 1.321,69 € |
| Warmmiete | 1.637,97 € |
| Nebenkosten | 158,14 € |
| Heizkosten | 158,14 € |
| Kaution | 3965,07 € |
Wohnfläche, Grundstück & Bausubstanz
| Wohnfläche | 83,23 m² |
| Zimmer | 3 |
| Baujahr | 2025 |
| Verfügbar ab | 01.03.2026 |
Energie
| Energieausweistyp | Bedarfsausweis |
| Energieeffizienzklasse | B |
| Endenergiebedarf | 69.50 |
| Heizungsart | Fernwärme |
| Energieträger/Befeuerung | Fernwärme |
Beschreibung der Immobilie
Willkommen im naturnahen Quartier „Neues Gartenfeld“ in Siemensstadt. Diese Neubauwohnung im Erstbezug lässt kaum Wünsche offen und präsentiert sich mit strapazierfähigen Vinylboden in Holzoptik, Fußbodenheizung, hochwertigen Fenstern und einem modern gefliesten Bad. Erfreuen Sie sich an dem geräumigen Balkon, der viel Platz zum Entspannen bietet. Der offen gehaltene Wohn- und Küchenbereich lässt vielfältige Gestaltungsmöglichkeiten zu. Der Gebäudekomplex verfügt über keine Mieterkeller. Sie sind an einer Besichtigung interessiert? Dann senden Sie uns bitte eine einfache Anfrage über den entsprechenden Button ("Anbieter kontaktieren" oder "Anfrage senden").
Ausstattungsmerkmale
| Anzahl der Etagen im Haus | 6 |
| Inserat befindet sich im Stockwerk | 0 |
| Balkone | 1 |
| Fahrstuhl | |
| Barrierefrei | |
| Haustiere |
Badewanne, Fernheizung/Zentralheizung, Fern-/Zentralwarmwasserversorgung, Handtuchheizkörper, Fußbodenheizung, Barrierearme Wohnungsgestaltung
Sonstige Informationen
Hinweis zu Ihrem Schutz: Wir vermieten provisionsfrei gemäß § 2 WoVermG. Personen, die im Auftrag der Gewobag tätig sind, dürfen keine Provision von Ihnen verlangen.
Anbieter
Eigentümer/Vermieter oder Verwalter des jeweiligen Mietobjekts ist Gewobag Wohnungsbau-Aktien- gesellschaft Berlin. Die Gewobag MB Mieterberatungsgesellschaft mbH übernimmt den Vermietungsservice für diese Gesellschaft. Weitere Informationen finden Sie unter www.gewobag.de/datenschutz .
Anbieter
Eigentümer/Vermieter oder Verwalter des jeweiligen Mietobjekts ist Gewobag Wohnungsbau-Aktien- gesellschaft Berlin. Die Gewobag MB Mieterberatungsgesellschaft mbH übernimmt den Vermietungsservice für diese Gesellschaft. Weitere Informationen finden Sie unter www.gewobag.de/datenschutz .
Karte wird geladen...
Objektstandort
Moderlieschenstr. 70
13599 Berlin
Lage & Infrastruktur
Objektstandort
Moderlieschenstr. 70
13599 Berlin
Insellage trifft Industriecharme und frische Ideen: In Berlin-Spandau entsteht ein neues, naturnahes Quartier. Eingerahmt von Schifffahrtskanälen entsteht in den kommenden Jahren eine „Stadt in der Stadt“ – unweit von Havel, Tegeler See und Jungfernheide, ganzheitlich konzipiert, mit vielfältigem Flair und bezahlbaren Mieten.
Kontaktanfrage senden
Über den Anbieter
Gewobag Wohnungsbau-Aktiengesellschaft Berlin
Alt-Moabit 101 A
10559 Berlin
Kontakt
| Telefon | +49 30 47084000 |
| Website | www.gewobag.de |
Ansprechpartner/in
Gewobag MB Mieterberat.ges. mbH (Vermietungs-Service)
Weitere Angebote des Anbieters
9
Helle 2-Zimmer-Wohnung mit Balkon und Wasserblick – ...
Wohnung
13599 Berlin
Die gut geschnittene Neubauwohnung im Erdgeschoss befindet sich in neuer und gepflegter Wohnanlage. Der offen gehaltene Wohn- und Küchenbereich lässt vielfältige Gestaltungsmöglichkeiten zu. Alle Wohnungen verfügen ...
1.159,76 €
Kaltmiete (netto)
64,82 m²
Wohnfläche
2
Zimmer
10
Neubauwohnung mit Blick auf die Havel!
Wohnung
13599 Berlin
Die gut geschnittene Neubauwohnung befindet sich in einer gepflegter Wohnanlage. Der offen gehaltene Wohn- und Küchenbereich lässt vielfältige Gestaltungsmöglichkeiten zu. Alle Wohnungen verfügen über zentrale ...
1.562,12 €
Kaltmiete (netto)
87,25 m²
Wohnfläche
4
Zimmer
8
Bezugsfertig!
Wohnung
13593 Berlin
Die gut geschnittene Zweizimmerwohnung mit Balkon befindet sich im 1.Obergeschoss, das Haus verfügt über einen Aufzug. Die Wohnung ist unter anderem mit einem Linoleum- Bodenbelag, einem Wannenbad, Nachtspeicherheizung ...
348,91 €
Kaltmiete (netto)
62,52 m²
Wohnfläche
2
Zimmer
7
Familiengerecht!
Wohnung
13593 Berlin
Die gut geschnittene Zweieinhalbzimmerwohnung mit Balkon befindet sich im 2.Obergeschoss, das Haus verfügt über einen Aufzug. Die Wohnung ist unter anderem mit einem Linoleum- Bodenbelag, einem Wannenbad, ...
587,81 €
Kaltmiete (netto)
77,11 m²
Wohnfläche
2,5
Zimmer
9
Neubauwohnung an der Waterkant mit Balkon und ...
Wohnung
13599 Berlin
Die gut geschnittene Neubauwohnung befindet sich in neuer und gepflegter Wohnanlage. Der offen gehaltene Wohn- und Küchenbereich lässt vielfältige Gestaltungsmöglichkeiten zu. Alle Wohnungen verfügen über zentrale ...
1.248,85 €
Kaltmiete (netto)
78,63 m²
Wohnfläche
3
Zimmer