Altengerechte Wohnung in ruhigem Wohnhaus zu vermieten.
1.188 €
Kaltmiete
98,66 m²
Wohnfläche
3
Zimmer
immobilien.de Nr.: 9493115
Objektnummer: 6678
Mietpreis & Nebenkosten
| Kaltmiete | 1.188 € |
| Nebenkosten | 379,47 € |
| Heizkosten enthalten | Ja |
| Kaution | 2.170 € |
Wohnfläche, Grundstück & Bausubstanz
| Wohnfläche | 98,66 m² |
| Zimmer | 3 |
| Baujahr | 2014 |
| Verfügbar ab | 01.05.26 |
| Zustand | Neuwertig |
Energie
| Energieausweistyp | Bedarfsausweis |
| Gültig bis | 21.05.2025 |
| Heizungsart | Zentralheizung, Fußbodenheizung |
| Energieträger/Befeuerung | Gas |
Beschreibung der Immobilie
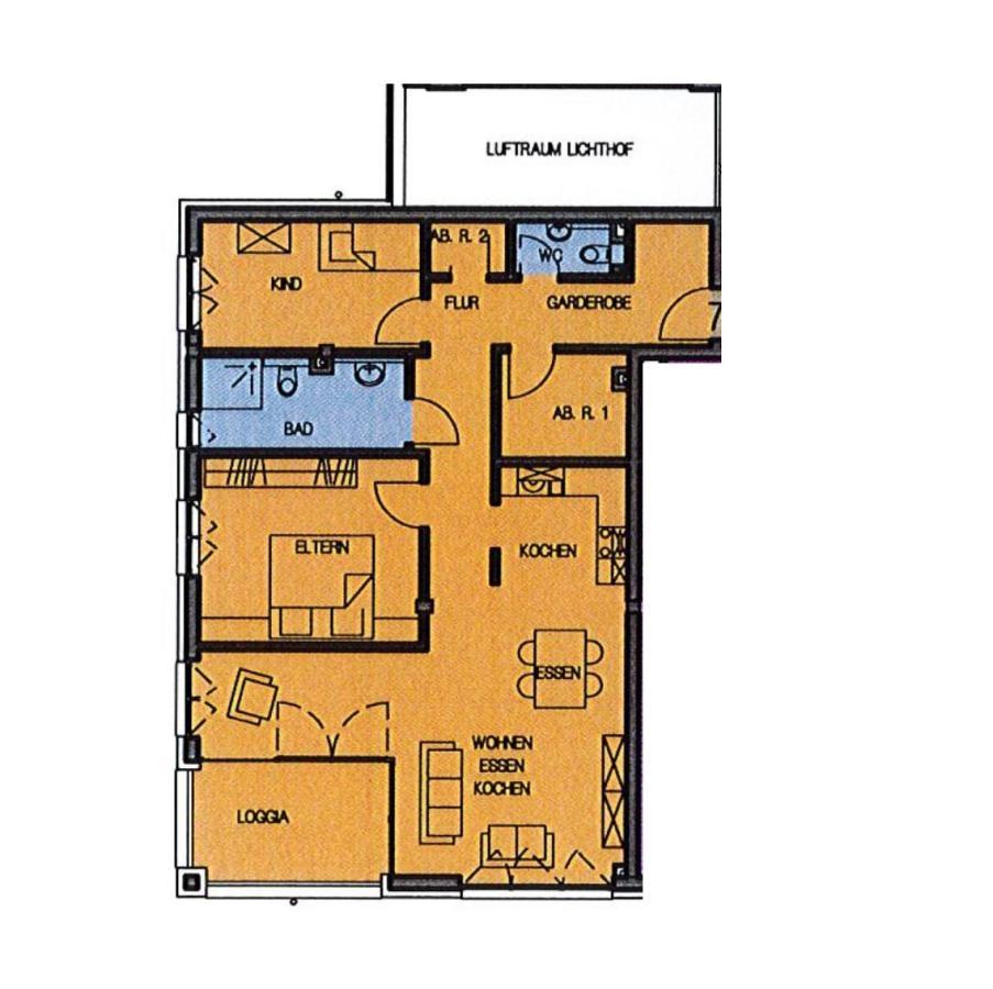
Diese schöne 98m² große Wohnung befindet sich in einem sehr ruhigen und gut gepflegtem Wohn / Geschäftshaus.
Die Wohnung befindet sich im 1. Obergeschoss des Gebäudes.
Das 1.OG erreichen Sie ohne Einschränkungen über den Fahrstuhl des Hauses.
Nach dem Durchschreiten der Wohnungseingangstür finden Sie sich in einem kleinen Eingangsbereich wieder. Zu Ihrer rechten ist eine kleine Ecke mit genug Platz für eine großzügige Garderobe.
Im ersten Teil des Flures finden Sie zu Ihrer linken eine große Waschküche mit allen nötigen Anschlüssen. Zu Ihrer rechten ein Gäste-WC und einen Abstellraum.
Im weiteren Teil des Flures liegen die beiden Schlafzimmer der Wohnung und das Tageslichtbad.
Das Tageslichtbad ist in einem perfekten Zustand, komplett gefliest und mit einer Duschwanne ausgestattet.
Am Ende des Flures gelangen Sie in den Wohnbereich der Wohnung. Dieser besteht aus einer großen offenen Küche mit Kochinsel, einem angrenzendem Wohnzimmer und einer großzügigen Loggia.
Die Küche kann bei Bedarf von den jetzigen Mietern nach Absprache übernommen werden.
Es besteht die Möglichkeit einen Stellplatz für 60€ im Monat anzumieten.
Die Wohnung befindet sich im 1. Obergeschoss des Gebäudes.
Das 1.OG erreichen Sie ohne Einschränkungen über den Fahrstuhl des Hauses.
Nach dem Durchschreiten der Wohnungseingangstür finden Sie sich in einem kleinen Eingangsbereich wieder. Zu Ihrer rechten ist eine kleine Ecke mit genug Platz für eine großzügige Garderobe.
Im ersten Teil des Flures finden Sie zu Ihrer linken eine große Waschküche mit allen nötigen Anschlüssen. Zu Ihrer rechten ein Gäste-WC und einen Abstellraum.
Im weiteren Teil des Flures liegen die beiden Schlafzimmer der Wohnung und das Tageslichtbad.
Das Tageslichtbad ist in einem perfekten Zustand, komplett gefliest und mit einer Duschwanne ausgestattet.
Am Ende des Flures gelangen Sie in den Wohnbereich der Wohnung. Dieser besteht aus einer großen offenen Küche mit Kochinsel, einem angrenzendem Wohnzimmer und einer großzügigen Loggia.
Die Küche kann bei Bedarf von den jetzigen Mietern nach Absprache übernommen werden.
Es besteht die Möglichkeit einen Stellplatz für 60€ im Monat anzumieten.
Ausstattungsmerkmale
| Anzahl der Etagen im Haus | 3 |
| Küche | Offene Küche |
| Bad | 1 |
| Bad | Wanne |
| Boden | Fliesen, Laminat |
| Fahrstuhl |
- altengerecht
- Aufzug
- Gehobene Ausstattung des Bades
- Loggia
- Waschküche
- offen gestaltet
- Anmietung eines Stellplatzes für 60€/Monat möglich
- Aufzug
- Gehobene Ausstattung des Bades
- Loggia
- Waschküche
- offen gestaltet
- Anmietung eines Stellplatzes für 60€/Monat möglich
Sonstige Informationen
Haben wir Ihr Interesse geweckt - Ihnen gefällt das Objekt?
Zögern Sie nicht und melden Sie sich bei uns - sehr gerne stehen wir bei Fragen und Wünschen, sowie für weitere Informationen rund um das Angebot zur Verfügung.
Die in diesem Expose gemachten Angaben beruhen auf Auskünften des Eigentümers oder vorgelegten Plänen und Berechnungen. Wir übernehmen daher keine Haftung, insbesondere für Flächenangaben, Grundrisse oder Lageskizzen.
Wir freuen uns über Ihren Anruf und Ihren Besuch unserer Internetseite www.immoweb.de
Zögern Sie nicht und melden Sie sich bei uns - sehr gerne stehen wir bei Fragen und Wünschen, sowie für weitere Informationen rund um das Angebot zur Verfügung.
Die in diesem Expose gemachten Angaben beruhen auf Auskünften des Eigentümers oder vorgelegten Plänen und Berechnungen. Wir übernehmen daher keine Haftung, insbesondere für Flächenangaben, Grundrisse oder Lageskizzen.
Wir freuen uns über Ihren Anruf und Ihren Besuch unserer Internetseite www.immoweb.de
Karte wird geladen...
Objektstandort
Brackeler Hellweg 186
44309 Dortmund
Lage & Infrastruktur
Objektstandort
Brackeler Hellweg 186
44309 Dortmund
Die kreisfreie Stadt Dortmund befindet sich im Bundesland Nordrhein-Westfalen und gilt als größte Stadt des Ruhrgebiets. Angrenzend sind die Städte Castrop, Waltrop, Lünen, Unna, Holzwickede, Schwerte, Herdecke, Witten und Bochum. Dortmund ist über die Autobahn A2, A40, A42, A44 und A45, sowie über die Bundesstraßen 1, 54 235 und 236 an den Fernverkehr angebunden. Auch der ÖPNV bietet mit den vielen Bahnhöfen sehr gute Anbindungen.
Die Wohnung befindet sich im Ortsteil Dortmund-Brackel.
Im näheren Umfeld befinden alle Läden des täglichen Bedarfs. Zu Fuß sind ein Lidl, Rewe, Edeka, eine Apotheke, Ärzte, Versicherungen, Anwälte oder auch eine Bäckerei ohne Probleme zu erreichen.
Die Wohnung befindet sich im Ortsteil Dortmund-Brackel.
Im näheren Umfeld befinden alle Läden des täglichen Bedarfs. Zu Fuß sind ein Lidl, Rewe, Edeka, eine Apotheke, Ärzte, Versicherungen, Anwälte oder auch eine Bäckerei ohne Probleme zu erreichen.
Kontaktanfrage senden
Kontakt
| Telefon | 0231-3981970 |
| Fax | 0231 / 398 19 79 |
| Website | www.immoauktionen.de |
Ansprechpartner/in
Herr Jean-Maurice Weingarten
Weitere Angebote des Anbieters
0
Reihenendhaus in ruhiger, zentraler Lage von ...
Haus
44328 Dortmund
Bei dem Betreten des Wohnhaus ist zunächst eine Diele vorhanden. Von dort aus ist die Küche und das große Wohn-/Esszimmer mit Zugang zu der Terrasse und Garten erreichbar. Ein großes Gartenhaus sowie ein Schuppen ist ...
465.000 €
Kaufpreis
166 m²
Wohnfläche
6
Zimmer
11
Altengerechte Wohnung in ruhigem Wohnhaus zu vermieten. ...
Wohnung
44309 Dortmund
Diese schöne 98m² große Wohnung befindet sich in einem sehr ruhigen und gut gepflegtem Wohn / Geschäftshaus. Die Wohnung befindet sich im 1. Obergeschoss des Gebäudes. Das 1.OG erreichen Sie ohne Einschränkungen über ...
1.188 €
Kaltmiete
98,66 m²
Wohnfläche
3
Zimmer
8
4 Zimmer Erdgeschossw. m. Balkon in Werl, Ahornallee ...
Wohnung
59457 Werl
Bei dem Betreten des Objektes ist ein langer, schmaler Flur vorhanden. Von dort aus sind die weiteren Räume erreichbar. Von dem großen Wohn-Esszimmer ist der Balkon zu erreichen. Weiterhin verfügt die Wohnung über eine ...
179.000 €
Kaufpreis
94 m²
Wohnfläche
4
Zimmer
15
Gepflegtes Zweifamilienhaus als Kapitalanlage in ...
Haus
58239 Schwerte
Bei dem angebotenen Objekt handelt es sich um ein sehr gepflegtes Zweifamilienhaus in zentraler Lage von Schwerte. Die Immobilie wurde im Jahr 2003 vollständig saniert, sodass sämtliche wesentlichen Gewerke erneuert ...
280.000 €
Kaufpreis
160 m²
Wohnfläche
6
Zimmer
4
Ladengeschäft im Herzen von Röbel zu vermieten
Einzelhandel
17207 Röbel
Ab sofort bieten wir ein gepflegtes und vielseitig nutzbares Ladengeschäft in zentraler Innenstadtlage von Röbel/Müritz zur Miete an. Die Gewerbefläche umfasst insgesamt 67 m² und ist aufgeteilt in drei separate Räume, ...
390 €
Kaltmiete
67 m²
Gesamtfläche