Ein Aussiedlerhof mit zahlreichen Möglichkeiten – Ihr Traumgrundstück wartet!, ohne Maklerkosten
1.090.000 €
Kaufpreis
180 m²
Wohnfläche
7
Zimmer
immobilien.de Nr.: 9488193
Objektnummer: 432894
Kaufpreis
| Kaufpreis | 1.090.000 € |
| Maklerprovision | keine Provision, courtagefrei |
Wohnfläche, Grundstück & Bausubstanz
| Wohnfläche | 180 m² |
| Grundstücksfläche | 39.000 m² |
| Zimmer | 7 |
| Baujahr | 1964 |
| Verfügbar ab | nach Absprache |
| Zustand | Modernisiert |
Energie
| Energieausweistyp | Bedarfsausweis |
| Energieeffizienzklasse | D |
| Endenergiebedarf | 113 |
| Heizungsart | Zentralheizung |
| Energieträger/Befeuerung | Gas |
Beschreibung der Immobilie
Ein Aussiedlerhof mit zahlreichen Möglichkeiten – Ihr Traumgrundstück wartet!
Ohne Maklerkosten
Dieses außergewöhnliche Anwesen bietet Ihnen nicht nur eine atemberaubende Lage, sondern auch jede Menge Potenzial. Auf einem großzügigen Grundstück von insgesamt ca. 39.000 m² (davon ca. 27.000 m² rund um das Haus und ca. 12.000 m² Wiese mit Baumbestand) erwartet Sie ein komplett modernisiertes Wohnhaus samt Nebengebäuden, die für vielfältige Nutzungen ideal sind.
Das Wohnhaus:
Das 1964 erbaute Wohnhaus wurde zwischen 2022 und 2024 umfassend saniert und auf den neuesten Stand der Technik gebracht. Mit einer Wohn- und Nutzfläche von 240 m² bietet es höchsten Komfort. Die Isolierung wurde mit 20 cm Steinwolle an den Außenwänden und 24 cm Dämmung am Dach optimiert. Zudem ist das Gebäude mit einer modernen Solaranlage ausgestattet, die Ihnen dank eines 30 kW/P Hybrid-Wechselrichters und Speicher (15 kW) hervorragende Unabhängigkeit garantiert. Eine zusätzliche Flüssiggas-Zentralheizung (6000-Liter Erdtank) sorgt für angenehme Wärme. Als zusätzliche Energiequelle steht eine Holzhackschnitzelheizung (60 kW) zur Verfügung die noch angeschlossen werden müsste.
Das Erdgeschoss mit einer großzügigen 110 m² großen Wohnfläche ist hell und modern gestaltet: ein offenes Wohnzimmer mit moderner Einbauküche, ein WC, sowie ein großes Spa-Bad mit Whirlpool-Badewanne, Infrarotkabine und einer großzügigen Regendusche, sowie ein direkter Zugang zur Terrasse. Ein gemütlicher Holzofen sorgt für zusätzlichen Komfort. Vom Wohnzimmer aus erreichen Sie die sonnige und windgeschützte Süd-Ost-Terrasse mit 65 m².
Im Obergeschoss (ca. 70 m²) befindet sich ein weiteres Wohnzimmer, zwei Zimmer (idealerweise als Schlaf-, Kinder- oder Arbeitszimmer nutzbar), eine Küche und ein Bad – perfekt für die Nutzung als separate Wohneinheit.
Der große Keller bietet auf 70 m² Platz für Lagerung und Vorräte. Der Naturboden eignet sich hervorragend für die Wein- und Lebensmittellagerung.
Die Nebengebäude:
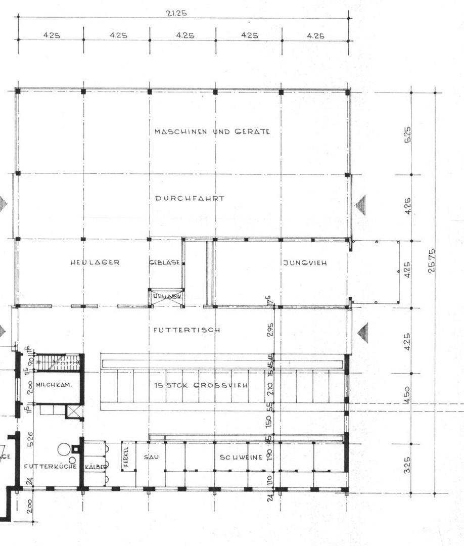
Zu dem Anwesen gehören eine großzügige Scheune mit 520 m² und eine Maschinenhalle (10 x 20 m). Beide Gebäude wurden kürzlich mit neuen Dächern (Trapezblech mit Oberlichtern) versehen. Die Scheune hat einen stabilen Boden aus hochbelastbarem Beton, und im Obergeschoss befindet sich ein Heulager mit 275 m². Das größte Tor der Scheune misst 4 m in der Breite und 3,6 m in der Höhe – ideal für große Maschinen oder Fahrzeuge. In der Maschinenhalle gibt es ausreichend Platz für Traktoren, Lkw, Bagger oder Wohnmobile.
Auf dem Grundstück befinden sich ein eingetragener Reitplatz (ca. 50x20m) sowie eine eingetragene Reithalle (ca. 30x15m).
Beide Anlagen sind derzeit nicht nutzbar und befinden sich in einem Zustand, der keine wirtschaftlich sinnvolle Sanierung zulässt.
Das Objekt eignet sich daher insbesondere für Käufer, die einen Neubau nach eigenen Vorstellungen planen.
Eine intakte Mistplatte aus Beton mit einer Größe von 8 x 4,5 m ist ebenfalls vorhanden.
Der vordere Hofbereich wurde 2024 neu gepflastert.
Die Nutzungsmöglichkeiten:
Dieses Anwesen eignet sich nicht nur für Pferdeliebhaber und Tierhalter, sondern bietet auch Raum für Selbstversorger, Handwerker oder Gewerbetreibende. Die weitläufige Fläche ermöglicht diverse Nutzungsmöglichkeiten – ob als landwirtschaftlicher Betrieb, Hobbyfarm oder für private Projekte.
Aufgrund beruflicher Veränderungen bieten wir diesen liebevoll renovierten Aussiedlerhof nun zum Verkauf an. Wenn Sie ein Zuhause suchen, das Ihnen sowohl Ruhe als auch zahlreiche Möglichkeiten zur Entfaltung bietet, freuen wir uns auf Ihre Kontaktaufnahme. Weitere Bilder und Informationen können nach Erstkontakt zur Verfügung gestellt werden.
Makler mit Exklusivverträgen bitten wir, von einer Kontaktaufnahme abzusehen.
Ohne Maklerkosten
Dieses außergewöhnliche Anwesen bietet Ihnen nicht nur eine atemberaubende Lage, sondern auch jede Menge Potenzial. Auf einem großzügigen Grundstück von insgesamt ca. 39.000 m² (davon ca. 27.000 m² rund um das Haus und ca. 12.000 m² Wiese mit Baumbestand) erwartet Sie ein komplett modernisiertes Wohnhaus samt Nebengebäuden, die für vielfältige Nutzungen ideal sind.
Das Wohnhaus:
Das 1964 erbaute Wohnhaus wurde zwischen 2022 und 2024 umfassend saniert und auf den neuesten Stand der Technik gebracht. Mit einer Wohn- und Nutzfläche von 240 m² bietet es höchsten Komfort. Die Isolierung wurde mit 20 cm Steinwolle an den Außenwänden und 24 cm Dämmung am Dach optimiert. Zudem ist das Gebäude mit einer modernen Solaranlage ausgestattet, die Ihnen dank eines 30 kW/P Hybrid-Wechselrichters und Speicher (15 kW) hervorragende Unabhängigkeit garantiert. Eine zusätzliche Flüssiggas-Zentralheizung (6000-Liter Erdtank) sorgt für angenehme Wärme. Als zusätzliche Energiequelle steht eine Holzhackschnitzelheizung (60 kW) zur Verfügung die noch angeschlossen werden müsste.
Das Erdgeschoss mit einer großzügigen 110 m² großen Wohnfläche ist hell und modern gestaltet: ein offenes Wohnzimmer mit moderner Einbauküche, ein WC, sowie ein großes Spa-Bad mit Whirlpool-Badewanne, Infrarotkabine und einer großzügigen Regendusche, sowie ein direkter Zugang zur Terrasse. Ein gemütlicher Holzofen sorgt für zusätzlichen Komfort. Vom Wohnzimmer aus erreichen Sie die sonnige und windgeschützte Süd-Ost-Terrasse mit 65 m².
Im Obergeschoss (ca. 70 m²) befindet sich ein weiteres Wohnzimmer, zwei Zimmer (idealerweise als Schlaf-, Kinder- oder Arbeitszimmer nutzbar), eine Küche und ein Bad – perfekt für die Nutzung als separate Wohneinheit.
Der große Keller bietet auf 70 m² Platz für Lagerung und Vorräte. Der Naturboden eignet sich hervorragend für die Wein- und Lebensmittellagerung.
Die Nebengebäude:
Zu dem Anwesen gehören eine großzügige Scheune mit 520 m² und eine Maschinenhalle (10 x 20 m). Beide Gebäude wurden kürzlich mit neuen Dächern (Trapezblech mit Oberlichtern) versehen. Die Scheune hat einen stabilen Boden aus hochbelastbarem Beton, und im Obergeschoss befindet sich ein Heulager mit 275 m². Das größte Tor der Scheune misst 4 m in der Breite und 3,6 m in der Höhe – ideal für große Maschinen oder Fahrzeuge. In der Maschinenhalle gibt es ausreichend Platz für Traktoren, Lkw, Bagger oder Wohnmobile.
Auf dem Grundstück befinden sich ein eingetragener Reitplatz (ca. 50x20m) sowie eine eingetragene Reithalle (ca. 30x15m).
Beide Anlagen sind derzeit nicht nutzbar und befinden sich in einem Zustand, der keine wirtschaftlich sinnvolle Sanierung zulässt.
Das Objekt eignet sich daher insbesondere für Käufer, die einen Neubau nach eigenen Vorstellungen planen.
Eine intakte Mistplatte aus Beton mit einer Größe von 8 x 4,5 m ist ebenfalls vorhanden.
Der vordere Hofbereich wurde 2024 neu gepflastert.
Die Nutzungsmöglichkeiten:
Dieses Anwesen eignet sich nicht nur für Pferdeliebhaber und Tierhalter, sondern bietet auch Raum für Selbstversorger, Handwerker oder Gewerbetreibende. Die weitläufige Fläche ermöglicht diverse Nutzungsmöglichkeiten – ob als landwirtschaftlicher Betrieb, Hobbyfarm oder für private Projekte.
Aufgrund beruflicher Veränderungen bieten wir diesen liebevoll renovierten Aussiedlerhof nun zum Verkauf an. Wenn Sie ein Zuhause suchen, das Ihnen sowohl Ruhe als auch zahlreiche Möglichkeiten zur Entfaltung bietet, freuen wir uns auf Ihre Kontaktaufnahme. Weitere Bilder und Informationen können nach Erstkontakt zur Verfügung gestellt werden.
Makler mit Exklusivverträgen bitten wir, von einer Kontaktaufnahme abzusehen.
Ausstattungsmerkmale
| Anzahl der Etagen im Haus | 2 |
| Küche | Einbauküche |
| Bad | 2 |
| Bad | Dusche, Wanne |
| Balkone | 0 |
| Garten | |
| Terrassen | 1 |
| Barrierefrei | |
| Garage/Stellplätze | 2 |
| Keller |
Terrasse, Garten, Keller, Vollbad, Duschbad, Sauna, Einbauküche, Gäste-WC, Kamin, Barrierefrei
Sonstige Informationen
Heizungsart: Zentralheizung
Energieträger: Gas
Makleranfragen nicht erwünscht. Nach § 7 UWG sind unaufgeforderte Kontaktaufnahmen durch Makler ohne ausdrückliche Einwilligung des Empfängers verboten!
ohne-makler (OM) ist weder Anbieter noch Vermittler der Immobilie. OM betreibt eine Plattform für Immobilieneigentümer, die unter anderem die gleichzeitige Veröffentlichung einzelner Inserate auf mehreren Immobilienportalen ermöglicht. Die Inhalte dieser Inserate werden ausschließlich von Dritten verantwortet. Für die Richtigkeit, Vollständigkeit oder Rechtmäßigkeit der Angaben übernimmt OM keine Haftung. Hinweise auf mögliche Rechtsverstöße können jederzeit gemeldet werden und werden nach Prüfung umgehend bearbeitet.
Energieträger: Gas
Makleranfragen nicht erwünscht. Nach § 7 UWG sind unaufgeforderte Kontaktaufnahmen durch Makler ohne ausdrückliche Einwilligung des Empfängers verboten!
ohne-makler (OM) ist weder Anbieter noch Vermittler der Immobilie. OM betreibt eine Plattform für Immobilieneigentümer, die unter anderem die gleichzeitige Veröffentlichung einzelner Inserate auf mehreren Immobilienportalen ermöglicht. Die Inhalte dieser Inserate werden ausschließlich von Dritten verantwortet. Für die Richtigkeit, Vollständigkeit oder Rechtmäßigkeit der Angaben übernimmt OM keine Haftung. Hinweise auf mögliche Rechtsverstöße können jederzeit gemeldet werden und werden nach Prüfung umgehend bearbeitet.
Karte wird geladen...
Objektstandort
Hohlensten 3
74722 Buchen
- Baden-Württemberg
Lage & Infrastruktur
Objektstandort
Hohlensten 3
74722 Buchen
- Baden-Württemberg
Dieser Aussiedlerhof liegt mit 5 Nachbarhöfen ca. 6 km von der Kreisstadt entfernt. Diese Lage verbindet eine wunderbare Ruhe mit hoher Lebensqualität. Die nahe Stadt bietet alle Schulen, ein Krankenhaus, Ärzte, Einkaufsmöglichkeiten und Freizeitangebote. Bis zur Autobahn sind es 20 Min, bis zur S-Bahn nur 3 km.
Infrastruktur (im Umkreis von 5 km):
Apotheke, Lebensmittel-Discount, Allgemeinmediziner, Kindergarten, Grundschule, Hauptschule, Realschule, Gymnasium, Gesamtschule, Öffentliche Verkehrsmittel
Infrastruktur (im Umkreis von 5 km):
Apotheke, Lebensmittel-Discount, Allgemeinmediziner, Kindergarten, Grundschule, Hauptschule, Realschule, Gymnasium, Gesamtschule, Öffentliche Verkehrsmittel
Kontaktanfrage senden
Über den Anbieter
OM PropTech GmbH
Humboldtstraße 25a
21509 Glinde
Kontakt
| Telefon | - |
| Fax | - |
| Website | www.ohne-makler.net |
Ansprechpartner/in
Privat von Jochen
Weitere Angebote des Anbieters
45
Wunderschönes Einfamilienhaus mit vielen Extras
Haus
39619 Arendsee
Wir verkaufen hier unser großzügig geschnittenes Haus mit Pool, geräumiger Garage, Teich, Gartenhaus und parkähnlich angelegtem Grundstück. Das Haus hat ca. 220 m2 Wohnfläche mit überdachtem Eingang, Kamin, ...
320.000 €
Kaufpreis
220 m²
Wohnfläche
7
Zimmer
18
Mehrwert inklusive: Ausbaufähig zum Zweifamilienhaus
Haus
89150 Laichingen
Massives Einfamilienhaus in ruhiger Traumlage mit Wintergarten und großem Grundstück Dieses hochwertig gebaute Einfamilienhaus aus dem Jahr 1990 überzeugt durch seine idyllische, ruhige Lage und ein großzügiges ...
629.000 €
Kaufpreis
180 m²
Wohnfläche
7
Zimmer
15
Vermiete Hochregallagerhalle/Produktionshalle mit ...
Hallen / Lager / Produktion
99189 Walschleben
Auf dem großzügigen Grundstück mit einer Größe von 10000 m2 befinden sich eine große Hochregallagerhalle, die auch als Produktionshalle genutzt werden kann. Dazu befindet sich eine Fahrzeugwaage und ein großzügiges ...
7.000 €
Kaltmiete (netto)
10000 m²
Gesamtfläche
30
Pilsensee: Großes, gepflegtes Einfamilien-RMH, 141 m² ...
Haus
82229 Starnberg, Seefeld
Hier wohnen Sie in sonniger, absolut ruhiger und traumhafter Lage mit idealer Anbindung an München. Das großzügige und gepflegte Haus ist in Hechendorf am Pilsensee, im Westen von München (LKR Starnberg). Es sind nur ...
998.000 €
Kaufpreis
141,38 m²
Wohnfläche
5
Zimmer
34
Großzügiges Einfamilienhaus in bevorzugter Wohnlage. ...
Haus
56841 Traben-Trarbach
Unser freistehendes, gepflegtes Architektenhaus überzeugt durch eine großzügige Raumaufteilung, zeitlose Architektur, angenehmes Wohnambiente und eine gehobene Ausstattung. Elf attraktive Zimmer, Küche und drei Bäder ...
680.000 €
Kaufpreis
304 m²
Wohnfläche
11
Zimmer