Heute an Morgen denken
1.190.000 €
Kaufpreis
429 m²
Wohnfläche
13
Zimmer
immobilien.de Nr.: 9478928
Objektnummer: 625127
Kaufpreis
| Kaufpreis | 1.190.000 € |
| Maklerprovision | 3,57 % (inkl. MwSt.) |
Wohnfläche, Grundstück & Bausubstanz
| Wohnfläche | 429 m² |
| Grundstücksfläche | 1.870 m² |
| Zimmer | 13 |
| Baujahr | 1966 |
| Verfügbar ab | vermietet |
| Zustand | Gepflegt |
Energie
| Energieausweistyp | Bedarfsausweis |
| Ausstellungsdatum | 14. 08. 2024 |
| Baujahr (laut Energieausweis) | 1966 |
| Energieeffizienzklasse | F |
| Endenergiebedarf | 194.9 |
| Heizungsart | Zentralheizung |
| Wesentlicher Energieträger | Gas |
| Energieträger/Befeuerung | Gas |
Beschreibung der Immobilie
In Iphofen, einer romantischen Weinstadt im unterfränkischen Landkreis Kitzingen, verkaufen wir auf dem etwa 1870 qm großen Grundstück ein einmaliges Anwesen, das sich in drei separate Wohnhäuser gliedert - ideal als attraktive KAPITALANLAGE, für Mehrgenerationenwohnen oder für Wohnen und Vermieten.
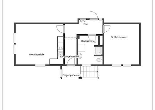
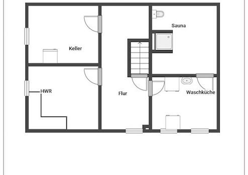
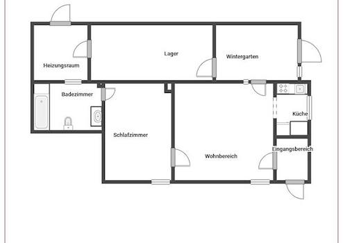
Das Haupthaus stellt der hochwertige Bungalow dar, der 1966 erbaut wurde und sich in zwei Wohnungen aufteilt. Die Hauptwohnung bietet 160 qm Wohnfläche auf zwei Ebenen verteilt und wurde im Erdgeschoss bereits umfassend saniert. Das Herzstück bildet hier der offene Wohn- & Essbereich mit hochwertiger Einbauküche und direktem Zugang zum lichtdurchfluteten Wintergarten. Das Dachgeschoss eignet sich mit zwei Schlafzimmern & kleinen Badezimmer ideal als separaten Bereich für die Kinder. Das Kellergeschoss verfügt über ca. 70 qm Nutzfläche. Zusätzlich befindet sich im Untergeschoss eine etwa 54 qm große Einliegerwohnung mit offener Wohnküche, Schlafzimmer & Badezimmer.
Hinter dem Bungalow liegt das ursprünglich um 1930 errichtete Zweifamilienhaus, das um 1990 umfassend restauriert sowie umgebaut wurde.
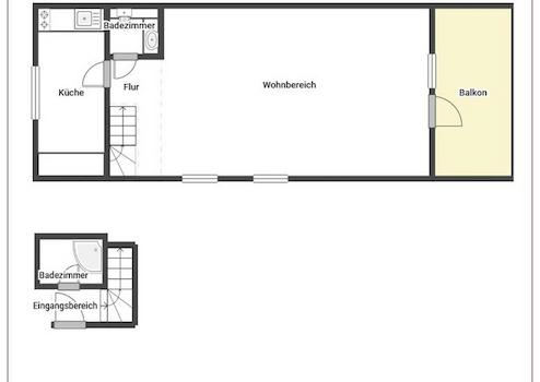
Die Erdgeschosswohnung verfügt über zwei Zimmer, Küche, Bad und Wintergarten mit insgesamt ca. 70 qm Wohnfläche. Die Wohnung im Dachgeschoss präsentiert sich modern in einem offenen Wohnbereich mit Zugang zum Balkon und einer separaten Küche. Das Appartement bietet ca. 55 qm Wohnfläche.
Das dritte Gebäude, ein liebevoll restauriertes Häuschen an der Grundstücksgrenze, wurde 2016 aus einem ehemaligen Pferdestall zu einem einladenden Wohnhaus mit zwei Ebenen und ca. 90 qm Wohnfläche umgebaut.
Alle drei Häuser verfügen über eine eigene Gas-Zentralheizung. Alle 5 Wohnungen sind derzeit vermietet. Die Mieteinnahmen beliefen sich 2025 auf etwa 56.800 Euro zzgl. Nebenkosten.
Gerne übersenden wir Ihnen nach Interessensbekundung unser ausführliches Exposé mit Zugang zu den virtuellen Rundgängen der einzelnen Wohnungen.
Weitere Angebote unter www.GARANT-IMMO.de
Das Haupthaus stellt der hochwertige Bungalow dar, der 1966 erbaut wurde und sich in zwei Wohnungen aufteilt. Die Hauptwohnung bietet 160 qm Wohnfläche auf zwei Ebenen verteilt und wurde im Erdgeschoss bereits umfassend saniert. Das Herzstück bildet hier der offene Wohn- & Essbereich mit hochwertiger Einbauküche und direktem Zugang zum lichtdurchfluteten Wintergarten. Das Dachgeschoss eignet sich mit zwei Schlafzimmern & kleinen Badezimmer ideal als separaten Bereich für die Kinder. Das Kellergeschoss verfügt über ca. 70 qm Nutzfläche. Zusätzlich befindet sich im Untergeschoss eine etwa 54 qm große Einliegerwohnung mit offener Wohnküche, Schlafzimmer & Badezimmer.
Hinter dem Bungalow liegt das ursprünglich um 1930 errichtete Zweifamilienhaus, das um 1990 umfassend restauriert sowie umgebaut wurde.
Die Erdgeschosswohnung verfügt über zwei Zimmer, Küche, Bad und Wintergarten mit insgesamt ca. 70 qm Wohnfläche. Die Wohnung im Dachgeschoss präsentiert sich modern in einem offenen Wohnbereich mit Zugang zum Balkon und einer separaten Küche. Das Appartement bietet ca. 55 qm Wohnfläche.
Das dritte Gebäude, ein liebevoll restauriertes Häuschen an der Grundstücksgrenze, wurde 2016 aus einem ehemaligen Pferdestall zu einem einladenden Wohnhaus mit zwei Ebenen und ca. 90 qm Wohnfläche umgebaut.
Alle drei Häuser verfügen über eine eigene Gas-Zentralheizung. Alle 5 Wohnungen sind derzeit vermietet. Die Mieteinnahmen beliefen sich 2025 auf etwa 56.800 Euro zzgl. Nebenkosten.
Gerne übersenden wir Ihnen nach Interessensbekundung unser ausführliches Exposé mit Zugang zu den virtuellen Rundgängen der einzelnen Wohnungen.
Weitere Angebote unter www.GARANT-IMMO.de
Ausstattungsmerkmale
| Anzahl der Etagen im Haus | 2 |
| Küche | Einbauküche |
| Bad | 6 |
| Boden | Fliesen, Teppich, Parkett |
| Balkone | 1 |
Bungalow mit Einliegerwohnung:
- Baujahr 1966
- ca. 160 qm Wohnfläche Hauptwohnung: EG mit offenem Wohn-/Essbereich, Schlafzimmer, Kinderzimmer, Arbeitszimmer, Badezimmer und Wintergarten; DG mit zwei Schlafzimmern und Badezimmer
- ca. 54 qm Wohnfläche Einliegerwohnung: offene Wohnküche, Schlafzimmer und Badezimmer
- ca. 70 qm Nutzfläche KG: HWR, Waschküche, Sauna und Abstellraum
- Gasheizung von 2007
- Im EG bereits komplett saniert
- Fußbodenheizung z.T. im EG
- Kaminofen im EG
Zweifamilienhaus:
- Baujahr um 1930, 1990 restauriert und umgebaut
- EG-Wohnung ca. 70 qm: Wohn-/Essbereich, Küche, Schlafzimmer, Badezimmer und Wintergarten
- DG-Wohnung ca. 55 qm: offener Wohnbereich, Küche, WC, Dusche, Balkon
- Doppelverglaste Holzrahmenfenster von 1989
- Gas-Zentralheizung von 2009
Kleines Haus:
- 1983 ursprünglich als Pferdestall erbaut, 2016 Umbau zu Wohnhaus
- ca. 90 qm Wohnfläche: EG mit Diele, Essbereich, Küche, Gäste-WC und HWR; DG mit offenem Wohn-/Schlafbereich, Badezimmer und Balkon
- Dreifachverglaste Kunststofffenster
- Gas-Zentralheizung
- Baujahr 1966
- ca. 160 qm Wohnfläche Hauptwohnung: EG mit offenem Wohn-/Essbereich, Schlafzimmer, Kinderzimmer, Arbeitszimmer, Badezimmer und Wintergarten; DG mit zwei Schlafzimmern und Badezimmer
- ca. 54 qm Wohnfläche Einliegerwohnung: offene Wohnküche, Schlafzimmer und Badezimmer
- ca. 70 qm Nutzfläche KG: HWR, Waschküche, Sauna und Abstellraum
- Gasheizung von 2007
- Im EG bereits komplett saniert
- Fußbodenheizung z.T. im EG
- Kaminofen im EG
Zweifamilienhaus:
- Baujahr um 1930, 1990 restauriert und umgebaut
- EG-Wohnung ca. 70 qm: Wohn-/Essbereich, Küche, Schlafzimmer, Badezimmer und Wintergarten
- DG-Wohnung ca. 55 qm: offener Wohnbereich, Küche, WC, Dusche, Balkon
- Doppelverglaste Holzrahmenfenster von 1989
- Gas-Zentralheizung von 2009
Kleines Haus:
- 1983 ursprünglich als Pferdestall erbaut, 2016 Umbau zu Wohnhaus
- ca. 90 qm Wohnfläche: EG mit Diele, Essbereich, Küche, Gäste-WC und HWR; DG mit offenem Wohn-/Schlafbereich, Badezimmer und Balkon
- Dreifachverglaste Kunststofffenster
- Gas-Zentralheizung
Sonstige Informationen
1 x Garage, 6 x Stellplatz außen
Karte wird geladen...
Objektstandort
97346 Iphofen
Lage & Infrastruktur
Objektstandort
97346 Iphofen
Iphofen, eine romantische Weinstadt im unterfränkischen Landkreis Kitzingen, ist bekannt für ihre gut erhaltene mittelalterliche Altstadt. Die Stadt zeichnet sich durch ihre historische Stadtmauer, verwinkelte Gassen, prunkvolle Kirchen und historische Bürgerhäuser aus.
Iphofen verfügt über eine sehr gute Infrastruktur. Einkaufsmöglichkeiten, Schulen, Kindergärten sowie Ärzte sind bequem erreichbar. Die Umgebung bietet eine hohe Lebensqualität mit Weinbergen, Natur und guter Verkehrsanbindung - ideal für Familien oder Menschen, die Ruhe und Komfort suchen.
Iphofen verfügt über eine sehr gute Infrastruktur. Einkaufsmöglichkeiten, Schulen, Kindergärten sowie Ärzte sind bequem erreichbar. Die Umgebung bietet eine hohe Lebensqualität mit Weinbergen, Natur und guter Verkehrsanbindung - ideal für Familien oder Menschen, die Ruhe und Komfort suchen.
Kontaktanfrage senden
Über den Anbieter
Garant Immobilien AG
Wilhelmstr.5
70182 Stuttgart
Kontakt
| Telefon | 0931/32 93 76-0 |
| Fax | 0931/32 93 76-20 |
| Website | www.garant-immo.de |
Ansprechpartner/in
Büro Würzburg