Attraktives Mehrfamilienhaus in ruhiger Lage von Altenburg!
485.000 €
Kaufpreis
470 m²
Wohnfläche
immobilien.de Nr.: 9478832
Objektnummer: 430704
Kaufpreis
| Kaufpreis | 485.000 € |
| Maklerprovision | keine Provision, courtagefrei |
Wohnfläche, Grundstück & Bausubstanz
| Wohnfläche | 470 m² |
| Gesamtfläche | 470 m² |
| Grundstücksfläche | 245 m² |
| Baujahr | 1900 |
| Verfügbar ab | nach Absprache |
| Zustand | Gepflegt |
Energie
| Energieausweistyp | Verbrauch |
| Energieeffizienzklasse | D |
| Energieverbrauchkennwert | 102 kWh/(m²*a) |
| Heizungsart | Zentralheizung |
| Energieträger/Befeuerung | Gas |
Beschreibung der Immobilie
Das denkmalgeschützte Mehrfamilienhaus aus dem Jahr 1900 umfasst eine Gesamtwohnfläche von ca. 470 m². Das gepflegte Gebäude steht auf einem Grundstück von ca. 245 m² und präsentiert sich in einem ausgezeichneten Zustand.
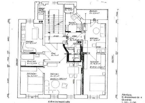
Der praktische Grundriss ermöglicht flexible Gestaltung und Nutzung der Räume. Alle Etagen sind mit Laminat ausgestattet, was ein einheitliches und wohnliches Ambiente schafft.
Die Wohnungen sind teilweise mit einem gemütlichen Balkon ausgestattet. Das Haus ist unterkellert, was zusätzlichen Stauraum und vielseitige Nutzungsmöglichkeiten bietet.
Die Jahresnettokaltmiete (Soll) beträgt ca. 29.400 €. Aktuell befindet sich eine Wohnung in der Vermietung. Diese ist ab 01.05.2026 wieder vergeben.
Wir freuen uns auf Ihre Anfrage und stellen Ihnen gerne weitere Informationen zur Verfügung.
Der praktische Grundriss ermöglicht flexible Gestaltung und Nutzung der Räume. Alle Etagen sind mit Laminat ausgestattet, was ein einheitliches und wohnliches Ambiente schafft.
Die Wohnungen sind teilweise mit einem gemütlichen Balkon ausgestattet. Das Haus ist unterkellert, was zusätzlichen Stauraum und vielseitige Nutzungsmöglichkeiten bietet.
Die Jahresnettokaltmiete (Soll) beträgt ca. 29.400 €. Aktuell befindet sich eine Wohnung in der Vermietung. Diese ist ab 01.05.2026 wieder vergeben.
Wir freuen uns auf Ihre Anfrage und stellen Ihnen gerne weitere Informationen zur Verfügung.
Ausstattungsmerkmale
| Boden | Fliesen, Laminat |
| Keller |
Keller, Laminat, Fliesen
Bemerkungen:
Erdgeschoss:
WE 1 : 3 Zimmer, Küche, Bad (81,60 m²)
1. Obergeschoss:
WE 2: 2 Zimmer, Küche, Bad (59,40 m²)
WE 3: 2 Zimmer, Küche, Bad (44,30 m²)
2. Obergeschoss:
WE 4: 4 Zimmer, Küche, Bad (103,00 m²)
3. Obergeschoss:
WE 5: 2 Zimmer, Küche, Bad (59,40 m²)
WE 6: 2 Zimmer, Küche, Bad (44,30 m²)
Dachgeschoss:
WE 7: 2 Zimmer, Küche, Bad (39,10 m²)
WE 8: 2 Zimmer, Küche, Bad (38,90 m²)
Bemerkungen:
Erdgeschoss:
WE 1 : 3 Zimmer, Küche, Bad (81,60 m²)
1. Obergeschoss:
WE 2: 2 Zimmer, Küche, Bad (59,40 m²)
WE 3: 2 Zimmer, Küche, Bad (44,30 m²)
2. Obergeschoss:
WE 4: 4 Zimmer, Küche, Bad (103,00 m²)
3. Obergeschoss:
WE 5: 2 Zimmer, Küche, Bad (59,40 m²)
WE 6: 2 Zimmer, Küche, Bad (44,30 m²)
Dachgeschoss:
WE 7: 2 Zimmer, Küche, Bad (39,10 m²)
WE 8: 2 Zimmer, Küche, Bad (38,90 m²)
Sonstige Informationen
Heizungsart: Zentralheizung
Energieträger: Gas
Das Kaufobjekt wird im gegenwärtigen Zustand verkauft. Der Verkäufer übernimmt keine Gewährleistung für die Beschaffenheit, Freiheit von Sachmängeln oder die Größe des Kaufobjekts. Der Verkauf erfolgt unter Ausschluss jeglicher Sachmangelhaftung. Dies gilt nicht für Arglist oder zugesicherte Eigenschaften. Das Immobilienangebot ist freibleibend. Irrtum und Zwischenverkauf bleiben vorbehalten.
Interessiert? Dann senden Sie uns eine Anfrage.
Makleranfragen nicht erwünscht. Nach § 7 UWG sind unaufgeforderte Kontaktaufnahmen durch Makler ohne ausdrückliche Einwilligung des Empfängers verboten!
ohne-makler (OM) ist weder Anbieter noch Vermittler der Immobilie. OM betreibt eine Plattform für Immobilieneigentümer, die unter anderem die gleichzeitige Veröffentlichung einzelner Inserate auf mehreren Immobilienportalen ermöglicht. Die Inhalte dieser Inserate werden ausschließlich von Dritten verantwortet. Für die Richtigkeit, Vollständigkeit oder Rechtmäßigkeit der Angaben übernimmt OM keine Haftung. Hinweise auf mögliche Rechtsverstöße können jederzeit gemeldet werden und werden nach Prüfung umgehend bearbeitet.
Energieträger: Gas
Das Kaufobjekt wird im gegenwärtigen Zustand verkauft. Der Verkäufer übernimmt keine Gewährleistung für die Beschaffenheit, Freiheit von Sachmängeln oder die Größe des Kaufobjekts. Der Verkauf erfolgt unter Ausschluss jeglicher Sachmangelhaftung. Dies gilt nicht für Arglist oder zugesicherte Eigenschaften. Das Immobilienangebot ist freibleibend. Irrtum und Zwischenverkauf bleiben vorbehalten.
Interessiert? Dann senden Sie uns eine Anfrage.
Makleranfragen nicht erwünscht. Nach § 7 UWG sind unaufgeforderte Kontaktaufnahmen durch Makler ohne ausdrückliche Einwilligung des Empfängers verboten!
ohne-makler (OM) ist weder Anbieter noch Vermittler der Immobilie. OM betreibt eine Plattform für Immobilieneigentümer, die unter anderem die gleichzeitige Veröffentlichung einzelner Inserate auf mehreren Immobilienportalen ermöglicht. Die Inhalte dieser Inserate werden ausschließlich von Dritten verantwortet. Für die Richtigkeit, Vollständigkeit oder Rechtmäßigkeit der Angaben übernimmt OM keine Haftung. Hinweise auf mögliche Rechtsverstöße können jederzeit gemeldet werden und werden nach Prüfung umgehend bearbeitet.
Karte wird geladen...
Objektstandort
04600 Altenburg
- Thüringen
Lage & Infrastruktur
Objektstandort
04600 Altenburg
- Thüringen
Das Mehrfamilienhaus befindet sich nahe des Zentrums von Altenburg. Die Stadt liegt in der Mitte des Städtedreiecks Leipzig, Chemnitz und Gera. Lebensmittelgeschäfte, Einkaufsmöglichkeiten des täglichen Bedarfs, gastronomische Einrichtungen, Kindergärten, Schulen, Ärzte, Apotheken, Banken uvm. befinden sich in unmittelbarer Nähe und sind mit den öffentlichen Verkehrsmitteln erreichbar. Die Wohnung ist sehr verkehrsgünstig gelegen, schnelle Anbindung an z.B. die A 4 und A 72.
Kontaktanfrage senden
Über den Anbieter
OM PropTech GmbH
Humboldtstraße 25a
21509 Glinde
Kontakt
| Telefon | - |
| Fax | - |
| Website | www.ohne-makler.net |
Ansprechpartner/in
Angebot von K.A.
Weitere Angebote des Anbieters
7
Wohnen und Arbeiten im Herzen der Bonner City. Beste ...
Wohnung
53111 Bonn
Das angebotene Wohnbüro befindet sich in der Maximilianstraße 40 und liegt damit in absoluter Bestlage mitten in der Bonner Innenstadt. Die Einheit befindet sich im zweiten Obergeschoss eines gepflegten Gebäudes und ...
1.350 €
Kaltmiete (netto)
80 m²
Wohnfläche
3
Zimmer
12
2Raumwohnung mit Wohnküche
Wohnung
58452 Witten
Diese Wohnung wird nur an maximal zwei Personen über 25 Jahren, die arbeiten, vermietet. Voraussetzung für einen Mietvertrag ist Berufstätig und Deutschsprachigkeit. Besichtigungen können nur Vormittags angeboten ...
500 €
Kaltmiete (netto)
65 m²
Wohnfläche
2
Zimmer
45
Witten-Bommern: grosses Haus mit großem Grundstück zu ...
Haus
58452 Witten
Individuell ausgestattetes freistehendes Haus mit Fernblick, einem uneinsehbaren Innenhof und einem uneinsehbaren Grundstück mit einem großen Garten! Das Mietobjekt ist nur etwas für Gartenfreunde! Details werden nach ...
2.000 €
Kaltmiete (netto)
250 m²
Wohnfläche
8
Zimmer
39
Renditestarkes Ferienhaus auf Usedom mit ...
Haus
17459 Zempin
Ferienhaus „Das Möwenhaus“ – Usedom Zum Verkauf steht das liebevoll geführte Ferienhaus „Das Möwenhaus“ im Ostseebad Zempin auf der Insel Usedom. Das großzügige und lichtdurchflutete Haus mit separater Einliegerwohnung ...
617.000 €
Kaufpreis
147 m²
Wohnfläche
6
Zimmer
26
Moderne Wohnung mit einmaliger Ausstattung von privat: ...
Wohnung
65195 Wiesbaden
Die Wohnung befindet sich in einem sehr gepflegten Neubau mit guter Nachbarschaft, der 2021 fertiggestellt wurde. Zum Gebäude gehört eine Grünanlage mit kleinem Spielplatz, die von allen genutzt werden kann. Die ...
1.100 €
Kaltmiete (netto)
59 m²
Wohnfläche
2
Zimmer