Attraktive Eigentumswohnung in bester Lage
141.000 €
Kaufpreis
51 m²
Wohnfläche
2
Zimmer
immobilien.de Nr.: 9476799
Objektnummer: 429522
Kaufpreis
| Kaufpreis | 141.000 € |
| Hausgeld | 292 € |
| Maklerprovision | keine Provision, courtagefrei |
Wohnfläche, Grundstück & Bausubstanz
| Wohnfläche | 51 m² |
| Zimmer | 2 |
| Baujahr | 1952 |
| Verfügbar ab | nach Absprache |
| Zustand | Teil Vollsaniert |
Energie
| Heizungsart | Zentralheizung |
Beschreibung der Immobilie
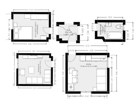
Diese gepflegte 2-Zimmer-Eigentumswohnung im Erdgeschoss eines ca. 1950 erbauten Mehrfamilienhauses bietet auf rund 51 m² eine durchdachte Raumaufteilung und ein angenehmes Wohnambiente.
Die Wohnung verfügt über ein helles Wohnzimmer, ein gut geschnittenes Schlafzimmer sowie eine separate Küche. Das Tageslicht-Vollbad ist funktional ausgestattet und bietet ausreichend Platz. Laminatböden in den Wohnräumen sorgen für eine freundliche und zeitgemäße Atmosphäre.
Die Zentralheizung wurde kürzlich erneuert und gewährleistet eine effiziente Wärmeversorgung. Ein eigener Kellerraum bietet zusätzlichen Stauraum. Besonders hervorzuheben ist die Nutzungsmöglichkeit des Gartens, die zusätzlichen Wohnkomfort schafft und Raum zur Erholung im Freien bietet.
Die Wohnung verfügt über ein helles Wohnzimmer, ein gut geschnittenes Schlafzimmer sowie eine separate Küche. Das Tageslicht-Vollbad ist funktional ausgestattet und bietet ausreichend Platz. Laminatböden in den Wohnräumen sorgen für eine freundliche und zeitgemäße Atmosphäre.
Die Zentralheizung wurde kürzlich erneuert und gewährleistet eine effiziente Wärmeversorgung. Ein eigener Kellerraum bietet zusätzlichen Stauraum. Besonders hervorzuheben ist die Nutzungsmöglichkeit des Gartens, die zusätzlichen Wohnkomfort schafft und Raum zur Erholung im Freien bietet.
Ausstattungsmerkmale
| Inserat befindet sich im Stockwerk | 0 |
| Bad | 1 |
| Bad | Wanne |
| Boden | Laminat |
| Garten | |
| Keller |
Garten, Keller, Vollbad, Laminat
Sonstige Informationen
Heizungsart: Zentralheizung
Energieausweis nicht vorhanden
Diese Wohnung eignet sich ideal für Singles, Paare oder Kapitalanleger, die eine solide Immobilie mit guter Infrastruktur suchen.
Makleranfragen nicht erwünscht. Nach § 7 UWG sind unaufgeforderte Kontaktaufnahmen durch Makler ohne ausdrückliche Einwilligung des Empfängers verboten!
ohne-makler (OM) ist weder Anbieter noch Vermittler der Immobilie. OM betreibt eine Plattform für Immobilieneigentümer, die unter anderem die gleichzeitige Veröffentlichung einzelner Inserate auf mehreren Immobilienportalen ermöglicht. Die Inhalte dieser Inserate werden ausschließlich von Dritten verantwortet. Für die Richtigkeit, Vollständigkeit oder Rechtmäßigkeit der Angaben übernimmt OM keine Haftung. Hinweise auf mögliche Rechtsverstöße können jederzeit gemeldet werden und werden nach Prüfung umgehend bearbeitet.
Energieausweis nicht vorhanden
Diese Wohnung eignet sich ideal für Singles, Paare oder Kapitalanleger, die eine solide Immobilie mit guter Infrastruktur suchen.
Makleranfragen nicht erwünscht. Nach § 7 UWG sind unaufgeforderte Kontaktaufnahmen durch Makler ohne ausdrückliche Einwilligung des Empfängers verboten!
ohne-makler (OM) ist weder Anbieter noch Vermittler der Immobilie. OM betreibt eine Plattform für Immobilieneigentümer, die unter anderem die gleichzeitige Veröffentlichung einzelner Inserate auf mehreren Immobilienportalen ermöglicht. Die Inhalte dieser Inserate werden ausschließlich von Dritten verantwortet. Für die Richtigkeit, Vollständigkeit oder Rechtmäßigkeit der Angaben übernimmt OM keine Haftung. Hinweise auf mögliche Rechtsverstöße können jederzeit gemeldet werden und werden nach Prüfung umgehend bearbeitet.
Karte wird geladen...
Objektstandort
47249 Duisburg
- Nordrhein-Westfalen
Lage & Infrastruktur
Objektstandort
47249 Duisburg
- Nordrhein-Westfalen
Die Immobilie befindet sich in Duisburg in gut angebundener Lage. Einkaufsmöglichkeiten des täglichen Bedarfs (Lebensmittel-Discounter), eine Apotheke sowie ein Allgemeinmediziner sind in etwa 5 min Fußweg erreichbar. Auch Kindergarten und Gymnasium befinden sich in der näheren Umgebung.
Eine gute Anbindung an den öffentlichen Nahverkehr ermöglicht eine schnelle Erreichbarkeit der umliegenden Stadtteile sowie des Stadtzentrums.
Infrastruktur (im Umkreis von 5 km):
Apotheke, Lebensmittel-Discount, Allgemeinmediziner, Kindergarten, Gymnasium, Öffentliche Verkehrsmittel
Eine gute Anbindung an den öffentlichen Nahverkehr ermöglicht eine schnelle Erreichbarkeit der umliegenden Stadtteile sowie des Stadtzentrums.
Infrastruktur (im Umkreis von 5 km):
Apotheke, Lebensmittel-Discount, Allgemeinmediziner, Kindergarten, Gymnasium, Öffentliche Verkehrsmittel
Kontaktanfrage senden
Über den Anbieter
OM PropTech GmbH
Humboldtstraße 25a
21509 Glinde
Kontakt
| Telefon | - |
| Fax | - |
| Website | www.ohne-makler.net |
Ansprechpartner/in
Privat von Hakan Nuray
Weitere Angebote des Anbieters
31
PENTHOUSE - STADTLAGE - ZWEI SONNIGEN DACH-TERRASSEN! ...
Wohnung
51469 Bergisch Gladbach
Komfortable, schick geschnittene ARCHTEKTONISCH AUSSERGEWÖHNLICHE CITY-PENTHOUSE-Wohnung über 2 Etagen. Mit ZWEI SONNIGEN DACH-TERRASSEN ! *** D E R C L O U *** Sie erwerben gleichzeitig ein hübsches 1-ZIMM-APARTMENT ...
710.000 €
Kaufpreis
192 m²
Wohnfläche
7
Zimmer
10
*TOP* Schöne 1-Zimmer Wohnung mit Küche, Dachterasse ...
Wohnung
96052 Bamberg
WILLKOMMEN IN DEN SUN SHINE LOFTS! Stellen Sie sich vor, Sie werden Teil eines der innovativsten Stadtentwicklungsprojekte Europas! Auf dem Gelände der ehemaligen Lagarde-Kaserne in Bamberg, die über 69 Jahre lang Teil ...
759 €
Kaltmiete (netto)
44,77 m²
Wohnfläche
1
Zimmer
26
Eigentum in einer der schönsten Gegenden der Ostsee
Haus
18569 Ummanz
Zum Verkauf stehen nur noch 2 wunderschöne Chalets ( einzeln zu kaufen oder als Paket) direkt an der Ostsee, nur wenige Meter entfernt vom Wasser im Naturschutzgebiet Vorpommersche Boddenlandschaft. Die Chalets ...
79.900 €
Kaufpreis
40 m²
Wohnfläche
3
Zimmer
7
Ladenlokal in Leverkusen Rheindorf
Einzelhandel
51371 Leverkusen
Die großzügige Gewerbeeinheit befindet sich im Erdgeschoss eines ruhigen und gepflegten Wohn- und Geschäftshauses mit insgesamt acht Parteien inmitten von Leverkusen-Rheindorf. Geschäfte, Praxen und Schulen aller Art ...
1.250 €
Kaltmiete (netto)
135 m²
Gesamtfläche
7
Stilvoll sanierte 3-Zimmer-Wohnung – provisionsfrei ...
Wohnung
22143 Hamburg
Diese hochwertig sanierte 3-Zimmer-Wohnung im 1. Obergeschoss eines gepflegten Mehrfamilienhauses aus dem Jahr 1970 überzeugt durch ihren stilvollen Charakter, eine durchdachte Raumaufteilung und eine moderne ...
357.000 €
Kaufpreis
74 m²
Wohnfläche
3
Zimmer