Solides Dreifamilienhaus mit zusätzlichem Bungalow in Viersen-Dülken
329.000 €
Kaufpreis
211 m²
Wohnfläche
80 m²
Nutzfläche
8
Zimmer
immobilien.de Nr.: 9474738
Objektnummer: IS-N2582
Kaufpreis
| Kaufpreis | 329.000 € |
| Maklerprovision | 3,57 % (inkl. 19 % MwSt.) |
Wohnfläche, Grundstück & Bausubstanz
| Wohnfläche | 211 m² |
| Nutzfläche | 80 m² |
| Gesamtfläche | 291 m² |
| Grundstücksfläche | 149 m² |
| Zimmer | 8 |
| Baujahr | 1957 |
| Letzte Modernisierung | Heizungsaustausch |
| Verfügbar ab | sofort, Kapitalanlag |
| Zustand | Gepflegt |
Energie
| Energieausweistyp | Verbrauch |
| Gültig bis | 2032-12-09 |
| Baujahr (laut Energieausweis) | 1958 |
| Energieeffizienzklasse | F |
| Energieverbrauchkennwert | 195.20 kWh/(m²*a) |
| Wesentlicher Energieträger | Gas |
| Energieträger/Befeuerung | Gas |
Beschreibung der Immobilie
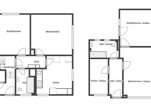
Zum Verkauf steht ein gepflegtes Dreifamilienhaus mit seitlich angebautem kleinem (ca. 48 m² Wohnfläche) 2-Zimmer-Flachdachbungalow in zentraler Lage von Viersen-Dülken. Beide Gebäude bilden eine wirtschaftliche Einheit (ein Grundbuch) und werden ausschließlich zusammen verkauft.
Das überwiegend sanierte Haupthaus befindet sich in gutem Zustand und ist vollständig vermietet. Der Bungalowanbau war lange vermietet, steht aktuell leer und müsste vor einer Neuvermietung oder Eigennutzung saniert werden, wie auch der kleine Innenhof mit Kelleraußentreppe.
Aufteilung der Wohnflächen:
Erdgeschoss Haupthaus: ca. 59 m²
Obergeschoss Haupthaus: ca. 59 m² mit kleinem Balkon
Dachgeschoss Haupthaus: ca. 45 m²
Bungalowanbau: ca. 48,25 m²
Das Haupthaus ist vollständig unterkellert. Der Bungalow ist zusätzlich unterkellert und verfügt über einen größeren Raum, der über den kleinen Innenhof per Außentreppe erreicht werden kann.
Vorteile auf einen Blick:
====================
- Vollständig vermietetes Haupthaus mit Perspektive für Mietsteigerungen
- separater Bungalow – flexibel nutzbar für Eigennutzer oder Vermietung
- Zentrale Lage mit guter Infrastruktur
- Interessante Gelegenheit für Kapitalanleger oder spätere Eigennutzer (Mehrgenerationenhaus)
Das überwiegend sanierte Haupthaus befindet sich in gutem Zustand und ist vollständig vermietet. Der Bungalowanbau war lange vermietet, steht aktuell leer und müsste vor einer Neuvermietung oder Eigennutzung saniert werden, wie auch der kleine Innenhof mit Kelleraußentreppe.
Aufteilung der Wohnflächen:
Erdgeschoss Haupthaus: ca. 59 m²
Obergeschoss Haupthaus: ca. 59 m² mit kleinem Balkon
Dachgeschoss Haupthaus: ca. 45 m²
Bungalowanbau: ca. 48,25 m²
Das Haupthaus ist vollständig unterkellert. Der Bungalow ist zusätzlich unterkellert und verfügt über einen größeren Raum, der über den kleinen Innenhof per Außentreppe erreicht werden kann.
Vorteile auf einen Blick:
====================
- Vollständig vermietetes Haupthaus mit Perspektive für Mietsteigerungen
- separater Bungalow – flexibel nutzbar für Eigennutzer oder Vermietung
- Zentrale Lage mit guter Infrastruktur
- Interessante Gelegenheit für Kapitalanleger oder spätere Eigennutzer (Mehrgenerationenhaus)
Ausstattungsmerkmale
| Anzahl der Etagen im Haus | 3 |
| Bad | 4 |
| Keller |
- neue Gas-Brennwert-Zentralheizung (2023)
- alle Fenster im Haupthaus mit Doppelverglasungen
- neuere Hauseingangstüre (Haupthaus)
- massive Geschossdecken
- Haupthaus voll unterkellert, Bungalow ca. 50 %
- alle Badezimmer mit Fenster
- alle Fenster im Haupthaus mit Doppelverglasungen
- neuere Hauseingangstüre (Haupthaus)
- massive Geschossdecken
- Haupthaus voll unterkellert, Bungalow ca. 50 %
- alle Badezimmer mit Fenster
Sonstige Informationen
Es liegt ein Energieverbrauchsausweis vor.
Dieser ist gültig bis 9.12.2032.
Endenergieverbrauch beträgt 195.20 kwh/(m²*a).
Wesentlicher Energieträger der Heizung ist Gas.
Das Baujahr des Objekts lt. Energieausweis ist 1958.
Die Energieeffizienzklasse ist F.
Alle Angaben basieren auf Informationen des Eigentümers. Für die Richtigkeit und Vollständigkeit übernehmen wir keine Haftung. Änderungen und Zwischenverkauf bleiben vorbehalten.
Die Käuferprovision beträgt 3,57 % inkl. MwSt. und ist verdient und fällig mit Abschluss des notariellen Kaufvertrages.
Haben wir Ihr Interesse geweckt? Gerne senden wir Ihnen weitere Informationen zu oder vereinbaren einen persönlichen Besichtigungstermin.
Dieser ist gültig bis 9.12.2032.
Endenergieverbrauch beträgt 195.20 kwh/(m²*a).
Wesentlicher Energieträger der Heizung ist Gas.
Das Baujahr des Objekts lt. Energieausweis ist 1958.
Die Energieeffizienzklasse ist F.
Alle Angaben basieren auf Informationen des Eigentümers. Für die Richtigkeit und Vollständigkeit übernehmen wir keine Haftung. Änderungen und Zwischenverkauf bleiben vorbehalten.
Die Käuferprovision beträgt 3,57 % inkl. MwSt. und ist verdient und fällig mit Abschluss des notariellen Kaufvertrages.
Haben wir Ihr Interesse geweckt? Gerne senden wir Ihnen weitere Informationen zu oder vereinbaren einen persönlichen Besichtigungstermin.
Karte wird geladen...
Objektstandort
41751 Viersen
- Nordrhein-Westfalen
Lage & Infrastruktur
Objektstandort
41751 Viersen
- Nordrhein-Westfalen
Die Immobilie befindet sich in zentraler Lage von Viersen-Dülken, einem Stadtteil mit historischem Charme und gewachsener Infrastruktur. Die hübsche Altstadt mit ihrem Marktplatz, kleinen Geschäften, Cafés und Restaurants ist schnell erreichbar und lädt zum Bummeln und Verweilen ein.
Geschäfte des täglichen Bedarfs, Supermärkte, Bäckereien, Ärzte und Apotheken befinden sich in unmittelbarer Nähe. Schulen, Kindergärten sowie zahlreiche Freizeit- und Sportangebote runden das familienfreundliche Umfeld ab.
Auch die Verkehrsanbindung ist sehr gut: Der Bahnhof Dülken bietet Zugverbindungen in Richtung Mönchengladbach und Düsseldorf. Über die Autobahnen A61 und A52 erreichen Sie schnell die umliegenden Städte wie Mönchengladbach, Krefeld und Düsseldorf.
Die Kombination aus zentraler Lage, guter Infrastruktur und dem besonderen Flair der Dülkener Altstadt macht diesen Standort gleichermaßen attraktiv für Eigennutzer und Kapitalanleger.
Geschäfte des täglichen Bedarfs, Supermärkte, Bäckereien, Ärzte und Apotheken befinden sich in unmittelbarer Nähe. Schulen, Kindergärten sowie zahlreiche Freizeit- und Sportangebote runden das familienfreundliche Umfeld ab.
Auch die Verkehrsanbindung ist sehr gut: Der Bahnhof Dülken bietet Zugverbindungen in Richtung Mönchengladbach und Düsseldorf. Über die Autobahnen A61 und A52 erreichen Sie schnell die umliegenden Städte wie Mönchengladbach, Krefeld und Düsseldorf.
Die Kombination aus zentraler Lage, guter Infrastruktur und dem besonderen Flair der Dülkener Altstadt macht diesen Standort gleichermaßen attraktiv für Eigennutzer und Kapitalanleger.
Kontaktanfrage senden
Über den Anbieter
SCHWARZ Immobilien
Lange Straße 15
41751 Viersen
Kontakt
| Telefon | 004921629198881 |
| Fax | 004921629198889 |
| Website | www.schwarz-immo24.de |
Ansprechpartner/in
Herr Ingo Schwarz
Weitere Angebote des Anbieters
28
3-Zimmer-Maisonettewohnung (EG & 1. OG) mit 2 Balkonen ...
Wohnung
41751 Viersen
Es handelt sich um ein für den Käufer provisionsfreies Immobilienangebot! Zum Verkauf steht eine schöne 3-Zimmer-Maisonette-Wohnung mit 2 Balkonen im Erd- und 1. Obergeschoss eines sehr gepflegten Mehrfamilienhauses ...
175.000 €
Kaufpreis
87 m²
Wohnfläche
3
Zimmer
36
Neuwertiges Reihenhaus mit Garten, Terrassenüberdachung ...
Haus
41334 Nettetal
Dieses neuwertige, teilweise barrierefreie Reihenhaus aus dem Baujahr 2012 überzeugt durch eine hochwertige Bauausführung, eine hervorragende Energieeffizienz (nachgewiesen durch einen aktuellen Bedarfsausweis, ...
425.000 €
Kaufpreis
122 m²
Wohnfläche
4
Zimmer
41
Mehrfamilienhaus mit viel Potential zur weiteren ...
Haus
41751 Viersen
Immobilie mit Potenzial – Mehrfamilienhaus mit Anbau, zusätzlichem Flachdachbau und Gewerbeoption Zentrumsnah in Viersen-Dülken befindet sich dieses gepflegte und sehr geräumige Mehrfamilienhaus mit Anbau sowie einem ...
385.000 €
Kaufpreis
377 m²
Wohnfläche
15
Zimmer
32
Solides Dreifamilienhaus mit zusätzlichem Bungalow in ...
Haus
41751 Viersen
Zum Verkauf steht ein gepflegtes Dreifamilienhaus mit seitlich angebautem kleinem (ca. 48 m² Wohnfläche) 2-Zimmer-Flachdachbungalow in zentraler Lage von Viersen-Dülken. Beide Gebäude bilden eine wirtschaftliche ...
329.000 €
Kaufpreis
211 m²
Wohnfläche
8
Zimmer
27
Gepflegtes Reihenendhaus mit Garage und Garten in ...
Haus
41238 Mönchengladbach
Dieses gepflegte und großzügige Reihenendhaus mit Garten, Gartenhaus und Garage befindet sich in einer attraktiven und ruhigen Wohnlage von Mönchengladbach-Giesenkirchen. Das im Jahr 1991 in massiver Bauweise ...
429.000 €
Kaufpreis
147 m²
Wohnfläche
5
Zimmer