Erding-City-Stadt-3-4Zi.ETW-EBK-Bezugsfrei-ca.106m²-TG auf Wunsch
429.000 €
Kaufpreis
106 m²
Wohnfläche
4
Zimmer
immobilien.de Nr.: 9464213
Objektnummer: A1085
Kaufpreis
| Kaufpreis | 429.000 € |
| Maklerprovision | 2,38% Käuferprovision inkl. MwSt. vom Kaufpreis |
Wohnfläche, Grundstück & Bausubstanz
| Wohnfläche | 106 m² |
| Zimmer | 4 |
| Baujahr | 1985 |
| Verfügbar ab | keine Angabe |
Energie
| Energieausweistyp | Verbrauch |
| Gültig bis | 05.09.2026 |
| Energieverbrauchkennwert | 120,90 kWh/(m²*a) |
| Heizungsart | Zentralheizung |
| Energieträger/Befeuerung | Gas |
Beschreibung der Immobilie
Erding - Stadt - City moderne Eigentumswohnung in zentraler Lage Nähe Seniorenwohnheim und Bahnhof.
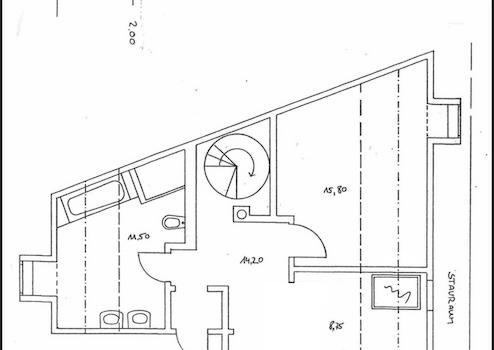
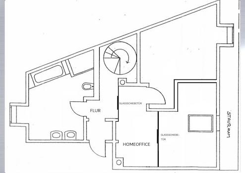
Die 3 Zi. bis (4 Zi. nach Umbau) Wohnung erstreckt sich über zwei Ebenen mit 2 Zugängen vom Treppenhaus aus und ist leicht erreichbar.
TOP: Zentrale Lage, auch gut vermietbar.
TOP: Wohnbereich mit Loggia, extra Küche, mit EBK
TOP: Badezimmer m. Wanne-Dusche, extra WC
TOP: Wohnanlage in zentraler Lage
TOP: mit Kaminanschluss für einen Holzofen
TOP: gemauerter Kellerraum
TOP: Zum Selbstbezug oder Kapitalanlage
TOP: Schöne Raumaufteilung und einen gemauerten Keller.
TOP: 2022 wurde ein neuer Fernwärmeanschluss verlegt, leider wurde der Energieausweis noch nicht angepasst.
Der Kaufpreis der Wohnung beträgt 429.000,-EUR.
Auf Wunsch kann noch zusätzlich ein TG Stellplatz (kein Duplex) erworben werden.
erste Ebene der Wohnung:
Eingangsbereich mit Flur, mit Zugang zum schönen Wohnbereich mit Wintergarten nach Westen. Eine Wohnküche mit EBK. Im Flurbereich ist ein separates WC. und eine Treppe in die zweite Ebene.
Die Zweite Ebene hat auch einen zusätzlich Zugang über das Treppenhaus (Möbeltransport). mit 2 Zimmer, (durch Umbau eventuell auf 3 Z. + Bad erweiterbar). ein gefliestes Badezimmer mit exklusiver Wanne, Glas Dusche, Fenster und WC. u. Waschmaschinenanschluss.
Über das Treppenhaus geht es zum Keller und zur Tiefgarage. ( ein Tiefgaragenplatz auf Wunsch zusätzlich erwerbbar)
Energiepass Art - Verbrauchsausweis
Energiebedarf - 120,90 kWh-(m²a)
Energieeffizienzklasse - D
Ausweis gültig bis - 05.09.2026
Baujahr Gebäude - 1985
Wesentliche Energieträger - Erdgas
Neue Heizung ab 2022.
Ausstattungsmerkmale
| Küche | Einbauküche |
| Boden | Laminat |
| Keller |
Die Firma KREIPL-KELLNBERGER-IMMOBILIEN-GMBH sucht laufend Miet- und Verkaufsobjekte in jeder Größe. Auch für vorgemerkte Kunden. Schnelle diskrete Bearbeitung u. GÜNSTIGE PREISE.
Wir bieten kompetente Beratung u.Verkauf, gepaart mit 38 - jähriger Erfahrung und kostengünstige Konditionen.
Bei Interesse am Objekt oder wenn Sie eine Beratung zu Ihrer Immobilie wünschen, schreiben Sie uns eine kurze E-Mail an info@Kreipl-Kellnberger-Immobilien-GmbH.de (leider wegen Datenschutz notwendig) wir melden uns sofort bei Ihnen.
Karte wird geladen...
Objektstandort
85435 Erding
Lage & Infrastruktur
Objektstandort
85435 Erding
Kurze Wege in die Innenstadt oder zu Einkaufsmöglichkeiten und zur Erholung ist die Erdinger Therme zum Greifen nah.
Verkehrsgünstige Lage:
Ärztehaus, Schule, Kindergarten, S-Bahnhof, Einkaufszentrum in zentraler Lage
Freizeitangebot: Der Krontalerweiher in Erding ist ein sehr beliebtes Freizeitdomizil. Er bietet allen Sonnenanbetern, Wasserratten und Grillfreunden allerbeste Freizeitmöglichkeiten, unter anderem Minigolf.
Verkehrsgünstige Lage:
Ärztehaus, Schule, Kindergarten, S-Bahnhof, Einkaufszentrum in zentraler Lage
Freizeitangebot: Der Krontalerweiher in Erding ist ein sehr beliebtes Freizeitdomizil. Er bietet allen Sonnenanbetern, Wasserratten und Grillfreunden allerbeste Freizeitmöglichkeiten, unter anderem Minigolf.
Kontaktanfrage senden
Über den Anbieter
Kreipl Kellnberger Immobilien GmbH
Lange Zeile 26
85435 Erding
Kontakt
| Telefon | 08122900090 |
| Fax | 08122900192 |
| Website | www.kreipl-kellnberger-immobilien-gmbh.de |
Ansprechpartner/in
Firma Immobilien Büro
Weitere Angebote des Anbieters
15
Freising-nähe Uni WG Zi. mit Dachterrasse
Wohnung
85354 Freising
Freising - Stadt nähe UNI - in einer Wohngemeinschaft ein Zimmer zu vermieten. Älteres Wohnhaus mit EG + DG in Traumhafter Wohnlage. Herrliche Südhanglage im Bergblick, Uni-Nähe, Bushaltestelle in direkter Nähe. Für ...
480 €
Kaltmiete
19 m²
Wohnfläche
1
Zimmer
8
Erding -Lange Zeile- Büro und Praxisräume ca. 91 m²
Büro / Praxen
85435 Erding
Erding Laden - Büro- oder Praxisräume, sehr schöne Lauflage mit hoher Kundenfrequenz. TOP: Laden - Büro - Paxis usw. möglich TOP: Zentrale Lage in Erding mit Zugang über die Lange Zeile. TOP: Perfekte Lauflage und 1 A ...
1.309 €
Kaltmiete
91 m²
Gesamtfläche
10
Erding- modernes App. EBK,Terrasse,Stpl. eigener ...
Wohnung
85435 Erding
Eine sehr schönes Appartement im Erdgeschoss inkl. moderner EBK, überdachte Südterrasse, aussen KFZ Stellplatz. Erding Ortsrand im Bereich Altenerding. Ab dem 01.07.2026 bezugsfrei oder nach Absprache früher möglich. ...
756 €
Kaltmiete
57 m²
Wohnfläche
1
Zimmer
14
Erding interessantes modernes M-Haus in guter Lage
Haus
85435 Erding
**TOP OBJEKT in Erding – modern und in guter Lage** **Ideal zum Selbstbezug oder Kapitalanlage** Das schöne Mittelhaus Baujahr 1972 mit 5 Zimmern - auf drei Ebenen mit ca. 157 m² Wohnfläche verteilt. Das Haus befindet ...
789.000 €
Kaufpreis
157 m²
Wohnfläche
5
Zimmer
12
Erding - Ortsteil Lgg. TOP DHH bezugsfrei mit Garage u ...
Haus
85435 Erding
85435 Erding, Lgg in ruhiger Lage. Haus mit Garage und EBK Eine hohe Wohnqualität sichert der Balkon zur Südseite, 2 Terrassen, kleiner Garten. Baujahr 1994, Grund ca. 200 m² Wohnfläche ca. 113 m², hochwertige ...
598.000 €
Kaufpreis
113 m²
Wohnfläche
4
Zimmer