Erding -Lange Zeile- Büro und Praxisräume ca. 91 m²

1.309 €
Kaltmiete
4
Zimmer
immobilien.de Nr.: 9529410 Objektnummer: A1088
TOP Lage
schöne Raumaufteilung
mit Blick auf die Lange Zeile
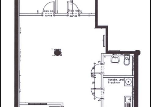
Grundriss
Eingangsbereich
Büroraum
Toilette
Lauflage in Erding

Mietpreis & Nebenkosten

Kaltmiete 1.309 €
Nebenkosten 327,25 €
Maklerprovision 1,19 Nettomonatsmieten inkl. MwSt
Kaution 2.750 €

Wohnfläche, Grundstück & Bausubstanz

Bürofläche 91 m²
Zimmer 4
Baujahr 1998
Verfügbar ab keine Angabe

Energie

Energieausweistyp Bedarfsausweis
Gültig bis 22.03.2036
Endenergiebedarf 147,60
Heizungsart Zentralheizung
Energieträger/Befeuerung Gas

Beschreibung der Immobilie


Erding Laden - Büro- oder Praxisräume, sehr schöne Lauflage mit hoher Kundenfrequenz.

TOP: Laden - Büro - Paxis usw. möglich
TOP: Zentrale Lage in Erding mit Zugang über die Lange Zeile.
TOP: Perfekte Lauflage und 1 A Lage.
TOP: Zur Werbung stehen diverse Schaukästen und Flächen zur Verfügung.
TOP: Lüftungsanlage im Büro
TOP: Mehrwertsteuer ausweisbar; im Mietpreis und in den Nebenkosten sind bereits 19 Prozent Mehrwertsteuer enthalten.
TOP: mit schönen Treppenaufgang im ersten Obergeschoss.

Bitte geben Sie bei Ihrer Anfrage, ungefähr das Gewerbe an, dass Sie betreiben möchten und bitte Ihre vollständige Adresse. DANKE.

Mietberechnung: Nettomiete 1.100 EUR Netto + Nebenkosten 275EUR ist mtl. Netto 1.375,00.- EUR zzgl. MwSt. 19%= 261,25EUR
= Gesamtmiete 1.636,25 mtl. inkl. MwSt.

Strom extra. Die gesetzliche Mehrwertsteuer wird ausgewiesen.

Die Provision für den Mieter beträgt 1 Nettomonatsmiete zzgl. MwSt. =
1.309.-EUR inkl. MwSt.

Energiepass Art - Verbrauchsausweis
Energiebedarf - 147,6 kWh-(m²a)
Energieeffizienzklasse - B
Ausweis gültig bis - 22.03.2036
Baujahr Gebäude - 1998
Wesentliche Energieträger - Gas

Ausstattungsmerkmale

 
Boden Fliesen

Bei Interesse, bitte zur Anfrage auch wenn möglich mit Ihrer Adresse,
dass Gewerbe für das es zur Nutzung bestimmt ist bitte mit anzugeben.
Ich bedanke mich für Ihr Verständnis.
Mit freundlichen Grüßen
Kreipl Kellnberger Immobilien GmbH
Karte wird geladen...
Objektstandort
85435 Erding

Lage & Infrastruktur


In Erding Lange Zeile perfekte Lage, für Büro und Praxis.
Die gute Entscheidung für Ihren neuen Standort.

Kontaktanfrage senden

Über den Anbieter

Kreipl Kellnberger Immobilien GmbH
Lange Zeile 26
85435 Erding
Kontakt
Ansprechpartner/in
Firma Immobilien Büro
Weitere Anbieterdaten

Weitere Angebote des Anbieters

Freising-nähe Uni WG Zi. mit Dachterrasse

Wohnung
Einbauküche
85354 Freising
Freising - Stadt nähe UNI - in einer Wohngemeinschaft ein Zimmer zu vermieten. Älteres Wohnhaus mit EG + DG in Traumhafter Wohnlage. Herrliche Südhanglage im Bergblick, Uni-Nähe, Bushaltestelle in direkter Nähe. Für ...
480 €
Kaltmiete
19 m²
Wohnfläche
1
Zimmer

Erding -Lange Zeile- Büro und Praxisräume ca. 91 m²

Büro / Praxen
85435 Erding
Erding Laden - Büro- oder Praxisräume, sehr schöne Lauflage mit hoher Kundenfrequenz. TOP: Laden - Büro - Paxis usw. möglich TOP: Zentrale Lage in Erding mit Zugang über die Lange Zeile. TOP: Perfekte Lauflage und 1 A ...
1.309 €
Kaltmiete
91 m²
Gesamtfläche

Erding- modernes App. EBK,Terrasse,Stpl. eigener ...

Wohnung
Einbauküche
85435 Erding
Eine sehr schönes Appartement im Erdgeschoss inkl. moderner EBK, überdachte Südterrasse, aussen KFZ Stellplatz. Erding Ortsrand im Bereich Altenerding. Ab dem 01.07.2026 bezugsfrei oder nach Absprache früher möglich. ...
756 €
Kaltmiete
57 m²
Wohnfläche
1
Zimmer

Erding interessantes modernes M-Haus in guter Lage

Haus
Einbauküche
85435 Erding
**TOP OBJEKT in Erding – modern und in guter Lage** **Ideal zum Selbstbezug oder Kapitalanlage** Das schöne Mittelhaus Baujahr 1972 mit 5 Zimmern - auf drei Ebenen mit ca. 157 m² Wohnfläche verteilt. Das Haus befindet ...
789.000 €
Kaufpreis
157 m²
Wohnfläche
5
Zimmer

Erding - Ortsteil Lgg. TOP DHH bezugsfrei mit Garage u ...

Haus
Einbauküche
85435 Erding
85435 Erding, Lgg in ruhiger Lage. Haus mit Garage und EBK Eine hohe Wohnqualität sichert der Balkon zur Südseite, 2 Terrassen, kleiner Garten. Baujahr 1994, Grund ca. 200 m² Wohnfläche ca. 113 m², hochwertige ...
598.000 €
Kaufpreis
113 m²
Wohnfläche
4
Zimmer