Top Lage - Top Wohnungen
419.000 €
Kaufpreis
79,1 m²
Wohnfläche
3
Zimmer
immobilien.de Nr.: 9461019
Objektnummer: FALC-DH-80965
Kaufpreis
| Kaufpreis | 419.000 € |
| Kaufpreis pro m² | 5297 € |
| Maklerprovision | keine Käuferprovision |
Wohnfläche, Grundstück & Bausubstanz
| Wohnfläche | 79,1 m² |
| Gesamtfläche | 85,99 m² |
| Grundstücksfläche | 583 m² |
| Zimmer | 3 |
| Baujahr | 2027 |
| Verfügbar ab | keine Angabe |
| Zustand | Erstbezug |
Energie
| Wesentlicher Energieträger | Strom |
| Energieträger/Befeuerung | Elektro |
Beschreibung der Immobilie
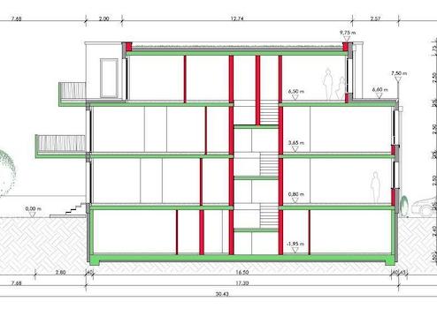
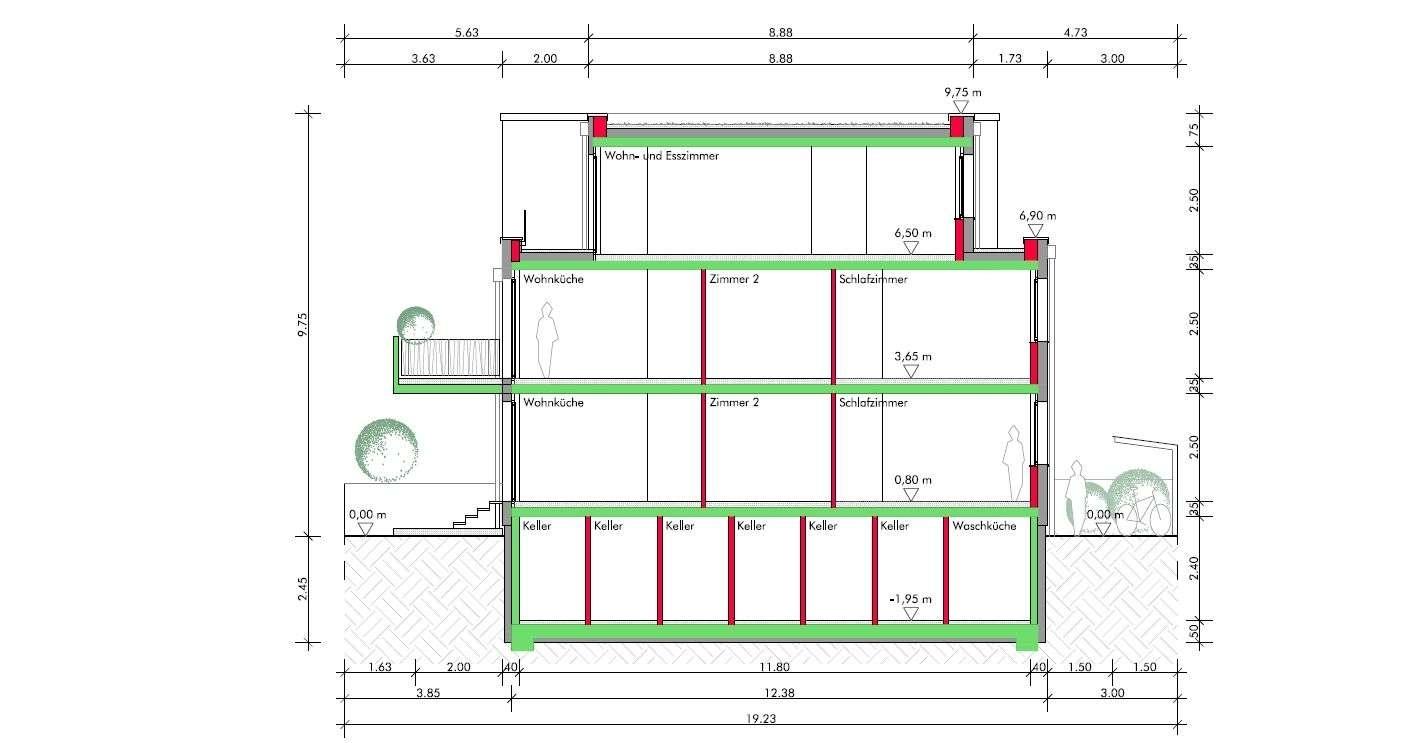
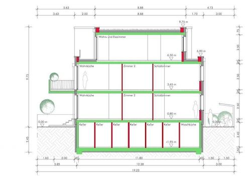
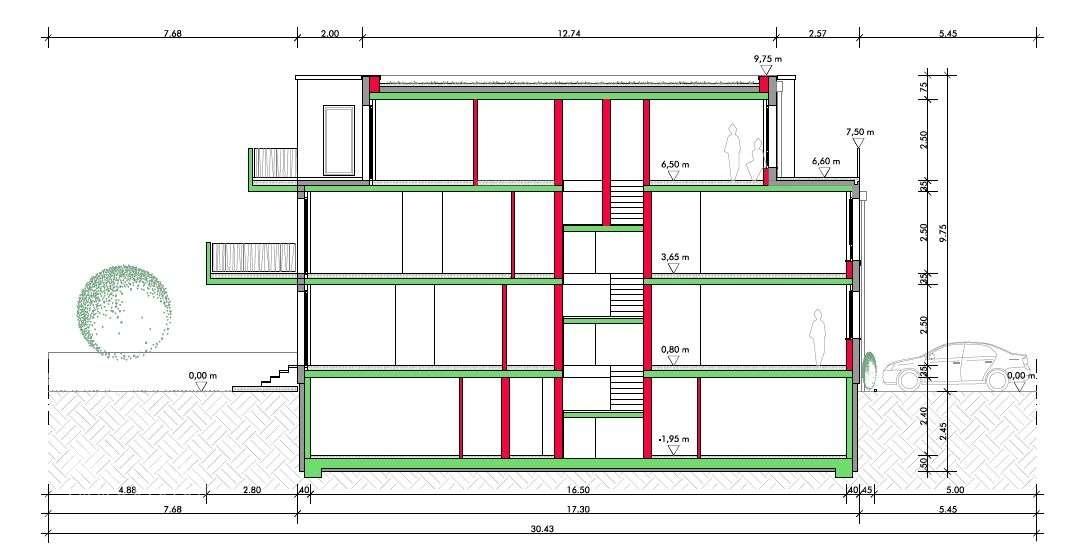
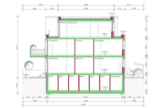
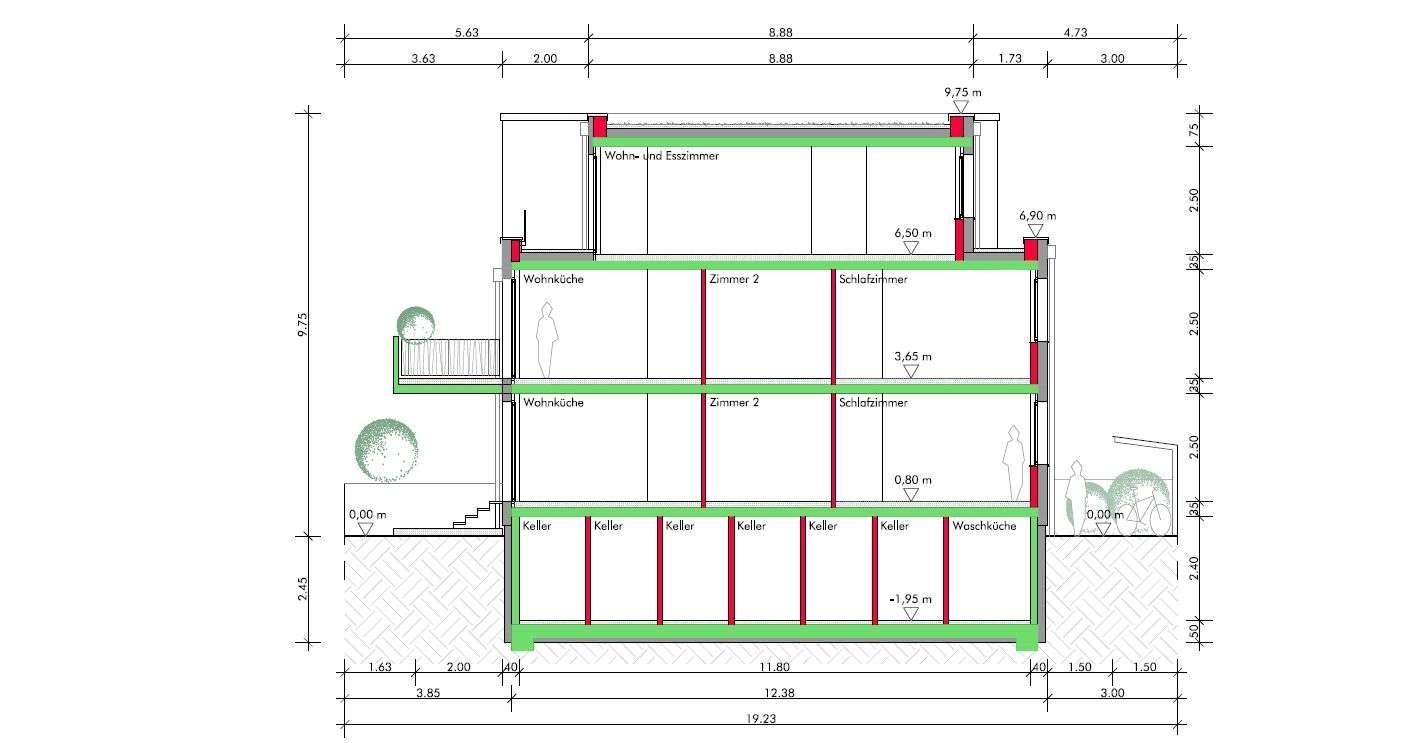
Die hier angebotene 3-Zimmer Wohnung mit der Nummer 3 und 79,1 m² Wohnfläche, bietet noch ein Bad, einen Balkon und befindet sich im Obergeschoß. Das geplante Mehrfamilienwohnhaus wird in sogenannter Massivbauweise als dreigeschossiges Gebäude mit zurückspringendem Staffelgeschoss als KfW 55 Haus errichtet. Das Dach ist ein Flachdach mit umlaufender Attika. Je Geschoss werden zwei Wohnungen und im Untergeschoss und Dachgeschoss/Penthouse je eine Wohnung erstellt, die Wohnungen im Erdgeschoss sind barrierefrei.
Die Einheiten im Erdgeschoss bzw. Obergeschoss verfügen über eine Terrasse oder Balkon. Durch ihre Lage und Geometrie ist ein gegenseitiger Sichtschutz gewährleistet. Das Penthouse beinhaltet eine großzügige Vierzimmerwohnung mit zwei Dachterrassen. Die Grundrisse zeigen einen offenen Wohn-Essbereich mit großflächiger bodentiefer Verglasung zu den Terrassen. Die Zimmer bieten ausreichend Platz zum Spielen und/oder Arbeiten, zum Schlafen und Aufbewahren. Alle großen Wohnungen verfügen über einen Abstellraum innerhalb der Wohnungen und erhalten weiterhin einen zusätzlichen Kellerraum.
Die hochwertige Ausstattungsserie Renova von Keramag wird in allen Bädern und WC´s installiert. Sie wird mit Grohe Armaturen der Serie Eurosmart kombiniert. Selbstverständlich werden die Bäder höchst komfortabel gestaltet, u.a. mit schwellenfreien Walk-In-Duschen. Für die Waschmaschinen gibt es einen extra Waschraum im Untergeschoss, das Sie bequem über Ihren Fahrstuhl erreichen können.
Die modernen Fenster verfügen über 3-fach Wärmeschutzisolierverglasung und haben im EG und UG einen erhöhten Einbruchschutz durch Pilzkopfverriegelung. Zur Verschattung kommen elektrische Rollläden zum Einsatz.
Das Gebäude ist vom Kellergeschoss bis zum Penthouse mit einem barrierefreien Personenaufzug mit Durchladung ausgestattet. Das Kabineninterieur, sowie die Bedienelemente bestehen aus hochwertigen und dauerhaften Materialien.
Jeder Wohneinheit ist ein Stellplatz zugeordnet, zudem wird ein großer Spielplatz, ausgestattet mit Spielgeräten, Sandkasten und Sitzbank auf dem Grundstück errichtet. Die überdachten Fahrradstellplätze und der geplante Müllplatz, zur Unterbringung der Müllcontainer, wird mit einem Sichtschutz allseitig eingehaust.
Entsprechend beiliegendem Gestaltungsplan werden der Gebäudezugang und die nicht überdachten KFZ-Stellplätze mit Betonpflaster ausgelegt. Der Grünbereich erhält eine Erstbepflanzung von Sträuchern, Hecken und heimischen Laubbäumen.
Aufteilung:
- Whg. 1 / EG / 3 Zi. mit Küche, Bad und Terrasse / 76,7 m² / 399.000,- €
- Whg. 2 / EG / 4 Zi. mit Küche, Bad, WC und Terrasse / 91,6 m² / 458.000,- €
- Whg. 3 / OG / 3 Zi. mit Küche, Bad und Balkon / 79,1 m² / 419.000,- €
- Whg. 4 / EG / 4 Zi. mit Küche, Bad, WC und Balkon / 97,3 m² / 511.000,- €
- Whg. 5 / DG / 4 Zi. mit Küche, Bad, WC und 2 Dachterrassen / 140,79 m² / 796.000,- €
- Whg. 6 / UG / 2 Zi. mit Küche, Bad, Abst. und Terrasse / 57,3 m² / 280.000,- €
- 1 Stellplatz im Außenbereich = 15.000,- €
Steuerliche Sonderabschreibungen zwischen 3% und 5% möglich. Ihr Steuerberater teilt Ihnen mit, was für Sie persönlich möglich ist.
Das Projekt wird so umgesetzt vorbehaltlich der Baugenehmigung.
Fordern Sie noch heute unser ausführliches Expose´ mit Baubeschreibung an !!
Die Einheiten im Erdgeschoss bzw. Obergeschoss verfügen über eine Terrasse oder Balkon. Durch ihre Lage und Geometrie ist ein gegenseitiger Sichtschutz gewährleistet. Das Penthouse beinhaltet eine großzügige Vierzimmerwohnung mit zwei Dachterrassen. Die Grundrisse zeigen einen offenen Wohn-Essbereich mit großflächiger bodentiefer Verglasung zu den Terrassen. Die Zimmer bieten ausreichend Platz zum Spielen und/oder Arbeiten, zum Schlafen und Aufbewahren. Alle großen Wohnungen verfügen über einen Abstellraum innerhalb der Wohnungen und erhalten weiterhin einen zusätzlichen Kellerraum.
Die hochwertige Ausstattungsserie Renova von Keramag wird in allen Bädern und WC´s installiert. Sie wird mit Grohe Armaturen der Serie Eurosmart kombiniert. Selbstverständlich werden die Bäder höchst komfortabel gestaltet, u.a. mit schwellenfreien Walk-In-Duschen. Für die Waschmaschinen gibt es einen extra Waschraum im Untergeschoss, das Sie bequem über Ihren Fahrstuhl erreichen können.
Die modernen Fenster verfügen über 3-fach Wärmeschutzisolierverglasung und haben im EG und UG einen erhöhten Einbruchschutz durch Pilzkopfverriegelung. Zur Verschattung kommen elektrische Rollläden zum Einsatz.
Das Gebäude ist vom Kellergeschoss bis zum Penthouse mit einem barrierefreien Personenaufzug mit Durchladung ausgestattet. Das Kabineninterieur, sowie die Bedienelemente bestehen aus hochwertigen und dauerhaften Materialien.
Jeder Wohneinheit ist ein Stellplatz zugeordnet, zudem wird ein großer Spielplatz, ausgestattet mit Spielgeräten, Sandkasten und Sitzbank auf dem Grundstück errichtet. Die überdachten Fahrradstellplätze und der geplante Müllplatz, zur Unterbringung der Müllcontainer, wird mit einem Sichtschutz allseitig eingehaust.
Entsprechend beiliegendem Gestaltungsplan werden der Gebäudezugang und die nicht überdachten KFZ-Stellplätze mit Betonpflaster ausgelegt. Der Grünbereich erhält eine Erstbepflanzung von Sträuchern, Hecken und heimischen Laubbäumen.
Aufteilung:
- Whg. 1 / EG / 3 Zi. mit Küche, Bad und Terrasse / 76,7 m² / 399.000,- €
- Whg. 2 / EG / 4 Zi. mit Küche, Bad, WC und Terrasse / 91,6 m² / 458.000,- €
- Whg. 3 / OG / 3 Zi. mit Küche, Bad und Balkon / 79,1 m² / 419.000,- €
- Whg. 4 / EG / 4 Zi. mit Küche, Bad, WC und Balkon / 97,3 m² / 511.000,- €
- Whg. 5 / DG / 4 Zi. mit Küche, Bad, WC und 2 Dachterrassen / 140,79 m² / 796.000,- €
- Whg. 6 / UG / 2 Zi. mit Küche, Bad, Abst. und Terrasse / 57,3 m² / 280.000,- €
- 1 Stellplatz im Außenbereich = 15.000,- €
Steuerliche Sonderabschreibungen zwischen 3% und 5% möglich. Ihr Steuerberater teilt Ihnen mit, was für Sie persönlich möglich ist.
Das Projekt wird so umgesetzt vorbehaltlich der Baugenehmigung.
Fordern Sie noch heute unser ausführliches Expose´ mit Baubeschreibung an !!
Ausstattungsmerkmale
| Anzahl der Etagen im Haus | 4 |
| Inserat befindet sich im Stockwerk | 1 |
| Bad | 1 |
| Bad | Dusche, Fenster |
| Boden | Fliesen, Parkett |
| Balkone | 1 |
| Terrassen | 1 |
| Fahrstuhl | |
| Keller |
- KfW-Effizienzhaus 55
- Personenaufzug über alle Geschosse, geeignet für barrierefreie Nutzung, zwei Zugangsseiten.
- Außenwände aus Kalksandsteinen mit Wärmedämmverbundsystem (WDVS)
- 3-fach Isolierverglaste Kunststofffenster
- Fensterbänke Aussen: Aluminium
- Fensterbänke Innen: Kunstwerkstein „Micro Carrara“
- Rollladen mit elektrischem Antrieb
- Balkone an der Längsseite massiv, an den Aussenseiten mit Geländer
- Innentüren aus Röhrenspanplattenaufbau, weiß, Edelstahl-Drückergarnituren
- Heizungsanlage als Luft-Wasser-Wärmepumpe, alternativ als Pelletheizung (je nach Berechnung)
- Überall Fussbodenheizung, in den Bäder zusätzlich ein Wandheizkörper
- Sämtliche Bäder werden entsprechend der in den Plänen dargestellten Sanitäreinrichtungen hochwertig ausgestattet
- modernste Elektrotechnik und Ausstattung
- Bodenbeläge aus Fliesen, Echtholzparkett zusätzlich Betonplatten auf Terrassen und Balkone
- Außenanlage mit freien Stellplätzen, Fahrradunterstand, Spielplatz
- Personenaufzug über alle Geschosse, geeignet für barrierefreie Nutzung, zwei Zugangsseiten.
- Außenwände aus Kalksandsteinen mit Wärmedämmverbundsystem (WDVS)
- 3-fach Isolierverglaste Kunststofffenster
- Fensterbänke Aussen: Aluminium
- Fensterbänke Innen: Kunstwerkstein „Micro Carrara“
- Rollladen mit elektrischem Antrieb
- Balkone an der Längsseite massiv, an den Aussenseiten mit Geländer
- Innentüren aus Röhrenspanplattenaufbau, weiß, Edelstahl-Drückergarnituren
- Heizungsanlage als Luft-Wasser-Wärmepumpe, alternativ als Pelletheizung (je nach Berechnung)
- Überall Fussbodenheizung, in den Bäder zusätzlich ein Wandheizkörper
- Sämtliche Bäder werden entsprechend der in den Plänen dargestellten Sanitäreinrichtungen hochwertig ausgestattet
- modernste Elektrotechnik und Ausstattung
- Bodenbeläge aus Fliesen, Echtholzparkett zusätzlich Betonplatten auf Terrassen und Balkone
- Außenanlage mit freien Stellplätzen, Fahrradunterstand, Spielplatz
Sonstige Informationen
Eine Besichtigung lohnt sich auf jeden Fall und ist nach persönlicher Absprache möglich.
Die Objektbeschreibung beruht ganz oder zum Teil auf Angaben des Eigentümers und eigenen Erhebungen. Für die Richtigkeit oder Vollständigkeit übernehmen wir keine Gewähr.
Ich freue mich über Ihre Kontaktaufnahme.
Mobil: 0176 - 211 972 83
Tel.: 07251 - 44 13 404
E-mail: dieter.haselmayer@falcimmo.de
FALC Immobilien
Dieter Haselmayer
Prof.-A.-Riffel-Str. 9
76689 Karlsdorf-Neuthard
Sie denken selbst über die Veräußerung Ihrer Immobilie nach oder möchten einfach nur wissen, was diese wert ist? Bei uns erhalten Sie kostenlos eine professionelle Wertermittlung ! Rufen Sie uns einfach an oder kontaktieren uns per E-mail !
Die Objektbeschreibung beruht ganz oder zum Teil auf Angaben des Eigentümers und eigenen Erhebungen. Für die Richtigkeit oder Vollständigkeit übernehmen wir keine Gewähr.
Ich freue mich über Ihre Kontaktaufnahme.
Mobil: 0176 - 211 972 83
Tel.: 07251 - 44 13 404
E-mail: dieter.haselmayer@falcimmo.de
FALC Immobilien
Dieter Haselmayer
Prof.-A.-Riffel-Str. 9
76689 Karlsdorf-Neuthard
Sie denken selbst über die Veräußerung Ihrer Immobilie nach oder möchten einfach nur wissen, was diese wert ist? Bei uns erhalten Sie kostenlos eine professionelle Wertermittlung ! Rufen Sie uns einfach an oder kontaktieren uns per E-mail !
Karte wird geladen...
Objektstandort
69168 Wiesloch
- Baden-Württemberg
Lage & Infrastruktur
Objektstandort
69168 Wiesloch
- Baden-Württemberg
Die Gemeinde Baiertal ist ein Ortsteil der Großen Kreisstadt Wiesloch. Sie liegt im nordwestlichen Kraichgau und etwa 15 km südlich von Heidelberg.
Von Baiertal mit ca. 4.500 Einwohnern (Wiesloch ca. 26.500), sind die umliegenden Städte und Zentren (z. B. Bruchsal 27 km, Speyer 25 km, Mannheim 35 km, Karlsruhe 50 km) durch den ÖNPV, durch die nahe gelegenen Bundesstraße B3, sowie durch die Autobahnen A5 und A6 optimal erreichbar.
In der näheren Umgebung sind verschiedene Einkaufsgeschäfte und Discounter erreichbar. In der ebenfalls nahe gelegenen Innenstadt von Wiesloch befinden sich Dienstleistungsbetriebe, Ärztehaus und Gastronomiebetriebe.
Die Grundschule von Baiertal ist in wenigen Gehminuten erreichbar. Alle weiterführenden Schulen befinden sich in Wiesloch, die bequem mit dem öffentlichen Bus erreichbar sind. Zwei ortsansässige Kindergärten ergänzen das Angebot für die Kleinsten.
Das Projekt entsteht am westlichen Ortsrand in der Mozartstrasse.
Von Baiertal mit ca. 4.500 Einwohnern (Wiesloch ca. 26.500), sind die umliegenden Städte und Zentren (z. B. Bruchsal 27 km, Speyer 25 km, Mannheim 35 km, Karlsruhe 50 km) durch den ÖNPV, durch die nahe gelegenen Bundesstraße B3, sowie durch die Autobahnen A5 und A6 optimal erreichbar.
In der näheren Umgebung sind verschiedene Einkaufsgeschäfte und Discounter erreichbar. In der ebenfalls nahe gelegenen Innenstadt von Wiesloch befinden sich Dienstleistungsbetriebe, Ärztehaus und Gastronomiebetriebe.
Die Grundschule von Baiertal ist in wenigen Gehminuten erreichbar. Alle weiterführenden Schulen befinden sich in Wiesloch, die bequem mit dem öffentlichen Bus erreichbar sind. Zwei ortsansässige Kindergärten ergänzen das Angebot für die Kleinsten.
Das Projekt entsteht am westlichen Ortsrand in der Mozartstrasse.
Kontaktanfrage senden
Über den Anbieter
FALC Immobilien GmbH & Co. KG
Humperdickstr. 3
53773 Hennef (Sieg)
Kontakt
| Telefon | 07251 - 44 13 404 |
| Mobil | +49 176 21197283 |
| Fax | +49 2242 9010319 |
| Website | www.falcimmo.de |
Ansprechpartner/in
Herr Dieter Haselmayer