Bungalow in Kirkel zu verkaufen!
340.000 €
Kaufpreis
122 m²
Wohnfläche
4
Zimmer
immobilien.de Nr.: 9454773
Objektnummer: FALC-SC-79880
Kaufpreis
| Kaufpreis | 340.000 € |
| Maklerprovision | 3,57% |
Wohnfläche, Grundstück & Bausubstanz
| Wohnfläche | 122 m² |
| Grundstücksfläche | 606 m² |
| Zimmer | 4 |
| Baujahr | 1970 |
| Verfügbar ab | Sofort |
| Zustand | Gepflegt |
Energie
| Energieausweistyp | Bedarfsausweis |
| Ausstellungsdatum | 28. 01. 2026 |
| Gültig bis | 27.01.2036 |
| Energieeffizienzklasse | F |
| Endenergiebedarf | 192.29 |
| Heizungsart | Zentralheizung |
| Wesentlicher Energieträger | Öl |
| Energieträger/Befeuerung | Öl |
Beschreibung der Immobilie
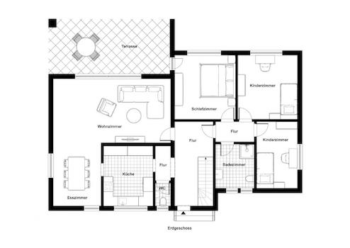
Sie betreten den Bungalow und gelangen in einen zentralen Eingangsbereich, der Platz für Garderobe und Schuhschrank bietet. Von hier aus erschließt sich der Wohnbereich auf einer Ebene, was den Alltag angenehm übersichtlich macht.
Linksseitig führt der Weg in den Wohn und Essbereich. Durch die gute Raumgröße lässt sich hier sowohl eine gemütliche Sofaecke als auch ein vollwertiger Essplatz einrichten. Von diesem Bereich aus gelangen Sie direkt auf die Terrasse, die den Wohnraum sinnvoll nach außen erweitert und sich ideal für eine Sitzgruppe eignet.
Angrenzend liegt die Küche, die kurze Wege im Alltag ermöglicht. Es ist genug Platz für die praktische Küchenzeile mit zusätzlicher Arbeitsfläche (Essecke). Praktisch ist die Nähe zum Esszimmer, sodass Servieren und Aufräumen unkompliziert bleiben.
Im privaten Teil des Hauses befinden sich drei Schlafzimmer. Diese lassen sich flexibel als Elternschlafzimmer, Kinderzimmer, Arbeits oder Gästezimmer nutzen. Die Räume sind so geschnitten, dass Schrankflächen und Bettstellungen gut planbar sind.
Das Badezimmer ist als zentraler Sanitärraum angeordnet und versorgt den Schlafbereich auf kurzen Wegen. Ergänzend steht ein separates Gäste WC zur Verfügung, was den Alltag und Besuchssituationen spürbar erleichtert.
Zusätzlichen Stauraum bietet der Keller, ideal für Vorräte, Hobby, Werkbank oder saisonale Dinge. Der Garten ergänzt das Haus um eine grüne Rückzugsmöglichkeit, ob zum Spielen, Gärtnern oder einfach zum Sitzen im Freien.
Mit insgesamt 4 Zimmern und rund 122 m² Wohnfläche bietet dieses Haus eine solide Grundlage für Familienleben oder komfortables Wohnen mit Platzreserven.
Linksseitig führt der Weg in den Wohn und Essbereich. Durch die gute Raumgröße lässt sich hier sowohl eine gemütliche Sofaecke als auch ein vollwertiger Essplatz einrichten. Von diesem Bereich aus gelangen Sie direkt auf die Terrasse, die den Wohnraum sinnvoll nach außen erweitert und sich ideal für eine Sitzgruppe eignet.
Angrenzend liegt die Küche, die kurze Wege im Alltag ermöglicht. Es ist genug Platz für die praktische Küchenzeile mit zusätzlicher Arbeitsfläche (Essecke). Praktisch ist die Nähe zum Esszimmer, sodass Servieren und Aufräumen unkompliziert bleiben.
Im privaten Teil des Hauses befinden sich drei Schlafzimmer. Diese lassen sich flexibel als Elternschlafzimmer, Kinderzimmer, Arbeits oder Gästezimmer nutzen. Die Räume sind so geschnitten, dass Schrankflächen und Bettstellungen gut planbar sind.
Das Badezimmer ist als zentraler Sanitärraum angeordnet und versorgt den Schlafbereich auf kurzen Wegen. Ergänzend steht ein separates Gäste WC zur Verfügung, was den Alltag und Besuchssituationen spürbar erleichtert.
Zusätzlichen Stauraum bietet der Keller, ideal für Vorräte, Hobby, Werkbank oder saisonale Dinge. Der Garten ergänzt das Haus um eine grüne Rückzugsmöglichkeit, ob zum Spielen, Gärtnern oder einfach zum Sitzen im Freien.
Mit insgesamt 4 Zimmern und rund 122 m² Wohnfläche bietet dieses Haus eine solide Grundlage für Familienleben oder komfortables Wohnen mit Platzreserven.
Ausstattungsmerkmale
| Anzahl der Etagen im Haus | 1 |
| Küche | Einbauküche |
| Bad | 1 |
| Bad | Dusche, Wanne, Fenster |
| Boden | Fliesen, Laminat, Kunststoff |
| Balkone | 1 |
| Garten | |
| Terrassen | 1 |
| Barrierefrei | |
| Keller |
- Baujahr 1970
- Grundstück 606 m2
- Wohnfläche ca. 122 m2
- 4 Zimmer, Küche, Bad
- Einbauküche mit Theke
- Große Terrasse vorhanden
- Praktischer Keller
- Gäste WC
- Ansprechender Garten
- Garage
- Grundstück 606 m2
- Wohnfläche ca. 122 m2
- 4 Zimmer, Küche, Bad
- Einbauküche mit Theke
- Große Terrasse vorhanden
- Praktischer Keller
- Gäste WC
- Ansprechender Garten
- Garage
Sonstige Informationen
Falls Sie Wert auf eine ruhige Lage, ein schön geschnittenes Zuhause und ein angenehmes Wohnumfeld legen, könnte dieses Traumgrundstück genau das Richtige für Sie sein. Wir bieten Ihnen eine kostenlose 24/7-Hotline unter der Rufnummer: 0800-6460646, über die Sie uns jederzeit erreichen können. Wenn Sie Interesse an der Immobilie haben, fordern Sie gerne das ausführliche Exposé an, das Ihnen in der Regel kurzfristig und automatisch zugesandt wird. Sollten Sie eine Besichtigung wünschen, antworten Sie am besten direkt per E-Mail auf das Exposé. Wir setzen uns umgehend mit Ihnen in Verbindung und unterbreiten Ihnen passende Terminvorschläge. Bitte geben Sie dabei stets Ihre vollständigen Kontaktdaten an. Die Objektbeschreibung basiert ganz oder teilweise auf den Angaben des Eigentümers. Für die Richtigkeit und Vollständigkeit dieser Informationen übernehmen wir keine Gewähr. Möchten auch Sie Ihre Immobilie professionell vermarkten? Dann kontaktieren Sie uns gerne! Wir stehen Ihnen täglich von Montag bis Sonntag zwischen 6:00 und 22:00 Uhr persönlich zur Verfügung. Über 200.000 aktive Interessenten warten bereits auf Ihr Angebot. Bitte beachten Sie, dass das Exposé möglicherweise unter Zuhilfenahme von Künstlicher Intelligenz erstellt oder überarbeitet wurde. Dabei wurden jedoch keine wesentlichen Merkmale verändert.
Karte wird geladen...
Objektstandort
66459 Kirkel
- Saarland
Lage & Infrastruktur
Objektstandort
66459 Kirkel
- Saarland
Die Immobilie liegt in einem gewachsenen Wohngebiet von Kirkel Neuhäusel, das sich durch kurze Wege im Alltag und ein angenehm ruhiges Umfeld auszeichnet. Für Familien ist besonders attraktiv, dass vieles ohne großen Aufwand erreichbar ist und Kinder in der näheren Umgebung passende Angebote finden.
Alltag und Nahversorgung
Für den schnellen Einkauf liegen gleich mehrere Möglichkeiten in der Nähe. Ein Norma ist in wenigen Minuten erreichbar, ebenso ein Wasgau für den größeren Wocheneinkauf. Damit bleibt der Alltag flexibel, auch wenn es einmal spontan werden muss.
Kinderbetreuung und Schule
Die Betreuung ist gut abgedeckt: Die Prot. Kindertagesstätte Der Walfisch sowie der Katholische Kindergarten befinden sich in der näheren Umgebung. Auch die Grundschule ist gut erreichbar. Für kleine und größere Kinder gibt es zudem mehrere Spielmöglichkeiten, darunter ein Spielplatz ganz in der Nähe sowie die Drachengrube und die Kugelbahn.
Freizeit und Erholung
Grünflächen und Bewegung kommen nicht zu kurz. Der Wald liegt in der Nähe und bietet Raum für Spaziergänge und kleine Auszeiten. Ergänzend stehen sportliche Angebote wie eine Schulturnhalle im Umfeld zur Verfügung. Wer gerne auswärts isst, findet mit Gastronomie in Kirkel sehr angenehme Anlaufstellen.
Öffentlicher Nahverkehr und überregionale Anbindung
Mehrere Bushaltestellen sind fußläufig erreichbar, darunter Kirkel Kohlroterweg und Kirkel Naturfreundehaus. Für die Bahnverbindung bietet sich der Bahnhof Kirkel Neuhäusel an.
Mit dem Auto ist die Anbindung an die Autobahnen A6 und A8 gut, da sich die Auffahrten im Gemeindegebiet befinden. Der Flughafen Saarbrücken Ensheim liegt in der Region und ist mit dem Auto in etwa 20 Minuten erreichbar.
Insgesamt verbindet die Lage ein familienfreundliches Umfeld mit praktischer Nahversorgung, kurzen Wegen zu Betreuung und Schule sowie einer soliden Anbindung für Pendler und Ausflüge.
Alltag und Nahversorgung
Für den schnellen Einkauf liegen gleich mehrere Möglichkeiten in der Nähe. Ein Norma ist in wenigen Minuten erreichbar, ebenso ein Wasgau für den größeren Wocheneinkauf. Damit bleibt der Alltag flexibel, auch wenn es einmal spontan werden muss.
Kinderbetreuung und Schule
Die Betreuung ist gut abgedeckt: Die Prot. Kindertagesstätte Der Walfisch sowie der Katholische Kindergarten befinden sich in der näheren Umgebung. Auch die Grundschule ist gut erreichbar. Für kleine und größere Kinder gibt es zudem mehrere Spielmöglichkeiten, darunter ein Spielplatz ganz in der Nähe sowie die Drachengrube und die Kugelbahn.
Freizeit und Erholung
Grünflächen und Bewegung kommen nicht zu kurz. Der Wald liegt in der Nähe und bietet Raum für Spaziergänge und kleine Auszeiten. Ergänzend stehen sportliche Angebote wie eine Schulturnhalle im Umfeld zur Verfügung. Wer gerne auswärts isst, findet mit Gastronomie in Kirkel sehr angenehme Anlaufstellen.
Öffentlicher Nahverkehr und überregionale Anbindung
Mehrere Bushaltestellen sind fußläufig erreichbar, darunter Kirkel Kohlroterweg und Kirkel Naturfreundehaus. Für die Bahnverbindung bietet sich der Bahnhof Kirkel Neuhäusel an.
Mit dem Auto ist die Anbindung an die Autobahnen A6 und A8 gut, da sich die Auffahrten im Gemeindegebiet befinden. Der Flughafen Saarbrücken Ensheim liegt in der Region und ist mit dem Auto in etwa 20 Minuten erreichbar.
Insgesamt verbindet die Lage ein familienfreundliches Umfeld mit praktischer Nahversorgung, kurzen Wegen zu Betreuung und Schule sowie einer soliden Anbindung für Pendler und Ausflüge.
Kontaktanfrage senden
Über den Anbieter
FALC Immobilien GmbH & Co. KG
Humperdickstr. 3
53773 Hennef (Sieg)
Kontakt
| Telefon | +49 6841 9937246 |
| Mobil | +49 170 4903522 |
| Fax | +49 2242 9010319 |
| Website | www.falcimmo.de |
Ansprechpartner/in
Herr Sascha Crisan
Weitere Angebote des Anbieters
20
Gepflegte Wohnung in gefragter Lage
Wohnung
73035 Göppingen
* Die Wohnung ist aktuell noch vermietet * Die helle 3,5-Zimmer-Wohnung befindet sich im Erdgeschoss eines 1994 erbauten Mehrfamilienhauses. Die Wohnung eignet sich ideal für Paare oder Familien, die Wert auf Komfort ...
259.000 €
Kaufpreis
74 m²
Wohnfläche
3,5
Zimmer
21
Stilvolle Wohnung in ruhiger Wohnanlage in Cales de ...
Wohnung
07689 Cales de Mallorca
Stilvolle Wohnung in ruhiger Wohnanlage in Cales de Mallorca In begehrter Lage von Cales de Mallorca präsentiert sich diese gepflegte und hochwertig ausgestattete 3-Zimmer-Wohnung in einer ruhigen, gehobenen Wohnanlage ...
349.000 €
Kaufpreis
87 m²
Wohnfläche
3
Zimmer
4
Tolles Baugrundstück am nördlichen Seeufer
Grundstück
8314 Vonyarcvashegy
Bau Möglichkeit: 30% Baukategorie: LK-E 4 Maximal 30 % der Grundstücksfläche dürfen überbaut werden (Haus, Garage, überdachte Terrassen etc.) Wichtig: Es zählt die Grundfläche, nicht die Wohnfläche über mehrere ...
115.000 €
Kaufpreis
804 m²
Grundstücksfläche
3
großes Wald- und Wiesengrundstück in Westungarn
Grundstück
8948 Barlahida
Großes Grundstück in naturbelassener Umgebung, teilweise gerodet, teilweise Akazienwald, leichte Hanglage, der Bau eines kleinen Hauses ist möglich, keine öffentlichen Anschlüsse, Wohnkarte möglich laut Aussage des ...
16.900 €
Kaufpreis
23.000 m²
Grundstücksfläche
34
Landhaus-Bungalow als Neubau-Erstbezug in Ungarn kaufen ...
Haus
8372 Cserszegtomaj
Neuer Landhaus-Bungalow als Neubau-Erstbezug in Ungarn kaufen Dieser wunderschöner Landhaus-Bungalow steht zum Verkauf und befindet sich in Cserszegtomaj, einem ruhigen Wohngebiet. Mit 3 Zimmern und einer Wohnfläche ...
425.000 €
Kaufpreis
115 m²
Wohnfläche
3
Zimmer