Wohnung im 1. Obergeschoss zu mieten - Sögel!
741 €
Kaltmiete (netto)
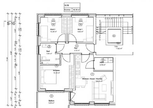
80,18 m²
Wohnfläche
4
Zimmer
immobilien.de Nr.: 9453470
Objektnummer: 2763
Mietpreis & Nebenkosten
| Kaltmiete (netto) | 741 € |
| Nebenkosten | 0 € |
| Kaution | 2.118 € |
Wohnfläche, Grundstück & Bausubstanz
| Wohnfläche | 80,18 m² |
| Zimmer | 4 |
| Baujahr | 2024 |
| Verfügbar ab | kurzfristig möglich |
| Zustand | Erstbezug |
Energie
| Energieausweistyp | Bedarfsausweis |
| Ausstellungsdatum | 10. 06. 2025 |
| Gültig bis | 10.06.2035 |
| Baujahr (laut Energieausweis) | 2024 |
| Energieeffizienzklasse | A+ |
| Endenergiebedarf | 15,3 |
| Heizungsart | Zentralheizung |
| Wesentlicher Energieträger | Strom |
| Energieträger/Befeuerung | Elektro |
Beschreibung der Immobilie
In zentraler Lage befindet sich dieses moderne Mehrfamilienhaus mit nur fünf Wohneinheiten. Die Architektur ist ansprechend, die Raumaufteilung durchdacht und die Ausstattung hochwertig. Die helle Wohnung bietet eine überdachte Terrasse bzw. Balkon auf der sich der Feierabend genießen lässt. Ein Aufzug, ein eigener Kellerraum sowie ein PKW-Stellplatz sind vorhanden. Die Wohnung eignet sich ideal für Paare oder Familien, die Wert auf modernes Wohnen in guter Lage legen. Der Zugang erfolgt bequem über das gemeinschaftlich genutzte Treppenhaus oder den Aufzug.
Ausstattungsmerkmale
| Inserat befindet sich im Stockwerk | 1 |
| Fahrstuhl | |
| Keller |
- 3 Schlafzimmer
- offener Wohn-, Ess- und Kochbereich
- überdachte Terrasse bzw. Balkon
- Fahrstuhl
- PKW-Stellplatz
- Neubau-Erstbezug
- KfW 40 Standard
Diese moderne Neubauwohnung überzeugt mit einem großzügigen, offenen Wohn-, Ess- und Kochbereich, drei Schlafzimmern sowie einen überdachten Balkon. Große Fensterflächen sorgen für lichtdurchflutete Räume und eine freundliche Wohnatmosphäre. Die Ausstattung ist hochwertig und modern - freundliche Bodenbeläge und Fußbodenheizung schaffen ein angenehmes Wohnklima. Das Badezimmer ist mit einer ebenerdigen Dusche, Waschbecken, WC und ansprechenden Wand- und Bodenfliesen ausgestattet. Der KfW-40-Standard garantiert energieeffizientes Wohnen. Ein Aufzug bringt Sie bequem bis vor die Wohnungstür. Die monatliche Kaltmiete beträgt 741,- € (inklusive PKW-Stellplatz 35,-€), zuzüglich 50,- € für die Einbauküche, somit insgesamt 791,- € monatlich. Hinzu kommt eine Nebenkostenvorauszahlung in Höhe von 250,- € monatlich. Die Kosten für Strom sowie Telefon/Internet sind vom Mieter direkt mit dem jeweiligen Versorger abzurechnen. Sie haben Interesse an dieser Mietwohnung? Senden Sie uns bequem eine E-Mail mit Ihren kompletten Kontaktdaten, wir freuen uns auf Ihre Nachricht.
- offener Wohn-, Ess- und Kochbereich
- überdachte Terrasse bzw. Balkon
- Fahrstuhl
- PKW-Stellplatz
- Neubau-Erstbezug
- KfW 40 Standard
Diese moderne Neubauwohnung überzeugt mit einem großzügigen, offenen Wohn-, Ess- und Kochbereich, drei Schlafzimmern sowie einen überdachten Balkon. Große Fensterflächen sorgen für lichtdurchflutete Räume und eine freundliche Wohnatmosphäre. Die Ausstattung ist hochwertig und modern - freundliche Bodenbeläge und Fußbodenheizung schaffen ein angenehmes Wohnklima. Das Badezimmer ist mit einer ebenerdigen Dusche, Waschbecken, WC und ansprechenden Wand- und Bodenfliesen ausgestattet. Der KfW-40-Standard garantiert energieeffizientes Wohnen. Ein Aufzug bringt Sie bequem bis vor die Wohnungstür. Die monatliche Kaltmiete beträgt 741,- € (inklusive PKW-Stellplatz 35,-€), zuzüglich 50,- € für die Einbauküche, somit insgesamt 791,- € monatlich. Hinzu kommt eine Nebenkostenvorauszahlung in Höhe von 250,- € monatlich. Die Kosten für Strom sowie Telefon/Internet sind vom Mieter direkt mit dem jeweiligen Versorger abzurechnen. Sie haben Interesse an dieser Mietwohnung? Senden Sie uns bequem eine E-Mail mit Ihren kompletten Kontaktdaten, wir freuen uns auf Ihre Nachricht.
Sonstige Informationen
Befeuerung/Energieträger: Strom
Energieausweistyp: Bedarfsausweis
Energiekennwert: 15,3 kWh/(m²*a)
Energieeffizienzklasse: A+
Heizungsart: Wärmepumpe
Baujahr: 2024
Bei den Außenansichten, Grundrissplänen und Lageplan handelt es sich um Visualisierungen! Die definitiven Ansichten, Grundrisspläne und Lageplan können Änderungen beinhalten!
Angaben laut Energieausweis:
Baujahr Gebäude: 2024
Befeuerung/Energieträger: Strom
Energieausweistyp: Bedarfsausweis
Energieeffizienzklasse: A+
Energiekennwert: 15,3 kWh/(m²·a)
Energieausweis gültig bis: 10.06.2035
Energieausweisdatum: 10.06.2025
Energieausweistyp: Bedarfsausweis
Energiekennwert: 15,3 kWh/(m²*a)
Energieeffizienzklasse: A+
Heizungsart: Wärmepumpe
Baujahr: 2024
Bei den Außenansichten, Grundrissplänen und Lageplan handelt es sich um Visualisierungen! Die definitiven Ansichten, Grundrisspläne und Lageplan können Änderungen beinhalten!
Angaben laut Energieausweis:
Baujahr Gebäude: 2024
Befeuerung/Energieträger: Strom
Energieausweistyp: Bedarfsausweis
Energieeffizienzklasse: A+
Energiekennwert: 15,3 kWh/(m²·a)
Energieausweis gültig bis: 10.06.2035
Energieausweisdatum: 10.06.2025
Karte wird geladen...
Objektstandort
49751 Sögel
- Niedersachsen
Lage & Infrastruktur
Objektstandort
49751 Sögel
- Niedersachsen
Sögel ist ein malerischer Ort im Landkreis Emsland im westlichen Niedersachsen. Die Gemeinde Sögel zeichnet sich durch ein charmantes Ortsbild aus, das von dem wunderschönen Schloss Clemenswerth geprägt ist. Der Ortskern von Sögel lädt zum Bummeln und die Schlossanlage zu erholsamen Spaziergängen ein. Die Gemeinde Sögel bietet Ihnen eine Vielzahl von Freizeitmöglichkeiten in der umliegenden Natur sowie Freizeit- und Sportaktivitäten. Sögel liegt auf dem "Hümmling" inmitten einer grünen und hügeligen Landschaft, die zum Wandern, Radfahren und Erkunden einlädt. Alle Einkaufsmöglichkeiten, Krankenhaus - Hümmling-Hospital -, Ärzte, Apotheken, Banken, Schulen, Kindergarten, Freizeit- und Kulturangebote usw. befinden sich in unmittelbarer Nähe und sind in wenigen Gehminuten zu Fuß erreicht.
Kontaktanfrage senden
Über den Anbieter
Tebbel Immobilien GmbH
Clemens-August-Straße 25
49751 Sögel
Kontakt
| Telefon | 05952 - 808 |
| Fax | 05952 - 2237 |
| Website | www.tebbel-immobilien.de |
Ansprechpartner/in
Herr Tebbel
Weitere Angebote des Anbieters
18
Moderne Eleganz - Einfamilienhaus mit Doppelgarage in ...
Haus
49751 Werpeloh
Dieses stilvolle und moderne Einfamilienhaus in Werpeloh vereint gehobenen Wohnkomfort mit einer durchdachten Architektur. Das hochwertig ausgestattete Einfamilienhaus bietet großzügigen Lebensraum für Familien, die ...
399.000 €
Kaufpreis
180 m²
Wohnfläche
6
Zimmer
7
Sögel - Neubau - Walmdachbungalow in ruhiger Lage!
Haus
49751 Sögel
Hier wird Ihnen ein Walmdachbungalow - Neubau - mit einer hochwertigen Ausstattung angeboten. Die reiflich durchdachte und helle Wohnflächenaufteilung macht ein ebenerdiges und bequemes Wohnen fast ohne Einschränkungen ...
279.000 €
Kaufpreis
74,33 m²
Wohnfläche
3
Zimmer
16
Sögel: Wohnung im 1. Obergeschoss zu mieten!
Wohnung
49751 Sögel
In zentraler Lage befindet sich dieses moderne Mehrfamilienhaus mit nur fünf Wohneinheiten. Die Architektur ist ansprechend, die Raumaufteilung durchdacht und die Ausstattung hochwertig. Die helle Wohnung bietet eine ...
736 €
Kaltmiete (netto)
79,69 m²
Wohnfläche
4
Zimmer
16
Wohnung im 1. Obergeschoss zu mieten - Sögel!
Wohnung
49751 Sögel
In zentraler Lage befindet sich dieses moderne Mehrfamilienhaus mit nur fünf Wohneinheiten. Die Architektur ist ansprechend, die Raumaufteilung durchdacht und die Ausstattung hochwertig. Die helle Wohnung bietet eine ...
741 €
Kaltmiete (netto)
80,18 m²
Wohnfläche
4
Zimmer
19
Börger - Einfamilienhaus mit Einliegerwohnung im ...
Haus
26904 Börger
Dieses ursprünglich als Einfamilienhaus errichtete Wohnhaus wird derzeit als Einfamilienhaus mit Einliegerwohnung genutzt und bietet Ihnen vielfältige Nutzungsmöglichkeiten. Es ist ideal für Eigennutzer, "Mehrgeneration ...
239.000 €
Kaufpreis
158 m²
Wohnfläche
5
Zimmer