Großzügiges Einfamilienhaus in ruhiger Ortsrandlage von Stammham
726.000 €
Kaufpreis
189 m²
Wohnfläche
6
Zimmer
immobilien.de Nr.: 9452877
Objektnummer: 831021
Kaufpreis
| Kaufpreis | 726.000 € |
| Maklerprovision | 2,97 % (inkl. MwSt.) |
Wohnfläche, Grundstück & Bausubstanz
| Wohnfläche | 189 m² |
| Grundstücksfläche | 700 m² |
| Zimmer | 6 |
| Baujahr | 1997 |
| Verfügbar ab | sofort |
| Zustand | Gepflegt |
Energie
| Energieausweistyp | Verbrauch |
| Ausstellungsdatum | 09. 07. 2023 |
| Baujahr (laut Energieausweis) | 1997 |
| Energieeffizienzklasse | B |
| Energieverbrauchkennwert | 54 kWh/(m²*a) |
| Heizungsart | Zentralheizung |
| Wesentlicher Energieträger | Öl |
| Energieträger/Befeuerung | Öl |
Beschreibung der Immobilie
Dieses großzügige Einfamilienhaus überzeugt durch seine durchdachte Raumaufteilung, zahlreiche Ausstattungsdetails und eine ruhige Lage am Ortsrand von Stammham. Mit insgesamt sechs Schlafzimmern, einem voll nutzbaren Kellerbereich sowie einer unterkellerten Doppelgarage bietet die Immobilie viel Platz für Familien, Mehrgenerationenwohnen oder anspruchsvolle Wohnkonzepte.
Besonders hervorzuheben ist der direkte Zugang vom Keller in den Garten, die Doppelgarage mit integrierter Mechaniker-Grube (ideal für Hobby-Schrauber) sowie der liebevoll angelegte und geschützte Hintergarten mit Zypressenhecke als natürlichem Sichtschutz.
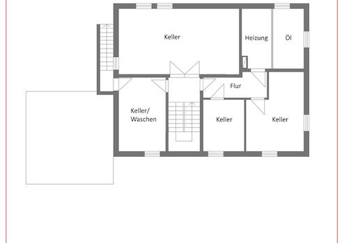
Der Keller ist vielseitig nutzbar und verfügt neben einem Hobbykeller auch über einen separaten Waschraum mit Anschlüssen für zwei Waschmaschinen. Zusätzlich bestehen bereits Anschlüsse für Dusche und Sauna, was den Untergeschossbereich besonders attraktiv macht.
In den letzten Jahren wurden bereits umfangreiche Modernisierungen vorgenommen, unter anderem im Innenausbau sowie an der Dachverkleidung inklusive Dämmung. Ergänzt wird das Energiekonzept durch eine Solaranlage zur Warmwasseraufbereitung.
Die Kombination aus ruhiger Wohnlage, guter Verkehrsanbindung und vielseitigen Nutzungsmöglichkeiten macht diese Immobilie zu einer seltenen Gelegenheit.
Weitere Angebote unter www.GARANT-IMMO.de
Besonders hervorzuheben ist der direkte Zugang vom Keller in den Garten, die Doppelgarage mit integrierter Mechaniker-Grube (ideal für Hobby-Schrauber) sowie der liebevoll angelegte und geschützte Hintergarten mit Zypressenhecke als natürlichem Sichtschutz.
Der Keller ist vielseitig nutzbar und verfügt neben einem Hobbykeller auch über einen separaten Waschraum mit Anschlüssen für zwei Waschmaschinen. Zusätzlich bestehen bereits Anschlüsse für Dusche und Sauna, was den Untergeschossbereich besonders attraktiv macht.
In den letzten Jahren wurden bereits umfangreiche Modernisierungen vorgenommen, unter anderem im Innenausbau sowie an der Dachverkleidung inklusive Dämmung. Ergänzt wird das Energiekonzept durch eine Solaranlage zur Warmwasseraufbereitung.
Die Kombination aus ruhiger Wohnlage, guter Verkehrsanbindung und vielseitigen Nutzungsmöglichkeiten macht diese Immobilie zu einer seltenen Gelegenheit.
Weitere Angebote unter www.GARANT-IMMO.de
Ausstattungsmerkmale
| Küche | Einbauküche |
| Boden | Fliesen, Teppich, Laminat |
| Balkone | 1 |
- Einfamilienhaus, voll unterkellert
- Weiße Wanne
- Doppelgarage, ebenfalls unterkellert
- Garage mit Mechaniker-Grube
- Zwei Stellplätze
- Sechs Schlafzimmer
- Zwei Balkone im Obergeschoss
- Terrasse
- Großer, ruhiger Hintergarten
- Zypressenhecke als Sichtschutz
- Gartenhäuschen & Gewächshaus
- Kellerausgang direkt in den Garten
- Keller gefliest
- Hobbykeller
- Waschraum mit Anschlüssen für zwei Waschmaschinen
- Anschlüsse für Dusche & Sauna im Keller
- Gasanschluss im Keller
- 3 × 1.500 l Öltanks
-Zentralheizung (Heizöl)
- Solarthermie für Warmwasser
- Fußbodenheizung im Erdgeschoss (Flur & Küche)
- Heizkörper in den übrigen Räumen
- Kamin im Wohnzimmer (Erdgeschoss)
- Badezimmer im 1. Obergeschoss mit Elektroheizung
- Küche mit Speisekammer und Fenster
- Wäscheschacht vom 1. Obergeschoss
- Elektrische Rollläden
- Einbauschränke im Eingangsbereich (verbleiben)
- Zwei WCs im Erdgeschoss
- Separater Wasserzähler für Gartennutzung
- Abflussrohr Küche (EG) 2024 erneuert
- Modernisierungen 2020
- Flur, Zimmer, Böden
- Dachverkleidung inkl. Dämmung
- Weiße Wanne
- Doppelgarage, ebenfalls unterkellert
- Garage mit Mechaniker-Grube
- Zwei Stellplätze
- Sechs Schlafzimmer
- Zwei Balkone im Obergeschoss
- Terrasse
- Großer, ruhiger Hintergarten
- Zypressenhecke als Sichtschutz
- Gartenhäuschen & Gewächshaus
- Kellerausgang direkt in den Garten
- Keller gefliest
- Hobbykeller
- Waschraum mit Anschlüssen für zwei Waschmaschinen
- Anschlüsse für Dusche & Sauna im Keller
- Gasanschluss im Keller
- 3 × 1.500 l Öltanks
-Zentralheizung (Heizöl)
- Solarthermie für Warmwasser
- Fußbodenheizung im Erdgeschoss (Flur & Küche)
- Heizkörper in den übrigen Räumen
- Kamin im Wohnzimmer (Erdgeschoss)
- Badezimmer im 1. Obergeschoss mit Elektroheizung
- Küche mit Speisekammer und Fenster
- Wäscheschacht vom 1. Obergeschoss
- Elektrische Rollläden
- Einbauschränke im Eingangsbereich (verbleiben)
- Zwei WCs im Erdgeschoss
- Separater Wasserzähler für Gartennutzung
- Abflussrohr Küche (EG) 2024 erneuert
- Modernisierungen 2020
- Flur, Zimmer, Böden
- Dachverkleidung inkl. Dämmung
Sonstige Informationen
Die Immobilie bietet viel Substanz, großzügige Flächen und zahlreiche Extras, die sowohl Komfort als auch Funktionalität unterstreichen. Ideal für Käufer, die ein ruhiges Wohnumfeld mit guter Erreichbarkeit und vielseitigen Nutzungsmöglichkeiten suchen.
Karte wird geladen...
Objektstandort
85134 Stammham
Lage & Infrastruktur
Objektstandort
85134 Stammham
Die Immobilie befindet sich in ruhiger Ortsrandlage von Stammham in einer sehr angenehmen und wenig befahrenen Wohngegend. Die Nähe zur A9 ermöglicht eine schnelle Anbindung in Richtung München und Nürnberg. Der Hauptbahnhof Ingolstadt ist in ca. 20 Minuten erreichbar.
Stammham bietet eine gute Infrastruktur mit Einkaufsmöglichkeiten, Kindergarten, Schule und ärztlicher Versorgung in der näheren Umgebung - ideal für Familien und Berufspendler gleichermaßen.
Stammham bietet eine gute Infrastruktur mit Einkaufsmöglichkeiten, Kindergarten, Schule und ärztlicher Versorgung in der näheren Umgebung - ideal für Familien und Berufspendler gleichermaßen.
Kontaktanfrage senden
Über den Anbieter
Garant Immobilien AG
Wilhelmstr.5
70182 Stuttgart
Kontakt
| Telefon | 0871/43 04 17-0 |
| Fax | 0871/43 04 17-20 |
| Website | www.garant-immo.de |
Ansprechpartner/in
Büro Landshut