Speed Lieferung in 6 Monaten +++ Streif macht es möglich!
269.995 €
Kaufpreis
118 m²
Wohnfläche
5
Zimmer
immobilien.de Nr.: 9450838
Objektnummer: 2024-034
Kaufpreis
| Kaufpreis | 269.995 € |
Wohnfläche, Grundstück & Bausubstanz
| Wohnfläche | 118 m² |
| Grundstücksfläche | 700 m² |
| Zimmer | 5 |
| Verfügbar ab | 2025 |
| Zustand | Projektiert |
Energie
| Energietyp | KfW-40 |
| Energieträger/Befeuerung | Luft-Wärme-Pumpe |
Beschreibung der Immobilie
Mit STREIF haben Sie die Möglichkeit, Ihr Traumhaus nach Ihren individuellen Vorstellungen zu gestalten. Dank unserer 4 verschiedenen Ausbaustufen können Sie Ihre Muskelhypothek einbringen und dadurch bares Geld sparen. Durch die Reduzierung von Krediten und Zinsen oder die Verkürzung der Kreditlaufzeiten wird der Hausbau noch attraktiver für Sie. Die Ausbaustufe 3 - FastFertigPlus umfasst eine Sanitär-Grundausstattung und ermöglicht es Ihnen, bei der Erstellung Ihres Hauses mitzuwirken, während gleichzeitig die haustechnischen Gewerke (Heizung, Lüftung, Sanitär und Estrich) von Fachbetrieben erledigt werden.
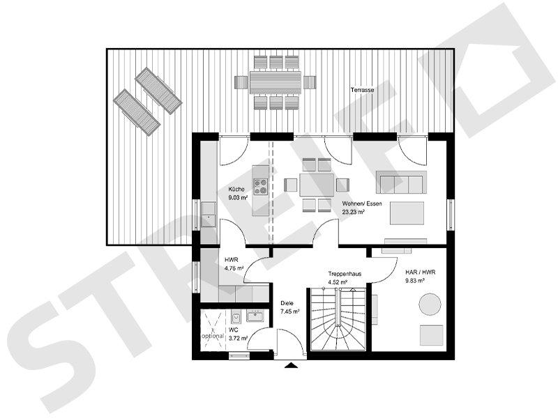
Das projektierte Einfamilienhaus befindet sich in Elsterberg und bietet mit 5 Zimmern auf 118 m² Wohnfläche ausreichend Platz für Ihre individuellen Bedürfnisse. Auf einem großzügigen Grundstück von 700 m² erstreckt sich das zweigeschossige Haus mit 3 Schlafzimmern und einem Badezimmer, das mit einer Dusche, einer Wanne und einem Fenster ausgestattet ist. Zusätzlich verfügt das Haus über ein Gäste-WC.
Die gehobene Ausstattung des Hauses sowie die Befeuerungsart mittels Wärmepumpe sorgen für ein komfortables und energieeffizientes Wohnen. Die Verwendung einer Wärmepumpe als Befeuerungsart bietet eine nachhaltige Alternative zu herkömmlichen Heizsystemen und trägt zur Schonung der Umwelt bei.
Dank des KfW40 Standards entspricht Ihr neues Zuhause den Anforderungen an ein energieeffizientes Gebäude und bietet Ihnen somit langfristige Einsparungen bei den Energiekosten.
Bei STREIF steht vor jedem Hausbau eine umfassende Beratung im Vordergrund. Hier werden Ihre Vorstellungen und Wünsche ermittelt, um Ihr Traumhaus ganz nach Ihren Erwartungen zu realisieren. Die Vielfalt an Optionen ermöglicht es Ihnen, zwischen verschiedenen Dachformen, Kelleroptionen sowie Anzahl der Geschosse zu wählen. Nach einer detaillierten Planung geht es an die maßgeschneiderte Umsetzung Ihres Einfamilienhauses, welche innerhalb weniger Monate realisiert wird. Abschließend übergeben wir Ihnen Ihr schlüsselfertiges Traumhaus oder realisieren es in Ihrer gewünschten Ausbaustufe.
STREIF steht für Qualität, Individualität und Nachhaltigkeit - lassen Sie sich von uns dabei unterstützen, Ihr persönliches Traumhaus zu verwirklichen.
Das projektierte Einfamilienhaus befindet sich in Elsterberg und bietet mit 5 Zimmern auf 118 m² Wohnfläche ausreichend Platz für Ihre individuellen Bedürfnisse. Auf einem großzügigen Grundstück von 700 m² erstreckt sich das zweigeschossige Haus mit 3 Schlafzimmern und einem Badezimmer, das mit einer Dusche, einer Wanne und einem Fenster ausgestattet ist. Zusätzlich verfügt das Haus über ein Gäste-WC.
Die gehobene Ausstattung des Hauses sowie die Befeuerungsart mittels Wärmepumpe sorgen für ein komfortables und energieeffizientes Wohnen. Die Verwendung einer Wärmepumpe als Befeuerungsart bietet eine nachhaltige Alternative zu herkömmlichen Heizsystemen und trägt zur Schonung der Umwelt bei.
Dank des KfW40 Standards entspricht Ihr neues Zuhause den Anforderungen an ein energieeffizientes Gebäude und bietet Ihnen somit langfristige Einsparungen bei den Energiekosten.
Bei STREIF steht vor jedem Hausbau eine umfassende Beratung im Vordergrund. Hier werden Ihre Vorstellungen und Wünsche ermittelt, um Ihr Traumhaus ganz nach Ihren Erwartungen zu realisieren. Die Vielfalt an Optionen ermöglicht es Ihnen, zwischen verschiedenen Dachformen, Kelleroptionen sowie Anzahl der Geschosse zu wählen. Nach einer detaillierten Planung geht es an die maßgeschneiderte Umsetzung Ihres Einfamilienhauses, welche innerhalb weniger Monate realisiert wird. Abschließend übergeben wir Ihnen Ihr schlüsselfertiges Traumhaus oder realisieren es in Ihrer gewünschten Ausbaustufe.
STREIF steht für Qualität, Individualität und Nachhaltigkeit - lassen Sie sich von uns dabei unterstützen, Ihr persönliches Traumhaus zu verwirklichen.
Ausstattungsmerkmale
| Anzahl der Etagen im Haus | 2 |
| Küche | Offene Küche |
| Bad | 1 |
| Bad | Dusche, Wanne, Fenster |
STREIF-Energiespar-Häuser sind für die Effizienzhaus-Klasse 40 ausgestattet. Gegen Aufpreis kann eine Ökobilanz erstellt werden, die bescheinigt, dass Ihr STREIF-Haus den neuen KfW-Förderrichtlinien in der Stufe KFWG für den Klimafreundlichen Neubau (KFN) entspricht. Für das Erfüllen der Voraussetzungen zur KfW-Förderung ist eine Photovoltaikanlage mit Batteriespeicher erforderlich.
Folgende STREIF-Leistungen sind im Jubiläums-Feierpreis enthalten -
bei Ausbaustufe FASTFERTIG+:
20-monatige Fair- und Festpreisgarantie
Inklusive gedämmter Fundamentplatte
Inklusive STREIF-Luft-Luft-Wärmepumpen-Technologie, mit integrierter Lüftungsanlage mit Wärmerückgewinnung
Inklusive hochwertiger Holzhaustür von KERA
Inklusive Fenster von Porta/Kömmerling, Fenster innen und außen in Weiß
Inklusive Massivholz-Geschosstreppe aus eigener Produktion (außer Bungalow)
Inklusive Sanitärobjekten von Markenherstellern in Bad/WC
Inklusive Elektroinstallation u.v.m.
Inklusive Vorbereitung zur Installation einer Photovoltaik-Anlage
Inklusive individueller Grundrissgestaltung und Raumaufteilung | Die Position der Bäder, die Größe der Haustechnikräume und der Treppen sind bei den Jubiläumshäusern nicht veränderbar.
Die STREIF-Passiv-Außenwand und eine sparsame Heiztechnik mit integrierter Wohnraumlüftung und Wärmerückgewinnung garantieren einen geringen Energieverbrauch und ein fantastisches Raumklima, das insbesondere Allergiker aufatmen lässt.
Die hohe Wertigkeit und Langlebigkeit eines STREIF-Energiespar-Hauses werden durch zahlreiche Auszeichnungen, Qualitäts- und Gütesiegel unabhängiger Institute und Verbände dokumentiert.
Der Angebotspreis ist exklusive Grundstück und bezieht sich auf die Standard-Ausbaustufe Fast-Fertig-Plus. Ihre Eigenleistungen: Spachtel-, Tapezier- und Malerarbeiten, Bodenbeläge, Innentüren.
Baunebenkosten fallen zuzüglich an. Der Verkauf des Grundstücks erfolgt über einen unserer Netzwerkpartner. Bilder können evtl. Anbauteile, Carports, Balkone, Gauben usw. zeigen, die nicht im Angebotspreis enthalten sind. Änderungen und Irrtümer vorbehalten. Fragen Sie Ihre persönliche STREIF-Bauberatung.
Folgende STREIF-Leistungen sind im Jubiläums-Feierpreis enthalten -
bei Ausbaustufe FASTFERTIG+:
20-monatige Fair- und Festpreisgarantie
Inklusive gedämmter Fundamentplatte
Inklusive STREIF-Luft-Luft-Wärmepumpen-Technologie, mit integrierter Lüftungsanlage mit Wärmerückgewinnung
Inklusive hochwertiger Holzhaustür von KERA
Inklusive Fenster von Porta/Kömmerling, Fenster innen und außen in Weiß
Inklusive Massivholz-Geschosstreppe aus eigener Produktion (außer Bungalow)
Inklusive Sanitärobjekten von Markenherstellern in Bad/WC
Inklusive Elektroinstallation u.v.m.
Inklusive Vorbereitung zur Installation einer Photovoltaik-Anlage
Inklusive individueller Grundrissgestaltung und Raumaufteilung | Die Position der Bäder, die Größe der Haustechnikräume und der Treppen sind bei den Jubiläumshäusern nicht veränderbar.
Die STREIF-Passiv-Außenwand und eine sparsame Heiztechnik mit integrierter Wohnraumlüftung und Wärmerückgewinnung garantieren einen geringen Energieverbrauch und ein fantastisches Raumklima, das insbesondere Allergiker aufatmen lässt.
Die hohe Wertigkeit und Langlebigkeit eines STREIF-Energiespar-Hauses werden durch zahlreiche Auszeichnungen, Qualitäts- und Gütesiegel unabhängiger Institute und Verbände dokumentiert.
Der Angebotspreis ist exklusive Grundstück und bezieht sich auf die Standard-Ausbaustufe Fast-Fertig-Plus. Ihre Eigenleistungen: Spachtel-, Tapezier- und Malerarbeiten, Bodenbeläge, Innentüren.
Baunebenkosten fallen zuzüglich an. Der Verkauf des Grundstücks erfolgt über einen unserer Netzwerkpartner. Bilder können evtl. Anbauteile, Carports, Balkone, Gauben usw. zeigen, die nicht im Angebotspreis enthalten sind. Änderungen und Irrtümer vorbehalten. Fragen Sie Ihre persönliche STREIF-Bauberatung.
Sonstige Informationen
Sie brauchen einen kompetenten und verlässlichen Baupartner? Wir stehen Ihnen von Anfang an zur Seite und begleiten Sie auf dem Weg in Ihr Eigenheim.
Mit großem Engagement, Persönlichkeit und der Fachfirma STREIF mit immensen Bau-Know-how, die seit 1929 auf über 85.000 realisierte Wohnträume zurückblicken kann.
Jedes Haus von STREIF wird individuell als Energiesparhaus geplant und gebaut. Eine nachhaltige, ökologische und wohngesunde Bauweise, eine zertifizierte Ausführungsqualität und eine kurze Bauzeit, dafür stehen wir.
Gerne beraten wir Sie nach Vereinbarung im Beratungsbüro Dölau bei Greiz oder ganz unkompliziert bei Ihnen zu Hause und erstellen Ihnen ein Angebot mit einer realistisch ermittelten Aufstellung der Gesamt-Investition.
Wir freuen uns auf Ihren Anruf / Nachricht!
Ihr STREIF Fachberaterin
Nicole Bamberger
E-Mail: nicole.bamberger@streif.de
Mobil: 0151-10658277
Hinweis:
Vorverkauf und Irrtümer vorbehalten. Bilder können Sonderbauteile darstellen, die im Preis nicht enthalten sind und abweichend von textlichen Inhalten sein.
zzgl. Baunebenkosten.
Der Grundstückserwerb stellt keine STREIF Leistung dar.
Hinweis zu den gesetzlichen Pflichtangaben gemäß der EnEV 2016: Bei dem hier angebotenen Haus handelt es sich um ein Neubauprojekt.
Wir weisen darauf hin, dass zu diesem projektierten Haus noch kein Energieausweis vorliegt. Der Energieausweis wird Ihnen spätestens im Rahmen der Erstellung des Objektes ausgehändigt
Mit großem Engagement, Persönlichkeit und der Fachfirma STREIF mit immensen Bau-Know-how, die seit 1929 auf über 85.000 realisierte Wohnträume zurückblicken kann.
Jedes Haus von STREIF wird individuell als Energiesparhaus geplant und gebaut. Eine nachhaltige, ökologische und wohngesunde Bauweise, eine zertifizierte Ausführungsqualität und eine kurze Bauzeit, dafür stehen wir.
Gerne beraten wir Sie nach Vereinbarung im Beratungsbüro Dölau bei Greiz oder ganz unkompliziert bei Ihnen zu Hause und erstellen Ihnen ein Angebot mit einer realistisch ermittelten Aufstellung der Gesamt-Investition.
Wir freuen uns auf Ihren Anruf / Nachricht!
Ihr STREIF Fachberaterin
Nicole Bamberger
E-Mail: nicole.bamberger@streif.de
Mobil: 0151-10658277
Hinweis:
Vorverkauf und Irrtümer vorbehalten. Bilder können Sonderbauteile darstellen, die im Preis nicht enthalten sind und abweichend von textlichen Inhalten sein.
zzgl. Baunebenkosten.
Der Grundstückserwerb stellt keine STREIF Leistung dar.
Hinweis zu den gesetzlichen Pflichtangaben gemäß der EnEV 2016: Bei dem hier angebotenen Haus handelt es sich um ein Neubauprojekt.
Wir weisen darauf hin, dass zu diesem projektierten Haus noch kein Energieausweis vorliegt. Der Energieausweis wird Ihnen spätestens im Rahmen der Erstellung des Objektes ausgehändigt
Karte wird geladen...
Objektstandort
07985 Elsterberg
Lage & Infrastruktur
Objektstandort
07985 Elsterberg
Hohndorf bei Elsterberg ist eine Gemeinde im Vogtlandkreis in Sachsen, Deutschland. Sie liegt etwa 20 Kilometer südwestlich von Zwickau und etwa 10 Kilometer südlich von Plauen. Die Gemeinde befindet sich inmitten der hügeligen Landschaft des Vogtlandes und ist umgeben von Wäldern, Feldern und kleinen Bächen.
Hohndorf bei Elsterberg ist eine typische ländliche Gemeinde mit einem idyllischen Dorfkern. Die Straßen sind von traditionellen Fachwerkhäusern und historischen Gebäuden geprägt. Die Gemeinde hat auch eine kleine, aber charmante Kirche aus dem 19. Jahrhundert.
Die Natur um Hohndorf bei Elsterberg bietet zahlreiche Möglichkeiten für Outdoor-Aktivitäten. Es gibt Wanderwege und Radwege, die durch die umliegenden Wälder und Felder führen und eine atemberaubende Aussicht bieten. Auch Angeln und Wassersport sind in der Nähe an der Weißen Elster möglich.
In der Umgebung von Hohndorf bei Elsterberg gibt es auch einige interessante Ausflugsziele. Die nahe gelegene Stadt Plauen ist bekannt für ihre historische Altstadt und das Vogtlandmuseum. Zwickau, eine größere Stadt in der Nähe, hat ebenfalls viele Sehenswürdigkeiten, darunter das Robert-Schumann-Haus und das August Horch Museum.
Insgesamt ist Hohndorf bei Elsterberg ein ruhiger und malerischer Ort im Vogtland, der sich ideal für Naturliebhaber und Menschen, die dem Trubel der Stadt entfliehen möchten, eignet.
Hohndorf bei Elsterberg ist eine typische ländliche Gemeinde mit einem idyllischen Dorfkern. Die Straßen sind von traditionellen Fachwerkhäusern und historischen Gebäuden geprägt. Die Gemeinde hat auch eine kleine, aber charmante Kirche aus dem 19. Jahrhundert.
Die Natur um Hohndorf bei Elsterberg bietet zahlreiche Möglichkeiten für Outdoor-Aktivitäten. Es gibt Wanderwege und Radwege, die durch die umliegenden Wälder und Felder führen und eine atemberaubende Aussicht bieten. Auch Angeln und Wassersport sind in der Nähe an der Weißen Elster möglich.
In der Umgebung von Hohndorf bei Elsterberg gibt es auch einige interessante Ausflugsziele. Die nahe gelegene Stadt Plauen ist bekannt für ihre historische Altstadt und das Vogtlandmuseum. Zwickau, eine größere Stadt in der Nähe, hat ebenfalls viele Sehenswürdigkeiten, darunter das Robert-Schumann-Haus und das August Horch Museum.
Insgesamt ist Hohndorf bei Elsterberg ein ruhiger und malerischer Ort im Vogtland, der sich ideal für Naturliebhaber und Menschen, die dem Trubel der Stadt entfliehen möchten, eignet.
Kontaktanfrage senden
Über den Anbieter
STREIF Haus GmbH
Josef-Streif-Straße 1
54595 Weinsheim
Kontakt
| Telefon | 06551 12 00 |
| Mobil | +49 151 10658277 |
| Website | www.streif.de |
Ansprechpartner/in
Frau Nicole Bamberger