Exklusives, traumhaftes Einfamilienhaus in idyllischer Lage!
545.000 €
Kaufpreis
214 m²
Wohnfläche
7
Zimmer
immobilien.de Nr.: 9450326
Objektnummer: 346033
Kaufpreis
| Kaufpreis | 545.000 € |
| Maklerprovision | 3,57 % (inkl. MwSt.) |
Wohnfläche, Grundstück & Bausubstanz
| Wohnfläche | 214 m² |
| Grundstücksfläche | 3.200 m² |
| Zimmer | 7 |
| Baujahr | 1950 |
| Verfügbar ab | nach Vereinbarung |
| Zustand | Gepflegt |
Energie
| Energieausweistyp | Verbrauch |
| Ausstellungsdatum | 30. 09. 2016 |
| Baujahr (laut Energieausweis) | 1994 |
| Energieeffizienzklasse | B |
| Energieverbrauchkennwert | 70.4 kWh/(m²*a) |
| Heizungsart | Zentralheizung |
| Wesentlicher Energieträger | Öl |
| Energieträger/Befeuerung | Öl |
Beschreibung der Immobilie
Besichtigen Sie mit mir, ein äußerst gepflegtes, idyllisch gelegenes und energieeffizientes Einfamilienhaus, das durch seine besondere Bauweise mit stilvollen Stuckdecken und viel Holz den Charme eines kleinen "Jagdschlösschens" ausstrahlt.
Das Haus wurde 1950 in solider Massivbauweise errichtet und im Jahr 1994 durch Anbauten erweitert. Dank kontinuierlicher Modernisierungen und laufender Investitionen präsentiert sich die Immobilie heute in einem hervorragenden Zustand. Einkaufsmöglichkeiten, Ärzte sowie sämtliche Einrichtungen des täglichen Bedarfs sind bequem fußläufig erreichbar.
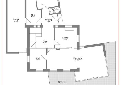
Der gehobene Wohnkomfort zeigt sich unter anderem in der hochwertigen Einbauküche mit Granitarbeitsplatte sowie in den einheitlichen Schieferfliesen im gesamten Erdgeschoss. Im Obergeschoss sorgen gepflegte Dielenböden für eine warme und einladende Wohnatmosphäre. Das Tageslichtbad ist mit Dusche und Badewanne ausgestattet. Vom Schlafzimmer aus betritt man einen sonnigen Balkon, ein weiteres Zimmer verfügt über einen stilvollen Kachelofen, der zusätzlich für Behaglichkeit sorgt.
Das vollständig ausgebaute, gedämmte Dachgeschoss bietet ein lichtdurchflutetes Zimmer mit vielfältigen Nutzungsmöglichkeiten, beispielsweise als Arbeits-, Gäste- oder Hobbyraum.
Das Haus ist voll unterkellert und verfügt unter anderem über eine ansprechende Sauna mit separater Dusche. Weitere Kellerräume werden derzeit als Hobby-, Fitness- und Fahrradraum genutzt.
Die großzügige Garage mit direktem Zugang zum Haus ist mit einem elektrischen Tor ausgestattet und bietet ausreichend Platz für Ihr Fahrzeug; aktuell wird sie zusätzlich als Werkstatt genutzt. Ein weiteres Carport auf dem Grundstück ergänzt das Platzangebot.
Die Öl-Zentralheizung aus dem Jahr 2004 befindet sich in einem einwandfreien Zustand. In Kombination mit der 10-kW-Photovoltaikanlage aus dem Jahr 2023, den neuen dreifach verglasten Kunststofffenstern (2024) sowie der soliden Bausubstanz erreicht das Gebäude die Energieeffizienzklasse "B".
Weitere Angebote unter www.GARANT-IMMO.de
Das Haus wurde 1950 in solider Massivbauweise errichtet und im Jahr 1994 durch Anbauten erweitert. Dank kontinuierlicher Modernisierungen und laufender Investitionen präsentiert sich die Immobilie heute in einem hervorragenden Zustand. Einkaufsmöglichkeiten, Ärzte sowie sämtliche Einrichtungen des täglichen Bedarfs sind bequem fußläufig erreichbar.
Der gehobene Wohnkomfort zeigt sich unter anderem in der hochwertigen Einbauküche mit Granitarbeitsplatte sowie in den einheitlichen Schieferfliesen im gesamten Erdgeschoss. Im Obergeschoss sorgen gepflegte Dielenböden für eine warme und einladende Wohnatmosphäre. Das Tageslichtbad ist mit Dusche und Badewanne ausgestattet. Vom Schlafzimmer aus betritt man einen sonnigen Balkon, ein weiteres Zimmer verfügt über einen stilvollen Kachelofen, der zusätzlich für Behaglichkeit sorgt.
Das vollständig ausgebaute, gedämmte Dachgeschoss bietet ein lichtdurchflutetes Zimmer mit vielfältigen Nutzungsmöglichkeiten, beispielsweise als Arbeits-, Gäste- oder Hobbyraum.
Das Haus ist voll unterkellert und verfügt unter anderem über eine ansprechende Sauna mit separater Dusche. Weitere Kellerräume werden derzeit als Hobby-, Fitness- und Fahrradraum genutzt.
Die großzügige Garage mit direktem Zugang zum Haus ist mit einem elektrischen Tor ausgestattet und bietet ausreichend Platz für Ihr Fahrzeug; aktuell wird sie zusätzlich als Werkstatt genutzt. Ein weiteres Carport auf dem Grundstück ergänzt das Platzangebot.
Die Öl-Zentralheizung aus dem Jahr 2004 befindet sich in einem einwandfreien Zustand. In Kombination mit der 10-kW-Photovoltaikanlage aus dem Jahr 2023, den neuen dreifach verglasten Kunststofffenstern (2024) sowie der soliden Bausubstanz erreicht das Gebäude die Energieeffizienzklasse "B".
Weitere Angebote unter www.GARANT-IMMO.de
Ausstattungsmerkmale
| Anzahl der Etagen im Haus | 1 |
| Küche | Einbauküche |
| Bad | 3 |
| Boden | Fliesen, Dielen |
| Balkone | 1 |
* Moderne PV-Anlage (Bj. 2023, 10 kw) inclusive Speicher
und Heizmodul für Brauchwasser
* Hochwertige Einbauküche mit Granitarbeitsplatte (inklusive)
* Garage und separater Carport (inklusive)
* Sauna mit zusätzlicher Dusche
* Hochwertige Kunststofffenster (Bj. 2024, 3-fach verglast)
* Neue Wohnzimmergeschossdecke mit Dachfenster
im Anbau (Bj. 2025)
* Neue, hochwertige Eingangstüre (Bj. 2026)
* Wasserzisterne mit elektr. Pumpe für Gartenbewässerung
* Behindertengerechte, ebenerdige Dusche im Erdgeschoss
* Koiteich im Garten mit verrottungsfester Polyesterwanne (Bj. 2022)
* Großes Grundstück mit eigenem Waldbestand
* Sehr gepflegter Garten mit Obstbäumen und Beerensträuchern
* Solide Bausubstand ohne jeglichen Renovierungsstau durch
regelmäßige Erneuerungen und Investitionen
und Heizmodul für Brauchwasser
* Hochwertige Einbauküche mit Granitarbeitsplatte (inklusive)
* Garage und separater Carport (inklusive)
* Sauna mit zusätzlicher Dusche
* Hochwertige Kunststofffenster (Bj. 2024, 3-fach verglast)
* Neue Wohnzimmergeschossdecke mit Dachfenster
im Anbau (Bj. 2025)
* Neue, hochwertige Eingangstüre (Bj. 2026)
* Wasserzisterne mit elektr. Pumpe für Gartenbewässerung
* Behindertengerechte, ebenerdige Dusche im Erdgeschoss
* Koiteich im Garten mit verrottungsfester Polyesterwanne (Bj. 2022)
* Großes Grundstück mit eigenem Waldbestand
* Sehr gepflegter Garten mit Obstbäumen und Beerensträuchern
* Solide Bausubstand ohne jeglichen Renovierungsstau durch
regelmäßige Erneuerungen und Investitionen
Sonstige Informationen
Haben Sie schon eine geprüfte Finanzierung? Gerne vermitteln wir Ihnen einen seriösen Finanzierungspartner mit Top-Konditionen. Sie haben selbst ein oder mehrere Objekte zu verkaufen? Gerne übernehme ich das für Sie. Sprechen Sie mich hierzu gerne an.
Wir vermitteln Ihnen auch gerne einen Projektentwickler um Ihre individuellen Vorstellungen umzusetzen.
Wir vermitteln Ihnen auch gerne einen Projektentwickler um Ihre individuellen Vorstellungen umzusetzen.
Karte wird geladen...
Objektstandort
96361 Steinbach am Wald
Lage & Infrastruktur
Objektstandort
96361 Steinbach am Wald
Steinbach a.Wald ist nicht nur der höchste Punkt der Bier- und Burgenstraße, als staatlich anerkannter Erholungsort ist Steinbach darüber hinaus die einzige bayerische Gemeinde, durch deren Ortslage der sagenumwobene überregionale Wanderweg Rennsteig führt.
Die vielen Sehenswürdigkeiten, wie die historische Wehrkirche in Steinbach a.Wald oder der Dom des Frankenwaldes in Buchbach, verzaubern Urlauber und Einheimische gleichermaßen. Das Freizeit- und Tourismuszentrum bietet für Groß und Klein allerhand. Das Generationen-Bad läd Gäste jeden Alters ein schöne Stunden zu verbringen. Die Stockschießbahn und die Tennisplätze können während der Öffnungszeiten der Touristeninfo von jedermann gemietet werden. Kulinarisch versorgt das CULINARIUM Atmosphera mit mediteraner und fränkischer Küche all seine Gäste.
Der schön angelegte Rennsteig-Park bietet sich hervorragend für eine Verschnaufpause an. Wer mehr in die Natur eintauchen möchte, dem bieten verschiedene Wanderstrecken, Nordic Walking und Mountainbiking ganzjährig Spaß und Erholung.
Unweit des Grünen Bandes liegt der Ölschnitzsee, idyllisch eingebettet im Naturpark Frankenwald und lässt gestresste Seelen durchatmen. Das Seehaus lockt mit seinen Leckereien und seinem anliegenden Minigolfplatz. Naturlehrpfade informieren über Flora und Fauna das Frankenwaldes.
Die fränkische Gastlichkeit der ortsansässigen Gastronomie bietet kulinarische Genüsse und Feinkost aus der Region. Vitalgerichte und herzhafte Speisen werden von Bierspezialitäten aus dem Landkreis ideal begleitet. Ein starker Wirtschaftsstandort mit zukunftsorientierten Unternehmen und Gewerbetreibenden zeichnen Steinbach aus.
Tradition sind die Trachtenkirchweihen in allen Gemeindeteilen; das Schützenfest in Steinbach lockt alljährlich zahlreiche Besucher aus Nah und Fern nach Steinbach.
Die vielen Sehenswürdigkeiten, wie die historische Wehrkirche in Steinbach a.Wald oder der Dom des Frankenwaldes in Buchbach, verzaubern Urlauber und Einheimische gleichermaßen. Das Freizeit- und Tourismuszentrum bietet für Groß und Klein allerhand. Das Generationen-Bad läd Gäste jeden Alters ein schöne Stunden zu verbringen. Die Stockschießbahn und die Tennisplätze können während der Öffnungszeiten der Touristeninfo von jedermann gemietet werden. Kulinarisch versorgt das CULINARIUM Atmosphera mit mediteraner und fränkischer Küche all seine Gäste.
Der schön angelegte Rennsteig-Park bietet sich hervorragend für eine Verschnaufpause an. Wer mehr in die Natur eintauchen möchte, dem bieten verschiedene Wanderstrecken, Nordic Walking und Mountainbiking ganzjährig Spaß und Erholung.
Unweit des Grünen Bandes liegt der Ölschnitzsee, idyllisch eingebettet im Naturpark Frankenwald und lässt gestresste Seelen durchatmen. Das Seehaus lockt mit seinen Leckereien und seinem anliegenden Minigolfplatz. Naturlehrpfade informieren über Flora und Fauna das Frankenwaldes.
Die fränkische Gastlichkeit der ortsansässigen Gastronomie bietet kulinarische Genüsse und Feinkost aus der Region. Vitalgerichte und herzhafte Speisen werden von Bierspezialitäten aus dem Landkreis ideal begleitet. Ein starker Wirtschaftsstandort mit zukunftsorientierten Unternehmen und Gewerbetreibenden zeichnen Steinbach aus.
Tradition sind die Trachtenkirchweihen in allen Gemeindeteilen; das Schützenfest in Steinbach lockt alljährlich zahlreiche Besucher aus Nah und Fern nach Steinbach.
Kontaktanfrage senden
Über den Anbieter
Garant Immobilien AG
Wilhelmstr.5
70182 Stuttgart
Kontakt
| Telefon | 0951/96 86 51-0 |
| Website | www.garant-immo.de |
Ansprechpartner/in
Büro Bamberg
Weitere Angebote des Anbieters
23
Helles, sonniges Einfamilienhaus mit Einliegerwohnung ...
Haus
91126 Schwabach
Sie halten Ausschau nach einem Haus mit Potenzial? Sie bevorzugen ein großes Grundstück? Sie wollen sonnig und ruhig wohnen? Sie wünschen sich eine Einliegerwohnung für die Eltern oder zur Vermietung? Das Grundstück ...
695.000 €
Kaufpreis
191 m²
Wohnfläche
6
Zimmer
19
Zweifamilienhaus in Aussichtslage für gehobene ...
Haus
94151 Mauth
Aus diesem schönen Zweifamilienhaus genießen Sie einen herrlichen Blick über den Bayerischen Wald. Das Haus wurde 2001 neu erbaut und wurde mit Weitsicht und hochwertigen Materialien errichtet. Das bringt Ihnen heute ...
595.000 €
Kaufpreis
284 m²
Wohnfläche
9
Zimmer
27
Das Haus für Ihre Familie - hell, großzügig, mit ...
Haus
72458 Albstadt
Dieses charmante Einfamilienhaus aus dem Jahr 1961 verbindet solide Bauweise mit bereits erfolgten Modernisierungen und bietet gleichzeitig Raum für Ihre individuellen Ideen. Auf einem ca. 662 m² großen Grundstück und ...
365.000 €
Kaufpreis
160 m²
Wohnfläche
6
Zimmer
10
Charmante Dachgeschoss-Wohnung mit Ausbaupotenzial & ...
Wohnung
70794 Filderstadt
Diese attraktive Dachgeschoss-Wohnung mit ca. 60,5 qm Wohnfläche überzeugt durch ihren funktionalen Grundriss, zusätzliche Nutzfläche sowie vielseitige Gestaltungsmöglichkeiten. Die Wohnung befindet sich im 2. ...
195.000 €
Kaufpreis
60 m²
Wohnfläche
2
Zimmer
16
Historischer Bauernhof mit großem Grundstück und ...
Haus
83119 Obing
Zum Verkauf steht ein historischer Bauernhof mit erster Erwähnung aus dem Jahr 1540. Das Anwesen besteht aus einem Wohnhaus, mehreren Nebengebäuden sowie einem großzügigen Grundstück und bietet vielfältige ...
895.000 €
Kaufpreis
196 m²
Wohnfläche
9
Zimmer