Förderfähig*Erwerben Sie eine der letzten Baulücken*KfW300* inkl. Keller
499.099 €
Kaufpreis
120 m²
Wohnfläche
200 m²
Nutzfläche
5
Zimmer
immobilien.de Nr.: 9449619
Objektnummer: Eitelborn_ME_2
Kaufpreis
| Kaufpreis | 499.099 € |
| Maklerprovision | 0 |
Wohnfläche, Grundstück & Bausubstanz
| Wohnfläche | 120 m² |
| Nutzfläche | 200 m² |
| Grundstücksfläche | 410 m² |
| Zimmer | 5 |
| Baujahr | 2027 |
| Verfügbar ab | keine Angabe |
| Zustand | Projektiert |
Energie
| Energietyp | KfW-40 |
| Heizungsart | Fußbodenheizung |
| Energieträger/Befeuerung | Luft-Wärme-Pumpe |
Beschreibung der Immobilie
Genießen Sie Ihr Frühstück mit Fernblick auf dem Balkon eines modernen Einfamilienhauses in Eitelborn. Das Objekt überzeugt durch individuell gestaltbare Wohnräume, darunter drei großzügige Schlafzimmer, ein elegantes Badezimmer und ein separates Gäste-WC - ideal für Familien und Besucher gleichermaßen. Die Ausbaustufe FastFertigPlus gewährleistet eine hochwertige Bauweise und bietet Ihnen die Möglichkeit, aktiv an der Gestaltung Ihres neuen Zuhauses mitzuwirken. Flexible Grundrisse sowie eine vollständige Unterkellerung mit Option auf eine zusätzliche Wohneinheit unterstreichen die Vielseitigkeit der Immobilie. Qualifizierte Fachkräfte übernehmen die technische Umsetzung für ein zeitgemäßes und nachhaltiges Wohnkonzept.
Ausstattungsmerkmale
| Küche | Offene Küche |
| Bad | 1 |
| Bad | Dusche, Wanne, Fenster |
| Balkone | 1 |
| Terrassen | 1 |
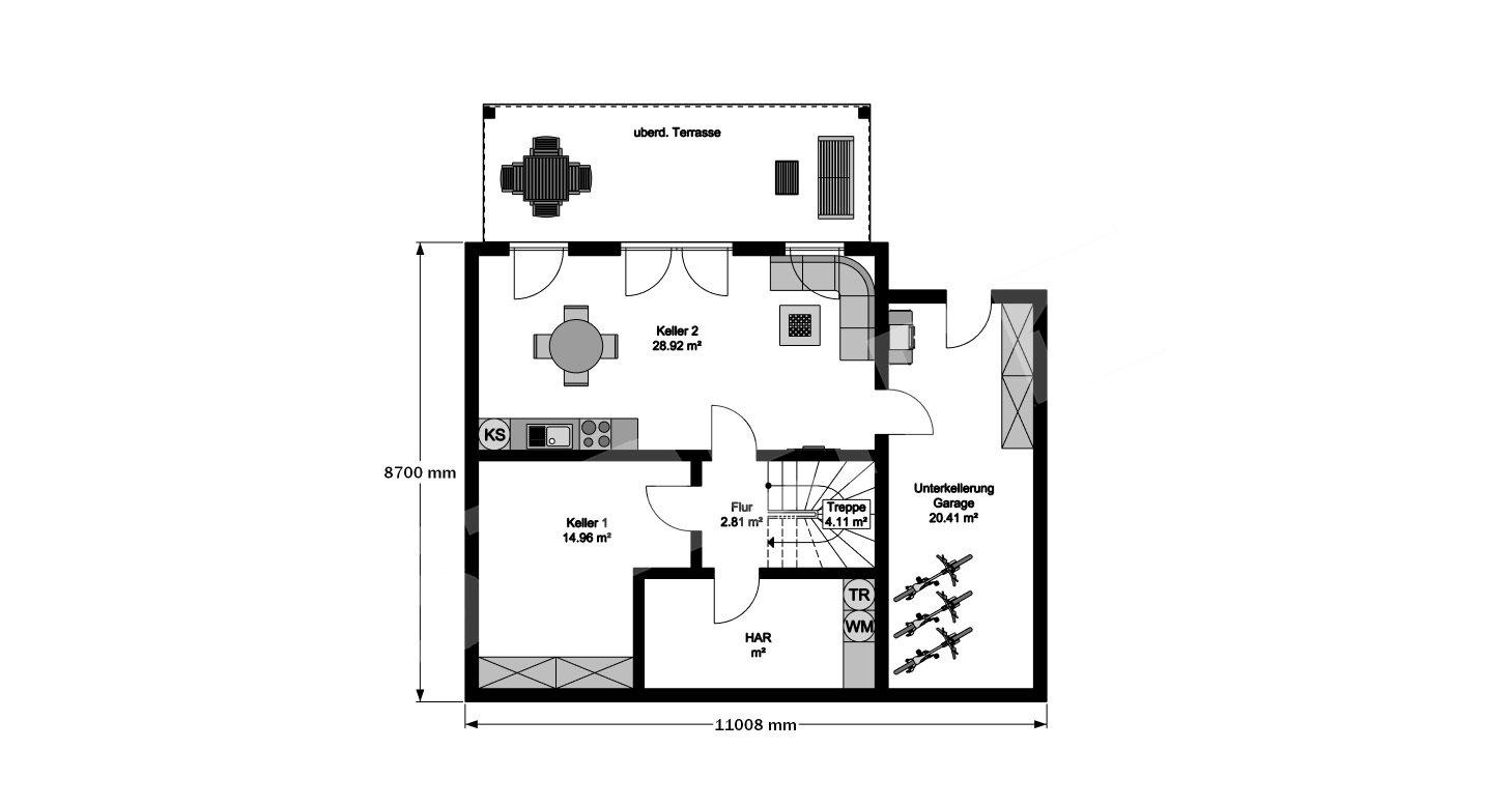
| Keller |
Das moderne Einfamilienhaus besticht durch eine hochwertige Ausstattung und setzt auf eine umweltfreundliche Luft-Wasser-Wärmepumpe zur Beheizung, das nicht nur effizient und kostensparend agiert, sondern auch einen wertvollen Beitrag zum Klimaschutz leistet. Darüber hinaus erfüllt der Energietyp den KFW40 Standard, was Ihnen dauerhaft niedrige Energiekosten sichert.
Inkl. Keller; inkl. großzügigem Balkon mit Fernblick, inkl. PREMIUM Ausstattung, Bodengleiche Dusche, hochwertiger Badausstattung, Feinsteinzeug Fliesen, Treppe ins OG in Eiche Vollmassiv, weitere Highligts besprechen wir persönlich
Inkl. Keller; inkl. großzügigem Balkon mit Fernblick, inkl. PREMIUM Ausstattung, Bodengleiche Dusche, hochwertiger Badausstattung, Feinsteinzeug Fliesen, Treppe ins OG in Eiche Vollmassiv, weitere Highligts besprechen wir persönlich
Sonstige Informationen
Bei STREIF haben Sie die Möglichkeit, aus vier verschiedenen Ausbaustufen zu wählen, die Ihnen zahlreiche Optionen zur individuellen Gestaltung Ihres Traumhauses bieten. Durch Eigenleistungen in Form einer Muskelhypothek haben Sie die Chance, bares Geld zu sparen, indem Sie kleinere Kredite aufnehmen und somit die Zinslast reduzieren oder die Kreditlaufzeiten verkürzen. In einem umfassenden Beratungsgespräch klären wir Ihre Wünsche und Vorstellungen, um das perfekte Haus für Sie zu entwerfen. Sie entscheiden, ob Sie ein Einfamilienhaus mit Walmdach, Flachdach oder klassischem Satteldach, mit oder ohne Keller und in einem oder mehreren Geschossen wünschen. Erst wenn Sie mit dem entworfenen Grundriss vollkommen zufrieden sind, beginnt die Umsetzung, die wir innerhalb weniger Monate realisieren. Ihr neues Zuhause übergeben wir Ihnen schlüsselfertig oder in der von Ihnen gewünschten Ausbaustufe.
Die Bilder sind beispielhaft, können Anbauteile und/ oder Garagen enthalten, die nicht Bestandteil des Angebots sind.
Baunebenkosten enstehen zusätzlich.
Lassen Sie uns gerne über alles sprechen, größer geht natürlich auch, nutzen Sie die KfW 300 Förderung, sprechen Sie uns gerne an.
Die Bilder sind beispielhaft, können Anbauteile und/ oder Garagen enthalten, die nicht Bestandteil des Angebots sind.
Baunebenkosten enstehen zusätzlich.
Lassen Sie uns gerne über alles sprechen, größer geht natürlich auch, nutzen Sie die KfW 300 Förderung, sprechen Sie uns gerne an.
Karte wird geladen...
Objektstandort
56337 Eitelborn
Lage & Infrastruktur
Objektstandort
56337 Eitelborn
Eitelborn bietet Ihnen eine ruhige und angenehme Wohngegend mit einer hervorragenden Infrastruktur. In der näheren Umgebung finden Sie eine Apotheke, ausgezeichnete Busverbindungen, diverse Einkaufsmöglichkeiten, ein Fitnessstudio, einen Golfplatz sowie eine Grundschule und einen Kindergarten. Auch weiterführende Schulen sind schnell zu erreichen. Die Anbindung an die Schnellstraße sorgt für eine zügige Erreichbarkeit der benachbarten Städte Koblenz, Montabaur und Limburg. Freizeitmöglichkeiten, Spielplätze und Wälder in der Nachbarschaft schaffen ein ideales Umfeld für Sie und Ihre Familie.
Kontaktanfrage senden
Über den Anbieter
STREIF Haus GmbH
Josef-Streif-Straße 1
54595 Weinsheim
Kontakt
| Telefon | +49 2630 9558830 |
| Mobil | +49 171 7889887 |
| Website | www.streif.de |
Ansprechpartner/in
Herr Henrik Menzel