Zwei Mehrfamilienhäuser mit erstklassigen Entwicklungsmöglichkeiten in guter Ehrenfelder Lage
2.475.000 €
Kaufpreis
919,52 m²
Wohnfläche
34
Zimmer
immobilien.de Nr.: 9443978
Objektnummer: FALC-CR-71270
Dateien
Kaufpreis
| Kaufpreis | 2.475.000 € |
| Maklerprovision | 3,57 % inkl. MwSt vom not. Kaufpreis |
Wohnfläche, Grundstück & Bausubstanz
| Wohnfläche | 919,52 m² |
| Grundstücksfläche | 703 m² |
| Zimmer | 34 |
| Baujahr | 1955 |
| Verfügbar ab | Nach Vereinbarung |
Energie
| Energieausweistyp | Verbrauch |
| Ausstellungsdatum | 26. 06. 2020 |
| Gültig bis | 25.06.2030 |
| Energieeffizienzklasse | C |
| Energieverbrauchkennwert | 98.9 kWh/(m²*a) |
| Heizungsart | Etagenheizung |
| Wesentlicher Energieträger | Gas |
| Energieträger/Befeuerung | Gas |
Beschreibung der Immobilie
In sehr guter Ehrenfelder Lage können Sie zwei Mehrfamilienhäuser sowie ein Zwischengebäude erwerben. Das Gebäudeensemble teilt sich wie folgt auf:
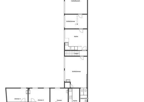
1.) Wohn- und Geschäftshaus an der Venloer Straße mit zwei Gewerbeeinheiten im Erdgeschoss (zusammen ca. 151m²) sowie acht Wohnungen in den darüber liegenden Etagen 2-5 (zusammen ca. 332m²). Diese Einheiten haben sehr attraktive Wohnungsgrößen (ca. 33 - 46m²).
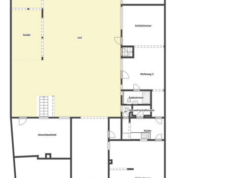
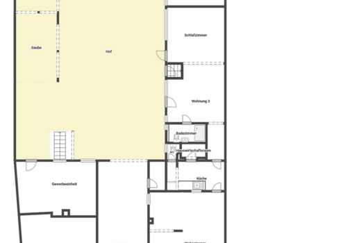
2.) Verbindungsgebäude mit drei Wohneinheiten (insgesamt ca. 260m²)
3.) Wohn- und Geschäftshaus in der Marienstraße (Parallelstraße zur Venloer Straße). Im EG befindet sich eine derzeit nicht genutzte Gewerbeeinheit mit ca. 48 m², darunter ein schöner Gewölbekeller mit ca. 90m². Die Wohnung im 1. OG (ca. 128m²) steht leer und ist sanierungsbedürftig. Der darüber liegenden Dachboden (Grundfläche ohne Schrägenabzug ca. 145m²) kann ausgebaut werden. Die Immobilie verfügt über drei Außenstellplätze im Hofbereich. Last not least gibt es dort auch eine sehr gemütliche und überdachte Terrasse.
Aus technischen Gründen können die Flächen in diesem Exposé nicht differenziert ausgewiesen werden, daher erfolgt hier eine Klarstellung:
- Wohnflächen: Venloer: ca. 332,50m² + Marien: ca. 388,14m² - Summe: ca. 720,64m²
- Gewerbeflächen: Venloer: ca. 151,22m² + Marien: ca. 47,66m² - Summe: ca. 198,88m²
- Nutzflächen: Keller Venloer Straße / Spitzboden Venloer Straße / Gewölbekeller Marienstraße / Dachboden Marienstraße --> siehe detaillierte Aufstellung in der Wohn- Gewerbe- und Nutzflächenaufstellung, die wir Ihnen bei weitergehendem Interesse gerne zusenden.
Die Immobilien werden nur im Paket verkauft, können also nicht einzeln erworben werden.
1.) Wohn- und Geschäftshaus an der Venloer Straße mit zwei Gewerbeeinheiten im Erdgeschoss (zusammen ca. 151m²) sowie acht Wohnungen in den darüber liegenden Etagen 2-5 (zusammen ca. 332m²). Diese Einheiten haben sehr attraktive Wohnungsgrößen (ca. 33 - 46m²).
2.) Verbindungsgebäude mit drei Wohneinheiten (insgesamt ca. 260m²)
3.) Wohn- und Geschäftshaus in der Marienstraße (Parallelstraße zur Venloer Straße). Im EG befindet sich eine derzeit nicht genutzte Gewerbeeinheit mit ca. 48 m², darunter ein schöner Gewölbekeller mit ca. 90m². Die Wohnung im 1. OG (ca. 128m²) steht leer und ist sanierungsbedürftig. Der darüber liegenden Dachboden (Grundfläche ohne Schrägenabzug ca. 145m²) kann ausgebaut werden. Die Immobilie verfügt über drei Außenstellplätze im Hofbereich. Last not least gibt es dort auch eine sehr gemütliche und überdachte Terrasse.
Aus technischen Gründen können die Flächen in diesem Exposé nicht differenziert ausgewiesen werden, daher erfolgt hier eine Klarstellung:
- Wohnflächen: Venloer: ca. 332,50m² + Marien: ca. 388,14m² - Summe: ca. 720,64m²
- Gewerbeflächen: Venloer: ca. 151,22m² + Marien: ca. 47,66m² - Summe: ca. 198,88m²
- Nutzflächen: Keller Venloer Straße / Spitzboden Venloer Straße / Gewölbekeller Marienstraße / Dachboden Marienstraße --> siehe detaillierte Aufstellung in der Wohn- Gewerbe- und Nutzflächenaufstellung, die wir Ihnen bei weitergehendem Interesse gerne zusenden.
Die Immobilien werden nur im Paket verkauft, können also nicht einzeln erworben werden.
Ausstattungsmerkmale
| Anzahl der Etagen im Haus | 5 |
| Balkone | 3 |
| Keller |
Die Ausstattung dieser attraktiven Immobilien lässt sich wie folgt zusammenfassen:
1.) Venloer Straße 456:
- Wohn- und Gewerbefläche: ca. 493m² (ca. 151m² Gewerbefläche und ca. 332m² Wohnfläche auf den Ebenen 2-5)
- Überwiegend beheizt mit Gasetagenheizungen, eine größere Zentralheizung versorgt die beiden Erdgeschoss-Einheiten mit Wärme, die Warmwassererzeugung wird über Durchlauferhitzer sichergestellt,
- Robuster und pflegeleichter Fliesenboden in Küche und Badezimmern, ansonsten Laminat.
- Vier Wohnungen verfügen über Balkone
- Jeder Wohnung ist ein Kellerabteil zugeordnet
- Doppelt verglaste Holzfenster jüngeren Baujahres
2.) Marienstraße 37a:
- Wohn- und Gewerbefläche: 435,80m² (ca. 47,66m² Gewerbefläche und 388,14m² Wohnfläche). Ferner Ausbaureserve im Dachgeschoss (Grundfläche ohne Schrägenabzug 145,05m²) sowie besonderer Gewölbekeller mit ca. 90m²).
Haus Marienstraße
- Zentrale Heizungsanlage - Gas-Brennwert, Bj. 2005
- Warmwasser über Durchlauferhitzer
- vollständiger Renovierungs- und Sanierungsbedarf
- Ausbaureserve im Dachgeschoss
- besonderer Gewölbekeller
Verbinder:
- guter moderner Zustand, Sanierung 2010 mit Fassadendämmung (WDVS)
- große Hoffläche mit drei genehmigten Außenstellplätzen (de fakto können hier vier Fahrzeuge parken).
1.) Venloer Straße 456:
- Wohn- und Gewerbefläche: ca. 493m² (ca. 151m² Gewerbefläche und ca. 332m² Wohnfläche auf den Ebenen 2-5)
- Überwiegend beheizt mit Gasetagenheizungen, eine größere Zentralheizung versorgt die beiden Erdgeschoss-Einheiten mit Wärme, die Warmwassererzeugung wird über Durchlauferhitzer sichergestellt,
- Robuster und pflegeleichter Fliesenboden in Küche und Badezimmern, ansonsten Laminat.
- Vier Wohnungen verfügen über Balkone
- Jeder Wohnung ist ein Kellerabteil zugeordnet
- Doppelt verglaste Holzfenster jüngeren Baujahres
2.) Marienstraße 37a:
- Wohn- und Gewerbefläche: 435,80m² (ca. 47,66m² Gewerbefläche und 388,14m² Wohnfläche). Ferner Ausbaureserve im Dachgeschoss (Grundfläche ohne Schrägenabzug 145,05m²) sowie besonderer Gewölbekeller mit ca. 90m²).
Haus Marienstraße
- Zentrale Heizungsanlage - Gas-Brennwert, Bj. 2005
- Warmwasser über Durchlauferhitzer
- vollständiger Renovierungs- und Sanierungsbedarf
- Ausbaureserve im Dachgeschoss
- besonderer Gewölbekeller
Verbinder:
- guter moderner Zustand, Sanierung 2010 mit Fassadendämmung (WDVS)
- große Hoffläche mit drei genehmigten Außenstellplätzen (de fakto können hier vier Fahrzeuge parken).
Sonstige Informationen
Geben Sie bei der Kontaktaufnahme bitte immer die vollständige Adresse und Rufnummer an - vielen Dank!
Werte gemäß Gebäudeenergiegesetz (vormals: EnEV):
Energieausweistyp: Verbrauchsausweis
gültig bis: 25.06.2030
Baujahr des Hauses: 1955
Baujahr der Heizung: 2005
Hauptenergieträger: Erdgas
Energiekennwert: 98,9 kWh
Energieeffizienzklasse: C
Die Objektbeschreibung beruht ganz oder zum Teil auf Angaben des Eigentümers. Für die Richtigkeit oder Vollständigkeit übernehmen wir keine Gewähr.
Möchten auch Sie Ihre Wohnung / Ihr Haus verkaufen? Benötigen Sie eine Wertexpertise? Mein Angebot für Sie: optimaler Preis, maximale Sicherheit und ein lückenloser Rundum-Service.
Gerne stehe ich Ihnen mit der Vermittlung der für Sie passenden Baufinanzierung über unser Schwesterunternehmen FALC-Finance zur Verfügung.
Werte gemäß Gebäudeenergiegesetz (vormals: EnEV):
Energieausweistyp: Verbrauchsausweis
gültig bis: 25.06.2030
Baujahr des Hauses: 1955
Baujahr der Heizung: 2005
Hauptenergieträger: Erdgas
Energiekennwert: 98,9 kWh
Energieeffizienzklasse: C
Die Objektbeschreibung beruht ganz oder zum Teil auf Angaben des Eigentümers. Für die Richtigkeit oder Vollständigkeit übernehmen wir keine Gewähr.
Möchten auch Sie Ihre Wohnung / Ihr Haus verkaufen? Benötigen Sie eine Wertexpertise? Mein Angebot für Sie: optimaler Preis, maximale Sicherheit und ein lückenloser Rundum-Service.
Gerne stehe ich Ihnen mit der Vermittlung der für Sie passenden Baufinanzierung über unser Schwesterunternehmen FALC-Finance zur Verfügung.
Karte wird geladen...
Objektstandort
50825 Köln
- Nordrhein-Westfalen
Lage & Infrastruktur
Objektstandort
50825 Köln
- Nordrhein-Westfalen
Die Immobilie befindet sich in begehrter Lage im Herzen von Köln-Ehrenfeld, einem der lebendigsten und vielfältigsten Stadtteile der Rheinmetropole. Die Venloer Straße zählt zu den bekanntesten und beliebtesten Einkaufs- und Flaniermeilen Kölns – gesäumt von trendigen Cafés, Restaurants, Boutiquen und allen Einrichtungen des täglichen Bedarfs.
Einkaufsmöglichkeiten wie REWE, Netto, Penny und zahlreiche Feinkostläden liegen fußläufig in unmittelbarer Umgebung. Auch Apotheken, Bäckereien und Wochenmärkte sind bequem erreichbar und bieten eine optimale Nahversorgung.
Für Familien bietet die Umgebung eine kinderfreundliche Infrastruktur: Mehrere Kindergärten, eine Grundschule sowie weiterführende Schulen liegen in direkter Nähe. Der nahegelegene Leo-Amann-Park sowie weitere Spielplätze und Grünflächen laden zum Toben und Entspannen ein.
Die verkehrstechnische Anbindung ist hervorragend: Die Haltestelle “Piusstraße” der Linien 3 und 4 befindet sich nur rund 100 Meter entfernt und verbindet Ehrenfeld direkt mit der Innenstadt, dem Neumarkt oder Deutz. Der Bahnhof Köln-Ehrenfeld ist ebenfalls in wenigen Minuten erreichbar und bietet Anschluss an den Regional- und S-Bahn-Verkehr.
Auch mit dem Auto ist man bestens angebunden – die Auffahrt zur A57 ist in etwa 10 Minuten erreichbar. Der Flughafen Köln/Bonn liegt rund 25 km entfernt und ist sowohl mit dem Auto als auch mit öffentlichen Verkehrsmitteln gut erreichbar.
Kulturell überzeugt Ehrenfeld mit einem bunten Angebot an Galerien, Ateliers, Theatern und Live-Clubs. Institutionen wie das Bürgerzentrum Ehrenfeld (BÜZE) oder die Live Music Hall prägen das kreative Stadtbild und bieten zahlreiche Freizeit- und Kulturangebote.
Sport- und Gesundheitseinrichtungen wie das McFit-Fitnessstudio, Yoga-Studios oder das nahegelegene St. Franziskus-Hospital runden das Angebot ab.
Fazit:
Die Lage der Immobilie vereint urbanes Leben, Familienfreundlichkeit und hervorragende Infrastruktur. Ob Single, Paar oder Familie – wer zentrumsnah, gut angebunden und dennoch in einem gewachsenen und vielseitigen Viertel leben möchte, findet hier den idealen Standort.
Einkaufsmöglichkeiten wie REWE, Netto, Penny und zahlreiche Feinkostläden liegen fußläufig in unmittelbarer Umgebung. Auch Apotheken, Bäckereien und Wochenmärkte sind bequem erreichbar und bieten eine optimale Nahversorgung.
Für Familien bietet die Umgebung eine kinderfreundliche Infrastruktur: Mehrere Kindergärten, eine Grundschule sowie weiterführende Schulen liegen in direkter Nähe. Der nahegelegene Leo-Amann-Park sowie weitere Spielplätze und Grünflächen laden zum Toben und Entspannen ein.
Die verkehrstechnische Anbindung ist hervorragend: Die Haltestelle “Piusstraße” der Linien 3 und 4 befindet sich nur rund 100 Meter entfernt und verbindet Ehrenfeld direkt mit der Innenstadt, dem Neumarkt oder Deutz. Der Bahnhof Köln-Ehrenfeld ist ebenfalls in wenigen Minuten erreichbar und bietet Anschluss an den Regional- und S-Bahn-Verkehr.
Auch mit dem Auto ist man bestens angebunden – die Auffahrt zur A57 ist in etwa 10 Minuten erreichbar. Der Flughafen Köln/Bonn liegt rund 25 km entfernt und ist sowohl mit dem Auto als auch mit öffentlichen Verkehrsmitteln gut erreichbar.
Kulturell überzeugt Ehrenfeld mit einem bunten Angebot an Galerien, Ateliers, Theatern und Live-Clubs. Institutionen wie das Bürgerzentrum Ehrenfeld (BÜZE) oder die Live Music Hall prägen das kreative Stadtbild und bieten zahlreiche Freizeit- und Kulturangebote.
Sport- und Gesundheitseinrichtungen wie das McFit-Fitnessstudio, Yoga-Studios oder das nahegelegene St. Franziskus-Hospital runden das Angebot ab.
Fazit:
Die Lage der Immobilie vereint urbanes Leben, Familienfreundlichkeit und hervorragende Infrastruktur. Ob Single, Paar oder Familie – wer zentrumsnah, gut angebunden und dennoch in einem gewachsenen und vielseitigen Viertel leben möchte, findet hier den idealen Standort.
Kontaktanfrage senden
Über den Anbieter
FALC Immobilien GmbH & Co. KG
Humperdickstr. 3
53773 Hennef (Sieg)
Kontakt
| Telefon | +49 221 29497744 |
| Mobil | +49 177 4119061 |
| Fax | +49 2242 9010319 |
| Website | www.falcimmo.de |
Ansprechpartner/in
Herr Carsten Rumpeltin
Weitere Angebote des Anbieters
20
Gepflegte Wohnung in gefragter Lage
Wohnung
73035 Göppingen
* Die Wohnung ist aktuell noch vermietet * Die helle 3,5-Zimmer-Wohnung befindet sich im Erdgeschoss eines 1994 erbauten Mehrfamilienhauses. Die Wohnung eignet sich ideal für Paare oder Familien, die Wert auf Komfort ...
259.000 €
Kaufpreis
74 m²
Wohnfläche
3,5
Zimmer
21
Stilvolle Wohnung in ruhiger Wohnanlage in Cales de ...
Wohnung
07689 Cales de Mallorca
Stilvolle Wohnung in ruhiger Wohnanlage in Cales de Mallorca In begehrter Lage von Cales de Mallorca präsentiert sich diese gepflegte und hochwertig ausgestattete 3-Zimmer-Wohnung in einer ruhigen, gehobenen Wohnanlage ...
349.000 €
Kaufpreis
87 m²
Wohnfläche
3
Zimmer
4
Tolles Baugrundstück am nördlichen Seeufer
Grundstück
8314 Vonyarcvashegy
Bau Möglichkeit: 30% Baukategorie: LK-E 4 Maximal 30 % der Grundstücksfläche dürfen überbaut werden (Haus, Garage, überdachte Terrassen etc.) Wichtig: Es zählt die Grundfläche, nicht die Wohnfläche über mehrere ...
115.000 €
Kaufpreis
804 m²
Grundstücksfläche
3
großes Wald- und Wiesengrundstück in Westungarn
Grundstück
8948 Barlahida
Großes Grundstück in naturbelassener Umgebung, teilweise gerodet, teilweise Akazienwald, leichte Hanglage, der Bau eines kleinen Hauses ist möglich, keine öffentlichen Anschlüsse, Wohnkarte möglich laut Aussage des ...
16.900 €
Kaufpreis
23.000 m²
Grundstücksfläche
34
Landhaus-Bungalow als Neubau-Erstbezug in Ungarn kaufen ...
Haus
8372 Cserszegtomaj
Neuer Landhaus-Bungalow als Neubau-Erstbezug in Ungarn kaufen Dieser wunderschöner Landhaus-Bungalow steht zum Verkauf und befindet sich in Cserszegtomaj, einem ruhigen Wohngebiet. Mit 3 Zimmern und einer Wohnfläche ...
425.000 €
Kaufpreis
115 m²
Wohnfläche
3
Zimmer