Geräumiges 3-Familienhaus in schöner Wohnlage von Waldems-Bermbach
552.000 €
Kaufpreis
2.064,37 €
Kaltmiete (netto)
353 m²
Wohnfläche
40 m²
Nutzfläche
12
Zimmer
immobilien.de Nr.: 9426881
Objektnummer: HS 723
Kaufpreis
| Kaufpreis | 552.000 € |
| Maklerprovision | 5,95 % vom notariellen Kaufpreis inkl. 19 % MwSt. |
| Stellplatz Freiplatz Kaufpreis | 0 € |
| Stellplatz Garage Kaufpreis | 0 € |
Wohnfläche, Grundstück & Bausubstanz
| Wohnfläche | 353 m² |
| Nutzfläche | 40 m² |
| Gesamtfläche | 393 m² |
| Grundstücksfläche | 917 m² |
| Zimmer | 12 |
| Baujahr | 1913 |
| Verfügbar ab | keine Angabe |
| Zustand | Gepflegt |
Energie
| Energieausweistyp | Verbrauch |
| Heizungsart | Etagenheizung |
| Wesentlicher Energieträger | Gas |
| Energieträger/Befeuerung | Gas, Elektro |
Beschreibung der Immobilie
Entdecken Sie dieses charmante Mehrfamilienhaus mit 3 Wohneinheiten in Waldems / Bermbach, das eine perfekte Mischung aus historischer Eleganz und modernem Komfort bietet. das vordere Haus wurde ursprünglich im Jahr 1913 erbaut, ein Anbau erfolgte im Jahr 1993. Das Anwesen beeindruckt durch seine das massive Bauweise und seinem gepflegten Zustand und dem großzügigen Raumangebot.
Mit einer Wohnfläche von ca. 353 m² auf zwei Etagen verteilen sich insgesamt 12 Zimmer, darunter 8 Schlafzimmer und 4 Badezimmer, ideal für große Familien oder als Mehrgenerationenhaus nutzbar. Die Ausstattung ist von normaler Qualität und wird durch Laminat- und Fliesenböden ergänzt, die in allen Wohnbereichen verlegt sind. Eine praktische Einbauküche und ein Gäste WC tragen zusätzlich zum Wohnkomfort bei.
Das Objekt steht auf einem ca. 917 m² großen Grundstück, das teilweise unterkellert ist und vielfältige Nutzungsmöglichkeiten bietet. Zudem lädt der gepflegte Garten zur Entspannung im Freien ein, während die Südwest-Terrasse Sonnenliebhaber begeistert. Ihre Ruheoase erwartet Sie!
Dieses Mehrfamilienhaus mit 3 separaten Wohneinheiten ist nicht nur ein Ort zum Wohnen, sondern ein wahres Zuhause mitten im Grünen, das dennoch eine hervorragende Anbindung an die umliegenden Städte bietet. Lassen Sie sich dieses besondere Angebot nicht entgehen und vereinbaren Sie noch heute einen Besichtigungstermin.
Mit einer Wohnfläche von ca. 353 m² auf zwei Etagen verteilen sich insgesamt 12 Zimmer, darunter 8 Schlafzimmer und 4 Badezimmer, ideal für große Familien oder als Mehrgenerationenhaus nutzbar. Die Ausstattung ist von normaler Qualität und wird durch Laminat- und Fliesenböden ergänzt, die in allen Wohnbereichen verlegt sind. Eine praktische Einbauküche und ein Gäste WC tragen zusätzlich zum Wohnkomfort bei.
Das Objekt steht auf einem ca. 917 m² großen Grundstück, das teilweise unterkellert ist und vielfältige Nutzungsmöglichkeiten bietet. Zudem lädt der gepflegte Garten zur Entspannung im Freien ein, während die Südwest-Terrasse Sonnenliebhaber begeistert. Ihre Ruheoase erwartet Sie!
Dieses Mehrfamilienhaus mit 3 separaten Wohneinheiten ist nicht nur ein Ort zum Wohnen, sondern ein wahres Zuhause mitten im Grünen, das dennoch eine hervorragende Anbindung an die umliegenden Städte bietet. Lassen Sie sich dieses besondere Angebot nicht entgehen und vereinbaren Sie noch heute einen Besichtigungstermin.
Ausstattungsmerkmale
| Anzahl der Etagen im Haus | 2 |
| Küche | Einbauküche |
| Bad | 4 |
| Bad | Dusche, Wanne, Fenster |
| Boden | Fliesen, Laminat |
| Balkone | 2 |
| Garten | |
| Terrassen | 3 |
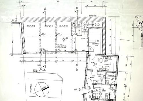
| Garage/Stellplätze | 2 |
| Dachboden | |
| Keller |
- 3 Bäder mit und ohne Fenster, Dusche, Wanne und WC, raumhoch gefliest
- Wohnung 3 mit Gäste-WC
- Wohnung 2 mit Gäste WC
- Einbauküchen
- Abstellräume
- Laminat- und Fliesenboden
- Kabel Sat TV
- Terrassen / Balkone
- Gartennutzung
- insgesamt 5 Stellplätze
- Fachwerkhaus ist teilweise unterkellert
- Neubau ist nicht unterkellert
- Dachboden ausgebaut
- Heizung Wohnung 1: Nachtspeicherheizung / Warmwasser über Durchlauferhitzer
- Heizung Wohnung 2 + 3: Gas-Etagenheizung
- Wohnung 3 mit Gäste-WC
- Wohnung 2 mit Gäste WC
- Einbauküchen
- Abstellräume
- Laminat- und Fliesenboden
- Kabel Sat TV
- Terrassen / Balkone
- Gartennutzung
- insgesamt 5 Stellplätze
- Fachwerkhaus ist teilweise unterkellert
- Neubau ist nicht unterkellert
- Dachboden ausgebaut
- Heizung Wohnung 1: Nachtspeicherheizung / Warmwasser über Durchlauferhitzer
- Heizung Wohnung 2 + 3: Gas-Etagenheizung
Sonstige Informationen
ÜBER UNS:
Martin Brandt Immobilien, gegründet 1993, ist mit mehr als 33 Jahren Erfahrung einer der führenden Immobilien-Dienstleister in der Rhein-Main-Region. Wir unterstützen Sie als unabhängiger Immobilienmakler mit detaillierter Markt- und Objektkenntnis bei der schnellen und kundenorientierten Immobiliensuche und Vermittlung.
HABEN WIR IHR INTERESSE GEWECKT ?
Diese Immobilie gefällt Ihnen? Sie wünschen eine Besichtigung? Bitte nutzen Sie die elektronische Kontaktmöglichkeit auf dieser Seite und senden Sie uns Ihre Mail mit Angabe Ihres vollständigen Namens, Ihrer Telefon Nummer(n), E-Mail-Adresse und Ihres Terminwunsches. Bitte denken Sie auch an einen möglichen alternativen Termin.
V E R H A N D L U N G E N :
Sind ausschließlich über uns zu führen.
B E S I C H T I G U N G S T E R M I N E :
Für weitere Informationen sowie die Vereinbarung eines Besichtigungstermins stehen wir Ihnen gerne zur Verfügung. Wir freuen uns auf Ihre e-Mail Anfrage unter: immobilien@bpi24.de
A N S P R E C H P A R T N E R :
Martin Brandt und Kerstin Brandt
M A K L E R P R O V I S I O N :
Im Falle des Zustandekommens eines Kaufvertrages, ist eine Courtage in Höhe von 5,95 % inkl. 19 % MwSt. vom vereinbarten und notariellen Kaufpreis vom Käufer an den Makler zu zahlen.
FREUNDLICHER HINWEIS :
Alle Angaben in diesem Exposé wurden sorgfältig und so vollständig wie möglich gemacht. Dennoch kann das Vorhandensein von Fehlern nicht ausgeschlossen werden. Die Angaben in diesem Exposé erfolgen daher ohne Gewähr und basieren ausschließlich auf Informationen, die uns vom Verkäufer/Vermieter bzw. von Dritten zur Verfügung gestellt wurden, so dass wir keine Gewähr für die Vollständigkeit, Richtigkeit und Aktualität dieser Angaben übernehmen können. Irrtum und Zwischenverkauf/Zwischenvermietung bleibt vorbehalten.
Martin Brandt Immobilien, gegründet 1993, ist mit mehr als 33 Jahren Erfahrung einer der führenden Immobilien-Dienstleister in der Rhein-Main-Region. Wir unterstützen Sie als unabhängiger Immobilienmakler mit detaillierter Markt- und Objektkenntnis bei der schnellen und kundenorientierten Immobiliensuche und Vermittlung.
HABEN WIR IHR INTERESSE GEWECKT ?
Diese Immobilie gefällt Ihnen? Sie wünschen eine Besichtigung? Bitte nutzen Sie die elektronische Kontaktmöglichkeit auf dieser Seite und senden Sie uns Ihre Mail mit Angabe Ihres vollständigen Namens, Ihrer Telefon Nummer(n), E-Mail-Adresse und Ihres Terminwunsches. Bitte denken Sie auch an einen möglichen alternativen Termin.
V E R H A N D L U N G E N :
Sind ausschließlich über uns zu führen.
B E S I C H T I G U N G S T E R M I N E :
Für weitere Informationen sowie die Vereinbarung eines Besichtigungstermins stehen wir Ihnen gerne zur Verfügung. Wir freuen uns auf Ihre e-Mail Anfrage unter: immobilien@bpi24.de
A N S P R E C H P A R T N E R :
Martin Brandt und Kerstin Brandt
M A K L E R P R O V I S I O N :
Im Falle des Zustandekommens eines Kaufvertrages, ist eine Courtage in Höhe von 5,95 % inkl. 19 % MwSt. vom vereinbarten und notariellen Kaufpreis vom Käufer an den Makler zu zahlen.
FREUNDLICHER HINWEIS :
Alle Angaben in diesem Exposé wurden sorgfältig und so vollständig wie möglich gemacht. Dennoch kann das Vorhandensein von Fehlern nicht ausgeschlossen werden. Die Angaben in diesem Exposé erfolgen daher ohne Gewähr und basieren ausschließlich auf Informationen, die uns vom Verkäufer/Vermieter bzw. von Dritten zur Verfügung gestellt wurden, so dass wir keine Gewähr für die Vollständigkeit, Richtigkeit und Aktualität dieser Angaben übernehmen können. Irrtum und Zwischenverkauf/Zwischenvermietung bleibt vorbehalten.
Karte wird geladen...
Objektstandort
65529 Waldems / Bermbach
Lage & Infrastruktur
Objektstandort
65529 Waldems / Bermbach
Das charmante Mehrfamilienhaus mit 3 separaten Wohnungen befindet sich in der idyllischen Gemeinde Waldems im Ortsteil Bermbach, einem ruhigen und naturnahen Standort im wunderschönen Taunus. Eingebettet in eine malerische Landschaft, ist diese Lage ideal für Naturliebhaber und Familien, die Erholung suchen. Die Umgebung bietet eine Vielzahl an Freizeitmöglichkeiten, darunter zahlreiche Wander- und Radwege durch die wunderschönen Wälder in der Nähe, die zu entspannten Erkundungstouren einladen.
Trotz der ruhigen, abgeschiedenen Wohnlage ist die Infrastruktur hervorragend. Alle wichtigen Einrichtungen des täglichen Bedarfs sind schnell und bequem erreichbar. In Waldems finden Sie Geschäfte des täglichen Bedarfs, einen Supermarkt sowie mehrere Bäckereien und Metzgereien. Für medizinische Versorgung stehen Ihnen Allgemeinärzte und Fachärzte im nahegelegenen Idstein und Niedernhausen zur Verfügung. Die Bildungsinfrastruktur umfasst Kindergärten, eine Grundschule direkt in Waldems sowie weiterführende Schulen in den Nachbarorten.
Für Pendler ist die Verkehrsanbindung besonders attraktiv: Die Autobahn A3 ist in nur wenigen Minuten erreichbar und bietet Ihnen eine schnelle Verbindung zu den nahegelegenen Ballungszentren Frankfurt am Main und Wiesbaden. Zudem gibt es regelmäßige Busverbindungen, die Sie bequem zu den Bahnhöfen in Idstein oder Niedernhausen mit Anschluss an den öffentlichen Nahverkehr bringen.
Waldems / Bermbach bietet eine einzigartige Kombination aus ländlicher Ruhe und Nähe zu städtischen Zentren, was es zu einem besonderen Juwel im Herzen des Rhein-Main-Gebiets macht. Profitieren Sie von der perfekten Balance zwischen Natur und städtischem Komfort in dieser begehrten Wohnregion, die Ihnen sowohl Entspannung als auch Mobilität bietet.
Trotz der ruhigen, abgeschiedenen Wohnlage ist die Infrastruktur hervorragend. Alle wichtigen Einrichtungen des täglichen Bedarfs sind schnell und bequem erreichbar. In Waldems finden Sie Geschäfte des täglichen Bedarfs, einen Supermarkt sowie mehrere Bäckereien und Metzgereien. Für medizinische Versorgung stehen Ihnen Allgemeinärzte und Fachärzte im nahegelegenen Idstein und Niedernhausen zur Verfügung. Die Bildungsinfrastruktur umfasst Kindergärten, eine Grundschule direkt in Waldems sowie weiterführende Schulen in den Nachbarorten.
Für Pendler ist die Verkehrsanbindung besonders attraktiv: Die Autobahn A3 ist in nur wenigen Minuten erreichbar und bietet Ihnen eine schnelle Verbindung zu den nahegelegenen Ballungszentren Frankfurt am Main und Wiesbaden. Zudem gibt es regelmäßige Busverbindungen, die Sie bequem zu den Bahnhöfen in Idstein oder Niedernhausen mit Anschluss an den öffentlichen Nahverkehr bringen.
Waldems / Bermbach bietet eine einzigartige Kombination aus ländlicher Ruhe und Nähe zu städtischen Zentren, was es zu einem besonderen Juwel im Herzen des Rhein-Main-Gebiets macht. Profitieren Sie von der perfekten Balance zwischen Natur und städtischem Komfort in dieser begehrten Wohnregion, die Ihnen sowohl Entspannung als auch Mobilität bietet.
Kontaktanfrage senden
Über den Anbieter
Martin Brandt Immobilien
Wiesbadener Straße 6
65510 Idstein
Kontakt
| Telefon | 0049612656427 |
Ansprechpartner/in
Kerstin Brandt und Martin Brandt
Weitere Angebote des Anbieters
41
Schöne 2 Zimmerwohnung mit Balkon und kleinem Garten ...
Wohnung
65520 Bad Camberg
Entdecken Sie Ihr neues Zuhause in der charmanten Stadt Bad Camberg! Die von uns angebotene 2 Zimmer Eigentumswohnung befindet sich in direkter Kurparknähe. Die Innenstadt von Bad Camberg ist fußläufig in ca. 5 Minuten ...
231.900 €
Kaufpreis
9,5 €
Mietpreis pro m²
3734,9 €
Kaufpreis pro m²
62,09 m²
Wohnfläche
2
Zimmer
29
Sonnige 3 Zimmer Wohnung (vermietet) in schöner ...
Wohnung
65510 Idstein
Tolle Kapitalanlage im Herzen von Idstein! Diese charmante und vermietete 3 Zimmerwohnung, die im Jahr 2000 in massiver Bauweise erbaut wurde, bietet Ihnen alles, was das Herz begehrt. Mit einer großzügigen Wohnfläche ...
296.000 €
Kaufpreis
890 €
Kaltmiete (netto)
3661,1 €
Kaufpreis pro m²
80,85 m²
Wohnfläche
3
Zimmer
26
Sonnige 3 Zimmer Wohnung mit Terrasse und Garten in ...
Wohnung
65510 Idstein / Heftrich
Willkommen in Ihrem neuen Zuhause in Idstein/Heftrich! Diese modernisierte Erdgeschosswohnung, erbaut im Jahr 1976, bietet Ihnen eine harmonische Verbindung aus Komfort und Funktionalität. Auf einer großzügigen ...
279.000 €
Kaufpreis
3367,53 €
Kaufpreis pro m²
82,85 m²
Wohnfläche
3
Zimmer
26
Sonnige 3 Zimmer Eigentumswohnung mit Garten in ...
Wohnung
65510 Idstein
Entdecken Sie diese exquisite 3 Zimmer Eigentumswohnung mit schöner Terrasse und Gartenanteil in Idstein! Erbaut im Jahr 2019 in massiver Bauweise, präsentiert sich dieses Objekt in einem guten Zustand und bietet eine ...
475.000 €
Kaufpreis
1.232 €
Kaltmiete (netto)
4608,97 €
Kaufpreis pro m²
103,06 m²
Wohnfläche
3
Zimmer
24
KAPITALANLAGE - Doppel-Appartement mit zwei Balkonen ...
Wohnung
65510 Idstein
Das von uns angebotene, lichtdurchflutete 2 Zimmer Studenten-Appartement mit zwei Balkonen ist ruhig und dennoch zentral im Idsteiner Nassau Viertel gelegen. Zur Idsteiner Altstadt sind es zu Fuß nur ca. 8 Min. und zur ...
199.000 €
Kaufpreis
700 €
Kaltmiete (netto)
3702,33 €
Kaufpreis pro m²
53,75 m²
Wohnfläche
2
Zimmer