MFH,3 WE, oder WG in der Nähe des Mözener Sees
469.000 €
Kaufpreis
250 m²
Wohnfläche
9,5
Zimmer
immobilien.de Nr.: 9426877
Objektnummer: 7585#I9XtUa
Kaufpreis
| Kaufpreis | 469.000 € |
| Maklerprovision | 3,57 % |
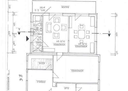
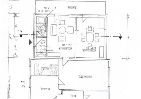
Wohnfläche, Grundstück & Bausubstanz
| Wohnfläche | 250 m² |
| Grundstücksfläche | 1.036 m² |
| Zimmer | 9,5 |
| Baujahr | 1970 |
| Letzte Modernisierung | 2017 |
| Verfügbar ab | nach Absprachr |
| Zustand | Gepflegt |
Energie
| Energieausweistyp | Bedarfsausweis |
| Ausstellungsdatum | 27. 02. 2025 |
| Gültig bis | 27.02.2035 |
| Energieeffizienzklasse | D |
| Endenergiebedarf | 115.37 |
| Wesentlicher Energieträger | Öl |
| Energieträger/Befeuerung | Öl |
Beschreibung der Immobilie
MFH, 3WE oder WG in der Nähe des Mözener Sees
Objektbeschreibung
Dieses in Massivbauweise errichtete Haus ist mit seiner Größe und Aufteilung für eine vielfältige Nutzung als Renditeobjekt geeignet.
Es ist zurzeit an eine Wohngemeinschaft vermietet, für die ein neuer Vermieter gesucht wird. Durch kleine bauliche Ergänzungen kann das Objekt auch in 3 Wohneinheiten aufgeteilt werden, mit separaten Eingängen und Bädern.
1970 als Einfamilienhaus erbaut, wurde es 1997 durch einen großen Anbau über alle 3 Etagen erweitert und aufgewertet. Das Dach und die Heizung wurden hierbei komplett erneuert.
Die Ölzentralheizung und der Kaminofen sorgen für wohlige Wärme im ganzen Haus.
Der Keller unter dem alten Gebäudeteil hat Platz für die Heizung, das Öllager und einen Vorratsraum. Im Anbau befinden sich im Kellergeschoß 2 Garagen und ein Waschraum. 2 weitere Garagen befinden sich auf dem nördlichen Teil des Grundstücks.
Die Lage nahe des Mözener Sees (ca. 5 Minuten zu Fuß) und das pflegeleichte Grundstück laden zum Verweilen ein.
Objektbeschreibung
Dieses in Massivbauweise errichtete Haus ist mit seiner Größe und Aufteilung für eine vielfältige Nutzung als Renditeobjekt geeignet.
Es ist zurzeit an eine Wohngemeinschaft vermietet, für die ein neuer Vermieter gesucht wird. Durch kleine bauliche Ergänzungen kann das Objekt auch in 3 Wohneinheiten aufgeteilt werden, mit separaten Eingängen und Bädern.
1970 als Einfamilienhaus erbaut, wurde es 1997 durch einen großen Anbau über alle 3 Etagen erweitert und aufgewertet. Das Dach und die Heizung wurden hierbei komplett erneuert.
Die Ölzentralheizung und der Kaminofen sorgen für wohlige Wärme im ganzen Haus.
Der Keller unter dem alten Gebäudeteil hat Platz für die Heizung, das Öllager und einen Vorratsraum. Im Anbau befinden sich im Kellergeschoß 2 Garagen und ein Waschraum. 2 weitere Garagen befinden sich auf dem nördlichen Teil des Grundstücks.
Die Lage nahe des Mözener Sees (ca. 5 Minuten zu Fuß) und das pflegeleichte Grundstück laden zum Verweilen ein.
Ausstattungsmerkmale
| Anzahl der Etagen im Haus | 2 |
| Küche | Einbauküche |
| Bad | 2 |
| Bad | Dusche, Wanne, Fenster |
| Terrassen | 1 |
| Garage/Stellplätze | 2 |
| Keller |
Massivbauweise
Anbau 1997
Sackgassenlage
Teilkeller
Süd Balkon & Süd Terrasse
Wannenbad
Duschbad
Gäste WC
Pflegeleichtes Grundstück
Ölzentralheizung
Kaminofen
Einbauküche
2 Doppelgaragen
2 PKW Außen Stellplätze
Anbau 1997
Sackgassenlage
Teilkeller
Süd Balkon & Süd Terrasse
Wannenbad
Duschbad
Gäste WC
Pflegeleichtes Grundstück
Ölzentralheizung
Kaminofen
Einbauküche
2 Doppelgaragen
2 PKW Außen Stellplätze
Karte wird geladen...
Objektstandort
23795 Mözen
Lage & Infrastruktur
Objektstandort
23795 Mözen
Mözen ist eine Gemeinde im Kreis Segeberg in Schleswig - Holstein.
Diese Dorfgemeinschaft liegt an der B432 zwischen Bad Segeberg und Leezen.
Der angrenzende Mözener See hat eine Fläche von 131 ha und gehört der örtlichen Fischereigenossenschaft.
Mözen wurde erstmals als Mozinke erwähnt. Damals gehörte der Ort zum Kloster Segeberg
Im Bad Segeberg finden Sie neben den Karl- May- Festspielen eine sehr gute Infrastruktur.
Im nahe gelegenen Leezen sind Geschäfte des täglichen Bedarfs, Ärzte und ein Sportverein sowie Kindergarten und Grundschule vorhanden.
In ca 45 km erreichen Sie Hamburg und den Flughafen, kiel ist 46 km und Lübeck ist 20 km entfernt.
Das Objekt liegt in einer ruhigen Seitenstraße mit dem kurzen Weg zum See.
Diese Dorfgemeinschaft liegt an der B432 zwischen Bad Segeberg und Leezen.
Der angrenzende Mözener See hat eine Fläche von 131 ha und gehört der örtlichen Fischereigenossenschaft.
Mözen wurde erstmals als Mozinke erwähnt. Damals gehörte der Ort zum Kloster Segeberg
Im Bad Segeberg finden Sie neben den Karl- May- Festspielen eine sehr gute Infrastruktur.
Im nahe gelegenen Leezen sind Geschäfte des täglichen Bedarfs, Ärzte und ein Sportverein sowie Kindergarten und Grundschule vorhanden.
In ca 45 km erreichen Sie Hamburg und den Flughafen, kiel ist 46 km und Lübeck ist 20 km entfernt.
Das Objekt liegt in einer ruhigen Seitenstraße mit dem kurzen Weg zum See.
Kontaktanfrage senden
Über den Anbieter
Erika Zech Immobilien. e.K.
Zollweg 2a
23611 Sereetz
Kontakt
| Telefon | +49 451 393037 |
| Mobil | +49 176 62679353 |
| Website | erika-zech-immobilien.de |
Ansprechpartner/in
Herrn Hans-Eugen Zech
Weitere Angebote des Anbieters
29
Gepflegtes EFH mit ELW in HL, OT Dänischburg
Haus
23569 Lübeck
Energieausweis in Bearbeitung Dieses sehr gepflegte Einfamilienhaus mit einer Einliegerwohnung wir aus Altersgründen verkauft. Noch können die Besitzer das Objekt bestens in einem guten Zustand halten. Deshalb ist es ...
299.000 €
Kaufpreis
130 m²
Wohnfläche
4,5
Zimmer
6
Gemütliche Wohnung in 23558 Lübeck
Wohnung
23558 Lübeck
Grundbuch statt Sparbuch Die Attraktive 2 Zimmer Wohnung mit einer Wohnfläche von 51,42 m² Wohnfläche liegt in einem ruhigen Mehrfamilienhaus und überzeugt durch eine funktionale Raumaufteilung sowie einen sonnigen ...
189.000 €
Kaufpreis
52 m²
Wohnfläche
2
Zimmer
16
Freundliche 3 Zimmer Wohnung mietfrei in FL- Nordstadt
Wohnung
24939 Flensburg
Diese helle freundliche 3 Zimmer-Wohnung liegt in der 1. Etage eines 1973 erbauten Mehrfamilienhauses mit 8 Wohneinheiten. Es wurde Massivbauweise errichtet und wurde regelmäßig saniert. Die Wohnung verfügt über eine ...
180.000 €
Kaufpreis
73 m²
Wohnfläche
3
Zimmer
13
Gut geschnittene 2,5 Zimmer Wohnung in zentraler Lage ...
Wohnung
23795 Bad Segeberg
Diese ansprechende 2,5 Zimmer Wohnung mit einer Wohnfläche von 66 m² befindet sich im 2. Obergeschoss eines gepflegten Mehrfamilienhauses aus dem Baujahr 1963 mit insgesamt 30 Wohneinheiten. Die Lage ist ideal: Sowohl ...
148.000 €
Kaufpreis
66 m²
Wohnfläche
2,5
Zimmer
26
MFH,3 WE, oder WG in der Nähe des Mözener Sees
Haus
23795 Mözen
MFH, 3WE oder WG in der Nähe des Mözener Sees Objektbeschreibung Dieses in Massivbauweise errichtete Haus ist mit seiner Größe und Aufteilung für eine vielfältige Nutzung als Renditeobjekt geeignet. Es ist zurzeit an ...
469.000 €
Kaufpreis
250 m²
Wohnfläche
9,5
Zimmer