Zweifamilienhaus mit einer Halle und zwei Garagen in gepflegtem Zustand
699.000 €
Kaufpreis
222 m²
Wohnfläche
6,5
Zimmer
immobilien.de Nr.: 9426861
Objektnummer: 320024
Preise & Kosten
| Kaufpreis | 699.000 € |
| Nebenkosten | keine Angabe |
| Maklerprovision | 2,38 % (inkl. MwSt.) |
Größe & Zustand
| Wohnfläche | 222 m² |
| Grundstücksfläche | 595 m² |
| Zimmer | 6,5 |
| Baujahr | 1920 |
| Verfügbar ab | nach Absprache |
| Zustand | Modernisiert |
Energie
| Energieausweistyp | Bedarfsausweis |
| Ausstellungsdatum | 12. 11. 2025 |
| Baujahr (laut Energieausweis) | 1920 |
| Energieeffizienzklasse | E |
| Endenergiebedarf | 155.5 |
| Heizungsart | Zentralheizung |
| Wesentlicher Energieträger | Gas |
| Energieträger/Befeuerung | Gas |
Objektbeschreibung
Das Zweifamilienhaus wurde 1920 errichtet und 1950 durch einen Anbau erweitert. Im Jahr 2016 erfolgte eine umfassende Sanierung, gefolgt von regelmäßigen Renovierungen in den letzten Jahren. Dabei wurden unter anderem die Heizung, die Heizkörper sowie die Leitungen erneuert. Mit einer Wohnfläche von ca. 222 m² bietet das Objekt großzügigen Raum für zwei Familien oder die Kombination aus Wohnen und Arbeiten.
Im Erdgeschoss befindet sich eine helle, modern gestaltete Wohnung mit einer offenen Wohnküche, Theke, hochwertigen Einbauten und einem Holzofen. Das vollständig erneuerte Badezimmer verfügt über eine bodengleiche Dusche, eine Eckbadewanne, ein Doppelwaschbecken und ansprechende Fliesen. Durch die großen Fenster wirken die Räume freundlich und einladend. Zudem bieten die Nebenräume im Erdgeschoss weiteres Potenzial beispielsweise für ein zusätzliches Zimmer, ein Büro oder einen kleinen Wellnessbereich.
Das Obergeschoss bildet eine separate Wohneinheit mit gepflegten Materialien und hellen Räumen. Auch hier sorgt ein Holzofen für angenehme Wärme. Der Balkon bietet einen schönen Blick in den Hof. Das Badezimmer befindet sich in gutem Zustand und ist mit Badewanne, Waschbecken und WC ausgestattet. Das Dachgeschoss ist momentan nicht ausgebaut, bietet jedoch die Möglichkeit, weiteren Wohnraum zu schaffen.
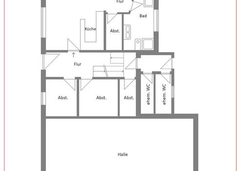
Zum Angebot gehören zwei Garagen sowie eine ca. 75 m² große Halle in sehr gutem Zustand, die sich ideal als Werkstatt, Lagerfläche oder für gewerbliche Zwecke eignet. Der großzügig gepflasterte Hof bietet zusätzliche Stellplätze und einen gepflegten Außenbereich.
Optional kann eine weitere, etwa 4 Jahre alte Halle mit ca. 65 m² Fläche für einen Aufpreis von 65.000 Euro erworben werden.
Das Objekt präsentiert sich insgesamt in einem sehr guten Zustand mit modernen Bädern, neuen Böden, sauberen Wänden und einer soliden Bausubstanz.
Weitere Angebote unter www.GARANT-IMMO.de
Im Erdgeschoss befindet sich eine helle, modern gestaltete Wohnung mit einer offenen Wohnküche, Theke, hochwertigen Einbauten und einem Holzofen. Das vollständig erneuerte Badezimmer verfügt über eine bodengleiche Dusche, eine Eckbadewanne, ein Doppelwaschbecken und ansprechende Fliesen. Durch die großen Fenster wirken die Räume freundlich und einladend. Zudem bieten die Nebenräume im Erdgeschoss weiteres Potenzial beispielsweise für ein zusätzliches Zimmer, ein Büro oder einen kleinen Wellnessbereich.
Das Obergeschoss bildet eine separate Wohneinheit mit gepflegten Materialien und hellen Räumen. Auch hier sorgt ein Holzofen für angenehme Wärme. Der Balkon bietet einen schönen Blick in den Hof. Das Badezimmer befindet sich in gutem Zustand und ist mit Badewanne, Waschbecken und WC ausgestattet. Das Dachgeschoss ist momentan nicht ausgebaut, bietet jedoch die Möglichkeit, weiteren Wohnraum zu schaffen.
Zum Angebot gehören zwei Garagen sowie eine ca. 75 m² große Halle in sehr gutem Zustand, die sich ideal als Werkstatt, Lagerfläche oder für gewerbliche Zwecke eignet. Der großzügig gepflasterte Hof bietet zusätzliche Stellplätze und einen gepflegten Außenbereich.
Optional kann eine weitere, etwa 4 Jahre alte Halle mit ca. 65 m² Fläche für einen Aufpreis von 65.000 Euro erworben werden.
Das Objekt präsentiert sich insgesamt in einem sehr guten Zustand mit modernen Bädern, neuen Böden, sauberen Wänden und einer soliden Bausubstanz.
Weitere Angebote unter www.GARANT-IMMO.de
Ausstattung
| Küche | Einbauküche |
| Bad | 2 |
| Boden | Fliesen, Laminat |
| Balkone | 1 |
* zwei Garagen
* eine moderne Einbauküche
* Bäder jeweils mit Badewanne, Dusche, Waschbecken und WC
* Balkon
* ein Holzofen im Obergeschoss ((Möglichkeit, diesen jederzeit
auf einen Pelletsofen umzurüsten)
* ein Pelletsofen im Erdgeschoss
* eine Hallen ca. 75 qm
* (Option auf eine weitere Hallen ca. 65 qm zzgl. 65.000 Euro)
* eine moderne Einbauküche
* Bäder jeweils mit Badewanne, Dusche, Waschbecken und WC
* Balkon
* ein Holzofen im Obergeschoss ((Möglichkeit, diesen jederzeit
auf einen Pelletsofen umzurüsten)
* ein Pelletsofen im Erdgeschoss
* eine Hallen ca. 75 qm
* (Option auf eine weitere Hallen ca. 65 qm zzgl. 65.000 Euro)
Sonstige Informationen
Das Objekt befindet sich in einem ausgewiesenen Wohnmischgebiet und bietet dadurch erweiterte Nutzungsmöglichkeiten. Gemäß den örtlichen Bebauungsrichtlinien besteht die Möglichkeit, das Haus auf bis zu vier Geschosse auszubauen. Dieser Aspekt macht das Anwesen nicht nur für private Eigennutzer attraktiv, sondern auch für Bauträger, die das vorhandene Entwicklungspotenzial ausschöpfen möchten.
Durch die Kombination aus Wohnflächen, Hallen, guter Lage und Erweiterungsmöglichkeiten eignet sich das Objekt zudem sehr gut als Kapitalanlage.
Durch die Kombination aus Wohnflächen, Hallen, guter Lage und Erweiterungsmöglichkeiten eignet sich das Objekt zudem sehr gut als Kapitalanlage.
Lage des Objektes
Das Objekt befindet sich in ruhiger, dennoch zentraler Wohnlage von Dillingen an der Donau. Die Umgebung ist geprägt von gepflegten Wohnhäusern, kleineren Handwerksbetrieben und einer angenehmen Nachbarschaftsstruktur.
Die Innenstadt von Dillingen mit ihren Einkaufsmöglichkeiten, Restaurants, Cafés und allen Einrichtungen des täglichen Bedarfs ist in wenigen Minuten erreichbar. Schulen, Kindergärten und medizinische Versorgung befinden sich ebenfalls in unmittelbarer Nähe.
Die Verkehrsanbindung ist hervorragend: Der Bahnhof Dillingen (Donau) liegt nur wenige Minuten entfernt und bietet gute Verbindungen nach Ulm, Donauwörth und Augsburg. Über die Bundesstraße B16 besteht eine schnelle Anbindung an die umliegenden Städte sowie an die Autobahn A8 Richtung München und Stuttgart.
Die nahe Donau und zahlreiche Grünflächen in der Umgebung bieten zudem einen hohen Erholungswert und vielfältige Freizeitmöglichkeiten ideal für Familien und Berufspendler gleichermaßen.
Die Innenstadt von Dillingen mit ihren Einkaufsmöglichkeiten, Restaurants, Cafés und allen Einrichtungen des täglichen Bedarfs ist in wenigen Minuten erreichbar. Schulen, Kindergärten und medizinische Versorgung befinden sich ebenfalls in unmittelbarer Nähe.
Die Verkehrsanbindung ist hervorragend: Der Bahnhof Dillingen (Donau) liegt nur wenige Minuten entfernt und bietet gute Verbindungen nach Ulm, Donauwörth und Augsburg. Über die Bundesstraße B16 besteht eine schnelle Anbindung an die umliegenden Städte sowie an die Autobahn A8 Richtung München und Stuttgart.
Die nahe Donau und zahlreiche Grünflächen in der Umgebung bieten zudem einen hohen Erholungswert und vielfältige Freizeitmöglichkeiten ideal für Familien und Berufspendler gleichermaßen.
Anbieter kontaktieren
Kontakt
| Telefon | 0821/43 98 70-0 |
| Fax | 0821/43 98 70-20 |
| Website | www.garant-immo.de |
