Neuwertiges Fachwerkhaus in 19288 Warlow
648.000 €
Kaufpreis
158 m²
Wohnfläche
5
Zimmer
immobilien.de Nr.: 9420889
Objektnummer: 7583#I9XtUa
Kaufpreis
| Kaufpreis | 648.000 € |
| Maklerprovision | 3,57 % |
Wohnfläche, Grundstück & Bausubstanz
| Wohnfläche | 158 m² |
| Grundstücksfläche | 1.530 m² |
| Zimmer | 5 |
| Baujahr | 2017 |
| Verfügbar ab | nach Absprache |
| Zustand | Neuwertig |
Energie
| Energieausweistyp | Verbrauch |
| Ausstellungsdatum | 25. 10. 2022 |
| Gültig bis | 25.10.2032 |
| Energieeffizienzklasse | A+ |
| Energieverbrauchkennwert | 44.4 kWh/(m²*a) |
| Wesentlicher Energieträger | Gas |
| Energieträger/Befeuerung | Gas |
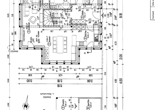
Beschreibung der Immobilie
Sie suchen ein großes Einfamilienhaus in ruhiger Lage?
Da haben wir etwas für Sie!
Dieses 2017 erbaute Fachwerkhaus mit sehr guten Energiekennwerten ist nicht nur von außen eine Augenweide sondern es wurde auch sehr gut mit den Räumlichkeiten geplant
Wenn Sie durch die großräumige Diele zum Esszimmer gelangen ersehen Sie eine offene kostspielige Küche und Sie gelangen durch das Esszimmer ins Wohnzimmer mit einem Kaminofen.
Es ist alles sehr offen gestaltet so das zwischen Küche und Wohnzimmer keine Türen vorhanden sind.
Durch die fast bodentiefen Fenster ist eine angenehme Wohlfühl - Atmosphäre vorhanden.
Es sind in allen Räumen keine lästigen Heizkörper an den Wänden weil unter den Parkett Fußboden
eine Fußbodenheizung installiert wurde. Ferner finden Sie im Erdgeschoss noch einen Hauswirtschaftsraum mit einem Seitenausgang und das Gäste WC vor.
Nachdem Sie über einen breiten Treppenaufgang das OG erreichen, finden sie dort drei weitere Zimmer zur individuellen Nutzung und das großräumige Vollbad als Wohlfühloase.
Sparsamen Stromverbrauch haben Sie durch die Photovoltaikanlage, ferner gibt es eine Kleinkläranlage so das keine Kosten für das Abwasser anfällt.
Natürlich können Sie auch bei diesem modernen Haus einen Glasfaseranschluss erwarten, dieser ist also vorhanden.
Eine Doppelgarage in der auch eine rundet das Angebot ab.
Erwähnenswert ist das hinter dem großen Grundstück eine Feldrandlage vorhanden ist so das diese nicht bebaut werden kann.
Da haben wir etwas für Sie!
Dieses 2017 erbaute Fachwerkhaus mit sehr guten Energiekennwerten ist nicht nur von außen eine Augenweide sondern es wurde auch sehr gut mit den Räumlichkeiten geplant
Wenn Sie durch die großräumige Diele zum Esszimmer gelangen ersehen Sie eine offene kostspielige Küche und Sie gelangen durch das Esszimmer ins Wohnzimmer mit einem Kaminofen.
Es ist alles sehr offen gestaltet so das zwischen Küche und Wohnzimmer keine Türen vorhanden sind.
Durch die fast bodentiefen Fenster ist eine angenehme Wohlfühl - Atmosphäre vorhanden.
Es sind in allen Räumen keine lästigen Heizkörper an den Wänden weil unter den Parkett Fußboden
eine Fußbodenheizung installiert wurde. Ferner finden Sie im Erdgeschoss noch einen Hauswirtschaftsraum mit einem Seitenausgang und das Gäste WC vor.
Nachdem Sie über einen breiten Treppenaufgang das OG erreichen, finden sie dort drei weitere Zimmer zur individuellen Nutzung und das großräumige Vollbad als Wohlfühloase.
Sparsamen Stromverbrauch haben Sie durch die Photovoltaikanlage, ferner gibt es eine Kleinkläranlage so das keine Kosten für das Abwasser anfällt.
Natürlich können Sie auch bei diesem modernen Haus einen Glasfaseranschluss erwarten, dieser ist also vorhanden.
Eine Doppelgarage in der auch eine rundet das Angebot ab.
Erwähnenswert ist das hinter dem großen Grundstück eine Feldrandlage vorhanden ist so das diese nicht bebaut werden kann.
Ausstattungsmerkmale
| Anzahl der Etagen im Haus | 2 |
| Küche | Einbauküche |
| Bad | 1 |
| Bad | Dusche, Wanne, Fenster |
| Boden | Fliesen, Parkett |
| Garage/Stellplätze | 2 |
Fachwerkhaus mit besten Energiekennwerten
Großes pflegeleichtes Grundstück.
Fast bodentiefe Fenster- Holz- Isolierverglasung
Offene Küche
Vollbad
Gäste WC
Glasfaseranschluss
Gaszentralheizung
Fußbodenheizung
Kaminofen
Kleine Photovoltaikanlage
Parkett Fußboden
Moderne Kläranlage
Doppel Garage mit Werkstatt
Zusätzliche PKW Stellplätze
Großes pflegeleichtes Grundstück.
Fast bodentiefe Fenster- Holz- Isolierverglasung
Offene Küche
Vollbad
Gäste WC
Glasfaseranschluss
Gaszentralheizung
Fußbodenheizung
Kaminofen
Kleine Photovoltaikanlage
Parkett Fußboden
Moderne Kläranlage
Doppel Garage mit Werkstatt
Zusätzliche PKW Stellplätze
Karte wird geladen...
Objektstandort
19288 Warlow
Lage & Infrastruktur
Objektstandort
19288 Warlow
Warlow ist eine Gemeinde im Landkreis Ludwigslust- Parchim in Mecklenburg - Vorpommern.
Sie wird vom Amt Ludwigslust-Land mit Sitz in der nicht amtsgehörigen Stadt Ludwigslust verwaltet.
Die Gemeinde liegt etwa sechs Kilometer westlich von Ludwigslust am Rande der Griesen Gegend.
Die B 5 verläuft drei Kilometer südlich von Warlow.
Der nächste Anschluss zur A 24 ist 14,5 Kilometer entfernt.
Hier erreichen sie bestens Lübeck oder Hamburg mit dem PKW in ca. 75 Minuten.
Guten Anschluss haben sie auch nach Wismar und Schwerin, ca. 35 km, Rostock, ca 100 km oder zum Ostseebad Boltenhagen
Die nächsten Bahnhöfe sind in Ludwigslust und Jasnitz.
Warlow hat eine Dorfgemeinschaft unter dem Motto Zusammen - Miteinander die Kultur und den Sport zu beleben sowie
Kinder und Jugendprojekte zu unterstützen.
Im Dorf ist ein Kindergarten vorhanden sowie die freiwillige Feuerwehr und ein Jugendclub mit diversen Angeboten.
Eine Grundschule ist im naheliegenden Ort Kummer sowie auch in Ludwigslust eine gute Infrastruktur mit einem
schönen Barockschloss vorhanden ist.
Eine Fahrradtour zum Landgestüt Redefin mit vielen Angeboten lohnt sich immer
Sie wird vom Amt Ludwigslust-Land mit Sitz in der nicht amtsgehörigen Stadt Ludwigslust verwaltet.
Die Gemeinde liegt etwa sechs Kilometer westlich von Ludwigslust am Rande der Griesen Gegend.
Die B 5 verläuft drei Kilometer südlich von Warlow.
Der nächste Anschluss zur A 24 ist 14,5 Kilometer entfernt.
Hier erreichen sie bestens Lübeck oder Hamburg mit dem PKW in ca. 75 Minuten.
Guten Anschluss haben sie auch nach Wismar und Schwerin, ca. 35 km, Rostock, ca 100 km oder zum Ostseebad Boltenhagen
Die nächsten Bahnhöfe sind in Ludwigslust und Jasnitz.
Warlow hat eine Dorfgemeinschaft unter dem Motto Zusammen - Miteinander die Kultur und den Sport zu beleben sowie
Kinder und Jugendprojekte zu unterstützen.
Im Dorf ist ein Kindergarten vorhanden sowie die freiwillige Feuerwehr und ein Jugendclub mit diversen Angeboten.
Eine Grundschule ist im naheliegenden Ort Kummer sowie auch in Ludwigslust eine gute Infrastruktur mit einem
schönen Barockschloss vorhanden ist.
Eine Fahrradtour zum Landgestüt Redefin mit vielen Angeboten lohnt sich immer
Kontaktanfrage senden
Über den Anbieter
Erika Zech Immobilien. e.K.
Zollweg 2a
23611 Sereetz
Kontakt
| Telefon | +49 451 393037 |
| Mobil | +49 176 62679353 |
| Website | erika-zech-immobilien.de |
Ansprechpartner/in
Herrn Hans-Eugen Zech
Weitere Angebote des Anbieters
29
Gepflegtes EFH mit ELW in HL, OT Dänischburg
Haus
23569 Lübeck
Energieausweis in Bearbeitung Dieses sehr gepflegte Einfamilienhaus mit einer Einliegerwohnung wir aus Altersgründen verkauft. Noch können die Besitzer das Objekt bestens in einem guten Zustand halten. Deshalb ist es ...
299.000 €
Kaufpreis
130 m²
Wohnfläche
4,5
Zimmer
6
Gemütliche Wohnung in 23558 Lübeck
Wohnung
23558 Lübeck
Grundbuch statt Sparbuch Die Attraktive 2 Zimmer Wohnung mit einer Wohnfläche von 51,42 m² Wohnfläche liegt in einem ruhigen Mehrfamilienhaus und überzeugt durch eine funktionale Raumaufteilung sowie einen sonnigen ...
189.000 €
Kaufpreis
52 m²
Wohnfläche
2
Zimmer
16
Freundliche 3 Zimmer Wohnung mietfrei in FL- Nordstadt
Wohnung
24939 Flensburg
Diese helle freundliche 3 Zimmer-Wohnung liegt in der 1. Etage eines 1973 erbauten Mehrfamilienhauses mit 8 Wohneinheiten. Es wurde Massivbauweise errichtet und wurde regelmäßig saniert. Die Wohnung verfügt über eine ...
180.000 €
Kaufpreis
73 m²
Wohnfläche
3
Zimmer
13
Gut geschnittene 2,5 Zimmer Wohnung in zentraler Lage ...
Wohnung
23795 Bad Segeberg
Diese ansprechende 2,5 Zimmer Wohnung mit einer Wohnfläche von 66 m² befindet sich im 2. Obergeschoss eines gepflegten Mehrfamilienhauses aus dem Baujahr 1963 mit insgesamt 30 Wohneinheiten. Die Lage ist ideal: Sowohl ...
148.000 €
Kaufpreis
66 m²
Wohnfläche
2,5
Zimmer
26
MFH,3 WE, oder WG in der Nähe des Mözener Sees
Haus
23795 Mözen
MFH, 3WE oder WG in der Nähe des Mözener Sees Objektbeschreibung Dieses in Massivbauweise errichtete Haus ist mit seiner Größe und Aufteilung für eine vielfältige Nutzung als Renditeobjekt geeignet. Es ist zurzeit an ...
469.000 €
Kaufpreis
250 m²
Wohnfläche
9,5
Zimmer