Reihenmittelhaus in Roßwein

225.000 €
Kaufpreis
122,61 m²
Wohnfläche
129,24 m²
Nutzfläche
4
Zimmer
immobilien.de Nr.: 9418782 Objektnummer: 599530
Reihenmittelhaus
Reihenmittelhaus
Neues Dach
Wohnraum mit Zugang zum Balkon
Treppenaufgang
Diele
Schlafzimmer
Schlafzimmer
Schlafzimmer
Gäste WC mit Dusche
WC
Badezimmer
Balkon
Hauswirtschaftsraum
Grundriss Erdgeschoss
Grundriss 1 OG
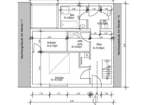
Grundriss Dachgeschoss

Preise & Kosten

Kaufpreis 225.000 €
Nebenkosten keine Angabe
Kaufpreis pro m² 1835 €
Maklerprovision 8.032,50 €

Größe & Zustand

Wohnfläche 122,61 m²
Nutzfläche 129,24 m²
Grundstücksfläche 190 m²
Zimmer 4
Baujahr 1907
Letzte Modernisierung 2023
Verfügbar ab sofort

Energie

Energieausweistyp Verbrauch
Ausstellungsdatum 29. 09. 2022
Gültig bis 28.09.2032
Energieeffizienzklasse F
Heizungsart Zentralheizung
Wesentlicher Energieträger Erdgas Schwer

Objektbeschreibung

Bei dem Immobilienangebot handelt es sich um ein Reihenmittelhaus in Roßwein.
Die Immobilie wurde 2022 & 2023 komplett saniert und renoviert.
Das Reihenmittelhaus hat 4 Zimmer, 2 Badezimmer und ein Gäste-WC - verteilt auf 122,61 m² Wohnfläche und 3 Etagen.

Im Laufe der Sanierungstätigkeiten wurden die folgenden Dinge erneuert:
- Dach & Dachfenster
- Heizanlage
- Dämmung (Innen & Außen)
- Heizkörper
- Bodenbelag (Laminat & Fließen)
- Fenster
- Sanitäranlagen
- Balkon
- Elektrik
- Grundrissanpassung

Die Immobilie ist seit dem 01.04.23 neu vermietet.

Bei Fragen zur Immobilie stehen wir Ihnen jederzeit zur Verfügung.


* Alle Angaben in den Exposés sind ohne Gewähr und basieren ausschließlich auf Informationen, die uns von unserem jeweiligen Auftraggeber übermittelt wurden.


" frisch, engagiert, solide "

Die Künne Immobilien Gruppe ist professioneller Dienstleister der Immobilienbranche und steht Ihnen in den Bereichen Projektentwicklung, Verkauf, Vermietung, Verwaltung und Facility Management zur Verfügung.

Für weitere Informationen und Einblicke besuchen Sie unsere Homepage: www.kuenne-gruppe.de Sie wollen Ihre Immobilie verkaufen? Egal ob Mehrfamilien- oder Einfamilienhaus, Eigentumswohnung, Grundstück oder Neubau- bzw. Bauträgerprojekt. Wir vermitteln kompetent, transparent und zügig Ihre Immobilie, bundesweit.

Ausstattung

Anzahl der Etagen im Haus 3
 
Bad 3
Bad Dusche, Wanne, Fenster
Boden Laminat
Balkone 1
Garten

Objektstandort

04741 Roßwein - Sachsen

Lage des Objektes

Roßwein ist eine Kleinstadt mit gut 7.000 Einwohnern. Sie liegt etwa 50 km westlich von Dresden im Landkreis Mittelsachsen mit einer guten Verkehrsanbindung nach Dresden, Leipzig und Chemnitz.

Die zentrale Lage lockt gerade junge Familien aber auch Unternehmen aus den Ballungsgebieten in die Kleinstadt. Die adäquaten Kosten des Wohnraums und der Gewerbegebiete, sowie diverse Angebote und Einrichtungen in den Bereichen Familien, Gesundheit, Freizeit, Bildung, Tourismus, Kultur und Wirtschaft ziehen immer mehr Menschen nach Roßwein.

Anbieter kontaktieren

Anbieter

Marko Künne Immobilien
Käthe-Kollwitz-Str. 58c
04109 Leipzig

Kontakt

Telefon 0341 442 9566
Fax 0341 2253930
Website www.kuenne-immobilien.de