Haus am See - mit eigenem Hafen
0 €
Kaufpreis
340 m²
Wohnfläche
9
Zimmer
immobilien.de Nr.: 9415501
Objektnummer: EFH01
Preise & Kosten
| Kaufpreis | 0 € |
| Nebenkosten | keine Angabe |
Größe & Zustand
| Wohnfläche | 340 m² |
| Grundstücksfläche | 2.400 m² |
| Zimmer | 9 |
| Baujahr | 2026 |
| Letzte Modernisierung | 2026 |
| Verfügbar ab | 2026 |
| Zustand | Projektiert |
Energie
| Energieausweistyp | Bedarfsausweis |
| Baujahr (laut Energieausweis) | 2026 |
| Energieeffizienzklasse | A+ |
| Energietyp | Niedrigenergie |
| Endenergiebedarf | 30.00 |
| Heizungsart | Fußbodenheizung |
| Wesentlicher Energieträger | Strom |
| Energieträger/Befeuerung | Luft-Wärme-Pumpe |
Objektbeschreibung
Der gut durchdachte Grundriss orientiert sich an den Gegebenheiten des Grundstücks. Zur Straßenseite hin finden sich die Nutzräume, sodass für die Aufenthaltsräume die komplette Südseite und somit See- und Bergsicht zur Verfügung stehen. Im Erdgeschoss erhält der Eingangsbereich viel Platz für die Garderobe sowie den zweiten Zugang direkt von der Doppelgarage. Über die weitläufige Diele öffnet sich an zwei Seiten der offene Wohnraum mit Koch - und Essbereich. Ein Gästezimmer mit En-suite-Bad vervollständigt diese Ebene. Das zusätzliche Gäste-WC versteht sich von selbst.
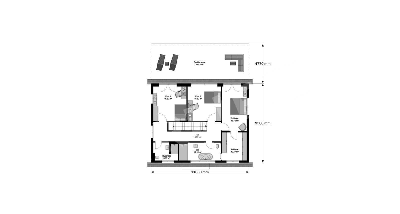
Im Obergeschoss wird es privater. Auch hier ist das Bad en suite, hinter der Ankleide. Den Kinderzimmern ist ein separates Duschbad zugeordnet.
Beide Geschosse sind mit Terrasse versehen, um von allen Ebenen das Leben am See voll auskosten zu können.
Die Bauvorschriften werden zugunsten eines großzügigen Freizeitbereichs im Untergeschoss genutzt, z.B. Sauna, Kino, Billard etc.
Die enorme Größe des Grundstücks erlaubt ein Spiel mit verschiedenen Terrassenebenen, Sitzplätzen, Freiflächen und gleichzeitig viel Privatsphäre.
Die hier beschriebene Planung ist ein Gestaltungsvorschlag, den wir gerne Ihren Wünschen anpassen. Ein Team von Architekt und Innenarchitektin steht Ihnen zur Verfügung.
Im Obergeschoss wird es privater. Auch hier ist das Bad en suite, hinter der Ankleide. Den Kinderzimmern ist ein separates Duschbad zugeordnet.
Beide Geschosse sind mit Terrasse versehen, um von allen Ebenen das Leben am See voll auskosten zu können.
Die Bauvorschriften werden zugunsten eines großzügigen Freizeitbereichs im Untergeschoss genutzt, z.B. Sauna, Kino, Billard etc.
Die enorme Größe des Grundstücks erlaubt ein Spiel mit verschiedenen Terrassenebenen, Sitzplätzen, Freiflächen und gleichzeitig viel Privatsphäre.
Die hier beschriebene Planung ist ein Gestaltungsvorschlag, den wir gerne Ihren Wünschen anpassen. Ein Team von Architekt und Innenarchitektin steht Ihnen zur Verfügung.
Ausstattung
| Anzahl der Etagen im Haus | 3 |
| Küche | Offene Küche |
| Bad | 3 |
| Bad | Dusche, Wanne, Fenster |
| Garten | |
| Terrassen | 2 |
| Garage/Stellplätze | 2 |
| Keller |
Die Ausstattung dieser Immobilie ist gehoben und lässt keine Wünsche offen. Sie haben die Wahl bei Bodenbelägen, Wandgestaltung, Sanitärobjekten etc. Hochwertige Materialien garantieren nicht nur Ästhetik, sondern auch Langlebigkeit.
Die umweltfreundliche Wärmepumpe sowie die Lüftungsanlage sorgen für eine effiziente Beheizung Ihres neuen Zuhauses und leistet einen wertvollen Beitrag zum Klimaschutz. Natürlich erfüllt das Haus den Niedrigenergie-Standard. Komplettiert wird das nachhaltige Konzept mit der Photovoltaikanlage inkl. Batteriespeicher.
SmartHome inkl. Einbruchschutz sorgen für zeitgemäßes Wohnen.
Die umweltfreundliche Wärmepumpe sowie die Lüftungsanlage sorgen für eine effiziente Beheizung Ihres neuen Zuhauses und leistet einen wertvollen Beitrag zum Klimaschutz. Natürlich erfüllt das Haus den Niedrigenergie-Standard. Komplettiert wird das nachhaltige Konzept mit der Photovoltaikanlage inkl. Batteriespeicher.
SmartHome inkl. Einbruchschutz sorgen für zeitgemäßes Wohnen.
Sonstige Informationen
Der noch bestehende Altbau auf dem Grundstück wird im Zuge der Tiefbauarbeiten entfernt.
Die hohe Wertigkeit unserer Häuser wird durch zahlreiche
Auszeichnungen, Qualitäts- und Gütesiegel unabhängiger Institute und Verbände dokumentiert.
Die Darstellungen können Gestaltungselemente zeigen, die nicht im Angebotspreis enthalten sind.
Änderungen und Irrtümer vorbehalten.
Die hohe Wertigkeit unserer Häuser wird durch zahlreiche
Auszeichnungen, Qualitäts- und Gütesiegel unabhängiger Institute und Verbände dokumentiert.
Die Darstellungen können Gestaltungselemente zeigen, die nicht im Angebotspreis enthalten sind.
Änderungen und Irrtümer vorbehalten.
Lage des Objektes
Das Grundstück befindet sich zentral im Ort und gleichzeitig direkt am See mit altem Baumbestand. Es verfügt über einen eigenen Hafen sowie einen zusätzlichen Bootsanleger.
Von hier aus haben Sie eine sehr gute Verkehrsanbindung an den Bahnhof sowie das Autobahnkreuz Hegau.
Von hier aus haben Sie eine sehr gute Verkehrsanbindung an den Bahnhof sowie das Autobahnkreuz Hegau.
