Energieoptimierte Doppelhaushälfte mit viel Platz und Pool in Eckersdorf bei Bayreuth

425.000 €
Kaufpreis
175 m²
Wohnfläche
6
Zimmer
immobilien.de Nr.: 9396640 Objektnummer: 340037
Blick vom Garten auf die Rückseite des Hauses
Blick auf den Hauseingang
Blick auf den Garagenbereich
Blick in den Hauseingangsbereich
Flur EG
Blick vom Wohn- in den Essbereich
Blick ins Wohnzimmer mit Kachelofen
Blick von der Terrasse in den Garten
Blick von der Terrasse auf den Pool
Blick auf den Poolbereich
Blick ins Gäste- WC
Blick in die Küche
Küchenbereich
Treppenhaus
Blick in ein OG-Zimmer
Blick in eines der OG-Zimmer
Blick in das OG-Zimmer mit Balkon
Blick auf den Balkon
Blick vom Balkon in den Garten
Blick ins Bad OG
Dusche im Bad OG
Blick ins Wohnstudio DG
Blick in das DG-Zimmer
Blick ins Bad DG
Treppenhaus - bzw. Flur UG
Blick in den Wasch- Trockenraum
Blick in den Heizungsraum
neu UG
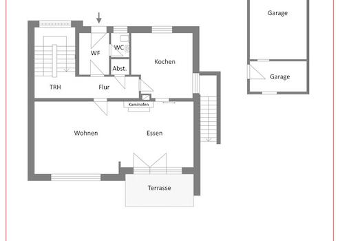
neu EG
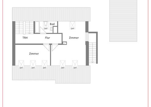
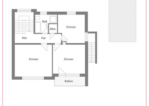
neu OG
neu DG

Preise & Kosten

Kaufpreis 425.000 €
Nebenkosten keine Angabe
Maklerprovision 2,97 % (inkl. MwSt.)

Größe & Zustand

Wohnfläche 175 m²
Grundstücksfläche 508 m²
Zimmer 6
Baujahr 1968
Verfügbar ab nach Absprache
Zustand Modernisiert

Energie

Energieausweistyp Verbrauch
Ausstellungsdatum 19. 10. 2025
Baujahr (laut Energieausweis) 1968
Energieeffizienzklasse B
Energieverbrauchkennwert 71.3 kWh/(m²*a)
Heizungsart Zentralheizung
Wesentlicher Energieträger Öl
Energieträger/Befeuerung Öl

Objektbeschreibung

Diese 2010 renovierte und modernisierte Doppelhaushälfte bietet mit über 175 qm Wohnfläche Platz für eine Familie mit mehreren Kindern oder auch einer Mehrgenerationenfamilie. Das Haus wurde 2010 umgebaut, nach den neuesten Vorgaben isoliert und mit einer neuen Heizung, einer Solarthermieanlage, einer kontrollierten Lüftungsanlage mit Wärmerückgewinnung sowie einer integrierten zentralen Staubsaugereinheit - ideal für Allergiker - ausgestattet.
Ein Kamin im Wohnbereich und ein Wärmeanschluss an den Kamin zu einem Zimmer im Obergeschoss lässt ein wohliges Behagen aufkommen. Ein Pool im großzügigen Gartenbereich mit Südterrasse lädt zu entspannten sonnigen Stunden ein.



Weitere Angebote unter www.GARANT-IMMO.de

Ausstattung

 
Küche Einbauküche
Bad 2
Boden Fliesen, Parkett
Balkone 1
Untergeschoss:
* Wasch- und Trockenraum mit separatem Zugang zum Garten
* zwei größere Kellerräume
* kleinerer Kellerraum
* Flur mit Abstellraum
* Heizungstechnikraum mit angrenzendem Brennstoffraum

Erdgeschoss:
* Eingangs- und Garderobenbereich mit separatem Gäste- WC
* heller Flur mit Abstellraum
* großer Wohn-/Essbereich mit modernem Kaminofen
und Zugang zur Terrasse
* große moderne Einbauküche mit Elektrogeräten

Obergeschoss:
* großes Schlafzimmer
* geräumiges Kinder- oder Gästezimmer
* Zimmer mit Wärmeanschluss an den Erdgeschoss-Kamin
und Zugang zum Balkon
* heller Flur mit Abstellraum
* Bad mit Dusche, Wanne und WC

Dachgeschoss:
* Bad mit Wanne und WC
* großzügiges Wohnstudio
* Kinder-, Gäste- oder Arbeitszimmer
* heller Flur
* Dachspitzboden mit zusätzlichem Stauraum



Sonstige Informationen

Energieverbrauchsausweis
Energiekennwert: 71,30 kWh/(qm*a)
Energieeffizienz: Klasse B (<75)
Heizung: Zentralheizung mit Öl
Baujahr laut Energieausweis: 1968

Objektstandort

95488 Eckersdorf

Lage des Objektes

Die Lage des Objektes in Eckersdorf hat eine hervorragende Infrastruktur und bietet schnellen Zugang zu Ärzten, Schulen, Kitas und vielen Einkaufsmöglichkeiten. Das Klinikum Bayreuth ist nur wenige Autominuten entfernt. Auch die Universität und die Stadtmitte von Bayreuth sowie den Autobahnanschluss an die A9 erreichen Sie in wenigen Autominuten.

Anbieter kontaktieren

Anbieter

Garant Immobilien AG
Wilhelmstr.5
70182 Stuttgart

Kontakt

Telefon 09281/54 01 34-0
Fax 09281/54 01 34-20
Website www.garant-immo.de

Ansprechpartner/in

Büro Hof
Weitere Anbieterdaten