Einfamilienhaus mit Geschichte und Gestaltungsspielraum in guter Lage
225.000 €
Kaufpreis
133 m²
Wohnfläche
5
Zimmer
immobilien.de Nr.: 9389817
Objektnummer: 576084
Preise & Kosten
| Kaufpreis | 225.000 € |
| Nebenkosten | keine Angabe |
| Maklerprovision | 3,57 % (inkl. MwSt.) |
Größe & Zustand
| Wohnfläche | 133 m² |
| Grundstücksfläche | 466 m² |
| Zimmer | 5 |
| Baujahr | 1930 |
| Verfügbar ab | sofort |
| Zustand | Teil Vollrenovierungsbed |
Energie
| Energieausweistyp | Bedarfsausweis |
| Ausstellungsdatum | 21. 10. 2025 |
| Baujahr (laut Energieausweis) | 1930 |
| Energieeffizienzklasse | H |
| Endenergiebedarf | 388.97 |
| Heizungsart | Zentralheizung |
| Wesentlicher Energieträger | Gas |
| Energieträger/Befeuerung | Gas |
Objektbeschreibung
Dieses Einfamilienhaus aus dem Jahr 1930 mit einem Umbau im Jahr 1976 bietet eine gute Grundlage für neue Wohnideen. Auf ca. 133 qm Wohnfläche und einem 466 m² großen Grundstück entsteht Raum für individuelle Gestaltung und modernes Wohnen.
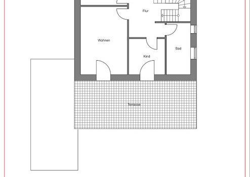
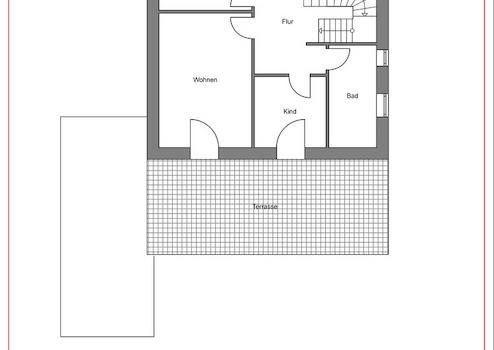
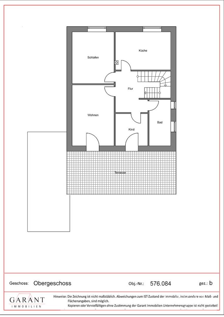
Das Haus verfügt über 5 Zimmer, 2 Küchen und 2 Badezimmer, wodurch es sich ideal für Familien oder Paare mit Platzbedarf eignet. Besonders hervorzuheben ist die moderne Küche im Erdgeschoss, die sich harmonisch in das klassische Ambiente einfügt.
Das Grundstück bietet mit der Terrasse und dem Stellplatz attraktive Möglichkeiten für Gartengestaltung oder Hobbybereich. Außerdem ist eine Garage vorhanden.
Die Immobilie ist renovierungsbedürftig und weist einen Feuchtigkeitsschaden am Kamin auf, der sich durch alle Stockwerke bis in den Keller zieht. Auch das Garagendach benötigt eine neue Abdichtung. Dennoch bietet das Objekt eine stabile Grundsubstanz und viel Potenzial für Käufer, die ein Haus nach ihren Vorstellungen gestalten möchten.
Ein interessantes Objekt für alle, die Wert auf Substanz legen und ein Zuhause mit Entwicklungsspielraum suchen.
Weitere Angebote unter www.GARANT-IMMO.de
Das Haus verfügt über 5 Zimmer, 2 Küchen und 2 Badezimmer, wodurch es sich ideal für Familien oder Paare mit Platzbedarf eignet. Besonders hervorzuheben ist die moderne Küche im Erdgeschoss, die sich harmonisch in das klassische Ambiente einfügt.
Das Grundstück bietet mit der Terrasse und dem Stellplatz attraktive Möglichkeiten für Gartengestaltung oder Hobbybereich. Außerdem ist eine Garage vorhanden.
Die Immobilie ist renovierungsbedürftig und weist einen Feuchtigkeitsschaden am Kamin auf, der sich durch alle Stockwerke bis in den Keller zieht. Auch das Garagendach benötigt eine neue Abdichtung. Dennoch bietet das Objekt eine stabile Grundsubstanz und viel Potenzial für Käufer, die ein Haus nach ihren Vorstellungen gestalten möchten.
Ein interessantes Objekt für alle, die Wert auf Substanz legen und ein Zuhause mit Entwicklungsspielraum suchen.
Weitere Angebote unter www.GARANT-IMMO.de
Ausstattung
| Anzahl der Etagen im Haus | 2 |
| Küche | Einbauküche |
| Boden | Fliesen, Laminat |
* fünf Zimmer
* zwei Küchen (eine davon ist komplett eingerichtet)
* drei Schlafzimmer
* zwei Badezimmer
* Terrasse im Erdgeschoss und Obergeschoss
* zwei Küchen (eine davon ist komplett eingerichtet)
* drei Schlafzimmer
* zwei Badezimmer
* Terrasse im Erdgeschoss und Obergeschoss
Sonstige Informationen
* Garten
* Stellplatz
* Garage
* Stellplatz
* Garage
Lage des Objektes
Die Immobilie liegt in zentraler, ruhiger Lage! Bäckerei, Metzgerei und der Ortskern sind fußläufig schnell erreichbar.
Ramstein-Miesenbach liegt etwa 15 Kilometer westlich von Kaiserslautern am Rande des Reichswalds. Nachbargemeinden sind - im Uhrzeigersinn - Mackenbach, Weilerbach, Kaiserslautern, Kindsbach, Landstuhl, Hauptstuhl, Hütschenhausen, Steinwenden, Kottweiler-Schwanden und Reichenbach-Steegen.
Besonders hervorzuheben ist hier die verkehrsgünstige Lage mit schneller Anbindung an die Autobahnen A6, A62 und A63.
Kindertagesstätten, Schulen, Ärzte, Apotheken, Gastronomie und ein reges Vereinsleben runden das Angebot ab.
Ramstein-Miesenbach liegt etwa 15 Kilometer westlich von Kaiserslautern am Rande des Reichswalds. Nachbargemeinden sind - im Uhrzeigersinn - Mackenbach, Weilerbach, Kaiserslautern, Kindsbach, Landstuhl, Hauptstuhl, Hütschenhausen, Steinwenden, Kottweiler-Schwanden und Reichenbach-Steegen.
Besonders hervorzuheben ist hier die verkehrsgünstige Lage mit schneller Anbindung an die Autobahnen A6, A62 und A63.
Kindertagesstätten, Schulen, Ärzte, Apotheken, Gastronomie und ein reges Vereinsleben runden das Angebot ab.
Anbieter kontaktieren
Kontakt
| Telefon | 0631/89 29 75-0 |
| Fax | 0631/89 29 75-20 |
| Website | www.garant-immo.de |
