Renditestarkes 3-Parteienhaus mit Großgaragen
444.000 €
Kaufpreis
265 m²
Wohnfläche
9
Zimmer
immobilien.de Nr.: 9332879
Objektnummer: 448061
Kaufpreis
| Kaufpreis | 444.000 € |
| Maklerprovision | 4,76 % (inkl. MwSt.) |
Wohnfläche, Grundstück & Bausubstanz
| Wohnfläche | 265 m² |
| Grundstücksfläche | 1.442 m² |
| Zimmer | 9 |
| Baujahr | 1959 |
| Verfügbar ab | nach Vereinbarung |
| Zustand | Gepflegt |
Energie
| Energieausweistyp | Bedarfsausweis |
| Ausstellungsdatum | 27. 06. 2025 |
| Baujahr (laut Energieausweis) | 1959 |
| Energieeffizienzklasse | G |
| Endenergiebedarf | 230.53 |
| Heizungsart | Zentralheizung |
| Wesentlicher Energieträger | Öl |
| Energieträger/Befeuerung | Öl |
Beschreibung der Immobilie
Zum Verkauf steht ein gepflegtes Dreiparteienhaus mit drei Großgaragen in Enzklösterle, das sich ideal als renditestarke Kapitalanlage oder zur teilweisen Eigennutzung eignet. Das Wohnhaus befindet sich in einem guten und fortlaufend instand gehaltenen Zustand. Es umfasst insgesamt drei separate Wohnungen, die derzeit alle zuverlässig vermietet sind und stabile Mieteinnahmen garantieren.
Im Jahr 2008 wurde das Gebäude mit einer neuen, modernen Ölheizung ausgestattet, wodurch ein wirtschaftlicher und effizienter Betrieb gewährleistet ist. Sowohl das äußere Erscheinungsbild als auch die Innenausstattung der Wohnungen befinden sich in einem gepflegten Zustand, ein sofortiger Handlungsbedarf besteht nicht.
Besonders hervorzuheben sind die drei großzügigen Garagen, die vielfältige Nutzungsmöglichkeiten bieten. Diese eignen sich hervorragend als Lager-, Werkstatt- oder Abstellflächen und eröffnen zusätzliches Potenzial, etwa für Selbstständige, Handwerksbetriebe oder Unternehmer.
Das Objekt bietet somit eine solide Basis für Kapitalanleger, die auf eine nachhaltige Rendite und Wertbeständigkeit setzen, sowie für Eigennutzer, die die Garagenräume oder Teile des Hauses individuell nutzen möchten. Eine hervorragende Investitionsmöglichkeit in eine gepflegte Immobilie mit langfristiger Perspektive.
Weitere Angebote unter www.GARANT-IMMO.de
Im Jahr 2008 wurde das Gebäude mit einer neuen, modernen Ölheizung ausgestattet, wodurch ein wirtschaftlicher und effizienter Betrieb gewährleistet ist. Sowohl das äußere Erscheinungsbild als auch die Innenausstattung der Wohnungen befinden sich in einem gepflegten Zustand, ein sofortiger Handlungsbedarf besteht nicht.
Besonders hervorzuheben sind die drei großzügigen Garagen, die vielfältige Nutzungsmöglichkeiten bieten. Diese eignen sich hervorragend als Lager-, Werkstatt- oder Abstellflächen und eröffnen zusätzliches Potenzial, etwa für Selbstständige, Handwerksbetriebe oder Unternehmer.
Das Objekt bietet somit eine solide Basis für Kapitalanleger, die auf eine nachhaltige Rendite und Wertbeständigkeit setzen, sowie für Eigennutzer, die die Garagenräume oder Teile des Hauses individuell nutzen möchten. Eine hervorragende Investitionsmöglichkeit in eine gepflegte Immobilie mit langfristiger Perspektive.
Weitere Angebote unter www.GARANT-IMMO.de
Ausstattungsmerkmale
| Anzahl der Etagen im Haus | 3 |
| Bad | 3 |
| Boden | Fliesen, Laminat |
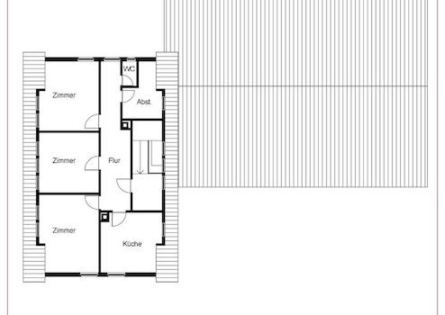
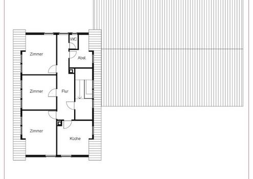
EG-Wohnung:
* Wohnzimmer
* Kinderzimmer
* Schlafzimmer
* Küche
* Badezimmer
* Gäste-WC
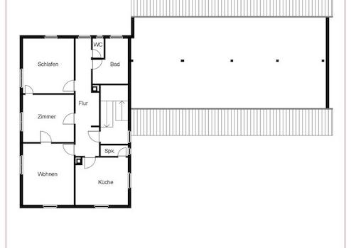
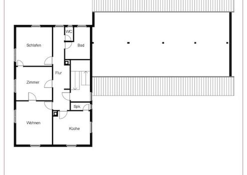
OG-Wohnung:
* Wohnzimmer
* Kinderzimmer
* Schlafzimmer
* Küche
* Badezimmer
* Gäste-WC
DG-Wohnung:
* Wohnzimmer
* Kinderzimmer
* Schlafzimmer
* Küche
* Badezimmer
* Gäste-WC
* Wohnzimmer
* Kinderzimmer
* Schlafzimmer
* Küche
* Badezimmer
* Gäste-WC
OG-Wohnung:
* Wohnzimmer
* Kinderzimmer
* Schlafzimmer
* Küche
* Badezimmer
* Gäste-WC
DG-Wohnung:
* Wohnzimmer
* Kinderzimmer
* Schlafzimmer
* Küche
* Badezimmer
* Gäste-WC
Sonstige Informationen
* Momentan sind alle Wohneinheiten und Großgaragen vermietet!
* Die Großgaragen werden nicht separat verkauft!
* Die Großgaragen werden nicht separat verkauft!
Karte wird geladen...
Objektstandort
75337 Enzklösterle
Lage & Infrastruktur
Objektstandort
75337 Enzklösterle
Trotz der idyllischen, naturnahen Umgebung ist Enzklösterle verkehrstechnisch gut angebunden. Über die Bundesstraße B294 erreicht man in kurzer Zeit Freudenstadt, Bad Wildbad und Calw. Diese Nähe zu größeren Städten verbindet die Vorteile ländlicher Ruhe mit guter Erreichbarkeit.
Kontaktanfrage senden
Über den Anbieter
Garant Immobilien AG
Wilhelmstr.5
70182 Stuttgart
Kontakt
| Telefon | 07452/84 960-0 |
| Fax | 07452/84 960-20 |
| Website | www.garant-immo.de |
Ansprechpartner/in
Büro Calw / Freudenstadt