Große Stadtvilla in perfekter Wohnlage !
539.994 €
Kaufpreis
186 m²
Wohnfläche
5
Zimmer
immobilien.de Nr.: 9281515
Objektnummer: 251090A019-251007
Preise & Kosten
| Kaufpreis | 539.994 € |
| Nebenkosten | keine Angabe |
| Stellplatz Garage Kaufpreis | 9.000 € |
Größe & Zustand
| Wohnfläche | 186 m² |
| Grundstücksfläche | 900 m² |
| Zimmer | 5 |
| Baujahr | 2026 |
| Verfügbar ab | nach Vereinbarung |
| Zustand | Erstbezug |
Energie
| Energieausweistyp | Verbrauch |
| Baujahr (laut Energieausweis) | 2026 |
| Energieeffizienzklasse | A+ |
| Energietyp | Niedrigenergie, Neubaustandard, KfW-40 |
| Energieverbrauchkennwert | 33.00 kWh/(m²*a) |
| Heizungsart | Zentralheizung |
| Wesentlicher Energieträger | Strom |
| Energieträger/Befeuerung | Luft-Wärme-Pumpe |
Objektbeschreibung
Viel Platz und von Licht erfüllte Räume bietet die Stadtvilla für eine Familie mit Kindern. Im Erdgeschoss bildet der offen gestaltete Wohn-, Ess- und Kochbereich mit 49 m² das Herzstück des Hauses. Der gesamte Wohnbereich wird von drei Seiten mit Tageslicht durchflutet. Die Küche ist übereck
angeordnet, so kann sie nicht direkt vom Flur oder vom Wohnbereich aus eingesehen werden. Weiterhin befinden sich ein optionales Duschbad, ein Haustechnik-
/Hauswirtschaftsraum, eine schöne Diele sowie ein praktisches Zusatzzimmer (Gäste/Hobby/Schlafen/Kind) im Erdgeschoss. Der Grundriss ist so konzipiert, dass auch bei
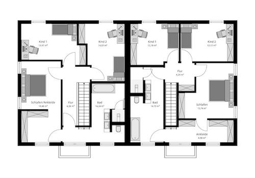
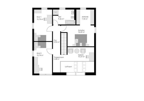
Krankheit oder im Alter das Wohnen auf einer Etage möglich ist. Das Obergeschoss ist mit drei Kinderzimmern und einem Kinderbad geplant. Der Elternbereich überzeugt mit einem
Ankleidebereich und einem Bad en Suite. Der Flurbereich ist als Galerie ausgestaltet.
Objektart: Stadtvilla, 2-geschossig
Dachform: Walmdach
Hausmaße: 11,205 m x 9,33 m
angeordnet, so kann sie nicht direkt vom Flur oder vom Wohnbereich aus eingesehen werden. Weiterhin befinden sich ein optionales Duschbad, ein Haustechnik-
/Hauswirtschaftsraum, eine schöne Diele sowie ein praktisches Zusatzzimmer (Gäste/Hobby/Schlafen/Kind) im Erdgeschoss. Der Grundriss ist so konzipiert, dass auch bei
Krankheit oder im Alter das Wohnen auf einer Etage möglich ist. Das Obergeschoss ist mit drei Kinderzimmern und einem Kinderbad geplant. Der Elternbereich überzeugt mit einem
Ankleidebereich und einem Bad en Suite. Der Flurbereich ist als Galerie ausgestaltet.
Objektart: Stadtvilla, 2-geschossig
Dachform: Walmdach
Hausmaße: 11,205 m x 9,33 m
Ausstattung
| Anzahl der Etagen im Haus | 2 |
| Küche | Offene Küche |
| Bad | 1 |
| Bad | Dusche, Wanne, Fenster |
| Boden | Fliesen, Stein, Teppich, Parkett, Fertigparkett, Laminat, Kunststoff, Linoleum, Marmor, Granit |
| Terrassen | 1 |
| Barrierefrei | |
| Garage/Stellplätze | 1 |
STREIF-Energiesparhäuser sind für die Effizienzhaus-Klasse 40* vorbereitet. (*In Abhängigkeit von Gebäudestandort, Gebäudeausrichtung, Fensterflächenanteilen, Haustechnik, örtlich geltenden baulichen Vorschriften usw. können zusätzlich oder abweichende Leistungen bzw. die Anpassung der Grundrisse erforderlich werden, die im Zuge der Bauantragsbewertung/-erstellung bewerten werden.) Alle Angaben sind Circa-Werte.
Eine Zertifizierung in der Nachhaltigkeitsklasse ist ab der Premiumline möglich, die im Standard für die Effizienzhaus-Klasse 40 ausgestattet ist. Hierfür können wir eine Ökobilanz (bei Ausbaustufe fastfertig+ und schlüsselfertig) erstellen, die bescheinigt, dass Ihr STREIF-Haus den Richtlinien in der Stufe KFWG für den Klimafreundlichen Neubau (KFN) entspricht. Auf Wunsch kann ergänzend auch eine Nachhaltigkeitszertifizierung nach QNG in der Stufe KFWG-Q (ebenfalls bei Ausbaustufe fastfertig+ und schlüsselfertig) geprüft und angeboten werden. Für das Erfüllen der Voraussetzungen ist eine Photovoltaik-Anlage mit Batteriespeicher erforderlich.
Die STREIF-Passiv-Außenwand und eine sparsame Heiztechnik mit integrierter Wohnraumlüftung und Wärmerückgewinnung garantieren eine geringen Energieverbrauch und ein fantastisches Raumklima, das insbesondere Allergiker aufatmen lässt.
Folgende STREIF-Leistungen sind bei den Hauspreisen für die exklusiven STREIF-Villen bei Ausbaustufe fastfertig+ in der Ausstattungslinie Premiumline enthalten:
Inklusive gedämmte Fundamentplatte
Inklusive STREIF-Luft-Luft-Wärmepumpen-Technologie, mit integrierter Lüftungsanlage mit Wärmerückgewinnung
Inklusive Holzhaustür von KERA-Tür
Inklusive Fenster von Porta/Kömmerling
Inklusive Treppe aus eigener Produktion
Inklusive Sanitärobjekten von Markenherstellern in Bad/WC
Inklusive Elektroinstallation u.v.m.
Inklusive Vorbereitung zur Installation einer Photovoltaik-Anlage
Individuelle Grundrissgestaltung und Raumaufteilung möglich
Die hohe Wertigkeit und Langlebigkeit eines STREIF-Energiespar-Hauses wird durch zahlreiche Auszeichnungen, Qualitäts- und Gütesiegel unabhängiger Institute und Verbände dokumentiert.
Bilder können evtl. Anbauteile, Carports, Balkone, Gauben usw. zeigen, die nicht im Angebotspreis enthalten sind. Änderungen und Irrtümer vorbehalten.
Eine Zertifizierung in der Nachhaltigkeitsklasse ist ab der Premiumline möglich, die im Standard für die Effizienzhaus-Klasse 40 ausgestattet ist. Hierfür können wir eine Ökobilanz (bei Ausbaustufe fastfertig+ und schlüsselfertig) erstellen, die bescheinigt, dass Ihr STREIF-Haus den Richtlinien in der Stufe KFWG für den Klimafreundlichen Neubau (KFN) entspricht. Auf Wunsch kann ergänzend auch eine Nachhaltigkeitszertifizierung nach QNG in der Stufe KFWG-Q (ebenfalls bei Ausbaustufe fastfertig+ und schlüsselfertig) geprüft und angeboten werden. Für das Erfüllen der Voraussetzungen ist eine Photovoltaik-Anlage mit Batteriespeicher erforderlich.
Die STREIF-Passiv-Außenwand und eine sparsame Heiztechnik mit integrierter Wohnraumlüftung und Wärmerückgewinnung garantieren eine geringen Energieverbrauch und ein fantastisches Raumklima, das insbesondere Allergiker aufatmen lässt.
Folgende STREIF-Leistungen sind bei den Hauspreisen für die exklusiven STREIF-Villen bei Ausbaustufe fastfertig+ in der Ausstattungslinie Premiumline enthalten:
Inklusive gedämmte Fundamentplatte
Inklusive STREIF-Luft-Luft-Wärmepumpen-Technologie, mit integrierter Lüftungsanlage mit Wärmerückgewinnung
Inklusive Holzhaustür von KERA-Tür
Inklusive Fenster von Porta/Kömmerling
Inklusive Treppe aus eigener Produktion
Inklusive Sanitärobjekten von Markenherstellern in Bad/WC
Inklusive Elektroinstallation u.v.m.
Inklusive Vorbereitung zur Installation einer Photovoltaik-Anlage
Individuelle Grundrissgestaltung und Raumaufteilung möglich
Die hohe Wertigkeit und Langlebigkeit eines STREIF-Energiespar-Hauses wird durch zahlreiche Auszeichnungen, Qualitäts- und Gütesiegel unabhängiger Institute und Verbände dokumentiert.
Bilder können evtl. Anbauteile, Carports, Balkone, Gauben usw. zeigen, die nicht im Angebotspreis enthalten sind. Änderungen und Irrtümer vorbehalten.
Sonstige Informationen
Bei Ihrem Besuch in unserem Ausstattungszentrum geht es um die Umsetzung Ihrer Wünsche bezüglich der technischen Ausstattung für Ihr neues Zuhause. Ihr persönlicher Ausstattungsberater empfängt Sie gut vorbereitet, denn er ist bestens mit Ihrem Bauvorhaben vertraut und kennt bereits die Punkte, die es noch festzulegen gilt. Dabei wird die Grundrissplanung des Architekten auf einem im Schreibtisch integrierten, überdimensionalen Tablet dargestellt. Diese moderne Technik erlaubt es Ihnen und ihrem Berater, mit Finger oder Stift mögliche Änderungen und Ergänzungen interaktiv direkt im Plan zu notieren.
Beim Rundgang durch die rund 800 m² große Ausstellung klären sie mit ihrem Ausstattungsberater gemeinsam die Details zur technischen Ausstattung und zum äußeren Erscheinungsbild Ihres Hauses. Sie entscheiden über die optische Gestaltung von Fassade, Dach, Fenster, Haustür, Innentüren und klären die Details zur Haustechnik.
STREIF Haus GmbH Thomas Heitz Lortzingstr. 12 66111 Saarbrücken 0160 7038141 thomas.heitz@streif.de
Beim Rundgang durch die rund 800 m² große Ausstellung klären sie mit ihrem Ausstattungsberater gemeinsam die Details zur technischen Ausstattung und zum äußeren Erscheinungsbild Ihres Hauses. Sie entscheiden über die optische Gestaltung von Fassade, Dach, Fenster, Haustür, Innentüren und klären die Details zur Haustechnik.
STREIF Haus GmbH Thomas Heitz Lortzingstr. 12 66111 Saarbrücken 0160 7038141 thomas.heitz@streif.de
Lage des Objektes
Das Grundstück liegt in einer sehr familienfreundlichen Wohngegend von Rilchingen Hanweiler.
Das Haus ist auf einem realen Baugrundstück geplant oder auf einem Grundstück in einer Planungsphase. Das Grundstück erwerben Sie direkt vom Eigentümer. Der Preis des Grundstücks ist im Angebotspreis bereits eingerechnet.
Bitte haben Sie Verständnis dafür, dass wir ohne ein persönliches Gespräch keine Grundstücksdaten weiterleiten können.
Gern sind wir bei der Wahl Ihres Traumgrundstückes behilflich!
Natürlich können wir ihren Haustraum auch auf einem anderen Grundstück realisieren, lassen Sie sich dazu in einem unverbindlichen Gespräch zu Ihrem Bauvorhaben beraten.
Das Haus ist auf einem realen Baugrundstück geplant oder auf einem Grundstück in einer Planungsphase. Das Grundstück erwerben Sie direkt vom Eigentümer. Der Preis des Grundstücks ist im Angebotspreis bereits eingerechnet.
Bitte haben Sie Verständnis dafür, dass wir ohne ein persönliches Gespräch keine Grundstücksdaten weiterleiten können.
Gern sind wir bei der Wahl Ihres Traumgrundstückes behilflich!
Natürlich können wir ihren Haustraum auch auf einem anderen Grundstück realisieren, lassen Sie sich dazu in einem unverbindlichen Gespräch zu Ihrem Bauvorhaben beraten.
Anbieter kontaktieren
Kontakt
| Telefon | +49 681 70947955 |
| Mobil | +49 160 7038141 |
| Website | www.streif.de |
