Wohnen im "Leipziger Neuseenland" - Ihr neues Zuhause erwartet Sie
480.000 €
Kaufpreis
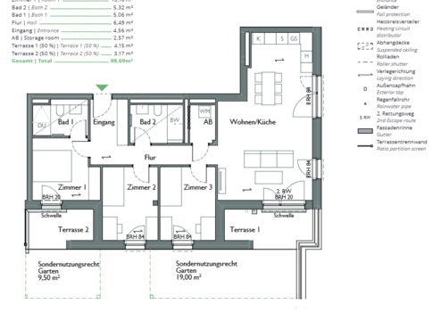
98,69 m²
Wohnfläche
4
Zimmer
immobilien.de Nr.: 9280985
Objektnummer: Marmorweg 11 BF6 WE 6.04
Kaufpreis
| Kaufpreis | 480.000 € |
| Kaufpreis pro m² | 4863,71 € |
Wohnfläche, Grundstück & Bausubstanz
| Wohnfläche | 98,69 m² |
| Zimmer | 4 |
| Baujahr | 2025 |
| Verfügbar ab | 2027 |
| Zustand | Erstbezug |
Energie
| Energieausweistyp | Bedarfsausweis |
| Ausstellungsdatum | 16. 10. 2023 |
| Gültig bis | 25.03.2035 |
| Energieeffizienzklasse | A_PLUS |
| Endenergiebedarf | 25.3 |
| Heizungsart | Fußbodenheizung |
| Wesentlicher Energieträger | Luftwärmepumpe |
| Energieträger/Befeuerung | Luft-Wärme-Pumpe |
Beschreibung der Immobilie
Willkommen in den Floragärten – Wohnen am Waldrand, Leben bei Leipzig!
Entdecken Sie Ihr neues Zuhause in den Floragärten Naunhof – einem exklusiven Wohnquartier, das naturnahe Ruhe und stadtnahe Lage perfekt vereint. Hier entstehen bis 2027 insgesamt 120 hochwertige Eigentumswohnungen – eingebettet in eine grüne, parkähnliche Umgebung direkt am Waldrand.
Architektur mit Charakter
Die Wohnanlage verteilt sich auf 6 stilvoll gestaltete Häuser auf einem großzügigen Grundstück mit über 16.700 m² Fläche. Jedes Gebäude überzeugt durch eine individuelle Fassadengestaltung, durchdachte Materialien, harmonische Farben und spannende Licht- und Raumeffekte – für ein modernes, offenes Wohngefühl mit ganz eigener Handschrift.
Komfort trifft Zukunft
Ein Highlight: 36 barrierefreie Wohnungen, ideal für jedes Alter und jede Lebensphase.
Dazu kommen 78 Tiefgaragen- und 105 Außenstellplätze, sodass auch Ihr Auto bestens untergebracht ist.
Diese durchdacht geschnittene 4-Raum-Wohnung bietet Ihnen auf 98,69 m² Wohnfläche alles, was zeitgemäßes Wohnen ausmacht: helle Räume, moderne Ausstattung und eine ruhige Lage direkt am Waldrand.
Ob als Zuhause für Paare, Singles oder Familien – hier genießen Sie Wohnqualität mit Blick ins Grüne, kombiniert mit den Annehmlichkeiten eines energieeffizienten Neubaus im KfW-55-Standard.
Die Floragärten – Ihr neues Zuhause. Natürlich. Modern. Durchdacht.
Jetzt melden und die Chance auf eine Wohnung in einem der spannendsten Neubauprojekte bei Leipzig sichern!
" frisch, engagiert, solide "
Die Künne Immobilien Gruppe ist professioneller Dienstleister der Immobilienbranche und steht Ihnen in den Bereichen Projektentwicklung, Verkauf, Vermietung, Verwaltung und Facility Management zur Verfügung.
Für weitere Informationen und Einblicke besuchen Sie unsere Homepage: www.kuenne-gruppe.de. Sie wollen Ihre Immobilie verkaufen? Egal ob Mehrfamilien- oder Einfamilienhaus, Eigentumswohnung, Grundstück oder Neubau- bzw. Bauträgerprojekt. Wir vermitteln kompetent, transparent und zügig Ihre Immobilie, bundesweit.
Entdecken Sie Ihr neues Zuhause in den Floragärten Naunhof – einem exklusiven Wohnquartier, das naturnahe Ruhe und stadtnahe Lage perfekt vereint. Hier entstehen bis 2027 insgesamt 120 hochwertige Eigentumswohnungen – eingebettet in eine grüne, parkähnliche Umgebung direkt am Waldrand.
Architektur mit Charakter
Die Wohnanlage verteilt sich auf 6 stilvoll gestaltete Häuser auf einem großzügigen Grundstück mit über 16.700 m² Fläche. Jedes Gebäude überzeugt durch eine individuelle Fassadengestaltung, durchdachte Materialien, harmonische Farben und spannende Licht- und Raumeffekte – für ein modernes, offenes Wohngefühl mit ganz eigener Handschrift.
Komfort trifft Zukunft
Ein Highlight: 36 barrierefreie Wohnungen, ideal für jedes Alter und jede Lebensphase.
Dazu kommen 78 Tiefgaragen- und 105 Außenstellplätze, sodass auch Ihr Auto bestens untergebracht ist.
Diese durchdacht geschnittene 4-Raum-Wohnung bietet Ihnen auf 98,69 m² Wohnfläche alles, was zeitgemäßes Wohnen ausmacht: helle Räume, moderne Ausstattung und eine ruhige Lage direkt am Waldrand.
Ob als Zuhause für Paare, Singles oder Familien – hier genießen Sie Wohnqualität mit Blick ins Grüne, kombiniert mit den Annehmlichkeiten eines energieeffizienten Neubaus im KfW-55-Standard.
Die Floragärten – Ihr neues Zuhause. Natürlich. Modern. Durchdacht.
Jetzt melden und die Chance auf eine Wohnung in einem der spannendsten Neubauprojekte bei Leipzig sichern!
" frisch, engagiert, solide "
Die Künne Immobilien Gruppe ist professioneller Dienstleister der Immobilienbranche und steht Ihnen in den Bereichen Projektentwicklung, Verkauf, Vermietung, Verwaltung und Facility Management zur Verfügung.
Für weitere Informationen und Einblicke besuchen Sie unsere Homepage: www.kuenne-gruppe.de. Sie wollen Ihre Immobilie verkaufen? Egal ob Mehrfamilien- oder Einfamilienhaus, Eigentumswohnung, Grundstück oder Neubau- bzw. Bauträgerprojekt. Wir vermitteln kompetent, transparent und zügig Ihre Immobilie, bundesweit.
Ausstattungsmerkmale
| Anzahl der Etagen im Haus | 3 |
| Inserat befindet sich im Stockwerk | 0 |
| Bad | 2 |
| Boden | Parkett |
| Balkone | 1 |
| Garten | |
| Fahrstuhl |
Grundausstattung ohne Aufpreis:
- Wohnbereiche mit Echtholzparkett in Eiche Classic geölt + weiße Sockelleisten
- Balkon / Terrasse / Garten
- Badezimmer mit Qualitätsausstattung von Villeroy & Boch, Hansgrohe, Geberit, Kaldewei, Busch & Jaeger
- Wand - & Bodenfliesen im Bad in Feinsteinzeug Villeroy & Boch / taupe FT70 ca. 600 x 600 mm
- Fußbodenheizung
Weitere vorgegebene Sonderausstattungen mit Aufpreis sind möglich, diese entnehmen Sie bitte dem Ausstattungskatalog.
Green Facts:
- energieeffizienter KfW-55-Standard
- fossilfreie Wärmeversorgung
- Luftwärmepumpen und Photovoltaik
- vielfältige, insektenfreundliche Bepflanzung
- Freiraum für Miteinander
- Wohnbereiche mit Echtholzparkett in Eiche Classic geölt + weiße Sockelleisten
- Balkon / Terrasse / Garten
- Badezimmer mit Qualitätsausstattung von Villeroy & Boch, Hansgrohe, Geberit, Kaldewei, Busch & Jaeger
- Wand - & Bodenfliesen im Bad in Feinsteinzeug Villeroy & Boch / taupe FT70 ca. 600 x 600 mm
- Fußbodenheizung
Weitere vorgegebene Sonderausstattungen mit Aufpreis sind möglich, diese entnehmen Sie bitte dem Ausstattungskatalog.
Green Facts:
- energieeffizienter KfW-55-Standard
- fossilfreie Wärmeversorgung
- Luftwärmepumpen und Photovoltaik
- vielfältige, insektenfreundliche Bepflanzung
- Freiraum für Miteinander
Sonstige Informationen
Alle Angaben sind ohne Gewähr und basieren ausschließlich auf Informationen, die uns von unserem Auftraggeber zur Verfügung gestellt wurden. Wir übernehmen keine Gewähr für die Vollständigkeit, Richtigkeit und Aktualität dieser Angaben.
Karte wird geladen...
Objektstandort
04683 Naunhof
- Sachsen
Lage & Infrastruktur
Objektstandort
04683 Naunhof
- Sachsen
Naunhof – Natur pur & Leipzig ganz nah
Naunhof liegt nur ca. 20 km südöstlich von Leipzig und bietet genau die richtige Mischung aus grüner Idylle und guter Anbindung. Umgeben von Wäldern, durchzogen vom Fluss Parthe und bekannt für seine drei Badeseen – Grillensee, Moritzsee und Albrechtshainer See – ist der Ort ein echtes Naturparadies.
Ob Wassersport, Spaziergänge oder einfach Ruhe genießen – hier finden Sie Erholung direkt vor der Tür.
Dank hervorragender Infrastruktur und schneller Erreichbarkeit von Leipzig ist Naunhof ideal für alle, die naturnah wohnen und trotzdem gut angebunden sein möchten.
Fahrzeiten zu Anschlüssen:
Autobahn A14 ca. 2 km, ca. 4 Min. mit dem Auto
Autobahn A38 ca. 7 km, ca. 7 Min. mit dem Auto
Leipzig Zentrum ca. 25 km, ca. 30 Min. mit dem Auto
Leipziger Messe ca. 23 km, ca. 20 Min. mit dem Auto
Flughafen Leipzig / Halle ca. 33 km, ca. 21 Min. mit dem Auto
Bahnhof Naunhof ca. 1,5 km, ca. 20 Min. zu Fuß
Hauptbahnhof Leipzig 6 Stationen, ca. 22 Minuten mit RE
Naunhof liegt nur ca. 20 km südöstlich von Leipzig und bietet genau die richtige Mischung aus grüner Idylle und guter Anbindung. Umgeben von Wäldern, durchzogen vom Fluss Parthe und bekannt für seine drei Badeseen – Grillensee, Moritzsee und Albrechtshainer See – ist der Ort ein echtes Naturparadies.
Ob Wassersport, Spaziergänge oder einfach Ruhe genießen – hier finden Sie Erholung direkt vor der Tür.
Dank hervorragender Infrastruktur und schneller Erreichbarkeit von Leipzig ist Naunhof ideal für alle, die naturnah wohnen und trotzdem gut angebunden sein möchten.
Fahrzeiten zu Anschlüssen:
Autobahn A14 ca. 2 km, ca. 4 Min. mit dem Auto
Autobahn A38 ca. 7 km, ca. 7 Min. mit dem Auto
Leipzig Zentrum ca. 25 km, ca. 30 Min. mit dem Auto
Leipziger Messe ca. 23 km, ca. 20 Min. mit dem Auto
Flughafen Leipzig / Halle ca. 33 km, ca. 21 Min. mit dem Auto
Bahnhof Naunhof ca. 1,5 km, ca. 20 Min. zu Fuß
Hauptbahnhof Leipzig 6 Stationen, ca. 22 Minuten mit RE
Kontaktanfrage senden
Über den Anbieter
Marko Künne Immobilien
Käthe-Kollwitz-Str. 58c
04109 Leipzig
Kontakt
| Telefon | 0341 442 9566 |
| Fax | 0341 2253930 |
| Website | www.kuenne-immobilien.de |