AIGNER - Großzügiges Einfamilienhaus in begehrter Lage von Münsing/Ammerland
2.500.000 €
Kaufpreis
308,4 m²
Wohnfläche
579 m²
Nutzfläche
7
Zimmer
immobilien.de Nr.: 9248345
Objektnummer: 42414
Preise & Kosten
| Kaufpreis | 2.500.000 € |
| Nebenkosten | keine Angabe |
| Maklerprovision | 3,57% |
Größe & Zustand
| Wohnfläche | 308,4 m² |
| Nutzfläche | 579 m² |
| Grundstücksfläche | 1.116 m² |
| Zimmer | 7 |
| Baujahr | 1970 |
| Verfügbar ab | nach Vereinbarung |
| Zustand | Gepflegt |
Energie
| Heizungsart | Zentralheizung |
| Energieträger/Befeuerung | Öl |
Objektbeschreibung
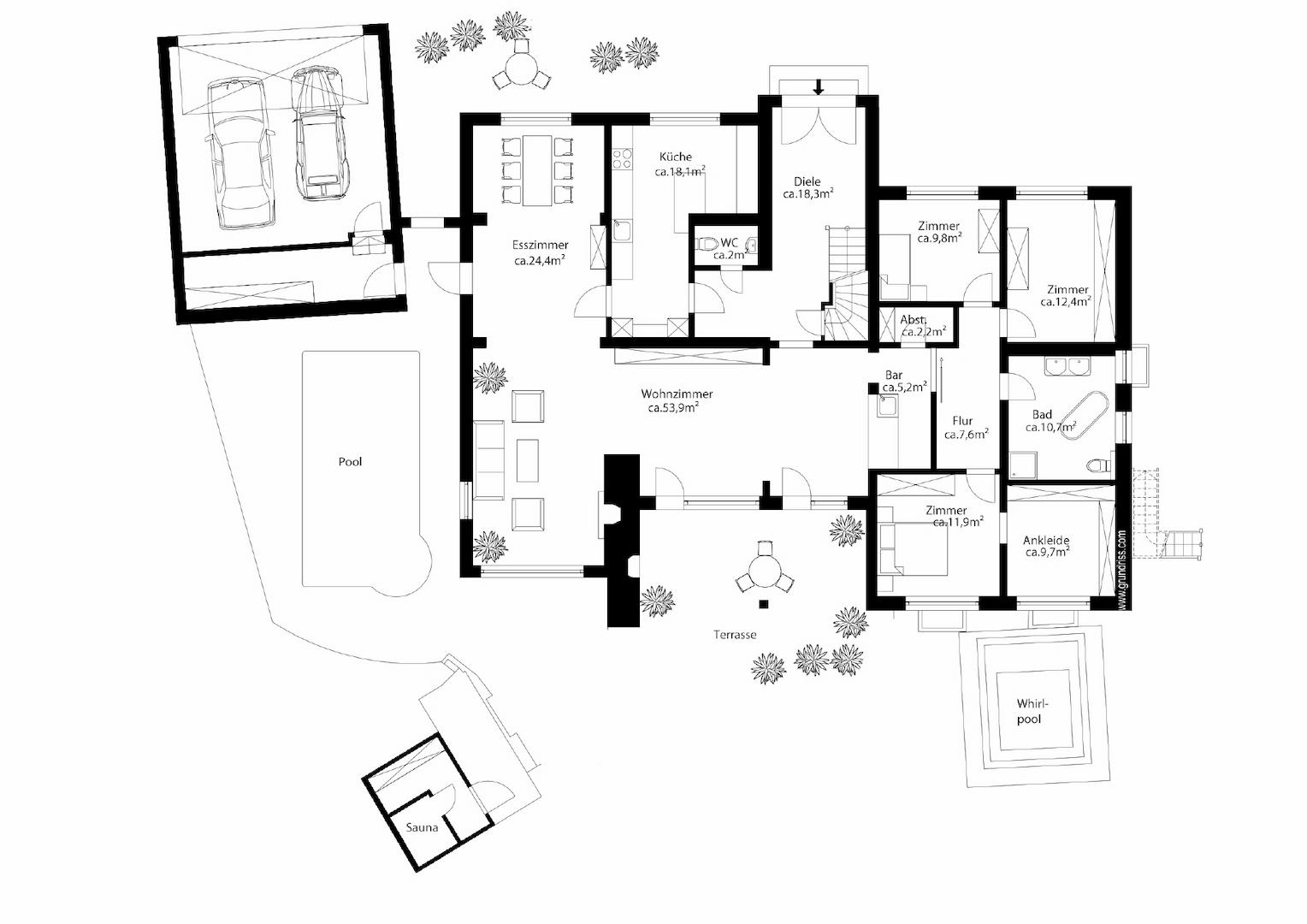
In traumhafter und begehrter Lage von Münsing-Ammerland erwartet Sie dieses außergewöhnliche Einfamilienhaus mit Einliegerwohnung – ein echtes Juwel für anspruchsvolle Familien, Ruhesuchende oder Liebhaber stilvollen Wohnens. Das großzügige Anwesen wurde 1970 errichtet; 1989 erweitert und 2003/2011 umfangreich saniert. Es erstreckt sich über Erdgeschoss, Dachgeschoss und Untergeschoss und bietet mit über 300 m² Wohnfläche ein Höchstmaß an Komfort und Gestaltungsfreiheit.
Der weitläufige, sonnige Garten mit altem Obstbaumbestand lädt zum Verweilen ein und bietet zahlreiche Rückzugsorte – ob am eigenen Außenpool, im Whirlpool oder in der charmanten Sauna im Gartenhaus. Für gesellige Stunden im Freien sorgt zudem der stilvolle Außenkamin auf der Terrasse.
Herzstück des Erdgeschosses ist der offene Wohn- und Essbereich mit Kamin und gemütlicher Bar – ein idealer Ort für Gäste und Familie. Die angrenzende Einbauküche im Landhaus-Stil ist mit hochwertigen Siemens-Geräten sowie einer gasbetriebenen Wok-Kochstelle ausgestattet und lässt keine Wünsche offen.
Auf dieser Etage befinden sich zudem mehrere Zimmer unterschiedlicher Größen, die flexibel als Schlaf-, Gäste-, bzw. Arbeitszimmer genutzt werden können sowie ein elegantes Tageslicht-Badezimmer und eine separate Gäste-Toilette.
Das Dachgeschoss bietet ein großzügiges Studio mit herrlichem Bergblick sowie eine Einliegerwohnung, bestehend aus Wohn- und Esszimmer, Schlafzimmer, Badezimmer und Küche.
Im Untergeschoss befindet sich ein großzügiger Hobbyraum in Wohnraumqualität – ideal für Fitness, Home-Office oder als Rückzugsort für kreative Aktivitäten. Darüber hinaus finden Sie auf dieser Ebene ein Badezimmer sowie die üblichen Kellerräume (Heizung, Vorrat, etc.).
Eine geräumige Doppelgarage rundet dieses ansprechende Angebot ab.
Der weitläufige, sonnige Garten mit altem Obstbaumbestand lädt zum Verweilen ein und bietet zahlreiche Rückzugsorte – ob am eigenen Außenpool, im Whirlpool oder in der charmanten Sauna im Gartenhaus. Für gesellige Stunden im Freien sorgt zudem der stilvolle Außenkamin auf der Terrasse.
Herzstück des Erdgeschosses ist der offene Wohn- und Essbereich mit Kamin und gemütlicher Bar – ein idealer Ort für Gäste und Familie. Die angrenzende Einbauküche im Landhaus-Stil ist mit hochwertigen Siemens-Geräten sowie einer gasbetriebenen Wok-Kochstelle ausgestattet und lässt keine Wünsche offen.
Auf dieser Etage befinden sich zudem mehrere Zimmer unterschiedlicher Größen, die flexibel als Schlaf-, Gäste-, bzw. Arbeitszimmer genutzt werden können sowie ein elegantes Tageslicht-Badezimmer und eine separate Gäste-Toilette.
Das Dachgeschoss bietet ein großzügiges Studio mit herrlichem Bergblick sowie eine Einliegerwohnung, bestehend aus Wohn- und Esszimmer, Schlafzimmer, Badezimmer und Küche.
Im Untergeschoss befindet sich ein großzügiger Hobbyraum in Wohnraumqualität – ideal für Fitness, Home-Office oder als Rückzugsort für kreative Aktivitäten. Darüber hinaus finden Sie auf dieser Ebene ein Badezimmer sowie die üblichen Kellerräume (Heizung, Vorrat, etc.).
Eine geräumige Doppelgarage rundet dieses ansprechende Angebot ab.
Ausstattung
| Küche | Einbauküche |
| Bad | 3 |
| Garage/Stellplätze | 2 |
| Keller |
- grozügiger, sonniger Garten mit Obstbäumen
- Außenpool sowie Whirlpool
- Gartenhaus mit Sauna
- Offener Kamin im Wohnbereich sowie Außenkamin
- Einbauküche im Landhaus-Stil mit Elektrogroßgeräten von Siemens sowie gasbetriebener Wok-Kochstelle
- weitere Einbauküche im DG
- Parkettböden im Wohn- und Schlafbereich
- teilweise Fußbodenheizung im Wohnbereich
- Bar im Wohnzimmer mit Granit-Theke, Spüle, Kühl- und Gefrierfach
- mehrere Schreiner-Einbauten (Ankleide, Bibliothek, Studio)
- Tageslichtbadezimmer EG mit freistehender Badewanne, bodengleicher Dusche sowie zwei Säulenwaschbecken und Fliesen von Villeroy & Boch (Collection: Century Titanic)
- weitere Badezimmer im DG und UG
- separate Gäste-Toilette
- Hobbyraum in Wohnraumqualität im UG
- Doppelgarage
- Außenpool sowie Whirlpool
- Gartenhaus mit Sauna
- Offener Kamin im Wohnbereich sowie Außenkamin
- Einbauküche im Landhaus-Stil mit Elektrogroßgeräten von Siemens sowie gasbetriebener Wok-Kochstelle
- weitere Einbauküche im DG
- Parkettböden im Wohn- und Schlafbereich
- teilweise Fußbodenheizung im Wohnbereich
- Bar im Wohnzimmer mit Granit-Theke, Spüle, Kühl- und Gefrierfach
- mehrere Schreiner-Einbauten (Ankleide, Bibliothek, Studio)
- Tageslichtbadezimmer EG mit freistehender Badewanne, bodengleicher Dusche sowie zwei Säulenwaschbecken und Fliesen von Villeroy & Boch (Collection: Century Titanic)
- weitere Badezimmer im DG und UG
- separate Gäste-Toilette
- Hobbyraum in Wohnraumqualität im UG
- Doppelgarage
Sonstige Informationen
Befeuerung/Energieträger: Öl
Energieausweistyp: Bedarfsausweis
Energiekennwert: 137,4 kWh/(m²*a)
Energieeffizienzklasse: E
Baujahr: 1970
Heizungsart: Zentralheizung
Energieausweistyp: Bedarfsausweis
Energiekennwert: 137,4 kWh/(m²*a)
Energieeffizienzklasse: E
Baujahr: 1970
Heizungsart: Zentralheizung
Lage des Objektes
Die Gemeinde Münsing liegt eingebettet zwischen dem Ostufer des Starnberger Sees und den weiten Ebenen des Loisach- und Isartals.
Diese Lage verleiht ihr einen ganz besonderen Reiz: einerseits die unmittelbare Nähe zum Wasser, andererseits der Blick in das bayerische Alpenvorland. Rund um den Hauptort Münsing mit seinen Einkaufsmöglichkeiten, einer Grundschule, Kinderbetreuung, Ärzten sowie Bank- und Gastronomieangeboten erstrecken sich idyllische Ortsteile – darunter Ammerland.
Ammerland liegt direkt am Seeufer und ist mit seinem historischen Schlossensemble, der Kapelle und den denkmalgeschützten Villen nicht nur architektonisch geprägt, sondern bietet auch ein besonderes Wohnumfeld - Vom Baden und Segeln über Spaziergänge an der Uferpromenade bis hin zu Schifffahrten, die direkt in Ammerland anlegen.
Über einen Fußweg gelangen Sie vom Haus in nur wenigen Minuten an den See und können die Vorzüge dieser begehrten Lage genießen.
Die Verkehrsanbindung ist ideal: Über die nur wenige Minuten entfernte A 95 erreicht man die Landeshauptstadt München in etwa 20 Minuten. Auch die Nachbarstädte Wolfratshausen und Starnberg sind schnell erreichbar und bieten weiterführende Schulen sowie vielfältige Kultur- und Einkaufsangebote. Öffentliche Busverbindungen ergänzen die Mobilität im Nahbereich.
Diese Lage verleiht ihr einen ganz besonderen Reiz: einerseits die unmittelbare Nähe zum Wasser, andererseits der Blick in das bayerische Alpenvorland. Rund um den Hauptort Münsing mit seinen Einkaufsmöglichkeiten, einer Grundschule, Kinderbetreuung, Ärzten sowie Bank- und Gastronomieangeboten erstrecken sich idyllische Ortsteile – darunter Ammerland.
Ammerland liegt direkt am Seeufer und ist mit seinem historischen Schlossensemble, der Kapelle und den denkmalgeschützten Villen nicht nur architektonisch geprägt, sondern bietet auch ein besonderes Wohnumfeld - Vom Baden und Segeln über Spaziergänge an der Uferpromenade bis hin zu Schifffahrten, die direkt in Ammerland anlegen.
Über einen Fußweg gelangen Sie vom Haus in nur wenigen Minuten an den See und können die Vorzüge dieser begehrten Lage genießen.
Die Verkehrsanbindung ist ideal: Über die nur wenige Minuten entfernte A 95 erreicht man die Landeshauptstadt München in etwa 20 Minuten. Auch die Nachbarstädte Wolfratshausen und Starnberg sind schnell erreichbar und bieten weiterführende Schulen sowie vielfältige Kultur- und Einkaufsangebote. Öffentliche Busverbindungen ergänzen die Mobilität im Nahbereich.
Anbieter kontaktieren
Kontakt
| Telefon | +49(89) 17 87 87 0 |
| Fax | (089) 17 87 87 88 |
| Website | www.aigner-immobilien.de |
