Sehr gepflegte Wohnung mit viel Licht, Balkon & Garage!
229.000 €
Kaufpreis
109 m²
Wohnfläche
3,5
Zimmer
immobilien.de Nr.: 9239972
Objektnummer: 180012
Kaufpreis
| Kaufpreis | 229.000 € |
| Maklerprovision | 3,57 % (inkl. MwSt.) |
Wohnfläche, Grundstück & Bausubstanz
| Wohnfläche | 109 m² |
| Zimmer | 3,5 |
| Baujahr | 1993 |
| Verfügbar ab | sofort |
| Zustand | Gepflegt |
Energie
| Energieausweistyp | Bedarfsausweis |
| Ausstellungsdatum | 06. 07. 2018 |
| Baujahr (laut Energieausweis) | 1993 |
| Energieeffizienzklasse | E |
| Endenergiebedarf | 138 |
| Heizungsart | Zentralheizung |
| Wesentlicher Energieträger | Öl |
| Energieträger/Befeuerung | Öl |
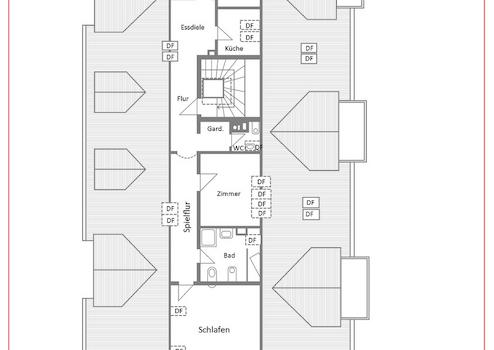
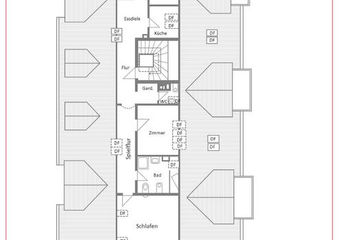
Beschreibung der Immobilie
Sie suchen ein gemütliches Zuhause in ruhiger Lage, mit Platz zum Wohlfühlen, Rückzug und Genießen?
Dann könnte diese gepflegte Dachgeschosswohnung genau das Richtige für Sie sein.
Die 1993 erbaute Wohnung befindet sich in einem sehr gepflegten 7-Parteienhaus und überzeugt durch ihren durchdachten Grundriss, ihre Helligkeit und die freundliche Atmosphäre. Auf rund drei Zimmern finden Sie alles, was Sie für ein behagliches Zuhause benötigen:
Ein großzügiges Wohnzimmer mit Zugang zum sonnigen Südbalkon - perfekt für den morgendlichen Kaffee oder einen entspannten Feierabend.
Eine separate, funktional geschnittene Küche lädt zu kulinarischen Momenten ein.
Das Tageslichtbad mit Dusche und Badewanne bietet Ihnen Komfort und Entspannung, zusätzlich gibt es ein separates Gäste-WC.
In den letzten Jahren wurde die Wohnung modernisiert: Teilweise neue Laminatböden, frisch gestrichene Wände und erneuerte Fenster sorgen für ein gepflegtes und zeitgemäßes Wohngefühl, ohne dass Sie sofort renovieren müssen.
Besonders praktisch: Ein großzügiger Kellerraum bietet zusätzlichen Stauraum und Ihre eigene Garage ist bereits inklusive.
Ob allein, zu zweit oder als kleine Familie - diese Wohnung bietet Ihnen den perfekten Rahmen für Ihr neues Zuhause.
Lassen Sie sich bei einer Besichtigung von der Atmosphäre vor Ort überzeugen.
Weitere Angebote unter www.GARANT-IMMO.de
Dann könnte diese gepflegte Dachgeschosswohnung genau das Richtige für Sie sein.
Die 1993 erbaute Wohnung befindet sich in einem sehr gepflegten 7-Parteienhaus und überzeugt durch ihren durchdachten Grundriss, ihre Helligkeit und die freundliche Atmosphäre. Auf rund drei Zimmern finden Sie alles, was Sie für ein behagliches Zuhause benötigen:
Ein großzügiges Wohnzimmer mit Zugang zum sonnigen Südbalkon - perfekt für den morgendlichen Kaffee oder einen entspannten Feierabend.
Eine separate, funktional geschnittene Küche lädt zu kulinarischen Momenten ein.
Das Tageslichtbad mit Dusche und Badewanne bietet Ihnen Komfort und Entspannung, zusätzlich gibt es ein separates Gäste-WC.
In den letzten Jahren wurde die Wohnung modernisiert: Teilweise neue Laminatböden, frisch gestrichene Wände und erneuerte Fenster sorgen für ein gepflegtes und zeitgemäßes Wohngefühl, ohne dass Sie sofort renovieren müssen.
Besonders praktisch: Ein großzügiger Kellerraum bietet zusätzlichen Stauraum und Ihre eigene Garage ist bereits inklusive.
Ob allein, zu zweit oder als kleine Familie - diese Wohnung bietet Ihnen den perfekten Rahmen für Ihr neues Zuhause.
Lassen Sie sich bei einer Besichtigung von der Atmosphäre vor Ort überzeugen.
Weitere Angebote unter www.GARANT-IMMO.de
Ausstattungsmerkmale
| Anzahl der Etagen im Haus | 3 |
| Inserat befindet sich im Stockwerk | 3 |
| Küche | Einbauküche |
| Bad | 1 |
| Boden | Fliesen, Laminat |
| Balkone | 1 |
* Einbauküche
* Tageslichtbad
* separates WC
* Balkon in Südlage
* Keller
* Waschkeller
* Garage
* Tageslichtbad
* separates WC
* Balkon in Südlage
* Keller
* Waschkeller
* Garage
Sonstige Informationen
Renovierungsarbeiten im Jahr 2023:
- Malerarbeiten
- teilweise Laminatboden verlegt
- Fenster erneuert
- Malerarbeiten
- teilweise Laminatboden verlegt
- Fenster erneuert
Karte wird geladen...
Objektstandort
78166 Donaueschingen
Lage & Infrastruktur
Objektstandort
78166 Donaueschingen
Donaueschingen-Wolterdingen ist ein idyllischer Ortsteil von Donaueschingen im Schwarzwald-Baar-Kreis. Die Lage zeichnet sich durch eine naturnahe Umgebung mit guter Infrastruktur aus.
Wolterdingen bietet eine ruhige Wohnlage mit viel Grün und einer guten Anbindung an die B27 und B31. Die Stadt Donaueschingen mit allen wichtigen Einrichtungen ist in wenigen Minuten erreichbar.
Dank der guten Verkehrsanbindung sind Villingen-Schwenningen, Tuttlingen und der Bodensee schnell erreichbar. Auch Pendler profitieren von der Nähe zur Autobahn A81 in Richtung Stuttgart und Zürich.
Wolterdingen bietet eine ruhige Wohnlage mit viel Grün und einer guten Anbindung an die B27 und B31. Die Stadt Donaueschingen mit allen wichtigen Einrichtungen ist in wenigen Minuten erreichbar.
Dank der guten Verkehrsanbindung sind Villingen-Schwenningen, Tuttlingen und der Bodensee schnell erreichbar. Auch Pendler profitieren von der Nähe zur Autobahn A81 in Richtung Stuttgart und Zürich.
Kontaktanfrage senden
Über den Anbieter
Garant Immobilien AG
Wilhelmstr.5
70182 Stuttgart
Kontakt
| Telefon | 07720/958 62-0 |
| Fax | 07720/958 62-20 |
| Website | www.garant-immo.de |
Ansprechpartner/in
Büro Villingen-Schwenningen